Как сварить своими руками котёл отопления. Альтернативные источники тепла и сухой остаток
- Как сварить своими руками котёл отопления. Альтернативные источники тепла и сухой остаток
- Котел отопления своими руками чертеж. Котлы шахтного типа
- Водяной котел для отопления дома. Устройство и принцип работы
- Экономичный дровяной котел своими руками. Отопление дровами – плюсы и минусы
- Котел из трубы своими руками. С чего всё началось
- Самодельный котел для отопления дома. Электрические котлы
- Дровяной котел для водяного отопления. Прямого, длительного горения или пиролизный
- Простой котел своими руками. Домашняя технология производства отопительного оборудования
Как сварить своими руками котёл отопления. Альтернативные источники тепла и сухой остаток

Самые разные альтернативные источники энергии можно рассматривать только, как дополнение к основным видам топлива. Солнечная энергия бесплатна, но цены на оборудование и конвекторы — заоблачные. Определенный интерес представляют в этом плане тепловые насосы, но простая семья из пяти человек физически не может позволить себе инвестировать в будущее 25-30 тысяч евро, хотя здесь больше дело в приоритетах — средний семейный автомобиль стоит примерно столько же. Что в итоге?
- Газ. Дорогой, подача нестабильная, качество не позволит установить технологичный экономный газовый котел отопления.
- Электричество. Подача нестабильная, напряжение тоже непостоянное, стоит дорого, но есть практически в каждом доме и даже в самой глуши. Электрические котлы отопления наиболее часто применяются также и для горячего водоснабжения. Также есть возможность устанавливать современные ионные экономичные отопительные станции.
- Жидкое топливо. Бесперспективный метод отопления, поскольку тенденция к сокращению использования нефтепродуктов через десяток-другой лет коснется не только фондовых бирж, но и Ракукинского сельсовета. Котлы на жидком топливе обычно рассматриваются как вспомогательное отопительное оборудование и для временного отопления. Они неудобны в эксплуатации, чадят, КПД не самый высокий.
- Твердое топливо. Пока это единственный, если не альтернативный, то дополнительный способ организовать автономное отопление. Твердотопливный котел отопления своими руками чертежи разных конструктивных вариантов, мы приводим, как иллюстрацию доступности такого метода.
- Альтернативные методы отопления. Для нашей страны первой половины ХХI века — это остается фантастикой, очень привлекательным и интересным материалом для изучения, но возможности реализовывать большинство схем получения альтернативной энергии нет.
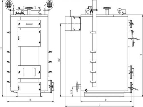
Котел отопления своими руками чертеж. Котлы шахтного типа
Как уже упоминалось особенностью таких котлов является наличие двух камер: большой вертикальной загрузочной камеры (шахты) и камеры с теплообменником. Топливо поджигается снизу в первой камере и пламя через отверстие попадает в другую, где и отдает свою энергию теплоносителю через теплообменник.
Такие котлы могут быть, как с обычным сжиганием топлива, так и с пиролизным. В первом случае весь необходимый воздух подается через нижнюю дверку, а продукты горения, пройдя через теплообменник, удаляются в дымовую трубу. Во втором случае к месту горения подается ограниченное количество первичного воздуха, где дрова сгорают с выделением пиролизного газа. Кроме того такие конструкции оборудуются дополнительной камерой дожига, куда подается вторичный воздух и осуществляется сжигание газа. В верхней части теплообменной камеры расположена задвижка, которая отрывается при розжиге и позволяющая дымовым газам напрямую выходить в дымовую трубу.

Чертеж-схема котла шахтного типа с камерой дожига
1 — заслонка подачи первичного воздуха; 2 — нижняя дверка для поджига и чистки; 3 — решетка; 4 — дрова; 5 — загрузочная дверка (может располагаться и сверху); 12 — труба с нагретой водой (подача); 13 — пусковая заслонка; 14 — заслонка дымовой трубы; 15 — теплообменник; 16 — подача вторичного воздуха; 17 — камера дожига; 18 — обратка; 19 — слив; 20 — чистка; 21 — заслонка; 22 — колосниковая решетка; 25 — зольник.

Водяной котел для отопления дома. Устройство и принцип работы
Принципиально двухконтурные модели мало чем отличаются от классических твердотопливных одноконтурных котлов. Единственное отличие заключается в наличии дополнительного контура ГВС, санитарная вода в котором не смешивается с технической в контуре отопления. Организован второй контур может быть по-разному, ранее водяную рубашку просто разделяли на две части.
Более соверешенным вариантом является помещение внутрь водяной рубашки с теплоносителем первого контура отопления змеевика из труб для второго контура горячего водоснабжения. Такое взаимодействие контуров предохраняет от перегрева трубки змеевика ГВС, и они дольше работают, не образуя накипь внутри себя.
Устройство двухконтурного твердотопливного котла на примере модели Wirbel ЕСО СКB со встроенным накопительным баком.
Сейчас же наиболее распространены контуры ГВС, подогреваемые ТЭНами (трубчатыми электронагревателями). В режиме отопления котел работает как самый обычный классический энергонезависимый твердотопливник, но если нужно подогреть контур ГВС, имеется встроенный сменяемый блок ТЭНов, обычно мощностью 3-9 кВт. В остальном отличий от классического, известного всем тт котла нет.
Двухконтурные твердотопливные котлы длительного горения
Благодаря камере шахтного типа и горению сверху вниз можно достигнуть горения одной закладки топлива до 24 часов или даже 7 суток. Однако сделать такую конструкцию двухконтурной сложно, а ее стоимость будет сравнима с двумя отдельными, часто более надежными, твердотопливными котлами. Поэтому, несмотря на спрос, на сегодняшний день не существует двухконтурных твердотопливных моделей длительного горения, производством таковых не занимаются даже локальные малоизвестные производители. Тем не менее, если вам удалось найти двухконтурные модели длительного горения, просьба сообщить об этом в комментариях.
Экономичный дровяной котел своими руками. Отопление дровами – плюсы и минусы
Самодельные дровяные котлы активно используются для обогрева жилых помещений – это небольшие дачные домики и крупные частные домовладения, расположенные в местах, далеких от газовых магистралей. В качестве топлива для них используются дрова или каменный уголь. Угольные агрегаты отличаются высоким тепловыделением, но достать это топливо получается далеко не всегда. Поэтому люди отдают предпочтение дровяным моделям.
Давайте рассмотрим основные достоинства самодельных котлов на дровах:
- Не нужно разрешение на установку и эксплуатацию – мы вправе самостоятельно распоряжаться данным оборудованием;
- Дешевизна в эксплуатации – по сравнению с электрическим отоплением, обогрев дровами более дешев. А если обрести источник бесплатных поленьев, то останется потратиться только на сборку отопительного котла;
- Независимость от электросетей – это относится к самым простым агрегатам, в составе которых отсутствуют электрические узлы;
- Возможность реализации длительного горения – оно позволит снизить количество подходов для закладки все новых порций горючего;
- Дешевизна в сборке – самодельный котел на дровах для частного дома будет стоить дешевле, чем его заводской аналог.
Есть и некоторые недостатки:

Только постоянная чистка котла и его систематический плановый ремонт смогут обеспечить стабильную и эффективную работу агрегата на всем протяжении его эксплуатации.
- Самодельные дровяные котлы для отопления дома могут не выйти на максимальный КПД – сказываются ошибки кустарной сборки;
- Котлы на твердом топливе на угле и дровах требуют регулярной очистки – то есть, мы можем избавиться от необходимости частой закладки горючего, но с проблемой очистки справиться невозможно. Поэтому нам придется регулярно очищать оборудование от сажи и золы;
- Сложность самостоятельного монтажа – самодельные котлы длительного горения на дровах, с водяным контуром, могут показаться сложными в изготовлении. И чем меньше опыта работы с инструментами, тем более сложной покажется задача.
Кроме того, самодельные котлы длительного горения не отличаются нормальными внешними данными, хотя здесь все зависит от мастерства сборщика.
Помимо сажи и угольков, в котлах длительного горения может образовываться конденсат – он образуется в результате использования сырых дров.
Котел из трубы своими руками. С чего всё началось
Perelesnik Пользователь FOUMHOUSE
В мой дом заведён газ, но я периодически задумывался над тем, чтобы перейти на отопление твёрдым топливом. Останавливало лишь то, что газовое отопление было выгодно, и переход на дрова оказывался не рентабельным. Дом я отапливал электродным котлом мощностью 7 кВт, работающим в связке с кондиционером, который эксплуатировался «на обогрев». При сильных заморозках дом дополнительно подтапливался котлом, работающим на газе. И вот газ подорожал…
Именно увеличение цены на газ стало тем событием, которое привело к разработке ракетного котла.
Прежде, чем иди и сразу покупать «нечто» под названием «твердотопливный котёл», Perelesnik начал изучать предмет. Он ознакомился с перечнем оборудования, предлагаемого в магазинах, посмотрел, как работают котлы у соседей, понял, какие наиболее частые проблемы возникают, изучил отзывы в Интернете.

После «мозгового штурма» появился список требований, которым должно отвечать устройство - с точки зрения Perelesnik-а :
- Возможность стабильной работы на мощности от 2 до 20 кВт. Это связано с особенностями климата в регионе проживания форумчанина. Зимой температура с месяц может держаться около 0°C, а потом резко на неделю упасть до -25…30°C. В осенне-весенний период температура находится в пределах +5…+10°C. Т.к. дом в межсезонье также нужно отапливать, но от котла не требуется максимальная мощность, нужен «гибко» настраиваемый аппарат.
- Котёл должен быть «всеядным», т.е. гореть в топке должно всё, что может гореть – дрова, топливные брикеты, уголь, отходы и т.д., включая влажное топливо.
- Конструкция котла должна предусматривать закладку поленьев диаметром до 20 см. Это уменьшит необходимость в колке дров.
- Должен работать с ночи до утра на одной закладке топлива. При сильном морозе количество полных закладок топлива не должно превышать трёх.
- Полная энергонезависимость. Устройство должно работать без необходимости его подключения к электрической сети. В случае обрыва проводов или отключения энергии, работу циркуляционного насоса (он должен прокачивать теплоноситель) обеспечивает резервная система питания.
Самодельный котел для отопления дома. Электрические котлы
Электрические котлы для обогрева частного дома могут иметь различную конструкцию. Самый простой вариант – установить ТЭН прямо в системе отопления. Тогда исчезает необходимость в изготовлении отдельно стоящего котла.

Правда, труба, где ТЭН монтирован, должна иметь большой диаметр. Заодно рекомендуется сделать ее съемной, чтобы было легче обслуживать нагревательные элементы.
Интересны электродные котлы, когда для выработки тепла электрический ток пропускают прямо через жидкость. Тепловая энергия производится в результате хаотического движения ионов. В воде при этом должна содержаться соль.

Самостоятельно изготовить электродный котел намного сложнее, чем работающий на ТЭН: ведь ток оказывает прямое воздействие на воду, из-за чего требуется принять серьезные меры по электробезопасности.
Самые распространенные угрозы – электродуговой пробой теплоносителя, что практически равно короткому замыканию, а также накопление электролизного газа в контуре системы.
Проще всего сконструировать твердотопливный котел. При его сборке используются жаростойкие сорта стали – они прочнее, чем обычный стальной лист, который на открытом огне прогорает и быстро изнашивается.

Тем не менее, жаростойкая сталь стоит дорого, и на практике в котлах кустарной сборки применяется редко. Еще один вариант – чугун: этот материал отлично переносит жар, хотя работать с ним тяжело. Оборудование для изготовления чугунной печи есть только на специализированных предприятиях.
На водяной циркуляции
Твердотопливный самодельный котел для водяного отопления с классической компоновкой имеет камеру сгорания с колосниками – монтированными горизонтально стальными полосами металла, заменяющими цельнометаллическое дно. Топливо закладывается поверх колосников, а оставшийся после его сгорания пепел проваливается между ними в расположенную ниже камеру. К последней присоединен дымоходный канал, предназначенный для отвода дыма. Каждый раз перед началом очередной топки пепел из этой камеры нужно выгребать.
Рядом с камерой сгорания — обычно со стороны дымоходного канала — располагается емкость для нагрева воды, подключенная к контуру трубопровода частного дома: в нижнюю часть емкости поступает охлажденная вода, которая по мере нагрева поднимается вверх. Поток воздуха в камеру сгорания нагнетается вентилятором. Котел оснащен двумя дверками: верхняя предназначена для загрузки топлива, нижняя – для чистки камеры под колосниками. Также эта камера необходима для циркуляции воздуха.
На принципе пиролиза
Другую конструкцию имеют пиролизные котлы. У них имеется дополнительная верхняя камера, куда попадают газы, выделяемые в процессе сгорания дров. Там газы догорают, производя дополнительное тепло.
Пиролизный самодельный котел имеет больший КПД по сравнению с устройством традиционного типа.
Для отопления загородного дома, состоящего из нескольких комнат, подойдет аппарат с ТЭН, состоящий из трубы диаметром 21,9 см и длиной около 50 см. Такое приспособление будет экономным, ведь киловатты энергии не будут расходоваться впустую. Кроме того, устройство очень компактно.
Если ТЭН предполагается установить в отдельном корпусе, то лучше сделать котел с небольшими габаритами. В случае если котел применяется для подогрева проточной воды, это правило не действует. Ведь тогда нужно иметь запас жидкости, а для этого требуется больший резервуар.

Для работы котла не нужна выделенная линия электропитания, его можно подключать к бытовой сети вместе с другими электроприборами. В отличие от электродного оборудования, отопительный котел с ТЭН безопасен, ведь теплоноситель изолирован от тех частей устройства, которые находятся под напряжением. Если оснастить агрегат регулятором, то появится возможность настраивать температуру нагрева воды с высокой точностью – это главное преимущество электрического котла перед твердотопливным.
Дровяной котел для водяного отопления. Прямого, длительного горения или пиролизный
Традиционные котлы прямого горения – аналог печи, они крайне просты в управлении, не требуют подключения к электросети, неприхотливы к качеству топлива и дешевы. Однако они допускают регулировку мощности и температуры лишь в малых пределах и имеют невысокий КПД. Если будущий владелец агрегата готов, как оператор котельной, следить за температурой воды в системе, каждые 3 часа загружать поленья, вовремя прикрывать поддувало и заслонку, чтобы не угореть, не перегреть воду и не дать потухнуть огню зимой – это хороший, выгодный и очень бюджетный выбор. Тем более даже недорогие современные варианты гораздо практичнее в обслуживании, чем модели старого образца.
Выбирая дровяной котел с продолжительным горением для дачи или дома с круглогодичным проживанием, можно получить полностью автономную систему с механическим управлением или энергозависимую с низким уровнем автоматизации. КПД таких агрегатов существенно выше, чем у предыдущих, хорошо отрегулированный процесс тления может эффективно работать до 10-12 часов на одной загрузке, в некоторых моделях известных брендов (STROPUVA, LIEPSNELE) возможна дозагрузка один раз в 2 суток. Стоимость такого оборудования занимает среднюю нишу рынка.
Наиболее эффективны в настоящее время газогенераторные котлы с различным уровнем автоматики. Они в основном энергозависимые, очень требовательные к качеству дров. Но имеют высокие эксплуатационные характеристики: КПД до 95%, длительные периоды между загрузками (до 5 суток), плавные регулировки мощности, компьютерное управление с контролем по мобильному телефону и прочее. Естественно, такой уровень комфорта стоит дорого и очень дорого.
Простой котел своими руками. Домашняя технология производства отопительного оборудования
В поисках ответа на вопрос, как сделать котел отопления своими руками достаточно быстро приходишь к убеждению, что ничего особенно сложного в этом нет. При условии грамотной организации производственного процесса. Удобнее отдельные детали делать на верстаке в оборудованной мастерской или ином месте, где можно сделать рабочий стол.
Изготовление деталей корпуса
Основу любого твердотопливного котла для отопления частного дома составляет топка, где температура достигает 1000 ⁰С и для ее сборки потребуются материалы с соответствующими характеристиками. Порядок изготовления корпуса следующий:
- При отсутствии жаропрочных сталей можно обойтись и обычной, но для обеспечения долговечности узла его стенки делаются двойными. Передняя, задняя, боковые и нижняя стенки вырезаются из стального листа при помощи угловой шлифовальной машинки;
- Чертежи котлов отопления имеют обозначения точных размеров всех деталей, которые переносятся на металлопрокат при помощи измерительного инструмента и большой линейки. Помимо стенок камеры из стальной профильной трубы нарезается необходимое количество для использования их в качестве ребер жесткости. Из стального уголка изготавливаются усилители для стыков между отдельными частями печи;
- В передней стенке необходимо проделать прямоугольное отверстие, соответствующее по размерам дверцам топочного и зольного бункеров.
Полезный совет: для выполнения сквозного прямоугольного отверстия нужной конфигурации наносим на металл разметку, по углам производим сверление листа при помощи электродрели. Угловой шлифовальной машинкой делаем сквозной порез в средней части и ведем его от центра к краю. Это позволит избежать лишних повреждений листа.

Изготовление емкостей для воды и теплообменников
Эффективная конструкция отопительного котла предусматривает наличие двух баков для воды. Их делают из нержавеющего стального листа, для сварки которого необходимо специальное оборудование и определенная квалификация. Тут лучше довериться профессионалам и заказать эти емкости в специализированной мастерской.

Конструкция теплообменника представляет собой набор из водопроводных труб. При помощи сварочного аппарата они соединяются таким образом, чтобы образовать проточный контур с максимально большой внешней поверхностью. Это обеспечит быструю и наиболее полную теплоотдачу от сгораемого топлива к теплоносителю.
