Как сделать котел водяного отопления своими руками. Топливные агрегаты длительного горения
- Как сделать котел водяного отопления своими руками. Топливные агрегаты длительного горения
- Котел из трубы своими руками. Котел для бани своими руками — изготавливаем из трубы по чертежу
- Котел водяного отопления на дровах своими руками. Сварка дровяного котла – самостоятельный монтаж
- Самодельный котел для отопления дома. Домашняя технология производства отопительного оборудования
- Котел на дровах своими руками чертежи. Разные конструкции
- Простой котел своими руками. Котел длительного горения своими руками: чертежи изделий и ТОП-11 лучших моделей
- Самодельные котлы отопления чертежи. Особенности сооружения
- Как сделать котел в печь для водяного отопления. Как совместить кирпичную печь и водяной обогрев
- Экономичный дровяной котел своими руками. Отопление дровами – плюсы и минусы
Как сделать котел водяного отопления своими руками. Топливные агрегаты длительного горения
Идея создать своими руками твердотопливные котлы длительного горения наверняка многим покажется привлекательной. Прелесть таких конструкций в том, что закладывать дрова в них нужно лишь пару раз в сутки. Котел длительного горения отличается от традиционного агрегата тем, что в нем горение начинается с верхней части закладки топлива. При этом воздух в топливную камеру также подается сверху.
Схема котла длительного горения на твердом топливе предполагает наличие водяного контура вокруг его корпуса, поэтому вода в нем качественно прогревается на любом этапе процесса. Поскольку при работе котла горит не сразу вся закладка, а лишь верхний слой топлива, его хватает почти на 30 часов. Ряд универсальных твердотопливных котлов при использовании угля могут работать до 7 дней на одной закладке.
Данная конструкция не отличается конструктивной сложностью и не имеет каких-либо точных приборов, нуждающихся в подключении к электричеству. Поэтому цена на них вполне приемлема для потребителя. К тому же, собрать по готовым чертежам котел на твердом топливе своими руками вполне под силу домашнему мастеру. Можно сделать котел отопления своими руками и сэкономить немало денег.

Приведем несколько недостатков у данных конструкций. В работающий котел нельзя добавить топливо. Дрова для котла должны быть хорошо просушены (не более 20 % влажности) и распилены на небольшие поленья. Уголь можно применять только высокого качества, с малым содержанием шлаков. Кроме того, агрегаты данного типа ограничены по мощности – как правило, не более 40 кВт.
Еще одна разновидность котлов на твердом топливе – пеллетные агрегаты. Их отличие состоит в том, что в качестве топлива используются гранулы из отходов деревообработки. Большая часть промышленных моделей имеют особый бункер, из которого гранулы автоматически подаются в топку.
Котел из трубы своими руками. Котел для бани своими руками — изготавливаем из трубы по чертежу
Важнейшим этапом строительства бани является монтаж отопительного прибора – печи или котла. И чтобы выяснить, как установить котел для бани своими руками, нужно разобраться, чем он отличается от печи.

Как сделать котел для бани
Сразу оговоримся, что зачастую никакой особой разницы между ними нет. Разумеется, если печь была выложена в соответствии со всеми нормами печного искусства, то назвать ее котлом невозможно. Равно как невозможно назвать печью железную бочку, используемую для обогрева. Но функции у них одинаковые:
- обогреть помещение;
- нагреть воду;
- раскалить камни.
Разновидности котлов для бань
По типу используемого топлива котлы для бани делятся на такие группы:
- твердотопливные приборы, функционирующие на дровах, угле, торфе и т. д.;

Твердотопливный агрегат, совмещенный с печью-каменкой
- электрические;

Электрокотел с водогрейным баком
- газовые;

Газовые агрегаты для бань
- котлы, которые работают на жидком топливе – солярке, керосине, отработанном масле.

Котел для бани дизельный
При выборе материала также есть свои нюансы. Так, котлы из чугуна используются редко, поскольку их нельзя ставить в парилке, а лишь в отдельном помещении. В самой же парной можно поставить:
- железный котел;

Схема котла с баком для воды
- кирпичный;
- железный, но обложенный кирпичом.

Банный котел из металла, обложенный кирпичом
Сотни лет в банях было принято возводить массивные кирпичные печи , но благодаря современным технологиям сегодня изготавливают преимущественно компактные металлические модели.
Обратите внимание! Далеко не каждый может позволить себе покупку заводского агрегата, а при наличии определенных строительных навыков можно сделать котел для бани своими руками.
Цены на модельный ряд твердотопливных котлов
Твердотопливные котлы
О чем нужно знать?
Вначале следует определиться с топливом, которое будет использоваться, и, следовательно, с типом котла. Электрические и газовые приборы нежелательно изготавливать самостоятельно, но если выбор был сделан в пользу одного из них, то лучше купить готовый качественный котел. В противном случае возрастет риск возникновения аварийных ситуаций.

Котел для бани твердотопливный, схема
Также стоит отметить, что установленный котел на газу обязательно должен проходить проверку представителем соответствующих органов. Поэтому куда проще собрать и установить твердотопливный агрегат.
Изготовление котла для бани
Изготовление котла для бани
Железный котел имеет достаточно простую конструкцию. Подготовительные работы заключаются в изучении чертежей котлов, а также в покупке всего необходимого оборудования.

Изготовление котла для бани
Этап 1. Расходные материалы и оборудование
В большинстве случаев котлы изготавливаются из толстостенных металлических труб. Опытные специалисты используют большие бочки объемом до 200 л, но в нашем случае рекомендуется использовать все же небольшую трубу ø50 см длиной в 75-100 см. Это позволит сконструировать прибор, способный обогреть помещение объемом в 15 кубометров, что примерно соответствует площади 9 м².

Стальная труба для изготовления котла
Помимо того, потребуются такие инструменты:
- сварочный аппарат (электрический);
- болгарка;
- круги по металлу.
Этап 2. Сварка опор конструкции

Чертеж котла

Разрезаем трубу
После подготовки всего необходимого можно приступать к работе.
Шаг 1. Корпус котла будет состоять из трубы, в которой нужно сформировать три опоры, расположенные параллельно земле, на трех разных уровнях. Для этого потребуются три куска арматуры ø1,4 см длиной по 3 см каждый.
Уровень №1 необходим для установки печи.
Высота уровня №2 рассчитывается в зависимости от планируемого типа дверки поддувала.
Уровень №3 должен располагаться в 20 см от верхнего края конструкции.
Шаг 2. В качестве дна используется круг соответствующего диаметра, вырезанный из листовой стали толщиной в 5 мм.

Печь изнутри
Шаг 3. Все дровяные печи имеют в своем составе колосник – металлическую решетку, необходимую для подачи кислорода в топочную камеру (устанавливается снизу). Для него потребуется круг из металла максимально возможной толщины, перфорированный или с прорезями.
Шаг 4. Крышка печи послужит еще и опорой для камней, поэтому ее вырезают из той же 5-миллиметровой стали. В центре крышки проделывается отверстие для дымоходной трубы.
Шаг 5. В нижней части трубы проделывается отверстие для короба, его закрывают печной дверкой.
Обратите внимание! Глубина короба зависит исключительно от толщины стенок!
Шаг 6. Сооружается сам короб, внутри него оборудуется перегородка для раздела топочной и зольной камер. Уровень этой перегородки должен совпадать с уровнем колосниковой, а сам колосник – находиться внутри котла.


Котел водяного отопления на дровах своими руками. Сварка дровяного котла – самостоятельный монтаж
Простота процесса заключается ещё и в доступности материалов и инструментов для работы. Потребуются навыки сварного дела. Итак, что нужно:
- Старая бочка из-под ГСМ или самостоятельно сваренный короб. Тару предварительно выжигают от остатков масел – заполняют дровами и растапливают будущий котёл.
- Листовой, толстостенный металл. Из него будет изготавливаться теплообменник. Кстати, альтернативная замена этому – старые, отжившие своё чугунные радиаторы. Пять-шесть секций будет вполне достаточно для корпуса.
- Трубы профильные. Они потребуются для изготовления дымохода и сборки станины, на которую будет монтироваться котёл. Диаметр и толщина стенок должна быть внушительной, чтобы выдержать вес котла, заполненного топливом и водой.
- Приобретаются колосники, заслонки, дверцы. Если помещение внушительное или объект в два этажа, то потребуется циркуляционный насос – без него носитель не поднимется на высоту, и есть риск размораживания системы в морозы. Недурно установить на готовый котёл манометр и термометр, чтобы контролировать давление и температуру носителя.
- Для трубной разводки потребуются металлопластиковые патрубки и радиаторы – котлы отопления на дровах с водяным контуром без этого неприемлемы.
Будущий корпус должен быть обязательно герметичным – это проверяется ещё на стадии выжигания. Если имеются незначительные дефекты в виде дыр, то их заваривают и заполняют бочку водой – течи быть не должно.
Чугун примечателен тем, что долго не остывает. Но если подпитывать горячий котёл холодной водопроводной водой, то теплообменник неминуемо лопнет. Перед монтажом секции разбирают, вымачивают в кислоте и собирают, используя асбест-шнур, вымоченный в олифе.

Самодельный котел для отопления дома. Домашняя технология производства отопительного оборудования
В поисках ответа на вопрос, как сделать котел отопления своими руками достаточно быстро приходишь к убеждению, что ничего особенно сложного в этом нет. При условии грамотной организации производственного процесса. Удобнее отдельные детали делать на верстаке в оборудованной мастерской или ином месте, где можно сделать рабочий стол.
Изготовление деталей корпуса
Основу любого твердотопливного котла для отопления частного дома составляет топка, где температура достигает 1000 ⁰С и для ее сборки потребуются материалы с соответствующими характеристиками. Порядок изготовления корпуса следующий:
- При отсутствии жаропрочных сталей можно обойтись и обычной, но для обеспечения долговечности узла его стенки делаются двойными. Передняя, задняя, боковые и нижняя стенки вырезаются из стального листа при помощи угловой шлифовальной машинки;
- Чертежи котлов отопления имеют обозначения точных размеров всех деталей, которые переносятся на металлопрокат при помощи измерительного инструмента и большой линейки. Помимо стенок камеры из стальной профильной трубы нарезается необходимое количество для использования их в качестве ребер жесткости. Из стального уголка изготавливаются усилители для стыков между отдельными частями печи;
- В передней стенке необходимо проделать прямоугольное отверстие, соответствующее по размерам дверцам топочного и зольного бункеров.
Полезный совет: для выполнения сквозного прямоугольного отверстия нужной конфигурации наносим на металл разметку, по углам производим сверление листа при помощи электродрели. Угловой шлифовальной машинкой делаем сквозной порез в средней части и ведем его от центра к краю. Это позволит избежать лишних повреждений листа.

Изготовление емкостей для воды и теплообменников
Эффективная конструкция отопительного котла предусматривает наличие двух баков для воды. Их делают из нержавеющего стального листа, для сварки которого необходимо специальное оборудование и определенная квалификация. Тут лучше довериться профессионалам и заказать эти емкости в специализированной мастерской.

Конструкция теплообменника представляет собой набор из водопроводных труб. При помощи сварочного аппарата они соединяются таким образом, чтобы образовать проточный контур с максимально большой внешней поверхностью. Это обеспечит быструю и наиболее полную теплоотдачу от сгораемого топлива к теплоносителю.
Источник: https://domastroevo.ru/stati/kotel-na-drovah-svoimi-rukami-princip-raboty-kotla-dlitelnogo-goreniya
Котел на дровах своими руками чертежи. Разные конструкции
Для решения отмеченных выше задач используют различные решения. Чтобы не закладывать часто новые порции топлива увеличивают размеры топки. Сделать процесс горения равномерным помогает размещение сверху прижимного устройства, дозированная подача воздуха.
Схема типичного котла этого класса
Создать чертежи твердотопливных котлов длительного горения своими руками будет проще после подробного изучения стандартной конструкции:
- В начальном положении прижимное устройство (10) находится в верхнем положении.
- Через дверцу (6) в топку загружают крупную партию дров.
- После поджигания происходит регулируемый механическим приводом (16) процесс горения.
- Свежий воздух подается нагнетателем через телескопическую полую внутри штангу. Он распределяется равномерно через прижимной диск (10).
- Подача кислорода сверху обеспечивает постепенное сгорание топлива, слоями.
- Золу после завершения цикла удаляют через нижнюю дверцу (13).
- Для поднятия диска (10) в верхнее положение используют лебедку (2) с электроприводом.
Недостатком данной конструкции является невозможность произвольной закладки дров в топку. Существенное преимущество – повышенная до 24 часов и более длительность одного рабочего цикла.
В следующей конструкции топливо можно подкладывать по мере необходимости. Здесь использована технология пиролиза. Она характерна дозированной подачей кислорода и низкой интенсивностью горения. Тлеющие дрова выделяют горючий газ. Он сгорает в дополнительной камере.
Пиролизный котел
Эта установка полноценно использует топливо. В продуктах сгорания содержится минимальное количество сажи. Сложной является оптимальная регулировка рабочих процессов.
Газовые и дизельные агрегаты лишены упомянутых недостатков по причине простоты дозирования соответствующих видов топлива. Подобный результат можно получить, если использовать специальным образом спрессованные гранулы из отходов деревообработки, шелухи семечек, иного горючего сырья.
Пеллетный котел
В данном варианте гранулы (пеллеты) засыпают в бункер, откуда они подаются шнековым механизмом в топку. Понятно, что такая конструкция позволяет при необходимости быстро увеличивать и уменьшать подачу топлива. Гибкое изменение производительности котла пригодится для оптимизации работы при изменении внешней температуры, подключении дополнительных потребителей. С гранулами не слишком сложно работать при транспортировке, хранении.
Теплообменник для подогрева воды
Повышают эффективность котлов с помощью сложных структур выходных узлов. В таких конструкциях повышается температура теплоносителя . Аналогичные функции выполняют полые стенки корпуса.
Котлы длительного горения на дровах для дома. Необходимость часто подбрасывать дрова весьма неудобна. Однако есть котлы, которые требуют внимание раз в сутки. Подробнее в отдельной публикации.
Простой котел своими руками. Котел длительного горения своими руками: чертежи изделий и ТОП-11 лучших моделей
При доскональном и правильном изучении чертежей твердотопливных котлов вполне возможно сделать котел длительного горения своими руками надежным и экономичным.
Твердотопливные котлы уже не одно десятилетие пользуются немалой популярностью, хотя и имеют один существенный минус – они нуждаются в постоянной загрузке топлива (угля, дров и т. д.). Из-за этого недостатка от них нередко отказываются при обустройстве отопительной системы, но от него легко избавиться – сделать котел длительного горения своими руками, функционирующий почти на всех типах(исключительно твердого, разумеется).

Котел длительного горения своими руками

Для растопки котла можно использовать уголь
Как устроен самодельный котел длительного горения
Принцип работы
Схема работы таких котлов основывается на особенноститлеть несколько часов, производя при этом большое количество тепловой энергии. Характерно, что топливо в таком случае сжигается более полно, а количество отходов, как следствие, заметно снижается.

Чертеж котла
Обратите внимание! Замена активного сжигания тлением возможна ввиду особого устройства отопительного котла.
Основным элементом котла является топка, где горение ограничено, а интенсивность подачи воздуха контролируется при помощи специальных приспособлений. Топливо загружается два раза в сутки большими порциями, после чего медленно тлеет (ограниченное количество кислорода не позволяет ему полноценно гореть).
Труба, посредством которой выводится дым, пропускается через теплообменники и нагревает жидкость в отопительной системе. Выходит, достаточно лишь каждые 12 часов загружать топливо для бесперебойного обогрева дома.

Схема котла
Основные преимущества
Котлы длительного горения выделяются на фоне отопительных систем других типов. Конечно, основное преимущество – это именно длительность работы, но есть и другие важные моменты:
- низкая стоимость топлива;
- автономность;
- возможность обогрева больших площадей при минимальных расходах;
- легкость монтажа и эксплуатации;
- безопасность;
- возможность изготовления в домашних условиях.

Виды твердотопливных котлов
Устройство прибора
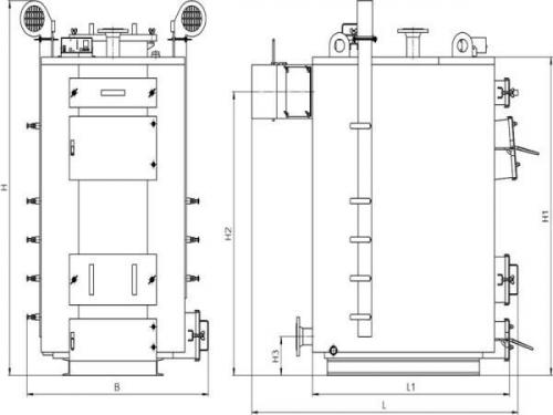
Для изготовления котла удобнее использовать металлическую трубу ø30 см и больше с толщиной стенок не менее 5 мм (иначе последние в скором времени прогорят из-за высокой температуры внутри прибора). Высота конструкции может колебаться между 80 см и 100 см, все зависит от площади помещения.
Труба для корпуса
Вне зависимости от модификации котел состоит из трех основных зон:
- загрузочной зоны;
- зоны тления и теплообразования
; - зоны окончательного сжигания, где горит зола и выводятся дымные газы.
Обратите внимание! Прибор, который ограничивает загрузочную зону и, соответственно, время тления, называют распределителем воздуха.
Данный элемент выполняется в виде металлического круга толщиной 5-6 мм с отверстием посередине, через которое с помощью телескопической трубы кислород подается в топку. Диаметр изделия должен быть несколько меньше диаметра корпуса. Высота регулируется посредством специальной крыльчатки.

Котел на дровах длительного горения

Котел на дровах длительного горения
Мнение эксперта:
Масальский А.В.
Редактор категории "строительство" на портале Stroyday.ru. Специалист по инженерным системам и водоотведению.
Обычно зона сжигания не превышает 5 см в высоту – если она будет большей, то топливо будет сгорать слишком быстро. К слову, кислородная труба может быть не только телескопической, но и цельной. Ее диаметр обычно составляет 6 см, в то время как размер отверстия в воздушном распределителе не превышает 2 см, дабы не пресыщать зону кислородом.

Котел длительного горения
Воздух может подаваться одним из двух способов:
- прямо из атмосферы;
- из специальной камеры нагрева (она располагается в верхней части конструкции), что обеспечивает более эффективную работу котла.
Для регулировки используется специальная воздушная заслонка.
Сверху приваривается дымоотводная труба. Она должна вестись перпендикулярно корпусу минимум 0,5 м, иначе образуется чрезмерная тяга.
Снизу оборудуется дверка для удаления продуктов горения. Чистку нужно проводить нечасто, ведь топливо будет сгорать полнее.
Существует два способа нагрева теплоносителя, у каждого есть свои сильные и слабые стороны.

Котел длительного горения
Котел длительного горения
Способ №1. К трубе теплообменника, проходящей через зону сгорания, подключается змеевик, посредством которого и происходит нагрев воды в баке.
Способ №2 . Формируется отдельный металлический бак, сквозь который пропускается труба дымохода. Разгоряченный дым подогревает жидкость.
Первый способ более эффективен, но вместе с тем более сложен в выполнении. Второй сделать проще, но он целесообразен только в небольших домах.
Цены на модельный ряд твердотопливных котлов
Твердотопливные котлы
Изготовление котла длительного горения
Котел
Сделать такую конструкцию в домашних условиях несложно, но для этого потребуются навыкии четкая инструкция.
Самодельные котлы отопления чертежи. Особенности сооружения
Самодельный отопительный котел для кирпичной печи может быть выполнен в различных вариациях, в зависимости от применения. Подобная конструкция может быть установлена не только в жилом доме, но и в служебных или хозяйственных помещениях, например, в теплице.
Самым важным этапом является правильная установка котла. Он должен находиться непосредственно в печи. Самодельный водяной котел отопления в кирпичную печь на дровах или угле устанавливается в виде буквы «П». Чертежи для данного процесса можно легко найти во всемирной паутине. Оптимальным материалом для его сооружения станет труба или листовой металл.
Для сооружения отопительного агрегата также пойдут неиспользуемые чугунные радиаторы, которые использовались в старых системах отопления многоэтажных жилых помещений. Перед монтажом радиатор нужно хорошо очистить, промыть и обработать соляным раствором. Это позволит значительно продлить срок службы самодельного водяного котла.
Сварить водяной котел для печи можно самостоятельно. Это несложно сделать при наличии чертежей и небольших навыков в этой сфере. Если же опыт отсутствует, то сварку оборудования для печи нужно доверить специалисту.
Несмотря на явные преимущества, подобное водяное отопление для печи имеет и свои недостатки:
- Работа печи требует постоянной диагностики и контроля.
- Зольная камера печи должна регулярно чиститься.
- Подобная конструкция с печью используется преимущественно в холодное время года.
- Износ конструкции котла в связи с высокой температурой внутри печи.
- Отсутствие системы аварийного контроля, что обусловлено особенностями конструкции кирпичной печи.
Однако, при отсутствии других вариантов и при качественно выполненной работе, отопление с использованием печи будет неплохим вариантом.
Как сделать котел в печь для водяного отопления. Как совместить кирпичную печь и водяной обогрев
Встроить котёл в печь для отопления всего дома вовсе не так трудно, как может показаться. Для этого необходимо сделать теплообменник, который обычно представляет собой обычный змеевик.От него требуется максимальная площадь поверхности и такое расположение, чтобы он не мешал загрузке топлива и процессу горения. Чаще всего его изготавливают из труб или металлических пластин, в качестве материала оптимальным вариантом является жаропрочная нержавейка.
Теплообменник устанавливается в топочную камеру, и вода в нём прогревается за счёт сгорания топлива. После этого она поступает в радиаторы отопления, отдаёт им тепло, которое поступает в комнаты, и возвращается для следующего цикла нагрева. Возможно два варианта монтажа такой системы:- С естественной циркуляцией. Это самый простой вариант, который будет полностью энергонезависимым. Движение воды в сети в этом случае осуществляется за счёт температурного расширения и повышения давления воды при нагревании.
- Для этого не требуются насосы, вода расширяется под воздействием тепла и поднимается наверх, а затем под действием силы тяжести она опускается к радиаторам и возвращается обратно. В верхней точке устанавливается открытый расширительный бак, который компенсирует температурное расширение и обеспечивает удаление лишнего воздуха из системы трубопровода.
- С принудительной циркуляцией. В этом случае движение воды осуществляется циркуляционным насосом, работающим от электричества. Это делает систему зависимой и более уязвимой, однако она будет более энергоэффективной.
Более быстрая циркуляция не позволяет воде остыть, следовательно, на её повторное прогревание требуется меньше энергии, и система будет более экономичной. Кроме того, циркуляционный насос позволит обеспечить движение воды по всем комнатам даже в очень большом доме.
преимущество печи с водяным отоплением
печь с котлом водяного отопления дома играет сразу несколько ролей: это не только обогреватель, её можно использовать и для горячего водоснабжения. если же оборудовать её варочной панелью и духовым шкафом, она станет ещё и лучшим местом для приготовления пищи, что дополнительно повысит её полезность. кирпичные печи с котлом отопления имеют несколько важных преимуществ:- Он даст возможность уменьшить размеры печи и освободить пространство. Обычная кирпичная печь занимает часть места сразу в нескольких комнатах, и чем она больше, тем теплее будет в доме.Если же снабдить её теплообменником, будет играть роль только размер топливной камеры, что даст возможность использовать более компактные печи. Она может играть и практическую, и декоративную роль.

- Во всех комнатах дома будет одинаково тепло. Обычная печь не позволит достигнуть такого результата: перед самой печкой будет жарко, а в отдалённых помещениях постоянно будет холодно. Установка теплообменника и радиаторов даст возможность превратить обычную печь в мини-котельную, которая позволит полностью обогревать все жилые помещения.
- Это красивое и эстетичное решение. Русская печь или «голландка» - это не просто обогреватели, это ещё и отличные украшения, если позаботиться об их отделке и постоянно содержать в чистоте.
Кроме того, такую печь не придётся постоянно топить, что значительно упростит жизнь владельцу дома. Достаточно топки утром и вечером или даже один раз в сутки, чтобы достаточно прогреть теплоноситель и обеспечить достаточное количество тепла.
Водяной контур позволит значительно увеличить КПД: в стандартной русской печи он составляет не более 50-60%, а после установки теплообменника этот параметр вырастет до 85%. Это позволит расходовать минимум топлива, чтобы получить максимум тепла.Экономичный дровяной котел своими руками. Отопление дровами – плюсы и минусы
Самодельные дровяные котлы активно используются для обогрева жилых помещений – это небольшие дачные домики и крупные частные домовладения, расположенные в местах, далеких от газовых магистралей. В качестве топлива для них используются дрова или каменный уголь. Угольные агрегаты отличаются высоким тепловыделением, но достать это топливо получается далеко не всегда. Поэтому люди отдают предпочтение дровяным моделям.
Давайте рассмотрим основные достоинства самодельных котлов на дровах:
- Не нужно разрешение на установку и эксплуатацию – мы вправе самостоятельно распоряжаться данным оборудованием;
- Дешевизна в эксплуатации – по сравнению с электрическим отоплением, обогрев дровами более дешев. А если обрести источник бесплатных поленьев, то останется потратиться только на сборку отопительного котла;
- Независимость от электросетей – это относится к самым простым агрегатам, в составе которых отсутствуют электрические узлы;
- Возможность реализации длительного горения – оно позволит снизить количество подходов для закладки все новых порций горючего;
- Дешевизна в сборке – самодельный котел на дровах для частного дома будет стоить дешевле, чем его заводской аналог.
Есть и некоторые недостатки:

Только постоянная чистка котла и его систематический плановый ремонт смогут обеспечить стабильную и эффективную работу агрегата на всем протяжении его эксплуатации.
- Самодельные дровяные котлы для отопления дома могут не выйти на максимальный КПД – сказываются ошибки кустарной сборки;
- Котлы на твердом топливе на угле и дровах требуют регулярной очистки – то есть, мы можем избавиться от необходимости частой закладки горючего, но с проблемой очистки справиться невозможно. Поэтому нам придется регулярно очищать оборудование от сажи и золы;
- Сложность самостоятельного монтажа – самодельные котлы длительного горения на дровах, с водяным контуром, могут показаться сложными в изготовлении. И чем меньше опыта работы с инструментами, тем более сложной покажется задача.
Кроме того, самодельные котлы длительного горения не отличаются нормальными внешними данными, хотя здесь все зависит от мастерства сборщика.
Помимо сажи и угольков, в котлах длительного горения может образовываться конденсат – он образуется в результате использования сырых дров.







