Котел на дровах своими руками. Принцип работы котла длительного горения
- Котел на дровах своими руками. Принцип работы котла длительного горения
- Водяной котел на дровах своими руками. Создаем котел отопления на дровах своими руками
- Отопительный котел на дровах своими руками. Котел длительного горения своими руками: чертежи изделий и ТОП-11 лучших моделей
- Котел на дровах своими руками чертежи. Котлы шахтного типа
- Самодельный котел для отопления дома. Домашняя технология производства отопительного оборудования
- Экономичный дровяной котел своими руками. Топливные агрегаты длительного горения
- Простой котел своими руками. Самодельные котлы отопления: пошаговая технология изготовления котла своими руками (газового, дровяного, электрического)
- Дровяной котел для водяного отопления.
Котел на дровах своими руками. Принцип работы котла длительного горения
В обычных твердотопливных агрегатах, одной закладки хватает на 6-7 часов горения. Соответственно, если в топку не будет добавлена очередная порция ресурсов, температура в помещении сразу же начнет снижаться. Это происходит из-за того, что основное тепло по помещению циркулирует по принципу свободного движения газа. Нагреваясь от пламени, воздух поднимается вверх и выходит наружу.
Теплового ресурса котла длительного горения хватает примерно на 1-2 суток с одной закладки дров. Некоторые модели могут поддерживать тепло до 7 суток.
За счет чего достигается такая экономичность и эффективность?

Схема работы котла
От обычного котла, ТТ котел длительного горения отличается наличием сразу двух камер сгорания. В первой стандартно сгорает само топливо, а во второй — выделившиеся при этом газы.
Большую роль в этом процессе играет своевременная подача кислорода, которую обеспечивает вентилятор.
Такой принцип был реализован сравнительно недавно. В 2000 году литовская компания Stropuva впервые презентовала эту технологию, которая стразу снискала уважение и популярность.

Самодельный котел длительного горения
Сегодня это является наиболее дешевым и практичным способом обогреть загородный дом, там, где не предусмотрена газификация и случаются перебои с электричеством.
Такие агрегаты работают по принципу горения верхнего топлива. Стандартно во всех печах топка располагается внизу, что позволяет забирать с пола холодный воздух, нагревать его и поднимать вверх.
Принцип работы этого котла в чем-то поход на пиролизный. Основное тепло здесь выделяется не от сгорания твердого топлива, а от выделившихся газов в результате этого процесса.
Сам процесс сгорания происходит в закрытом пространстве. Через телескопическую трубу выделившийся газ поступает во вторую камеру, где происходит его полное сгорание и смешивание с холодным воздухом, который подкачивает вентилятор.

ТТ котел длительного горения (схема)
Это беспрерывный процесс, который происходит до тех пор, пока полностью не прогорит топливо. Температура при таком горении достигается очень высокая – около 1200 градусов.
Как уже говорилось выше, в этом котле реализовано две камеры: основная большая и маленькая. В большую камеру закладывается само топливо. Ее объем может достигать 500 куб.дм.
Ресурсом для горения может выступать любое твердое топливо: опилки, угли, дрова, паллеты.
Постоянный приток воздуха осуществляет встроенный вентилятор. Преимуществом этого метода заключается в том, что твердое топливо расходуется крайне медленно.
Это значительно увеличивает экономичность такого отопительного прибора. Почему же так медленно прогорают дрова, по сравнению со стандартной печью?
Суть заключается в том, что прогорает лишь верхний слой, так как воздух нагнетается вентилятором сверху. Причем вентилятор добавляет воздух только после того, как полностью прогорит верхний слой.
На рынке представлено сегодня множество моделей, которые работают по одному и тому же принципу, но, в зависимости от габаритов, материала исполнения, дополнительных опций, имеют разную эффективность и экономичность.

Универсальность топлива
Универсальные ТТ котлы работают абсолютно на любом топливе, что значительно упростит владельцам их эксплуатацию. Более бюджетным вариантом является дровяной ТТ котел длительного горения. Он работает исключительно на дровах и другой вариант топлива в него закладывать нельзя.
Водяной котел на дровах своими руками. Создаем котел отопления на дровах своими руками
Иногда подобные устройства ничем не уступают промышленным моделям – как по показателям эффективности, так и по параметрам мощности. В домашних условиях при соблюдении определенных правил и обладая нужным опытом и знаниями, можно изготовить водяной котел отопления на дровах сложнейшей конструкции, который по своим рабочим характеристикам способен превзойти и устройство, собранное в заводских условиях.
Изготовление котла также будет зависеть и от того, насколько точно будут произведены расчеты.
Для того чтобы изготовить проточный котел отопления на дровах, потребуются такие материалы, которые несложно достать, и которые нередко находятся у владельцев частных домов под руками. Особое внимание необходимо уделить таким моментам, как расчет рабочей температуры котла, толщина метала и другим. Если металл будет слишком тонким или рабочая температура котла будет чрезмерно высокой, то металл может выгореть.

Чертеж самодельного котла на твердом топливе
Самодельный котел для водяного отопления на дровах можно изготовить и из старых или списанных котлов, которые ранее использовались в котельной или в паровозах. Таким образом, вы получите устройство, которое уже соответствует многим заданным условиям. Отопительный котел водяного отопления своими руками можно изготовить и из такого устройства, как готовая печь на дровах. Можно пройтись по пунктам, где принимают металлолом, по ближайшим свалкам, и получить котел за небольшую сумму или совершенно бесплатно. Самодельные котлы водяного отопления обойдутся тогда во много раз дешевле, чем котел, собранный на заводе.
Отопительный котел на дровах своими руками. Котел длительного горения своими руками: чертежи изделий и ТОП-11 лучших моделей
При доскональном и правильном изучении чертежей твердотопливных котлов вполне возможно сделать котел длительного горения своими руками надежным и экономичным.
Твердотопливные котлы уже не одно десятилетие пользуются немалой популярностью, хотя и имеют один существенный минус – они нуждаются в постоянной загрузке топлива (угля, дров и т. д.). Из-за этого недостатка от них нередко отказываются при обустройстве отопительной системы, но от него легко избавиться – сделать котел длительного горения своими руками, функционирующий почти на всех типах(исключительно твердого, разумеется).

Котел длительного горения своими руками

Для растопки котла можно использовать уголь
Как устроен самодельный котел длительного горения
Принцип работы
Схема работы таких котлов основывается на особенноститлеть несколько часов, производя при этом большое количество тепловой энергии. Характерно, что топливо в таком случае сжигается более полно, а количество отходов, как следствие, заметно снижается.

Чертеж котла
Обратите внимание! Замена активного сжигания тлением возможна ввиду особого устройства отопительного котла.
Основным элементом котла является топка, где горение ограничено, а интенсивность подачи воздуха контролируется при помощи специальных приспособлений. Топливо загружается два раза в сутки большими порциями, после чего медленно тлеет (ограниченное количество кислорода не позволяет ему полноценно гореть).
Труба, посредством которой выводится дым, пропускается через теплообменники и нагревает жидкость в отопительной системе. Выходит, достаточно лишь каждые 12 часов загружать топливо для бесперебойного обогрева дома.

Схема котла
Основные преимущества
Котлы длительного горения выделяются на фоне отопительных систем других типов. Конечно, основное преимущество – это именно длительность работы, но есть и другие важные моменты:
- низкая стоимость топлива;
- автономность;
- возможность обогрева больших площадей при минимальных расходах;
- легкость монтажа и эксплуатации;
- безопасность;
- возможность изготовления в домашних условиях.

Виды твердотопливных котлов
Устройство прибора
Для изготовления котла удобнее использовать металлическую трубу ø30 см и больше с толщиной стенок не менее 5 мм (иначе последние в скором времени прогорят из-за высокой температуры внутри прибора). Высота конструкции может колебаться между 80 см и 100 см, все зависит от площади помещения.
Труба для корпуса
Вне зависимости от модификации котел состоит из трех основных зон:
- загрузочной зоны;
- зоны тления и теплообразования
; - зоны окончательного сжигания, где горит зола и выводятся дымные газы.
Обратите внимание! Прибор, который ограничивает загрузочную зону и, соответственно, время тления, называют распределителем воздуха.
Данный элемент выполняется в виде металлического круга толщиной 5-6 мм с отверстием посередине, через которое с помощью телескопической трубы кислород подается в топку. Диаметр изделия должен быть несколько меньше диаметра корпуса. Высота регулируется посредством специальной крыльчатки.

Котел на дровах длительного горения

Котел на дровах длительного горения
Мнение эксперта:
Масальский А.В.
Редактор категории "строительство" на портале Stroyday.ru. Специалист по инженерным системам и водоотведению.
Обычно зона сжигания не превышает 5 см в высоту – если она будет большей, то топливо будет сгорать слишком быстро. К слову, кислородная труба может быть не только телескопической, но и цельной. Ее диаметр обычно составляет 6 см, в то время как размер отверстия в воздушном распределителе не превышает 2 см, дабы не пресыщать зону кислородом.

Котел длительного горения
Воздух может подаваться одним из двух способов:
- прямо из атмосферы;
- из специальной камеры нагрева (она располагается в верхней части конструкции), что обеспечивает более эффективную работу котла.
Для регулировки используется специальная воздушная заслонка.
Сверху приваривается дымоотводная труба. Она должна вестись перпендикулярно корпусу минимум 0,5 м, иначе образуется чрезмерная тяга.
Снизу оборудуется дверка для удаления продуктов горения. Чистку нужно проводить нечасто, ведь топливо будет сгорать полнее.
Существует два способа нагрева теплоносителя, у каждого есть свои сильные и слабые стороны.

Котел длительного горения
Котел длительного горения
Способ №1. К трубе теплообменника, проходящей через зону сгорания, подключается змеевик, посредством которого и происходит нагрев воды в баке.
Способ №2 . Формируется отдельный металлический бак, сквозь который пропускается труба дымохода. Разгоряченный дым подогревает жидкость.
Первый способ более эффективен, но вместе с тем более сложен в выполнении. Второй сделать проще, но он целесообразен только в небольших домах.
Цены на модельный ряд твердотопливных котлов
Твердотопливные котлы
Изготовление котла длительного горения
Котел
Сделать такую конструкцию в домашних условиях несложно, но для этого потребуются навыкии четкая инструкция.
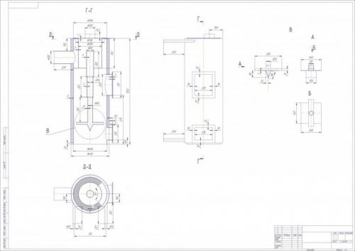
Котел на дровах своими руками чертежи. Котлы шахтного типа
Как уже упоминалось особенностью таких котлов является наличие двух камер: большой вертикальной загрузочной камеры (шахты) и камеры с теплообменником. Топливо поджигается снизу в первой камере и пламя через отверстие попадает в другую, где и отдает свою энергию теплоносителю через теплообменник.
Такие котлы могут быть, как с обычным сжиганием топлива, так и с пиролизным. В первом случае весь необходимый воздух подается через нижнюю дверку, а продукты горения, пройдя через теплообменник, удаляются в дымовую трубу. Во втором случае к месту горения подается ограниченное количество первичного воздуха, где дрова сгорают с выделением пиролизного газа. Кроме того такие конструкции оборудуются дополнительной камерой дожига, куда подается вторичный воздух и осуществляется сжигание газа. В верхней части теплообменной камеры расположена задвижка, которая отрывается при розжиге и позволяющая дымовым газам напрямую выходить в дымовую трубу.

Чертеж-схема котла шахтного типа с камерой дожига
1 — заслонка подачи первичного воздуха; 2 — нижняя дверка для поджига и чистки; 3 — решетка; 4 — дрова; 5 — загрузочная дверка (может располагаться и сверху); 12 — труба с нагретой водой (подача); 13 — пусковая заслонка; 14 — заслонка дымовой трубы; 15 — теплообменник; 16 — подача вторичного воздуха; 17 — камера дожига; 18 — обратка; 19 — слив; 20 — чистка; 21 — заслонка; 22 — колосниковая решетка; 25 — зольник.

Самодельный котел для отопления дома. Домашняя технология производства отопительного оборудования
В поисках ответа на вопрос, как сделать котел отопления своими руками достаточно быстро приходишь к убеждению, что ничего особенно сложного в этом нет. При условии грамотной организации производственного процесса. Удобнее отдельные детали делать на верстаке в оборудованной мастерской или ином месте, где можно сделать рабочий стол.
Изготовление деталей корпуса
Основу любого твердотопливного котла для отопления частного дома составляет топка, где температура достигает 1000 ⁰С и для ее сборки потребуются материалы с соответствующими характеристиками. Порядок изготовления корпуса следующий:
- При отсутствии жаропрочных сталей можно обойтись и обычной, но для обеспечения долговечности узла его стенки делаются двойными. Передняя, задняя, боковые и нижняя стенки вырезаются из стального листа при помощи угловой шлифовальной машинки;
- Чертежи котлов отопления имеют обозначения точных размеров всех деталей, которые переносятся на металлопрокат при помощи измерительного инструмента и большой линейки. Помимо стенок камеры из стальной профильной трубы нарезается необходимое количество для использования их в качестве ребер жесткости. Из стального уголка изготавливаются усилители для стыков между отдельными частями печи;
- В передней стенке необходимо проделать прямоугольное отверстие, соответствующее по размерам дверцам топочного и зольного бункеров.
Полезный совет: для выполнения сквозного прямоугольного отверстия нужной конфигурации наносим на металл разметку, по углам производим сверление листа при помощи электродрели. Угловой шлифовальной машинкой делаем сквозной порез в средней части и ведем его от центра к краю. Это позволит избежать лишних повреждений листа.

Изготовление емкостей для воды и теплообменников
Эффективная конструкция отопительного котла предусматривает наличие двух баков для воды. Их делают из нержавеющего стального листа, для сварки которого необходимо специальное оборудование и определенная квалификация. Тут лучше довериться профессионалам и заказать эти емкости в специализированной мастерской.

Конструкция теплообменника представляет собой набор из водопроводных труб. При помощи сварочного аппарата они соединяются таким образом, чтобы образовать проточный контур с максимально большой внешней поверхностью. Это обеспечит быструю и наиболее полную теплоотдачу от сгораемого топлива к теплоносителю.
Экономичный дровяной котел своими руками. Топливные агрегаты длительного горения
Идея создать своими руками твердотопливные котлы длительного горения наверняка многим покажется привлекательной. Прелесть таких конструкций в том, что закладывать дрова в них нужно лишь пару раз в сутки. Котел длительного горения отличается от традиционного агрегата тем, что в нем горение начинается с верхней части закладки топлива. При этом воздух в топливную камеру также подается сверху.
Схема котла длительного горения на твердом топливе предполагает наличие водяного контура вокруг его корпуса, поэтому вода в нем качественно прогревается на любом этапе процесса. Поскольку при работе котла горит не сразу вся закладка, а лишь верхний слой топлива, его хватает почти на 30 часов. Ряд универсальных твердотопливных котлов при использовании угля могут работать до 7 дней на одной закладке.
Данная конструкция не отличается конструктивной сложностью и не имеет каких-либо точных приборов, нуждающихся в подключении к электричеству. Поэтому цена на них вполне приемлема для потребителя. К тому же, собрать по готовым чертежам котел на твердом топливе своими руками вполне под силу домашнему мастеру. Можно сделать котел отопления своими руками и сэкономить немало денег.

Приведем несколько недостатков у данных конструкций. В работающий котел нельзя добавить топливо. Дрова для котла должны быть хорошо просушены (не более 20 % влажности) и распилены на небольшие поленья. Уголь можно применять только высокого качества, с малым содержанием шлаков. Кроме того, агрегаты данного типа ограничены по мощности – как правило, не более 40 кВт.
Еще одна разновидность котлов на твердом топливе – пеллетные агрегаты. Их отличие состоит в том, что в качестве топлива используются гранулы из отходов деревообработки. Большая часть промышленных моделей имеют особый бункер, из которого гранулы автоматически подаются в топку.
Простой котел своими руками. Самодельные котлы отопления: пошаговая технология изготовления котла своими руками (газового, дровяного, электрического)
Горячая вода по запросу и отопление — это современный комфорт, к которому все привыкли. Однако не так давно в истории горячая вода использовалась только для приготовления пищи и для еженедельного приема ванны.

Сложно поверить, что еще сто лет назад — горячая вода была настоящей роскошью. Чтобы не терять преимущества комфортной жизни на даче или во временном жилье, можно сделать котел самостоятельно.

Основы автономного водонагревателя
Суть отсутствия электросети — быть независимым от муниципальных источников. Быть свободным от ежемесячных счетов за коммунальные услуги и обеспечивать свой дом собственной энергией — это основа автономного образа жизни.

Сегодня многие предпочитают жить в уединении, далеко от городской и деревенской суеты, однако отказываться от благ современности — люди пока не готовы.

Для автономного водонагревателя вам понадобятся два предмета: энергия для тепла и вода. Что касается энергии, есть три основных источника, которые можно использовать для нагрева воды:
- Энергия солнца.
- Природные газы.
- Горящая древесина.
Использование дров для нагрева воды — удобно и дешево. Собирать топливо можно на территории проживания, даже если нет рядом компании, которая будет поставлять ресурс к дому.

Вариант примитивный, так как придется поддерживать огонь целый день, чтобы иметь доступ к благам современности. Также стоит учитывать, что потребление ресурса в зимний период — будет очень большим.

Использование энергии солнца доступно только на территориях, где оно есть постоянно. В России и странах СНГ мало используют этот вид энергии из-за климатических особенностей. Остается газ, который есть везде, даже в самых отдаленных уголках.

3 метода нагрева воды
Есть несколько практических способов нагрева воды, даже если рядом нет общих сетей. Эти способы помогут обеспечить даже небольшую баню горячей водой, если она находится глубоко в лесу или в заброшенном дачном поселке.
Самодельный газовый котле
Несмотря на то, что использование пропана не является безопасным источником энергии вне сети, во многих ситуациях это имеет смысл. Практически в каждом маленьком городке и почти на всех заправках есть этот газ. Есть частные компании по производству, которые заправят баллоны прямо на территории.
- Самый простой способ изготовления — взять старый баллон, разрезать его болгаркой, подвести внутренние коммуникации и начать использование. Без конкретного чертежа — сделать это практически невозможно.
- Более того, такой вариант не одобрит ни одна инстанция, поэтому умельцы используют систему на свой страх и риск. Водонагреватель эффективен, особенно подходит для обеспечения водой на заброшенных дачных участках, где есть только колодец.

Работать такое устройство будет по принципу стандартной газовой колонки, вода по отводам будет нагреваться за счет горения. Если блок будет достаточно мощным — можно подсоединить выход для отопления. Горячая вода будет совершать циркуляцию по кругу, постоянно проходя через огонь.

Электрический котел своими руками
Поможет запастись горячей водой на несколько часов. В отличие от газового метода, такой бойлер будет намного безопаснее. Сделать устройство не просто, так как нужно учесть все особенности электрической инженерии.
- В самом плохом случае — возникнет замыкание, деревянный дом превратится в угли меньше, чем за час.
- Поэтому экспериментируя с чертежами, нужно отдавать себе отчет в том, что вся ответственность всегда лежит только на владельце.
- Более того, установить готовый прибор своими руками — будет намного дешевле и безопаснее, чем создавать конструкцию с нуля.

Также стоит понимать, что для получения просто горячей воды метод более чем подходит, однако для отопления — нет. Огромное количество ресурсов будет потрачено для обеспечения даже небольшого дома теплом.

Чертежи самодельных котлов отопления лучше использовать от тех, кто имеет профильное образование в этой сфере.

Солнечный водонагреватель своими руками
Идеально подходит для дач, которые посещают в летний период. Метод производства довольно простой:
- Найдите старый сломанный водонагреватель. Чаще всего, такой имеется в подсобке или в гараже.
- Удалите все лишнее, оставив только бак.
- Покрасьте этот бак полностью в черный цвет.
- Подсоедините шланг к резервуару и наполните его холодной водой.
- В течение дня вода сама от солнца будет нагреваться. Черный цвет гарантирует то, что лучи буду беспощадно греть металл, создавая тепло внутри резервуара.

В жаркий летний период — температура воды в 50-60 градусов по такому методу — гарантирована. Безопасно, дешево и очень просто в создании. Можно даже усилить воздействие солнца, построив коробку вокруг бака.

Нужно покрасить внутреннюю часть коробки в черный цвет. Верхняя панель должна быть стеклянной, чтобы сквозь нее проходил солнечный свет. В качестве дополнительного материала можно использовать старое стекло или даже осколки.

Самый главный плюс — минимум расходов, использование практически бесплатно. Однако такого варианта будет недостаточно для зимнего отопления.
Дровяной котел для водяного отопления.
Твердотопливный котел с водяным контуром — агрегат с автономным питанием, способный качественно отопить маленькие квартиры и достаточно большие площади.
В качестве источника энергии можно использовать дрова, торф, паллеты, уголь и экогорошек.
Прибор отлично подходит для установки в доме, не имеющего подвода к центральной системе отопления или газовой магистрали.
| Место | Наименование | Цена |
|---|---|---|
| ТОП-10 лучших твердотопливных котлов с водяным контуром | ||
| 1 | Узнать цену | |
| 2 | Узнать цену | |
| 3 | Узнать цену | |
| 4 | Узнать цену | |
| 5 | Узнать цену | |
| 6 | Узнать цену | |
| 7 | Узнать цену | |
| 8 | Узнать цену | |
| 9 | Узнать цену | |
| 10 | Узнать цену |
Главная особенность таких агрегатов — наличие водяного контура . Они могут быть одноконтурными и двухконтурными. Первые способны только отапливать помещение, а вторые — дополнительно подготавливать горячую воду для последующего использования.
Топливо подается вручную или автоматически, в зависимости от модели . Если это автоматика, то котел имеет резервуар для размещения сырья. Топливо может загружаться в систему в течение недели без посторонней помощи.
Такие модели имеют высокую цену, поэтому человек предпочитает выбирать котел с ручной кладкой.
ВАЖНО!
Одной закладки топлива хватает на 3-4 часа.
Чтобы составить образ твердотопливного котла с водяным контуром, необходимо рассмотреть принцип его действия :
- Установка необходимой температуры в теплоносителе, подача топлива.
- Нагрев теплообменника в водяном контуре.
- Получаемая тепловая энергия аккумулирует со стенок водяной рубашки и происходит нагрев воды.
- Несмотря на вид циркуляции воды в системе (естественный или принудительный), дом наполняется теплом за короткий промежуток времени.

Виды устройств
Каждый прибор имеет свои уникальные технические характеристики.
Но все модели можно разделить на несколько видов, в зависимости от типа процесса горения :
- Традиционные . Отличительная особенность — процесс горения происходит снизу вверх. Топливо загружается вручную, продукты горения выводятся через дымоход. Котел не требует электричества для функционирования.
- Длительного горения . Особенности — процесс сгорания идет сверху вниз, топливо закладывается сверху. Агрегат рассчитан на бесперебойную работу в течение суток без «дозоправки». За счет сложной конструкции котлы длительного горения имеют высокую стоимость.
- Пиролизные . Особенности — наличие двух топливных камер: первая предназначена для сгорания твердого топлива, вторая — потребляет газ, который образовался в первой. Преимущества — высокий КПД, минимум отходов, экологичность. Но такие котлы требуют особого внимания — устанавливать их разрешено только в помещениях с влажностью 17-20%.
- Универсальные . Особенности — функционирование на всех видах твердого топлива. Если сменить горелку, то можно использовать жидкое горючее. Модели оснащаются системой безопасности, которая исключает самопроизвольное возгорание или прекращение работы.

Достоинства и недостатки
Достоинства:
- высокое качество сборки, надежность и безопасность оборудования;
- длительный срок эксплуатации — некоторые модели способны прослужить более 10 лет;
- экономичный расход топлива, низкая себестоимость агрегатов и сырья;
- универсальность;
- нет необходимости производить регулярный технический осмотр;
- продукты горения пригодны для вторичного использования.
Недостатки :
- дровяные модели имеют низкий КПД — не выше 80%;
- необходимость каждые 5-6 часов загружать топливо в модели с ручной подачей.
Как выбрать и на что обратить внимание?
Основные рекомендации :
- Мощность . Здесь покупателю следует обратить внимание на технические характеристики понравившейся модели. Производители указывают максимальную мощность, температуру, предполагаемую площадь.
- Принцип работы . Главный нюанс — количество контуров. Агрегаты с одним контуром только выдают тепло в комнаты, а с двумя — дополнительно обеспечивают человека горячей водой для бытовых нужд.
- Возможности . Приборы оснащаются различными системами для контроля процесса горения и фиксирования необходимой температуры. Некоторые современные модели оснащаются варочными панелями, на которых можно готовить пищу.
- Тип топлива и стоимость . Здесь человеку лучше отталкиваться от личных предпочтений и финансовых возможностей. Экономичным считается горючее в виде угля, дровяного сырья.

