Как сделать твердотопливный котёл своими руками. Сильные и слабы стороны
- Как сделать твердотопливный котёл своими руками. Сильные и слабы стороны
- Простой котел своими руками. Домашняя технология производства отопительного оборудования
- Водяной котел своими руками. Создаем котел отопления на дровах своими руками
- Самодельные твердотопливные котлы. Разновидности котлов
- Твердотопливный котел своими руками чертеж. Котлы шахтного типа
- Твердотопливный котел 100 квт своими руками. Как сделать своими руками котел твердотопливный длительного горения: чертежи и схемы
- Экономичный дровяной котел своими руками. Отопление дровами – плюсы и минусы
Как сделать твердотопливный котёл своими руками. Сильные и слабы стороны
Крупные габариты и сложность выполнения своими руками чертежа твердотопливного котла длительного горения делает благоприятным использование подобных приборов только в крупных коттеджах. Что касается небольших дач, то для них рекомендуется выбирать более экономичные варианты.
Основными достоинствами ТТ котлов длительного горения являются:
- Высокий КПД (около 95%)
- Автономность отопления.
- Экономичность.
- Надежность и долговечность.
- Высокая эффективность.
- Доступность топлива.
- Экологичность.
- Широкий выбор топлива (уголь, дрова, опилки, паллеты).

Имеются также недостатки:
- Большие габариты.
- Необходимость оборудования отдельной котельной.
- Сложное устройство котла длительного горения на дровах.
- Нужда в постоянно обслуживании.
Котлы данного типа имеют достаточно приличную стоимость, однако такие конструкции можно изготовлять и самостоятельно.
Преимущества самодельных агрегатов:
- Дешевизна.
- Универсализм в плане используемого топлива.
- Возможность последующих доработок с целью увеличения эффективности и добавления мощности.
Сложнее всего – сделать конструкцию цилиндрической: для этого необходимо использовать вальцовочный станок. Если его нет, существует вариант со старыми пропановыми баллонами. Также сгодится любая труба подходящего сечения: толщина металлических стенок должна быть не менее 5 мм. В деревнях привыкли довольствоваться небольшими кирпичными печами, демонстрирующими хорошую эффективность при обогреве одноэтажных домов и дач. Если же требуется отапливать обширный коттедж, то в таком случае потребуется большой запас топлива. Кроме того, не избежать больших перепадов температуры по мере удаления от печи, да и ухаживать за ней намного сложнее, чем за твердотопливным котлом.
Простой котел своими руками. Домашняя технология производства отопительного оборудования
В поисках ответа на вопрос, как сделать котел отопления своими руками достаточно быстро приходишь к убеждению, что ничего особенно сложного в этом нет. При условии грамотной организации производственного процесса. Удобнее отдельные детали делать на верстаке в оборудованной мастерской или ином месте, где можно сделать рабочий стол.
Изготовление деталей корпуса
Основу любого твердотопливного котла для отопления частного дома составляет топка, где температура достигает 1000 ⁰С и для ее сборки потребуются материалы с соответствующими характеристиками. Порядок изготовления корпуса следующий:
- При отсутствии жаропрочных сталей можно обойтись и обычной, но для обеспечения долговечности узла его стенки делаются двойными. Передняя, задняя, боковые и нижняя стенки вырезаются из стального листа при помощи угловой шлифовальной машинки;
- Чертежи котлов отопления имеют обозначения точных размеров всех деталей, которые переносятся на металлопрокат при помощи измерительного инструмента и большой линейки. Помимо стенок камеры из стальной профильной трубы нарезается необходимое количество для использования их в качестве ребер жесткости. Из стального уголка изготавливаются усилители для стыков между отдельными частями печи;
- В передней стенке необходимо проделать прямоугольное отверстие, соответствующее по размерам дверцам топочного и зольного бункеров.
Полезный совет: для выполнения сквозного прямоугольного отверстия нужной конфигурации наносим на металл разметку, по углам производим сверление листа при помощи электродрели. Угловой шлифовальной машинкой делаем сквозной порез в средней части и ведем его от центра к краю. Это позволит избежать лишних повреждений листа.

Изготовление емкостей для воды и теплообменников
Эффективная конструкция отопительного котла предусматривает наличие двух баков для воды. Их делают из нержавеющего стального листа, для сварки которого необходимо специальное оборудование и определенная квалификация. Тут лучше довериться профессионалам и заказать эти емкости в специализированной мастерской.

Конструкция теплообменника представляет собой набор из водопроводных труб. При помощи сварочного аппарата они соединяются таким образом, чтобы образовать проточный контур с максимально большой внешней поверхностью. Это обеспечит быструю и наиболее полную теплоотдачу от сгораемого топлива к теплоносителю.
Водяной котел своими руками. Создаем котел отопления на дровах своими руками
Иногда подобные устройства ничем не уступают промышленным моделям – как по показателям эффективности, так и по параметрам мощности. В домашних условиях при соблюдении определенных правил и обладая нужным опытом и знаниями, можно изготовить водяной котел отопления на дровах сложнейшей конструкции, который по своим рабочим характеристикам способен превзойти и устройство, собранное в заводских условиях.
Изготовление котла также будет зависеть и от того, насколько точно будут произведены расчеты.
Для того чтобы изготовить проточный котел отопления на дровах, потребуются такие материалы, которые несложно достать, и которые нередко находятся у владельцев частных домов под руками. Особое внимание необходимо уделить таким моментам, как расчет рабочей температуры котла, толщина метала и другим. Если металл будет слишком тонким или рабочая температура котла будет чрезмерно высокой, то металл может выгореть.

Чертеж самодельного котла на твердом топливе
Самодельный котел для водяного отопления на дровах можно изготовить и из старых или списанных котлов, которые ранее использовались в котельной или в паровозах. Таким образом, вы получите устройство, которое уже соответствует многим заданным условиям. Отопительный котел водяного отопления своими руками можно изготовить и из такого устройства, как готовая печь на дровах. Можно пройтись по пунктам, где принимают металлолом, по ближайшим свалкам, и получить котел за небольшую сумму или совершенно бесплатно. Самодельные котлы водяного отопления обойдутся тогда во много раз дешевле, чем котел, собранный на заводе.
Самодельные твердотопливные котлы. Разновидности котлов
Все существующие твердотопливные котлы можно условно разделить на 3 группы:
Существует и ряд иных классифицирующих признаков, но именно принцип сгорания топлива является определяющим при выборе котла.
Пиролизный
В котлах подобного типа топливо сгорает медленно при минимальном доступе воздуха, за счет чего увеличивается количество горючего газа и при повторном его сгорании КПД котла повышается до 85-90%. И хотя некоторые считают, что изготовить собственноручно такой котел очень сложно, мы расскажем и, главное, покажем, как правило сделать пиролизный твердотопливный котел длительного горения своими руками (чертежи см.ниже).
Фото 1 Схема устройства пиролизного котла на дровах
Классический
Конструктивно это стандартная деревянная печь, где за счет меньшего размера топочной камеры топливо сгорает чуть медленнее. Как правило, именно такие котлы предпочитают изготавливать самостоятельно. О том, как сделать такой классический агрегат, вы также узнаете в статье.
Фото 2 Схема классического котла длительного горения
Конструкция таких котлов примечательна не только простотой изготовления, но и возможностью подключения второго контура для получения горячей воды одновременно с отоплением.
Это наиболее эффективные котлы, коэффициент полезного действия которых приближается к 95%. Основное преимущество в полностью автоматическом процессе, где загруженные в бункер пеллеты посредством шнека пересыпаются в камеру сгорания. Сложная конструкция и автоматика делают его самостоятельное изготовление затрудненным.
Фото 3 Схема твердотопливного котла с автоматической подачей пеллет
Разновидности топлива
На сегодняшний день твердое топливо на российском рынке представлено в большом ассортименте. Это:
- дрова, в том числе евро (спрессованные хвойные или лиственные опилки),
- гранулированные биопеллеты (спрессованные опилки, торф, отходы сельского хозяйства и т.д.);
- уголь – все разновидности и фракции каменного и антрацит;
- отходы деревообрабатывающего и сельскохозяйственного производства.
Для того, чтобы отопление было рентабельным, рекомендуется приобретать или изготавливать универсальный котел, который может функционировать на любом виде топлива
Если вы решили приобрести такое оборудование, обратите внимание на комбинированные котлы отопления. которые работают на альтернативных видах топлива, причем переключение осуществляется очень быстро и легко
Это могут быть следующие варианты:
- электрические комбо;
- твердотопливные комбо;
- универсальные, использующие любые комбинации топлива.
Конструкция и принцип работы
Принцип работы такого котла относительно прост – снизу подтягивается холодный воздух, проходя через стенки камеры, он нагревается, поднимается вверх и обогревает помещение.
Фото 4 Делаем котел из подручных материалов
В котлах длительного горения, в отличие от традиционных, доступ воздуха должен быть максимально ограничен. Для того, чтобы увеличить продолжительность горения и сократить количество свободного пространства в камере сгорания, необходимо загружать топливо как можно больше и плотнее.
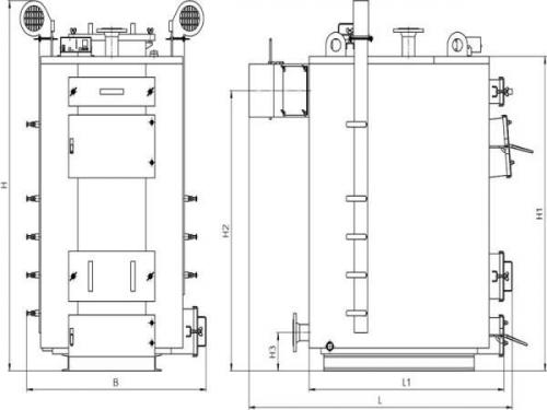
Твердотопливный котел своими руками чертеж. Котлы шахтного типа
Как уже упоминалось особенностью таких котлов является наличие двух камер: большой вертикальной загрузочной камеры (шахты) и камеры с теплообменником. Топливо поджигается снизу в первой камере и пламя через отверстие попадает в другую, где и отдает свою энергию теплоносителю через теплообменник.
Такие котлы могут быть, как с обычным сжиганием топлива, так и с пиролизным. В первом случае весь необходимый воздух подается через нижнюю дверку, а продукты горения, пройдя через теплообменник, удаляются в дымовую трубу. Во втором случае к месту горения подается ограниченное количество первичного воздуха, где дрова сгорают с выделением пиролизного газа. Кроме того такие конструкции оборудуются дополнительной камерой дожига, куда подается вторичный воздух и осуществляется сжигание газа. В верхней части теплообменной камеры расположена задвижка, которая отрывается при розжиге и позволяющая дымовым газам напрямую выходить в дымовую трубу.

Чертеж-схема котла шахтного типа с камерой дожига
1 — заслонка подачи первичного воздуха; 2 — нижняя дверка для поджига и чистки; 3 — решетка; 4 — дрова; 5 — загрузочная дверка (может располагаться и сверху); 12 — труба с нагретой водой (подача); 13 — пусковая заслонка; 14 — заслонка дымовой трубы; 15 — теплообменник; 16 — подача вторичного воздуха; 17 — камера дожига; 18 — обратка; 19 — слив; 20 — чистка; 21 — заслонка; 22 — колосниковая решетка; 25 — зольник.

Твердотопливный котел 100 квт своими руками. Как сделать своими руками котел твердотопливный длительного горения: чертежи и схемы
Перед тем, как начать изготовление котла, необходимо определиться с его конструкцией. Ее выбор зависит от назначения агрегата. Если он предназначен для отопления небольшого хозяйственного помещения, гаража или дачного домика, то делать в нем водяной контур не обязательно. Обогрев такого помещения будет происходить непосредственно от поверхности котла, путем конвекции воздушных масс в помещении, как от печи. Для большей эффективности можно устроить принудительное обдувание агрегата воздухом при помощи вентилятора. При наличии системы жидкостного отопления в помещении, необходимо предусмотреть устройство в котле контура в виде змеевика из трубы или другой аналогичной конструкции.

Схема подключения твердотопливного котла к системе отопления
Выбор варианта зависит и от типа твердого топлива, которое нужно будет использовать. Для отопления обычными дровами требуется увеличенный объем топки, а для применения мелких топливных гранул можно устроить специальную емкость, из которой гранулированное топливо подается в котел автоматически. Для изготовления котла твердотопливного длительного горения своими руками, чертеж можно взять и универсальный. Он подойдет для любого вида используемого твердого топлива.


Экономичный дровяной котел своими руками. Отопление дровами – плюсы и минусы
Самодельные дровяные котлы активно используются для обогрева жилых помещений – это небольшие дачные домики и крупные частные домовладения, расположенные в местах, далеких от газовых магистралей. В качестве топлива для них используются дрова или каменный уголь. Угольные агрегаты отличаются высоким тепловыделением, но достать это топливо получается далеко не всегда. Поэтому люди отдают предпочтение дровяным моделям.
Давайте рассмотрим основные достоинства самодельных котлов на дровах:
- Не нужно разрешение на установку и эксплуатацию – мы вправе самостоятельно распоряжаться данным оборудованием;
- Дешевизна в эксплуатации – по сравнению с электрическим отоплением, обогрев дровами более дешев. А если обрести источник бесплатных поленьев, то останется потратиться только на сборку отопительного котла;
- Независимость от электросетей – это относится к самым простым агрегатам, в составе которых отсутствуют электрические узлы;
- Возможность реализации длительного горения – оно позволит снизить количество подходов для закладки все новых порций горючего;
- Дешевизна в сборке – самодельный котел на дровах для частного дома будет стоить дешевле, чем его заводской аналог.
Есть и некоторые недостатки:

Только постоянная чистка котла и его систематический плановый ремонт смогут обеспечить стабильную и эффективную работу агрегата на всем протяжении его эксплуатации.
- Самодельные дровяные котлы для отопления дома могут не выйти на максимальный КПД – сказываются ошибки кустарной сборки;
- Котлы на твердом топливе на угле и дровах требуют регулярной очистки – то есть, мы можем избавиться от необходимости частой закладки горючего, но с проблемой очистки справиться невозможно. Поэтому нам придется регулярно очищать оборудование от сажи и золы;
- Сложность самостоятельного монтажа – самодельные котлы длительного горения на дровах, с водяным контуром, могут показаться сложными в изготовлении. И чем меньше опыта работы с инструментами, тем более сложной покажется задача.
Кроме того, самодельные котлы длительного горения не отличаются нормальными внешними данными, хотя здесь все зависит от мастерства сборщика.
Помимо сажи и угольков, в котлах длительного горения может образовываться конденсат – он образуется в результате использования сырых дров.