Дровяной котел своими руками. Как увеличивается длительность горения твердого топлива
- Дровяной котел своими руками. Как увеличивается длительность горения твердого топлива
- Котел с высоким кпд своими руками. С чего всё началось
- Котел водяного отопления на дровах своими руками. Котлы с пиролизным типом горения
- Твердотопливный котел длительного горения своими руками: чертежи. Виды твёрдого топлива для котлов отопления на фото
- Котел из трубы своими руками. Твердотопливный котел своими руками
- Твердотопливный котел 100 квт своими руками. Как сделать своими руками котел твердотопливный длительного горения: чертежи и схемы
- Экономичный дровяной котел своими руками. Котел длительного горения своими руками: чертежи изделий и ТОП-11 лучших моделей
- Твердотопливный котел своими руками чертеж. Как сделать своими руками котел твердотопливный длительного горения: чертежи и схемы
Дровяной котел своими руками. Как увеличивается длительность горения твердого топлива
Мечта многих домовладельцев – поставить котел на твердом топливе , к которому не придется бегать с дровами каждые 4—6 часов. Пользуясь этим, производители и продавцы отопительной техники применяют приставку «продолжительность горения» ко всем подряд теплогенераторам, в том числе и пеллетным, работающим самостоятельно до 7 суток.

Разновидности классических котлов с увеличенной топливной камерой
Продолжительность процесса горения принято обосновывать использованием режима тления при ограниченной подаче воздуха. Но сжигать дрова и уголь подобным способом неэффективно, и вот почему:
- Дровяные и угольные котлы достигают своего КПД 70—75% во время максимального горения. При тлении эффективность агрегата снижается до 40—50% (как у обычной буржуйки).
- Тлеющие дрова выделяют мало тепловой энергии. Кому нужен «долгоиграющий» теплогенератор, не обогревающий дом в полной мере?
- Свежесрубленное дерево определенных пород (например, тополь, ива) и низкокалорийное топливо невозможно нормально сжечь в режиме тления.

Заводской котел с увеличенным топливником, где дрова горят сверху вниз
В действительности, твердотопливные котлы длительного горения – это те, что имеют увеличенную топливную камеру, только ее размер влияет на продолжительность процесса при прочих равных условиях. Принцип прост: чем больше в топке дров, тем дольше они горят и выделяют тепло.
Бытовые котлы, способные работать с одной закладки 8—12 часов на дровах и до 24 часов на угле , бывают таких видов:
- классические, с принудительной подачей воздуха;
- действующие по принципу верхнего горения (типа прибалтийской «Стропувы»).
Эти конструкции ТТ-котлов вполне реально изготовить в домашних условиях при наличии необходимого инструментария и практики в сварочном деле. Еще на просторах интернета можно встретить чертежи шахтных котлов на твердом топливе и опилках, но такие отопители довольно громоздкие и непростые в изготовлении, а потому заслуживают отдельной темы.
Котел с высоким кпд своими руками. С чего всё началось
Perelesnik Пользователь FOUMHOUSE
В мой дом заведён газ, но я периодически задумывался над тем, чтобы перейти на отопление твёрдым топливом. Останавливало лишь то, что газовое отопление было выгодно, и переход на дрова оказывался не рентабельным. Дом я отапливал электродным котлом мощностью 7 кВт, работающим в связке с кондиционером, который эксплуатировался «на обогрев». При сильных заморозках дом дополнительно подтапливался котлом, работающим на газе. И вот газ подорожал…
Именно увеличение цены на газ стало тем событием, которое привело к разработке ракетного котла.
Прежде, чем иди и сразу покупать «нечто» под названием «твердотопливный котёл», Perelesnik начал изучать предмет. Он ознакомился с перечнем оборудования, предлагаемого в магазинах, посмотрел, как работают котлы у соседей, понял, какие наиболее частые проблемы возникают, изучил отзывы в Интернете.

После «мозгового штурма» появился список требований, которым должно отвечать устройство - с точки зрения Perelesnik-а :
- Возможность стабильной работы на мощности от 2 до 20 кВт. Это связано с особенностями климата в регионе проживания форумчанина. Зимой температура с месяц может держаться около 0°C, а потом резко на неделю упасть до -25…30°C. В осенне-весенний период температура находится в пределах +5…+10°C. Т.к. дом в межсезонье также нужно отапливать, но от котла не требуется максимальная мощность, нужен «гибко» настраиваемый аппарат.
- Котёл должен быть «всеядным», т.е. гореть в топке должно всё, что может гореть – дрова, топливные брикеты, уголь, отходы и т.д., включая влажное топливо.
- Конструкция котла должна предусматривать закладку поленьев диаметром до 20 см. Это уменьшит необходимость в колке дров.
- Должен работать с ночи до утра на одной закладке топлива. При сильном морозе количество полных закладок топлива не должно превышать трёх.
- Полная энергонезависимость. Устройство должно работать без необходимости его подключения к электрической сети. В случае обрыва проводов или отключения энергии, работу циркуляционного насоса (он должен прокачивать теплоноситель) обеспечивает резервная система питания.
Котел водяного отопления на дровах своими руками. Котлы с пиролизным типом горения
Для пиролизных котлов также используется твердое топливо, в частности дрова, однако, принцип их работы кардинально отличается от описанных выше установок. Они способны намного дольше и эффективнее отапливать дом, а топливо расходуют более экономно. В связи с этим стоимость таких агрегатов примерно в 1,5-2 раза больше, чем остальных.
Секрет газогенераторных (пиролизных) котлов в том, что под воздействием высокой температуры и при недостатке воздуха древесина преобразуется в древесный уголь, выделяя пиролизный газ.
Для такой реакции необходима температура от 200 ℃ до 800 ℃. При этом выделяется большое количество энергии, которая просушивает дрова и нагревает воздух. Пиролизный газ по трубам перемещается в камеру сгорания, где при смешении с воздухом возгорается – так генерируется большая часть тепла.

Активные углероды участвуют в окислительных процессах при горении пиролизного газа, поэтому выходящий из трубы дым состоит преимущественно из углекислого газа и пара – содержание вредных компонентов ничтожно мало. К тому же, пиролизные котлы в принципе выделяют намного меньше дыма, чем классические установки. Поскольку топливо сгорает практически без остатка, газогенераторные котлы нуждаются в чистке довольно редко.
Стоит отметить, что довольно высокой температуры горения можно добиться даже при наличии сырых дров, однако, в таком случае производительность котла упадет практически вдвое, а значит, настолько же увеличится расход топлива.
Благодаря автоматике интенсивность горения в таком котле можно регулировать, чтобы экономить топливо и создать в помещении оптимальную температуру.
Обратите внимание, что изготовить пиролизный котел отопления на твердом топливе своими руками довольно сложно и очень опасно. В случае ошибок в сборке такая установка может взорваться.
Твердотопливный котел длительного горения своими руками: чертежи. Виды твёрдого топлива для котлов отопления на фото
- Торфяные брикеты
- Дрова для твердотопливного котла
- Древесный уголь для твердотопливных отопительных котлов
- Топливные гранулы для отопительных котлов
- Древесные топливные брикеты для котлов на твёрдом топливе
- Евродрова (топливные брикеты для пикника)
- Брикеты из переработанного мусора
- Древесные опилки для котлов отопления
С целью повышения рентабельности и эффективности системы отопления можно изготовить универсальный агрегат, который сможет работать с различными видами топлива.
Выбор типа и конструктивного исполнения отопительного котла напрямую зависит от того, каким топливом вы собираетесь пользоваться, требуемой производительности системы отопления, а также места, где он будет установлен. Для самостоятельного изготовления подходят следующие модификации твердотопливных отопительных агрегатов:
- Классические
Оснащаются стальным или чугунным теплообменником, могут использоваться и для отопления, и для целей горячего водоснабжения. КПД таких котлов составляет около 85%.
Классический котёл на твёрдом топливе
- Пиролизные
Обеспечивают раздельное сгорание топлива и выделяемых при этом летучих газов, благодаря чему существенно повышается эффективность и, следовательно, экономичность отопительной системы.
Схема пиролизного котла на твердом топливе
- Пеллетные
Эффективность этой разновидности котлов отопления достигает 90%. Главным их достоинством является высокая степень автоматизации рабочих процессов, а недостатком – сложность конструкции.
Принцип работы пеллетного котла
- Длительного горения
Способны непрерывно работать на протяжении всего отопительного сезона, требуя загрузки топлива 1 раз в несколько суток, что выгодно отличает их от классических твердотопливных котлов.
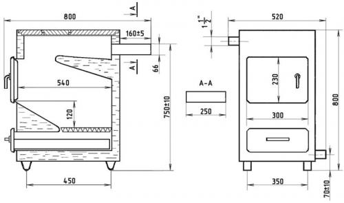
Котел из трубы своими руками. Твердотопливный котел своими руками
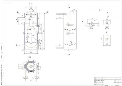
Рассмотрим на примере наиболее популярного котла с верхним горением (рис.3). В случае необходимости размеры можно менять пропорционально указанным в чертеже. Отличительной особенностью конструкции является труба, которая служит регулятором подачи воздуха и теплообменником одновременно. Газы, выделяемые в процессе тления топлива, поднимаются вверх и воспламеняются в верхней топке.
Для изготовления необходимы материалы, описанные в разделе 2: трубы, листовая сталь, уголок, утеплитель, асбокартон, электроды.
Первый этап самодельного котла включает следующие шаги:
- Сваривают цилиндрический корпус из трубы диаметром 45 см длиной 150см.
- Днище закрывают вырезанным из листовой стали кругом с помощью сварки.
- В трубе нижнего диаметра (нижняя часть) вырезают прямоугольное отверстие под дверку зольника. Ее можно изготовить также из стального листа или приобрести готовую под размер.
- Топка располагается в верхней части, под ее дверку также вырезают прямоугольник. Дверку обязательно изолируют асбокартоном и асбошнуром по периметру. Все дверки должны закрываться задвижками.
- Из профильной трубы сваривают патрубок для выхода дыма, который будет вставляться в дымоход.
Важно! На поверхности патрубка из-за перепада температур будет образовываться влага (конденсат), ведущая к коррозии, поэтому сварочные швы должны быть высокого качества
- К корпусу котла приваривают ножки из равнополочного уголка.
- Вырезают верхнюю крышку диаметром 46 см, которая будет одеваться сверху на цилиндрический корпус.
Теплообменник для твердотопливного котла своими руками
Второй этап – производство теплообменника:
- Из металлического листа сваривают трубу теплообменника диаметром 40 см длиной 130 см.
- Вставляют ее в цилиндрический корпус, фиксируют зазор в 5 см между трубами, благодаря чему будет образовываться «водяная рубашка».
- Разница в длине труб теплообменника и наружной должна быть не менее 20см. Трубу в трубе фиксируют сваркой, используя заготовленные металлические кольца.
- В верхней и нижней зоне водяной рубашки устанавливают патрубки: один – для подачи, другой – для выхода теплоносителя. Для их изготовления используют трубу диаметром 5 см, на внешней стороне накручивают резьбу, через которую они будут подсоединены к трубам отопительной системы.
- Распределительную трубу, через которую будет подаваться воздух, сваривают из металла большей толщины, чем для корпуса и теплообменника (не менее 5 мм диаметром 6 см). Длину трубы делают на 10 см меньше длины трубы теплообменника (120 см).
Важно! Распределительная труба находится в зоне высоких температур и со временем деформируется и прогорает, поэтому для ее изготовления используется металл толщиной 5 мм и более
- Труба вставляется в подготовленный диск с готовым отверстием. Металлический стальной диск диаметром 38 см приваривается к трубе.
- К основанию диска приваривают минимум 4 уголка, выполняющие роль крыльчатки.
- К верхней части трубы устанавливают задвижку для порционной подачи воздуха и приваривают петлю, на которой фиксируют цепь для поднятия трубы.
Внимание! Чтобы улучшить теплообмен в верхней части трубы устанавливают вентилятор для принудительного наддува
Как правильно собрать котел
После выполнения двух основных этапов приступают к завершающему.
Третий этап – сборка котла:
- Выбирают место установки котла, проверяют уровнем, чтобы не было никаких перепадов, которые могут ухудшить работу теплогенератора.
- Крышку с распределительной трубой натягивают на корпус, предварительно проложив асбошнур. Крышку можно также приварить к корпусу.
- Дымовой патрубок вставляют в дымоход.
- Через выходящие патрубки с резьбой котел подсоединяют к системе отопления дома.
- Систему заполняют водой и выполняют проверку работы котла при неполной его загрузке.
- Если тест прошел нормально, котел загружают на полную мощность.
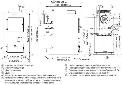
Твердотопливный котел 100 квт своими руками. Как сделать своими руками котел твердотопливный длительного горения: чертежи и схемы
Перед тем, как начать изготовление котла, необходимо определиться с его конструкцией. Ее выбор зависит от назначения агрегата. Если он предназначен для отопления небольшого хозяйственного помещения, гаража или дачного домика, то делать в нем водяной контур не обязательно. Обогрев такого помещения будет происходить непосредственно от поверхности котла, путем конвекции воздушных масс в помещении, как от печи. Для большей эффективности можно устроить принудительное обдувание агрегата воздухом при помощи вентилятора. При наличии системы жидкостного отопления в помещении, необходимо предусмотреть устройство в котле контура в виде змеевика из трубы или другой аналогичной конструкции.

Схема подключения твердотопливного котла к системе отопления
Выбор варианта зависит и от типа твердого топлива, которое нужно будет использовать. Для отопления обычными дровами требуется увеличенный объем топки, а для применения мелких топливных гранул можно устроить специальную емкость, из которой гранулированное топливо подается в котел автоматически. Для изготовления котла твердотопливного длительного горения своими руками, чертеж можно взять и универсальный. Он подойдет для любого вида используемого твердого топлива.


Экономичный дровяной котел своими руками. Котел длительного горения своими руками: чертежи изделий и ТОП-11 лучших моделей
При доскональном и правильном изучении чертежей твердотопливных котлов вполне возможно сделать котел длительного горения своими руками надежным и экономичным.
Твердотопливные котлы уже не одно десятилетие пользуются немалой популярностью, хотя и имеют один существенный минус – они нуждаются в постоянной загрузке топлива (угля, дров и т. д.). Из-за этого недостатка от них нередко отказываются при обустройстве отопительной системы, но от него легко избавиться – сделать котел длительного горения своими руками, функционирующий почти на всех типах(исключительно твердого, разумеется).

Котел длительного горения своими руками

Для растопки котла можно использовать уголь
Как устроен самодельный котел длительного горения
Принцип работы
Схема работы таких котлов основывается на особенноститлеть несколько часов, производя при этом большое количество тепловой энергии. Характерно, что топливо в таком случае сжигается более полно, а количество отходов, как следствие, заметно снижается.

Чертеж котла
Обратите внимание! Замена активного сжигания тлением возможна ввиду особого устройства отопительного котла.
Основным элементом котла является топка, где горение ограничено, а интенсивность подачи воздуха контролируется при помощи специальных приспособлений. Топливо загружается два раза в сутки большими порциями, после чего медленно тлеет (ограниченное количество кислорода не позволяет ему полноценно гореть).
Труба, посредством которой выводится дым, пропускается через теплообменники и нагревает жидкость в отопительной системе. Выходит, достаточно лишь каждые 12 часов загружать топливо для бесперебойного обогрева дома.

Схема котла
Основные преимущества
Котлы длительного горения выделяются на фоне отопительных систем других типов. Конечно, основное преимущество – это именно длительность работы, но есть и другие важные моменты:
- низкая стоимость топлива;
- автономность;
- возможность обогрева больших площадей при минимальных расходах;
- легкость монтажа и эксплуатации;
- безопасность;
- возможность изготовления в домашних условиях.

Виды твердотопливных котлов
Устройство прибора
Для изготовления котла удобнее использовать металлическую трубу ø30 см и больше с толщиной стенок не менее 5 мм (иначе последние в скором времени прогорят из-за высокой температуры внутри прибора). Высота конструкции может колебаться между 80 см и 100 см, все зависит от площади помещения.
Труба для корпуса
Вне зависимости от модификации котел состоит из трех основных зон:
- загрузочной зоны;
- зоны тления и теплообразования
; - зоны окончательного сжигания, где горит зола и выводятся дымные газы.
Обратите внимание! Прибор, который ограничивает загрузочную зону и, соответственно, время тления, называют распределителем воздуха.
Данный элемент выполняется в виде металлического круга толщиной 5-6 мм с отверстием посередине, через которое с помощью телескопической трубы кислород подается в топку. Диаметр изделия должен быть несколько меньше диаметра корпуса. Высота регулируется посредством специальной крыльчатки.

Котел на дровах длительного горения

Котел на дровах длительного горения
Мнение эксперта:
Масальский А.В.
Редактор категории "строительство" на портале Stroyday.ru. Специалист по инженерным системам и водоотведению.
Обычно зона сжигания не превышает 5 см в высоту – если она будет большей, то топливо будет сгорать слишком быстро. К слову, кислородная труба может быть не только телескопической, но и цельной. Ее диаметр обычно составляет 6 см, в то время как размер отверстия в воздушном распределителе не превышает 2 см, дабы не пресыщать зону кислородом.

Котел длительного горения
Воздух может подаваться одним из двух способов:
- прямо из атмосферы;
- из специальной камеры нагрева (она располагается в верхней части конструкции), что обеспечивает более эффективную работу котла.
Для регулировки используется специальная воздушная заслонка.
Сверху приваривается дымоотводная труба. Она должна вестись перпендикулярно корпусу минимум 0,5 м, иначе образуется чрезмерная тяга.
Снизу оборудуется дверка для удаления продуктов горения. Чистку нужно проводить нечасто, ведь топливо будет сгорать полнее.
Существует два способа нагрева теплоносителя, у каждого есть свои сильные и слабые стороны.

Котел длительного горения
Котел длительного горения
Способ №1. К трубе теплообменника, проходящей через зону сгорания, подключается змеевик, посредством которого и происходит нагрев воды в баке.
Способ №2 . Формируется отдельный металлический бак, сквозь который пропускается труба дымохода. Разгоряченный дым подогревает жидкость.
Первый способ более эффективен, но вместе с тем более сложен в выполнении. Второй сделать проще, но он целесообразен только в небольших домах.
Цены на модельный ряд твердотопливных котлов
Твердотопливные котлы
Изготовление котла длительного горения
Котел
Сделать такую конструкцию в домашних условиях несложно, но для этого потребуются навыкии четкая инструкция.
Твердотопливный котел своими руками чертеж. Как сделать своими руками котел твердотопливный длительного горения: чертежи и схемы
Перед тем, как начать изготовление котла, необходимо определиться с его конструкцией. Ее выбор зависит от назначения агрегата. Если он предназначен для отопления небольшого хозяйственного помещения, гаража или дачного домика, то делать в нем водяной контур не обязательно. Обогрев такого помещения будет происходить непосредственно от поверхности котла, путем конвекции воздушных масс в помещении, как от печи. Для большей эффективности можно устроить принудительное обдувание агрегата воздухом при помощи вентилятора. При наличии системы жидкостного отопления в помещении, необходимо предусмотреть устройство в котле контура в виде змеевика из трубы или другой аналогичной конструкции.

Схема подключения твердотопливного котла к системе отопления
Выбор варианта зависит и от типа твердого топлива, которое нужно будет использовать. Для отопления обычными дровами требуется увеличенный объем топки, а для применения мелких топливных гранул можно устроить специальную емкость, из которой гранулированное топливо подается в котел автоматически. Для изготовления котла твердотопливного длительного горения своими руками, чертеж можно взять и универсальный. Он подойдет для любого вида используемого твердого топлива.

Чертеж твердотопливного котла длительного горения мощностью 25/30/40 кВт
Расскажем пошагово, каким образом и из каких деталей можно сделать котел отопления на твердом топливе длительного горения по предложенной схеме:
- подготовим место, где будет установлен будущий агрегат. Основание, на котором он будет стоять, должно быть ровным, прочным, жестким и огнеупорным. Лучше всего для этого подойдет бетонный фундамент или толстая чугунная либо стальная плита. Стены нужно обить тоже огнеупорным материалом, если они деревянные;
- собираем весь необходимый материал и инструменты: из которых нам понадобиться аппарат для электродуговой сварки, болгарка и рулетка. Из материалов: листовая 4-мм сталь; 300 – мм стальная труба со стенками 3 мм, а также другие трубы 60 и 100 мм диаметром;

Строение и принцип работы твердотопливного котла
- для того, чтобы изготовить котел на твердом топливе длительного горения, нужно из большой 300 – мм трубы вырезать кусок длиной 1 м. Можно и немного меньше, если в этом есть необходимость;
- из стального листа вырезаем дно по диаметру трубы и привариваем его, снабдив ножками из швеллера длиной до 10 см;
- распределитель воздуха выполняем в виде круга из листа стали с диаметром на 20 мм меньшим, чем труба. В нижнюю часть круга приваривается крыльчатка из уголка с размером полки 50 мм. Для этого можно использовать и швеллер аналогичного размера;
- сверху в середину распределителя привариваем 60 – мм трубу, которая должна быть выше котла. В середине диска распределителя прорезаем отверстие по трубе, так, чтобы был сквозной туннель. Он нужен для подачи воздуха. В верхней части трубы врезается заслонка, которая позволит осуществлять регулировку подачи воздуха;

Схематическое изображение устройства котла, работающего на твердом топливе
- в самой нижней части котла изготавливаем небольшую дверку, снабженную задвижкой и петлями, ведущую в зольник для удобства удаления золы. Сверху в котле прорезаем отверстие для дымохода и привариваем в это место 100 – мм трубу. Вначале она идет под небольшим углом вбок и вверх на 40 см, а потом строго вертикально вверх. Проход дымохода через перекрытие помещения должен быть защищен по правилам противопожарной безопасности;
- заканчиваем сооружение котла отопления на твердом топливе длительного горения изготовлением верхней крышки. В ее центре должно быть отверстие для трубы распределителя потока воздуха. Прилегание к стенкам котла должно быть очень плотным, исключающим попадание воздуха.


