Материалы для отмостки вокруг дома. Требования
- Материалы для отмостки вокруг дома. Требования
- Мягкая отмостка вокруг дома. Устройство мягкой отмостки Вариантов устройства мягкой отмостки немало — гравий или щебень, бурсчатка или плитка и даже газонная трава. Но в основе всегда будет
- Отмостка вокруг дома цены. Отмостка вокруг дома цена
- Современная отмостка вокруг дома. Добавление статьи в новую подборку
- Нужна ли отмостка вокруг дома. Для чего нужна отмостка вокруг дома?
- Современные материалы для отмостки вокруг дома. Мягкие
- Бюджетная отмостка дома. Что это такое?
- Отмостка вокруг дома размеры. Ширина отмостки
- Бетонная отмостка вокруг дома. Требования к бетонной отмостке
Материалы для отмостки вокруг дома. Требования
Специальные требования, прописывающие соотношения размеров отмостки и свеса крыши, не прописаны ни в одном ГОСТе. Нормативные обязательства по ширине выноса отмостки на 0,2–0,3 см по сравнению с выносом карниза можно считать рекомендательными, и во время сооружения конструкции вокруг дома ориентироваться на эти данные не требуется. Обязательными считаются только 2 минимальных показателя ширины с учетом грунта:
- на песчаных почвах — от 0,7 м;
- на глинистых они начинаются от 1 метра.


Эти данные указаны в документе СП для надзорных органов. В тех случаях, когда у двухэтажных домов не имеется водостоков, кровельные свесы должны быть не менее 60 см.
Если строение находится на песчаных почвах, то разница между параметрами отмостки и кровельного свеса может равняться 0,1 см и при этом не вступать в противоречие с нормативными требованиями.
Из этого следует, что указанные параметры в 20-30 см – это всего лишь среднее и наиболее удобное соотношение отмостка-кровельный свес для большинства вариантов.
Что касается просадочных почв, то к ширине отмостки предъявляют несколько иные условия:
- I тип — ширина от 1,5 м;
- II тип — ширина от 2 метров.


Несмотря на указанные рекомендации, отмостка должна превышать величину рва на 40 см, причем угол склона варьируется от 1 до 10º. Когда дом установлен на просадочных почвах, то минимум уклона должен составлять 3º. Внешний край выше почвенного горизонта не менее 5 см.

Источник: https://idei-dizajna.ru-land.com/stati/materialy-dlya-otmostki-vokrug-doma-tvyordye
Мягкая отмостка вокруг дома. Устройство мягкой отмостки Вариантов устройства мягкой отмостки немало — гравий или щебень, бурсчатка или плитка и даже газонная трава. Но в основе всегда будет
защитно-дренажная мембрана. Состав пирога может меняться в зависимости от технологии и желаемого результата, но суть одна — при попадании воды в грунт около фундамента мембрана отводит ее в сторону от дома или в дренажные трубы.
И в наших широтах можно разбить клумбу прямо у стены дома. Фото ТЕХНОНИКОЛЬ Для эффективного дренажа в мягких отмостках многими застройщиками применяется профилированная дренажная мембрана PLANTER Geo от ТЕХНОНИКОЛЬ.как работает planter geo
planter geo — это полимерное полотно с конусообразными выступами высотой 8,5 мм, которое изготавливается из полиэтилена высокой плотности (hdpe). к верхнему краю выступов термически прикреплен геотекстиль typar sf27 от компании dupont. этот материал позволяет создавать более эффективные решения по сравнению с традиционными методами строительства. он стабилизирует пирог отмостки, предотвращает прорастание сорняков, фильтрует жидкость, попадающую в каналы мембраны. таким образом, предотвращается их засорение. без геотекстиля каналы забиваются грунтом и сором, и эффективность водоотведения падает. именно по этой причине для отмосток используют только мембрану с качественным геотекстилем!
Профилированная дренажная мембрана PLANTER Geo от ТЕХНОНИКОЛЬ PLANTER Geo позволяет использовать различные виды финишного покрытия (гравий, тротуарную плитку , газон ).
Галька или гравий по периметру дома защитит стены от грязных брызг во время дождя. Фото ТЕХНОНИКОЛЬ Этот материал нельзя назвать новинкой, так как он довольно давно используется и в частном, и в коммерческом строительстве по всей стране. PLANTER Geo имеет ряд важных качеств (эластичность, стойкость к перепадам температур, инертность), которые позволяют применять его в различных регионах вне зависимости от климатических особенностей и особенностей грунтов.
Популярность материалу обеспечивает и простота его монтажа. Процесс не займет много времени, справиться с укладкой мембраны несложно и в одиночку, а ходить по отмостке можно сразу после окончания работ.
Важно! Если в вашем доме эксплуатируемый подвал, фундаменту обязательно нужна гидроизоляция. Практика показывает, что лучшим решением является использование обмазочных, наплавляемых или же самоклеящихся битумно-рулонных материалов. Также при строительстве дома используют и гидроизоляцию из полимерных мембран, например ПВХ мембраны. Самоклеящаяся гидроизоляция фундамента хорошо подходит частной застройке, где требуется осуществить простой монтаж, с сохранением максимальной надежности. Причем здесь мягкая отмостка? Она частично «разгружает» гидроизоляцию, благодаря тому, что отводит лишнюю воду с поверхности.
Отмостка вокруг дома цены. Отмостка вокруг дома цена
Стоимость услуги зависит от разных факторов. Обязательно нужно учитывать тип используемых материалов, то, требуется ли устройство гидроизоляции. Получается, что отмостка цена меняется в зависимости от материалов и объемов работ. Дешевле обойдется, а дороже будет стоить бетонная или утепленная конструкция. Сроки выполнения работ будут самыми короткими, потому что услугу предоставляют сертифицированные специалисты.
| Наименование работ | Ед.изм. | Цена/рубли |
|---|---|---|
| Отмостки, дорожки, площадки | ||
| Мягкая отмостка | мп | от 1990 руб. |
| Отмостка из бетона | мп | от 3000 руб. |
| Отмостка утепленная (ЭПП -50 мм.) СНИП | мп | от 3500 руб. |
| Отмостка бетонная свайного фундамента | мп | от 3100 руб. |
| Отмостка Отмостка из брусчатки по готовому бетонному основанию | мп | от 1500 руб. |
| Отмостка из брусчатки с подготовкой основания ПГС | мп | от 2900 руб. |
| Установка садового бордюра | мп | от 700 руб. |
| Мягкая отмостка | мп | от 1990 руб. |
| Въезд на участок ( труба 6 мп ) | кт | от 45000 руб. |
| Бетонные площадки | м2 | от 3000 руб. |
| Демонтаж отмостки | мп | от 700 руб. |
| Утепление цоколя фундамента (ЭПП 50 мм.) | мп | от 1100 руб. |
| Дренажные работы | ||
| Кольцевой дренаж фундамента | мп | от 1500 руб. |
| Дренаж участка поверхностный | мп | от 1350 руб. |
| Колодцы ревизионные (смотровые) | шт | от 6200 руб. |
| Устройство сборочного колодца из бетонных колец, устройство основания, монтаж плиты перекрытия, врезка в колодец, обвязка КНС. | шт | от 38000 руб. |
| Перевозка земли тачкой более чем на 10 метров от площади | м3 | от 650 руб. |
| Затирка (железнение) бетона шлифмашиной | м2 | от 350 руб. |
| Ливневая канализация | ||
| Устройство ливневой трубы, с подготовкой разуклонки основания | мп | от 850 руб. |
| Монтаж дождеприемника, установка основания, герметизация соединений | шт | от 2500 руб. |
| Прокладка канализации | мп | от 850 руб. |
| Прокладка водопровода | мп | от 1800 руб. |
| Установка лотков линейного водоотвода | мп | от 1700 руб. |
| Малые архитектурные формы | ||
| Устройство подпорных стен из бетона | мп | от 5000 руб. |
| Устройство ступеней крыльца или входных групп из бетона | м3 | от 17500 руб. |
Современная отмостка вокруг дома. Добавление статьи в новую подборку
Долговечность фундамента (а значит, и всего дома) зависит от отмостки – неприметной горизонтальной полосы, которая окружает дом по периметру. Именно она защищает основание дома от самых главных опасностей: влаги и промерзания, которые приводят к разрушению фундамента.
Многие десятилетия отмостку возле дома делали из бетона. Однако жизнь не стоит на месте – меняется все и вся. Коснулись новшества и процесса укладки отмостки. Теперь жесткая бетонная отмостка – это не единственный способ защитить фундамент дома от лишней воды и иных проблем. Все чаще хозяева загородной недвижимости предпочитают делать вокруг своих домов мягкую отмостку. Главное ее отличие от жесткой – в современном дренажном материале, который эффективно предохраняет фундамент от негативного воздействия внешней среды.
Какой должна быть отмостка
Давайте вначале разберемся, какими характеристиками должна обладать отмостка, чтобы выполнять возложенные на нее задачи?
- Главное свойство "правильной" отмостки – водонепроницаемость.
- Чтобы отводить воду от фундамента, уклон отмостки от стены должен быть в пределах 1-10% ширины защитной полосы. Оптимальным уклоном считается 3-5%.
- Отмостка должна иметь замкнутый, без разрывов, контур.
- Ширина отмостки должна превышать свес кровли минимум на 20 см. Наиболее применяемая ширина отмостки составляет 1 м.
Профилированная мембрана
Основной компонент мягкой отмостки – дренажная. Что это за материал?
Мембрана PLANTER Geo состоит из двух слоев. На поверхности мембраны, выполненной из полиэтилена высокой плотности, расположены выступы высотой 8,5 см. Между ними находятся углубления – дренажные каналы, по которым вода уходит от фундамента. Они и составляют первый слой.
На верхнюю часть выступов мембраны термически прикреплен (припаян) второй слой – геотекстиль повышенной прочности Typar SF27 от компании "DuPont". Его цель – фильтровать воду, которая попадает на мембрану, от грязи и мусора. Данный материал устойчив к механическим нагрузкам, поэтому даже спустя годы он не заиливается и сохраняет фильтрующую способность в процессе всего срока эксплуатации. Это выгодно отличает геотекстиль DuPont от аналогов. Благодаря такой очистке дренажные каналы не засоряются в течение многих десятилетий и эффективно справляются с отводом воды от стен дома.
Плюсы профилированной мембраны
Однако кроме высокой способности отводить воду, у мембраны PLANTER Geo есть и другие достоинства:
- Мембрана обладает высокой прочностью на сжатие, что позволяет использовать ее одновременно для дренажа и защиты гидроизоляции, а также в эксплуатируемых кровлях.
- Материал обладает повышенной стойкостью к действию химических веществ (кислот, щелочей и солей), содержащихся в грунте.
- Устойчива мембрана также к прорастанию корней и воздействию продуктов жизнедеятельности микроорганизмов.
Еще один плюс этого материала – существенная экономия средств. Специалисты подсчитали, что стоимость мягкой отмостки с мембраной PLANTER Geo обойдется на 30-40% дешевле традиционной бетонной отмостки.
Да и работы по ее созданию не требуют таких трудовых затрат, как строительство жесткой отмостки: уложить рулоны PLANTER Geo намного проще, чем залить отмостку бетоном.
И еще один плюс: при обустройстве мягкой отмостки могут использоваться различные варианты финишного покрытия: гравий, щебень, брусчатка, плитка, газон и даже клумбы с цветами.
Как сделать мягкую отмостку у дома
А теперь подробно остановимся на этапах укладки мягкой отмостки вокруг дома.
Пошаговая инструкция, как сделать мягкую утепленную отмостку своими руками
1. Вначале подготовьте траншею. Для этого по всему периметру дома расставьте колышки со шнуром, при помощи которых наметьте контуры будущей отмостки.
2. Выньте грунт на глубину 30-35 см.
Глубина выемки грунта определяется составом "пирога" мягкой отмостки.
Чтобы в конце работы было удобно устанавливать бордюр, ширину траншеи сделайте примерно на 30 см больше ширины готовой отмостки. Так, при ширине отмостки 100 см ширина траншеи должна быть не менее 120-130 см. При необходимости выполните укладку разделительного слоя из иглопробивного геотекстиля. Он будет разделять грунт на участке от "пирога" мягкой отмостки.
3. Сформируйте уклонообразующий слой. Для этого засыпают слой песка (обычно высотой до 10 см), с последующей его проливкой и трамбованием. Высота слоя у стены дома должна быть на 5 см больше, чем у края траншеи. Этот уклон в 2-5 градусов будет способствовать эффективному отводу лишней воды от фундамента.
Нужна ли отмостка вокруг дома. Для чего нужна отмостка вокруг дома?

Завершив работы по строительству дома, многие люди задаются резонным вопросом: из чего и как лучше всего соорудить качественную отмостку вокруг свежей постройки? Этому процессу необходимо уделять особое внимание. В данной статье расскажем, для чего именно нужна отмостка, и что она собой представляет.


Что это такое?
Прежде чем разбираться в предназначении и отличительных характеристиках отмостки вокруг дома, имеет смысл ответить на главный вопрос – что же это такое? Отмосткой называют водонепроницаемое покрытие, смонтированное по периметру выстроенного здания. Это может быть бетонная или асфальтовая полоска. Она продолжается вдоль всей постройки. При этом обязательно делается необходимый уклон в направлении от здания.
Отмостку нужно обустраивать, вне зависимости от того, какое фундаментное основание имеет постройка. Она может быть возведена на сваях, ленточном или любом другом фундаменте.
Монтаж такой важной составляющей, как отмостка, является обязательным условием, которым нельзя пренебрегать ни в коем случае.

Значение для защиты от грунтовых и талых вод
Одна из самых важных функций рассматриваемой конструкции, оборудованной в окружении дома, – защитная. Это функциональное дополнение эффективно защищает фундаментное основание жилища от губительного проникновения влаги, а также промерзания и возможного вспучивания. Это очень важные задачи. От их решения напрямую зависит долговечность всего сооружения. Именно по этой причине защита должна быть надежной и высококачественной.
Так, для почв, характеризующихся высоким залеганием грунтовых вод, в роли обязательного условия выступает качественная гидроизоляция подготовленной отмостки. В приведенной ситуации одним глиняным пластом сэкономить деньги не получится. На выручку могут прийти только современные гидроизоляционные покрытия высокого качества. Верхний пласт отмостки может быть сконструирован и из щебня. В таком случае основа из бетона сможет на все 100% гарантировать надежную защиту фундамента от проникновения вод. Ни один другой строительный материал или раствор не может гарантировать такую же хорошую защиту. Правда, у жесткой отмостки тоже имеются свои недостатки.
Современные материалы для отмостки вокруг дома. Мягкие
Этот тип защитного покрытия считается самым простым в исполнении, его легко создать своими руками, не требует применения техники и не занимает много времени при строительстве.
Преимущества:
- Высокая устойчивость к перепадам температур. Способна выдержать пучение грунта (физическое движение почвы с наступлением холодов), не трескается, не меняет свойства.
- Нет необходимости в ремонте, минимальный уход.
- Гибкая, отсутствуют материалы подверженные разрушению от влаги, коррозии и прочих факторов.
- Огромное количество разнообразных финишных покрытий, можно подобрать лучший вариант по дизайну, создать однородную композицию с остальным участком. Есть декоративные варианты оформления, можно комбинировать разные материалы.
- Экономная, меньше строительных материалов требуется на создание.
- Не требует углубления, и не пропускает холод на нижние слои почвы.
- Требуется периодически чистить покрытие. Избавляться от сорной травы, следить за состоянием щебня, чтобы он не цвёл и не появлялись живые организмы.
- Срок службы меньший, чем у остальных типов отмостки. Периодически требует обновления.
В формировании слоеного «пирога» отмостки не участвуют твёрдые строительные материалы. Разновидности финишного покрытия:
- Скрытая отмостка. Современный вид покрытия, когда защитный слой прячут под газон, цветник, небольшие кустарники или целые композиции с применением камней, щебня, бордюра.
- Глиняная отмостка. Пришла к нам из прошлого, полноценно выполняет свои функции, если материал выбран качественный и соблюдена технология укладки.
Особенности обустройства мягкой отмостки – неглубокая траншея (до 30 см) и отсутствие в конструкции твёрдых материалов.
Наиболее распространённый порядок слоев:
- влажная глина, утрамбованная под уклоном от стены цоколя;
- гидроизоляция (рубероид или мембрана);
- песочная подушка;
- геотекстиль;
- щебень.
Если требуется утепление, дополнительный слой материала прокладывают после гидроизоляции. Подробнее об устройстве мягкой отмостки вокруг дома читайте в этой статье, скрытой — в этой .
Бюджетная отмостка дома. Что это такое?
Отмостка — это сооружение, которое возводят вокруг капитальных строений для отвода лишней влаги. Долгое время считалось, что для этих целей лучше подходит бетонная (жесткая) версия конструкции. Но со временем популярность приобрела мягкая отмостка, позволяющая надолго решить проблему отвода воды, выпадающей с осадками или стекающей с крыши. Гибкая лента более равномерно распределяет нагрузки, вокруг дома ее монтируют и для зданий на винтовых сваях, и для вариантов с капитальным монолитным фундаментом, причем скрытая часть такого многослойного «пирога» всегда заметно толще, чем классическая бетонная.


Установка мягкой отмостки возможна не только на придомовой территории. Вокруг колодца или дачного коттеджа, теплого курятника или хозблока ее тоже можно обустроить. Как и у других видов водоотводных сооружений, у мягкой отмостки есть свои достоинства и недостатки. Начнем с ее очевидных плюсов.
- Устойчивость к перепадам температур. При замерзании почвы многослойное сооружение не смещается.
- Стабильные геометрические параметры. Гибкая отмостка не дает усадки, поэтому позволяет исключать возможное растрескивание основания, опорных элементов. Ей практически не требуются ремонт и восстановление на протяжении всего срока эксплуатации.
- Совместимость с мембранными материалами. Такая прослойка позволяет улучшить гидроизоляционные показатели конструкции, повысить ее теплоемкость.
- Простота обустройства. Затраты, как физические, так и материальные, в этом случае не слишком велики.
- Эстетичность. Можно использовать в отделке различные материалы, высадить сверху газон, разбить клумбу.
Минусы тоже есть. В основном они связаны с тем, что поверх мягкой отмостки размещаются зеленые насаждения. Важно следить, чтобы их корни не разрастались слишком сильно. Кроме того, в глинистом грунте слой гальки и щебня периодически приходится очищать от налипающих частиц почвы. Иначе пропускные способности сформированной отмостки будут снижаться.
Отмостка вокруг дома размеры. Ширина отмостки
Это самая важная характеристика конструкции. Максимального размера просто нет, все зависит от эстетики. При этом в СНиП 2.02.01-83 сказано, что любое строение должно иметь отмостку. Защитный слой вокруг дома делают из разнообразных материалов. Конструкция в результате должна быть прочной, обеспечивать гидроизоляцию и утепление.

Минимальная ширина отмостки зависит от вылета карниза крыши и качества грунта. Первое вполне логично. Вода с крыши должна попадать на конструкцию и отводиться с ее помощью. Отмостка всегда минимум на 20 см шире, чем проекция карниза на землю.

Необходимо определить тип почвы. Минимальная отмостка составляет 80 см при условии, что грунт дисперсный несвязанный или представлен средним, крупным песком. Если же почва более слабая, легко насыщается водой и поддается пучению от мороза, то такой ширины будет недостаточно. Оптимальным параметром в такой ситуации считается 90-100 см.
Многие используют стандарт, делая отмостку шириной в 1 метр. В таком случае нет риска ошибиться. Согласно ГОСТу на слабом грунте отмостка должна иметь ширину минимум 80 см, а на устойчивом – 90 см. Максимального значения не существует.

Чем шире, конструкция, тем более надежно она обеспечивает защиту фундамента от влияния влаги. При этом важно ориентироваться на эстетичность. Слишком широкая отмостка вокруг маленькой постройки будет выглядеть весьма нелепо. Однако все зависит от предпочтений владельца здания. Более широкая отмостка позволит обустроить дорожку вокруг частного дома, что довольно удобно. Важно не нарушать нормы.

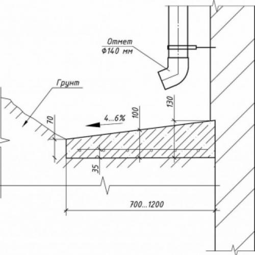
Бетонная отмостка вокруг дома. Требования к бетонной отмостке
Конструкция отмостки представляет собой своеобразный «пирог» из нескольких слоев:
- Основанием для них служит тщательно уплотненный грунт
- Далее следует прокладка геотекстиля, которая придает устойчивость всей конструкции
- Потом укладывается так называемая «подушка» – слой уплотненного песка
- На него насыпается щебень
- И только потом заливается бетон
Также в этом «пироге» могут располагаться и другие слои – например, гидро-или теплоизоляция.
На выходе получается бетонная плита, которая имеет небольшой скос в сторону от фундамента. Это необходимо, чтобы влага не застаивалась у основания дома.
Схематично конструкцию можно представить таким образом:
В советские времена существовали СНиПы, которые регламентировали требования к бетонной отмостке. Сейчас все они не действуют , а новых разработано не было. Тем не менее, мы можем ориентироваться на эти документы, чтобы составить представление о правильной отмостке из бетона.
Итак, вот список этих регламентов:
1. СНиП III-10-75: Благоустройство территории В нем указаны требования к уклону отмостки, по отношению к плоскости фундамента. Этот уклон должен находиться в пределах от 1 до 10%. Также в этом СНиПе мы найдем информацию о том, что смесь для отмосток должна по своим характеристикам соответствовать.
2. Руководство по проектированию оснований и фундаментов на пучинистых грунтах от 1979 года Здесь можем заметить, что при строительстве зданий на пучинистых грунтах ширина отмостки не должна быть менее 1 метра. Кроме того, в этом же документе мы находим интересную таблицу, в которой указана зависимость габаритов отмостки от глубины промерзания грунта в данном регионе. Выглядит она так:
В этом же документе приводится информация о том, что для отмостки допустимо использовать легкий керамзитобетон с плотностью от 800 до 1 000 кг/м3. Это позволяет исключить оборудование дополнительного теплоизоляционного слоя. Однако для керамзитобетона есть отдельные требования по габаритам отмостки:
3. СНиП 2.01.09-91: Здания и сооружения на подрабатываемых территориях и просадочных грунтах Это более новый документ, и в нем мы можем прочитать, что отмостки зданий должны совмещаться с тротуарами и проезжими частями. Разумеется, здесь речь идет о гражданском строительстве , а не об устройстве отмостки на садовом участке. В зависимости от типа грунта, отмостка должна иметь ширину от 1,5 до 2 метров. Но это требование также касается возведения многоквартирных домов.
Единственным современным документом, который можно упомянуть в этом контексте, является В нем прямо не говорится об отмостке, но указано, что здания и сооружения должны возводиться с учетом наличия водоотвода от наружных поверхностей. По сути, отмостка как раз и является таким водоотводом.
Но все эти документы описывают требования, предъявляемые в гражданском строительстве. А на обычный садовый участок их действие не распространяется. Так какой же должна быть бетонная отмостка вокруг дома?
Давайте сформулируем ее основные параметры – на основании нормативных документов и опыта частных строителей:
- Уклон Принято считать, что на каждый метр ширины отмостки уклон должен быть не менее 1 см, но и не более 10 см. Чаще всего отмостку заливают под уклоном в 2-3 сантиметра на каждый метр. Этого вполне достаточно, чтобы вода под силой собственного веса стекала в сторону от фундамента, и при этом по отмостке было удобно ходить.
- Высота
Для отмостки, которая не будет испытывать серьезных нагрузок, достаточно слоя бетона в 100 или 120 мм. При этом толщина отмостки по внешнему периметру не должна быть меньше 70 мм.Если отмостка будет использоваться в качестве парковки, то высота ее должна быть увеличена как минимум до 150 мм. В статьевы сможете более подробно ознакомиться с требованиями к смеси, используемой для таких работ. - Ширина
Есть версия, что ширина отмостки должна на 30 сантиметров выходить за границы крыши здания. Объясняется это тем, что при меньшей ширине дождевая вода будет негативно воздействовать на бетон.На самом же деле это не так. Во-первых, отмостка имеет собственный уклон, который не позволяет лишней влаге скапливаться на поверхности бетона. Во-вторых, почти все современные дома имеют систему водостока и ливневой канализации. Единственная ситуация, при которой такое требование можно считать обоснованным, – когда бетонная отмостка была уложена не по технологии и поэтому дала трещину. Вот через эту трещину вода вполне может добраться и до фундамента.