Твердотопливный котел своими руками. Что такое твердотопливный котел
- Твердотопливный котел своими руками. Что такое твердотопливный котел
- Твердотопливный котел длительного горения своими руками: чертежи. Котел длительного горения своими руками: чертежи изделий и ТОП-11 лучших моделей
- Котел с высоким КПД своими руками. С чего всё началось
- Твердотопливный котел своими руками из кирпича. Твердотопливный котел сверхдлительного горения своими руками
- Двухконтурный твердотопливный котел своими руками. Каков реальный КПД твердотопливных котлов
- Простой котел своими руками. Домашняя технология производства отопительного оборудования
- Твердотопливный котел своими руками чертежи. Котлы шахтного типа
- Котел из трубы своими руками. Твердотопливный котел своими руками
- Экономичный дровяной котел своими руками. Отопление дровами – плюсы и минусы
Твердотопливный котел своими руками. Что такое твердотопливный котел
Твердотопливные котлы — это эффективные системы отопления, которые вырабатывают тепловую энергию посредством сжигания древесины, черного и бурого угля, а также брикетов торфа или кокса. Обычно их используют для обогрева помещений и обеспечения горячим водоснабжением жилых или промышленных строений, расположенных в негазифицированных районах. В продаже можно встретить модели, способные работать на всех видах твердого топлива или только на одном. Последние отличаются более высоким коэффициентом полезного действия.
Устройство
Классический обогреватель является модульной конструкцией. Он представляет собой сложное устройство и состоит из нескольких деталей, помещенных в общий корпус. Чаще всего для его изготовления выбирают жаропрочные или котловые листы из металла, например, стальные или чугунные.
Основными элементами этой установки считаются:
- — одна из самых важных деталей системы. Именно он осуществляет передачу тепловой энергии внутри котла с помощью нагретого дымового газа, чью скорость прохождения к теплоносителю регулирует дымосос. Теплообменники способны прослужить около 20 лет. Обычно для их изготовления используют такие материалы, как сталь или чугун. При выборе детали стоит учесть, что покупка стального элемента обойдется дешевле, но он довольно быстро износится и выйдет из строя. Теплообменник из чугуна отличается долговечностью и устойчивостью к образованию коррозии.
- Топочная камера , оснащенная дверкой, предназначена для загрузки топлива. В ней же происходит и его сжигание.
- Колосниковая решетка должна обладать тепловой и коррозионной устойчивостью, поэтому ее создают из сплава серого чугуна (графита) и железа. Этот элемент способствует равномерному распределению топлива, отсеву его остатков в зольник и обеспечивает необходимую для процесса горения циркуляцию воздуха в топке.
- Терморегулятор необходим для автоматизации работы системы. Он выполняет защитные функции, так как контролирует нагрев теплоносителя и предотвращает появление проблем, которые могут возникнуть из-за слишком высокой температуры. Это устройство может быть автоматическим или механическим.
- Люк для прочистки дымоотвода.
- Зольник — в нем скапливаются продукты горения.
Твердотопливный котел длительного горения своими руками: чертежи. Котел длительного горения своими руками: чертежи изделий и ТОП-11 лучших моделей
При доскональном и правильном изучении чертежей твердотопливных котлов вполне возможно сделать котел длительного горения своими руками надежным и экономичным.
Твердотопливные котлы уже не одно десятилетие пользуются немалой популярностью, хотя и имеют один существенный минус – они нуждаются в постоянной загрузке топлива (угля, дров и т. д.). Из-за этого недостатка от них нередко отказываются при обустройстве отопительной системы, но от него легко избавиться – сделать котел длительного горения своими руками, функционирующий почти на всех типах(исключительно твердого, разумеется).

Котел длительного горения своими руками

Для растопки котла можно использовать уголь
Как устроен самодельный котел длительного горения
Принцип работы
Схема работы таких котлов основывается на особенноститлеть несколько часов, производя при этом большое количество тепловой энергии. Характерно, что топливо в таком случае сжигается более полно, а количество отходов, как следствие, заметно снижается.

Чертеж котла
Обратите внимание! Замена активного сжигания тлением возможна ввиду особого устройства отопительного котла.
Основным элементом котла является топка, где горение ограничено, а интенсивность подачи воздуха контролируется при помощи специальных приспособлений. Топливо загружается два раза в сутки большими порциями, после чего медленно тлеет (ограниченное количество кислорода не позволяет ему полноценно гореть).
Труба, посредством которой выводится дым, пропускается через теплообменники и нагревает жидкость в отопительной системе. Выходит, достаточно лишь каждые 12 часов загружать топливо для бесперебойного обогрева дома.

Схема котла
Основные преимущества
Котлы длительного горения выделяются на фоне отопительных систем других типов. Конечно, основное преимущество – это именно длительность работы, но есть и другие важные моменты:
- низкая стоимость топлива;
- автономность;
- возможность обогрева больших площадей при минимальных расходах;
- легкость монтажа и эксплуатации;
- безопасность;
- возможность изготовления в домашних условиях.

Виды твердотопливных котлов
Устройство прибора
Для изготовления котла удобнее использовать металлическую трубу ø30 см и больше с толщиной стенок не менее 5 мм (иначе последние в скором времени прогорят из-за высокой температуры внутри прибора). Высота конструкции может колебаться между 80 см и 100 см, все зависит от площади помещения.
Труба для корпуса
Вне зависимости от модификации котел состоит из трех основных зон:
- загрузочной зоны;
- зоны тления и теплообразования
; - зоны окончательного сжигания, где горит зола и выводятся дымные газы.
Обратите внимание! Прибор, который ограничивает загрузочную зону и, соответственно, время тления, называют распределителем воздуха.
Данный элемент выполняется в виде металлического круга толщиной 5-6 мм с отверстием посередине, через которое с помощью телескопической трубы кислород подается в топку. Диаметр изделия должен быть несколько меньше диаметра корпуса. Высота регулируется посредством специальной крыльчатки.

Котел на дровах длительного горения

Котел на дровах длительного горения
Мнение эксперта:
Масальский А.В.
Редактор категории "строительство" на портале Stroyday.ru. Специалист по инженерным системам и водоотведению.
Обычно зона сжигания не превышает 5 см в высоту – если она будет большей, то топливо будет сгорать слишком быстро. К слову, кислородная труба может быть не только телескопической, но и цельной. Ее диаметр обычно составляет 6 см, в то время как размер отверстия в воздушном распределителе не превышает 2 см, дабы не пресыщать зону кислородом.

Котел длительного горения
Воздух может подаваться одним из двух способов:
- прямо из атмосферы;
- из специальной камеры нагрева (она располагается в верхней части конструкции), что обеспечивает более эффективную работу котла.
Для регулировки используется специальная воздушная заслонка.
Сверху приваривается дымоотводная труба. Она должна вестись перпендикулярно корпусу минимум 0,5 м, иначе образуется чрезмерная тяга.
Снизу оборудуется дверка для удаления продуктов горения. Чистку нужно проводить нечасто, ведь топливо будет сгорать полнее.
Существует два способа нагрева теплоносителя, у каждого есть свои сильные и слабые стороны.

Котел длительного горения
Котел длительного горения
Способ №1. К трубе теплообменника, проходящей через зону сгорания, подключается змеевик, посредством которого и происходит нагрев воды в баке.
Способ №2 . Формируется отдельный металлический бак, сквозь который пропускается труба дымохода. Разгоряченный дым подогревает жидкость.
Первый способ более эффективен, но вместе с тем более сложен в выполнении. Второй сделать проще, но он целесообразен только в небольших домах.
Цены на модельный ряд твердотопливных котлов
Твердотопливные котлы
Изготовление котла длительного горения
Котел
Сделать такую конструкцию в домашних условиях несложно, но для этого потребуются навыкии четкая инструкция.
Котел с высоким КПД своими руками. С чего всё началось
Perelesnik Пользователь FOUMHOUSE
В мой дом заведён газ, но я периодически задумывался над тем, чтобы перейти на отопление твёрдым топливом. Останавливало лишь то, что газовое отопление было выгодно, и переход на дрова оказывался не рентабельным. Дом я отапливал электродным котлом мощностью 7 кВт, работающим в связке с кондиционером, который эксплуатировался «на обогрев». При сильных заморозках дом дополнительно подтапливался котлом, работающим на газе. И вот газ подорожал…
Именно увеличение цены на газ стало тем событием, которое привело к разработке ракетного котла.
Прежде, чем иди и сразу покупать «нечто» под названием «твердотопливный котёл», Perelesnik начал изучать предмет. Он ознакомился с перечнем оборудования, предлагаемого в магазинах, посмотрел, как работают котлы у соседей, понял, какие наиболее частые проблемы возникают, изучил отзывы в Интернете.

После «мозгового штурма» появился список требований, которым должно отвечать устройство - с точки зрения Perelesnik-а :
- Возможность стабильной работы на мощности от 2 до 20 кВт. Это связано с особенностями климата в регионе проживания форумчанина. Зимой температура с месяц может держаться около 0°C, а потом резко на неделю упасть до -25…30°C. В осенне-весенний период температура находится в пределах +5…+10°C. Т.к. дом в межсезонье также нужно отапливать, но от котла не требуется максимальная мощность, нужен «гибко» настраиваемый аппарат.
- Котёл должен быть «всеядным», т.е. гореть в топке должно всё, что может гореть – дрова, топливные брикеты, уголь, отходы и т.д., включая влажное топливо.
- Конструкция котла должна предусматривать закладку поленьев диаметром до 20 см. Это уменьшит необходимость в колке дров.
- Должен работать с ночи до утра на одной закладке топлива. При сильном морозе количество полных закладок топлива не должно превышать трёх.
- Полная энергонезависимость. Устройство должно работать без необходимости его подключения к электрической сети. В случае обрыва проводов или отключения энергии, работу циркуляционного насоса (он должен прокачивать теплоноситель) обеспечивает резервная система питания.
Твердотопливный котел своими руками из кирпича. Твердотопливный котел сверхдлительного горения своими руками
Самодельный отопитель будет иметь такую конструкцию:
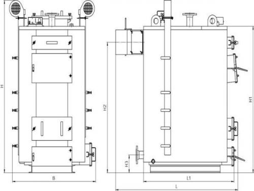
- Топка – «коробка» глубиной 460 мм, шириной 360 мм и высотой 750 мм с общим объемом 112 л. Объем топливной загрузки для такой камеры сгорания составляет 83 л (весь объем топки заполнять нельзя), Что позволит котлу развивать мощность до 22 – 24 кВт.
- Днище топки – решетка из уголка, на которую будут укладываться дрова (через нее в камеру будет поступать воздух).
- Под решеткой должен быть отсек высотой 150 мм для сбора золы.
- Теплообменник объемом 50 л большей частью расположен над топкой, но нижняя его часть охватывает ее с 3-х сторон в виде водяной рубашки толщиной 20 мм.
- Подсоединенная к верхней части топки вертикальная дымоотводящая труба и горизонтальные жаровые трубы располагаются внутри теплообменника.
- Топка и зольник закрыты герметичными дверцами, а забор воздуха осуществляется через трубу, в которой установлен вентилятор и гравитационная заслонка. Как только вентилятор выключается, заслонка под собственным весом опускается и полностью перекрывает воздухозаборник. Как только термодатчик зафиксирует снижение температуры теплоносителя до заданного пользователем уровня, контроллер включит вентилятор, поток воздуха откроет заслонку и в топке разгорится огонь. Периодическое «отключение»котла в сочетании с увеличенным объемом топки позволяет продлить работу на одной загрузке топлива до 10 – 12 часов на дровах и до 24-х часов на угле. Хорошо зарекомендовала себя автоматика польской компании KG Elektronik: контроллер с термодатчиком – модель SP-05, вентилятор – модель DP-02.
Двухконтурный твердотопливный котел своими руками. Каков реальный КПД твердотопливных котлов
Производители отопительного оборудования, в частности твердотопливных котлов, предлагают большой ассортимент продукции с различными характеристиками.
Исходя из конструкции котла на твердом топливе, все изделия можно разделить на такие группы:
- традиционные отопительные агрегаты;
- дровяные котлы с пиролизным типом горения (газогенераторные);
- длительного горения;
- пеллетные.
Традиционный котел на твердом топливе, самодельный в том числе, по внешнему виду напоминает печь или буржуйку с самыми необходимыми элементами – топочной камерой, дверцей, зольником и дымоходом. С помощью зольника можно регулировать тягу, открывая и закрывая заслонку. Такие конструкции считаются достаточно надежными, поскольку в них нет никаких технологичных элементов, например термодатчиков или градусников, автоматического блока управления или электроники. В данном случае основным элементом конструкции твердотопливного котла является теплообменник, передающий тепловую энергию теплоносителю. Теплообменник бывает трубчатым или изготавливается в виде емкости из сплошных стальных листов.

Есть, однако, и более сложные устройства, которые тоже можно отнести к традиционным. Они оснащены перегородками и дроссельными заслонками, чтобы тягу было удобнее регулировать, а горячий воздух проходил большее расстояние до момента выхода в дымовую трубу. Такие перегородки существенно увеличивают КПД котла, поскольку больше тепловой энергии передается теплоносителю, а не просто «вылетает в трубу». Нужно понимать, что КПД котла это очень важный показатель.
Для подобных котлов можно использовать практически любое топливо – дрова, уголь, пеллеты и даже мусор. Главное, чтобы оно было как можно суше. С точки зрения производительности котлы простых конструкций едва ли могут претендовать на 50 % КПД, а в большинстве случаев он составляет всего лишь 15-20 %. Проблема заключается в том, что топливо слишком быстро сгорает, не успевая передать всю тепловую энергию воде в теплообменнике. В результате, большее количество тепла просто выводится в дымоход или его избыток заставляет теплоноситель закипать. Например, дрова нужно добавлять в топку каждый час, а угля хватит на 2-4 часа, но все равно он сгорает с избытком энергии и большими теплопотерями.
Более экономными и производительными являются современные котлы с перегородками и дроссельными заслонками. В них температуру сгорания топлива можно регулировать, а одной загрузки топлива хватает на 8-12 часов. Поэтому КПД таких установок нередко достигает 80 %.
Простой котел своими руками. Домашняя технология производства отопительного оборудования
В поисках ответа на вопрос, как сделать котел отопления своими руками достаточно быстро приходишь к убеждению, что ничего особенно сложного в этом нет. При условии грамотной организации производственного процесса. Удобнее отдельные детали делать на верстаке в оборудованной мастерской или ином месте, где можно сделать рабочий стол.
Изготовление деталей корпуса
Основу любого твердотопливного котла для отопления частного дома составляет топка, где температура достигает 1000 ⁰С и для ее сборки потребуются материалы с соответствующими характеристиками. Порядок изготовления корпуса следующий:
- При отсутствии жаропрочных сталей можно обойтись и обычной, но для обеспечения долговечности узла его стенки делаются двойными. Передняя, задняя, боковые и нижняя стенки вырезаются из стального листа при помощи угловой шлифовальной машинки;
- Чертежи котлов отопления имеют обозначения точных размеров всех деталей, которые переносятся на металлопрокат при помощи измерительного инструмента и большой линейки. Помимо стенок камеры из стальной профильной трубы нарезается необходимое количество для использования их в качестве ребер жесткости. Из стального уголка изготавливаются усилители для стыков между отдельными частями печи;
- В передней стенке необходимо проделать прямоугольное отверстие, соответствующее по размерам дверцам топочного и зольного бункеров.
Полезный совет: для выполнения сквозного прямоугольного отверстия нужной конфигурации наносим на металл разметку, по углам производим сверление листа при помощи электродрели. Угловой шлифовальной машинкой делаем сквозной порез в средней части и ведем его от центра к краю. Это позволит избежать лишних повреждений листа.

Изготовление емкостей для воды и теплообменников
Эффективная конструкция отопительного котла предусматривает наличие двух баков для воды. Их делают из нержавеющего стального листа, для сварки которого необходимо специальное оборудование и определенная квалификация. Тут лучше довериться профессионалам и заказать эти емкости в специализированной мастерской.

Конструкция теплообменника представляет собой набор из водопроводных труб. При помощи сварочного аппарата они соединяются таким образом, чтобы образовать проточный контур с максимально большой внешней поверхностью. Это обеспечит быструю и наиболее полную теплоотдачу от сгораемого топлива к теплоносителю.
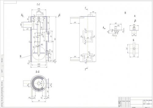
Твердотопливный котел своими руками чертежи. Котлы шахтного типа
Как уже упоминалось особенностью таких котлов является наличие двух камер: большой вертикальной загрузочной камеры (шахты) и камеры с теплообменником. Топливо поджигается снизу в первой камере и пламя через отверстие попадает в другую, где и отдает свою энергию теплоносителю через теплообменник.
Такие котлы могут быть, как с обычным сжиганием топлива, так и с пиролизным. В первом случае весь необходимый воздух подается через нижнюю дверку, а продукты горения, пройдя через теплообменник, удаляются в дымовую трубу. Во втором случае к месту горения подается ограниченное количество первичного воздуха, где дрова сгорают с выделением пиролизного газа. Кроме того такие конструкции оборудуются дополнительной камерой дожига, куда подается вторичный воздух и осуществляется сжигание газа. В верхней части теплообменной камеры расположена задвижка, которая отрывается при розжиге и позволяющая дымовым газам напрямую выходить в дымовую трубу.

Чертеж-схема котла шахтного типа с камерой дожига
1 — заслонка подачи первичного воздуха; 2 — нижняя дверка для поджига и чистки; 3 — решетка; 4 — дрова; 5 — загрузочная дверка (может располагаться и сверху); 12 — труба с нагретой водой (подача); 13 — пусковая заслонка; 14 — заслонка дымовой трубы; 15 — теплообменник; 16 — подача вторичного воздуха; 17 — камера дожига; 18 — обратка; 19 — слив; 20 — чистка; 21 — заслонка; 22 — колосниковая решетка; 25 — зольник.

Источник: https://doma-otido.ru/novosti/tverdotoplivnyy-kotel-svoimi-rukami-chertezhi-principy-raboty
Котел из трубы своими руками. Твердотопливный котел своими руками
Рассмотрим на примере наиболее популярного котла с верхним горением (рис.3). В случае необходимости размеры можно менять пропорционально указанным в чертеже. Отличительной особенностью конструкции является труба, которая служит регулятором подачи воздуха и теплообменником одновременно. Газы, выделяемые в процессе тления топлива, поднимаются вверх и воспламеняются в верхней топке.
Для изготовления необходимы материалы, описанные в разделе 2: трубы, листовая сталь, уголок, утеплитель, асбокартон, электроды.
Первый этап самодельного котла включает следующие шаги:
- Сваривают цилиндрический корпус из трубы диаметром 45 см длиной 150см.
- Днище закрывают вырезанным из листовой стали кругом с помощью сварки.
- В трубе нижнего диаметра (нижняя часть) вырезают прямоугольное отверстие под дверку зольника. Ее можно изготовить также из стального листа или приобрести готовую под размер.
- Топка располагается в верхней части, под ее дверку также вырезают прямоугольник. Дверку обязательно изолируют асбокартоном и асбошнуром по периметру. Все дверки должны закрываться задвижками.
- Из профильной трубы сваривают патрубок для выхода дыма, который будет вставляться в дымоход.
Важно! На поверхности патрубка из-за перепада температур будет образовываться влага (конденсат), ведущая к коррозии, поэтому сварочные швы должны быть высокого качества
- К корпусу котла приваривают ножки из равнополочного уголка.
- Вырезают верхнюю крышку диаметром 46 см, которая будет одеваться сверху на цилиндрический корпус.
Теплообменник для твердотопливного котла своими руками
Второй этап – производство теплообменника:
- Из металлического листа сваривают трубу теплообменника диаметром 40 см длиной 130 см.
- Вставляют ее в цилиндрический корпус, фиксируют зазор в 5 см между трубами, благодаря чему будет образовываться «водяная рубашка».
- Разница в длине труб теплообменника и наружной должна быть не менее 20см. Трубу в трубе фиксируют сваркой, используя заготовленные металлические кольца.
- В верхней и нижней зоне водяной рубашки устанавливают патрубки: один – для подачи, другой – для выхода теплоносителя. Для их изготовления используют трубу диаметром 5 см, на внешней стороне накручивают резьбу, через которую они будут подсоединены к трубам отопительной системы.
- Распределительную трубу, через которую будет подаваться воздух, сваривают из металла большей толщины, чем для корпуса и теплообменника (не менее 5 мм диаметром 6 см). Длину трубы делают на 10 см меньше длины трубы теплообменника (120 см).
Важно! Распределительная труба находится в зоне высоких температур и со временем деформируется и прогорает, поэтому для ее изготовления используется металл толщиной 5 мм и более
- Труба вставляется в подготовленный диск с готовым отверстием. Металлический стальной диск диаметром 38 см приваривается к трубе.
- К основанию диска приваривают минимум 4 уголка, выполняющие роль крыльчатки.
- К верхней части трубы устанавливают задвижку для порционной подачи воздуха и приваривают петлю, на которой фиксируют цепь для поднятия трубы.
Внимание! Чтобы улучшить теплообмен в верхней части трубы устанавливают вентилятор для принудительного наддува
Как правильно собрать котел
После выполнения двух основных этапов приступают к завершающему.
Третий этап – сборка котла:
- Выбирают место установки котла, проверяют уровнем, чтобы не было никаких перепадов, которые могут ухудшить работу теплогенератора.
- Крышку с распределительной трубой натягивают на корпус, предварительно проложив асбошнур. Крышку можно также приварить к корпусу.
- Дымовой патрубок вставляют в дымоход.
- Через выходящие патрубки с резьбой котел подсоединяют к системе отопления дома.
- Систему заполняют водой и выполняют проверку работы котла при неполной его загрузке.
- Если тест прошел нормально, котел загружают на полную мощность.
Экономичный дровяной котел своими руками. Отопление дровами – плюсы и минусы
Самодельные дровяные котлы активно используются для обогрева жилых помещений – это небольшие дачные домики и крупные частные домовладения, расположенные в местах, далеких от газовых магистралей. В качестве топлива для них используются дрова или каменный уголь. Угольные агрегаты отличаются высоким тепловыделением, но достать это топливо получается далеко не всегда. Поэтому люди отдают предпочтение дровяным моделям.
Давайте рассмотрим основные достоинства самодельных котлов на дровах:
- Не нужно разрешение на установку и эксплуатацию – мы вправе самостоятельно распоряжаться данным оборудованием;
- Дешевизна в эксплуатации – по сравнению с электрическим отоплением, обогрев дровами более дешев. А если обрести источник бесплатных поленьев, то останется потратиться только на сборку отопительного котла;
- Независимость от электросетей – это относится к самым простым агрегатам, в составе которых отсутствуют электрические узлы;
- Возможность реализации длительного горения – оно позволит снизить количество подходов для закладки все новых порций горючего;
- Дешевизна в сборке – самодельный котел на дровах для частного дома будет стоить дешевле, чем его заводской аналог.
Есть и некоторые недостатки:

Только постоянная чистка котла и его систематический плановый ремонт смогут обеспечить стабильную и эффективную работу агрегата на всем протяжении его эксплуатации.
- Самодельные дровяные котлы для отопления дома могут не выйти на максимальный КПД – сказываются ошибки кустарной сборки;
- Котлы на твердом топливе на угле и дровах требуют регулярной очистки – то есть, мы можем избавиться от необходимости частой закладки горючего, но с проблемой очистки справиться невозможно. Поэтому нам придется регулярно очищать оборудование от сажи и золы;
- Сложность самостоятельного монтажа – самодельные котлы длительного горения на дровах, с водяным контуром, могут показаться сложными в изготовлении. И чем меньше опыта работы с инструментами, тем более сложной покажется задача.
Кроме того, самодельные котлы длительного горения не отличаются нормальными внешними данными, хотя здесь все зависит от мастерства сборщика.
Помимо сажи и угольков, в котлах длительного горения может образовываться конденсат – он образуется в результате использования сырых дров.
