Котел своими руками на дровах отопительный. Котлы с пиролизным типом горения
- Котел своими руками на дровах отопительный. Котлы с пиролизным типом горения
- Экономичный дровяной котел своими руками. Котел длительного горения своими руками: чертежи изделий и ТОП-11 лучших моделей
- Котел из трубы своими руками. Твердотопливный котел своими руками
- Котел на дровах своими руками чертежи. Разные конструкции
- Водяной котел на дровах своими руками. Создаем котел отопления на дровах своими руками
- Самодельный котел для отопления дома. Самодельные котлы отопления: пошаговая технология изготовления котла своими руками (газового, дровяного, электрического)
- Дровяной котел для водяного отопления. Монтаж отопления в частном доме с котлом на дровах
- Простой котел своими руками. Домашняя технология производства отопительного оборудования
Котел своими руками на дровах отопительный. Котлы с пиролизным типом горения
Для пиролизных котлов также используется твердое топливо, в частности дрова, однако, принцип их работы кардинально отличается от описанных выше установок. Они способны намного дольше и эффективнее отапливать дом, а топливо расходуют более экономно. В связи с этим стоимость таких агрегатов примерно в 1,5-2 раза больше, чем остальных.
Секрет газогенераторных (пиролизных) котлов в том, что под воздействием высокой температуры и при недостатке воздуха древесина преобразуется в древесный уголь, выделяя пиролизный газ.
Для такой реакции необходима температура от 200 ℃ до 800 ℃. При этом выделяется большое количество энергии, которая просушивает дрова и нагревает воздух. Пиролизный газ по трубам перемещается в камеру сгорания, где при смешении с воздухом возгорается – так генерируется большая часть тепла.

Активные углероды участвуют в окислительных процессах при горении пиролизного газа, поэтому выходящий из трубы дым состоит преимущественно из углекислого газа и пара – содержание вредных компонентов ничтожно мало. К тому же, пиролизные котлы в принципе выделяют намного меньше дыма, чем классические установки. Поскольку топливо сгорает практически без остатка, газогенераторные котлы нуждаются в чистке довольно редко.
Стоит отметить, что довольно высокой температуры горения можно добиться даже при наличии сырых дров, однако, в таком случае производительность котла упадет практически вдвое, а значит, настолько же увеличится расход топлива.
Благодаря автоматике интенсивность горения в таком котле можно регулировать, чтобы экономить топливо и создать в помещении оптимальную температуру.
Обратите внимание, что изготовить пиролизный котел отопления на твердом топливе своими руками довольно сложно и очень опасно. В случае ошибок в сборке такая установка может взорваться.
Экономичный дровяной котел своими руками. Котел длительного горения своими руками: чертежи изделий и ТОП-11 лучших моделей
При доскональном и правильном изучении чертежей твердотопливных котлов вполне возможно сделать котел длительного горения своими руками надежным и экономичным.
Твердотопливные котлы уже не одно десятилетие пользуются немалой популярностью, хотя и имеют один существенный минус – они нуждаются в постоянной загрузке топлива (угля, дров и т. д.). Из-за этого недостатка от них нередко отказываются при обустройстве отопительной системы, но от него легко избавиться – сделать котел длительного горения своими руками, функционирующий почти на всех типах(исключительно твердого, разумеется).

Котел длительного горения своими руками

Для растопки котла можно использовать уголь
Как устроен самодельный котел длительного горения
Принцип работы
Схема работы таких котлов основывается на особенноститлеть несколько часов, производя при этом большое количество тепловой энергии. Характерно, что топливо в таком случае сжигается более полно, а количество отходов, как следствие, заметно снижается.

Чертеж котла
Обратите внимание! Замена активного сжигания тлением возможна ввиду особого устройства отопительного котла.
Основным элементом котла является топка, где горение ограничено, а интенсивность подачи воздуха контролируется при помощи специальных приспособлений. Топливо загружается два раза в сутки большими порциями, после чего медленно тлеет (ограниченное количество кислорода не позволяет ему полноценно гореть).
Труба, посредством которой выводится дым, пропускается через теплообменники и нагревает жидкость в отопительной системе. Выходит, достаточно лишь каждые 12 часов загружать топливо для бесперебойного обогрева дома.

Схема котла
Основные преимущества
Котлы длительного горения выделяются на фоне отопительных систем других типов. Конечно, основное преимущество – это именно длительность работы, но есть и другие важные моменты:
- низкая стоимость топлива;
- автономность;
- возможность обогрева больших площадей при минимальных расходах;
- легкость монтажа и эксплуатации;
- безопасность;
- возможность изготовления в домашних условиях.

Виды твердотопливных котлов
Устройство прибора
Для изготовления котла удобнее использовать металлическую трубу ø30 см и больше с толщиной стенок не менее 5 мм (иначе последние в скором времени прогорят из-за высокой температуры внутри прибора). Высота конструкции может колебаться между 80 см и 100 см, все зависит от площади помещения.
Труба для корпуса
Вне зависимости от модификации котел состоит из трех основных зон:
- загрузочной зоны;
- зоны тления и теплообразования
; - зоны окончательного сжигания, где горит зола и выводятся дымные газы.
Обратите внимание! Прибор, который ограничивает загрузочную зону и, соответственно, время тления, называют распределителем воздуха.
Данный элемент выполняется в виде металлического круга толщиной 5-6 мм с отверстием посередине, через которое с помощью телескопической трубы кислород подается в топку. Диаметр изделия должен быть несколько меньше диаметра корпуса. Высота регулируется посредством специальной крыльчатки.

Котел на дровах длительного горения

Котел на дровах длительного горения
Мнение эксперта:
Масальский А.В.
Редактор категории "строительство" на портале Stroyday.ru. Специалист по инженерным системам и водоотведению.
Обычно зона сжигания не превышает 5 см в высоту – если она будет большей, то топливо будет сгорать слишком быстро. К слову, кислородная труба может быть не только телескопической, но и цельной. Ее диаметр обычно составляет 6 см, в то время как размер отверстия в воздушном распределителе не превышает 2 см, дабы не пресыщать зону кислородом.

Котел длительного горения
Воздух может подаваться одним из двух способов:
- прямо из атмосферы;
- из специальной камеры нагрева (она располагается в верхней части конструкции), что обеспечивает более эффективную работу котла.
Для регулировки используется специальная воздушная заслонка.
Сверху приваривается дымоотводная труба. Она должна вестись перпендикулярно корпусу минимум 0,5 м, иначе образуется чрезмерная тяга.
Снизу оборудуется дверка для удаления продуктов горения. Чистку нужно проводить нечасто, ведь топливо будет сгорать полнее.
Существует два способа нагрева теплоносителя, у каждого есть свои сильные и слабые стороны.

Котел длительного горения
Котел длительного горения
Способ №1. К трубе теплообменника, проходящей через зону сгорания, подключается змеевик, посредством которого и происходит нагрев воды в баке.
Способ №2 . Формируется отдельный металлический бак, сквозь который пропускается труба дымохода. Разгоряченный дым подогревает жидкость.
Первый способ более эффективен, но вместе с тем более сложен в выполнении. Второй сделать проще, но он целесообразен только в небольших домах.
Цены на модельный ряд твердотопливных котлов
Твердотопливные котлы
Изготовление котла длительного горения
Котел
Сделать такую конструкцию в домашних условиях несложно, но для этого потребуются навыкии четкая инструкция.
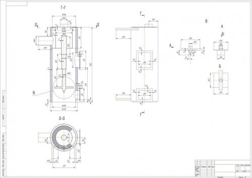
Котел из трубы своими руками. Твердотопливный котел своими руками
Рассмотрим на примере наиболее популярного котла с верхним горением (рис.3). В случае необходимости размеры можно менять пропорционально указанным в чертеже. Отличительной особенностью конструкции является труба, которая служит регулятором подачи воздуха и теплообменником одновременно. Газы, выделяемые в процессе тления топлива, поднимаются вверх и воспламеняются в верхней топке.
Для изготовления необходимы материалы, описанные в разделе 2: трубы, листовая сталь, уголок, утеплитель, асбокартон, электроды.
Первый этап самодельного котла включает следующие шаги:
- Сваривают цилиндрический корпус из трубы диаметром 45 см длиной 150см.
- Днище закрывают вырезанным из листовой стали кругом с помощью сварки.
- В трубе нижнего диаметра (нижняя часть) вырезают прямоугольное отверстие под дверку зольника. Ее можно изготовить также из стального листа или приобрести готовую под размер.
- Топка располагается в верхней части, под ее дверку также вырезают прямоугольник. Дверку обязательно изолируют асбокартоном и асбошнуром по периметру. Все дверки должны закрываться задвижками.
- Из профильной трубы сваривают патрубок для выхода дыма, который будет вставляться в дымоход.
Важно! На поверхности патрубка из-за перепада температур будет образовываться влага (конденсат), ведущая к коррозии, поэтому сварочные швы должны быть высокого качества
- К корпусу котла приваривают ножки из равнополочного уголка.
- Вырезают верхнюю крышку диаметром 46 см, которая будет одеваться сверху на цилиндрический корпус.
Теплообменник для твердотопливного котла своими руками
Второй этап – производство теплообменника:
- Из металлического листа сваривают трубу теплообменника диаметром 40 см длиной 130 см.
- Вставляют ее в цилиндрический корпус, фиксируют зазор в 5 см между трубами, благодаря чему будет образовываться «водяная рубашка».
- Разница в длине труб теплообменника и наружной должна быть не менее 20см. Трубу в трубе фиксируют сваркой, используя заготовленные металлические кольца.
- В верхней и нижней зоне водяной рубашки устанавливают патрубки: один – для подачи, другой – для выхода теплоносителя. Для их изготовления используют трубу диаметром 5 см, на внешней стороне накручивают резьбу, через которую они будут подсоединены к трубам отопительной системы.
- Распределительную трубу, через которую будет подаваться воздух, сваривают из металла большей толщины, чем для корпуса и теплообменника (не менее 5 мм диаметром 6 см). Длину трубы делают на 10 см меньше длины трубы теплообменника (120 см).
Важно! Распределительная труба находится в зоне высоких температур и со временем деформируется и прогорает, поэтому для ее изготовления используется металл толщиной 5 мм и более
- Труба вставляется в подготовленный диск с готовым отверстием. Металлический стальной диск диаметром 38 см приваривается к трубе.
- К основанию диска приваривают минимум 4 уголка, выполняющие роль крыльчатки.
- К верхней части трубы устанавливают задвижку для порционной подачи воздуха и приваривают петлю, на которой фиксируют цепь для поднятия трубы.
Внимание! Чтобы улучшить теплообмен в верхней части трубы устанавливают вентилятор для принудительного наддува
Как правильно собрать котел
После выполнения двух основных этапов приступают к завершающему.
Третий этап – сборка котла:
- Выбирают место установки котла, проверяют уровнем, чтобы не было никаких перепадов, которые могут ухудшить работу теплогенератора.
- Крышку с распределительной трубой натягивают на корпус, предварительно проложив асбошнур. Крышку можно также приварить к корпусу.
- Дымовой патрубок вставляют в дымоход.
- Через выходящие патрубки с резьбой котел подсоединяют к системе отопления дома.
- Систему заполняют водой и выполняют проверку работы котла при неполной его загрузке.
- Если тест прошел нормально, котел загружают на полную мощность.
Котел на дровах своими руками чертежи. Разные конструкции
Для решения отмеченных выше задач используют различные решения. Чтобы не закладывать часто новые порции топлива увеличивают размеры топки. Сделать процесс горения равномерным помогает размещение сверху прижимного устройства, дозированная подача воздуха.
Схема типичного котла этого класса
Создать чертежи твердотопливных котлов длительного горения своими руками будет проще после подробного изучения стандартной конструкции:
- В начальном положении прижимное устройство (10) находится в верхнем положении.
- Через дверцу (6) в топку загружают крупную партию дров.
- После поджигания происходит регулируемый механическим приводом (16) процесс горения.
- Свежий воздух подается нагнетателем через телескопическую полую внутри штангу. Он распределяется равномерно через прижимной диск (10).
- Подача кислорода сверху обеспечивает постепенное сгорание топлива, слоями.
- Золу после завершения цикла удаляют через нижнюю дверцу (13).
- Для поднятия диска (10) в верхнее положение используют лебедку (2) с электроприводом.
Недостатком данной конструкции является невозможность произвольной закладки дров в топку. Существенное преимущество – повышенная до 24 часов и более длительность одного рабочего цикла.
В следующей конструкции топливо можно подкладывать по мере необходимости. Здесь использована технология пиролиза. Она характерна дозированной подачей кислорода и низкой интенсивностью горения. Тлеющие дрова выделяют горючий газ. Он сгорает в дополнительной камере.
Пиролизный котел
Эта установка полноценно использует топливо. В продуктах сгорания содержится минимальное количество сажи. Сложной является оптимальная регулировка рабочих процессов.
Газовые и дизельные агрегаты лишены упомянутых недостатков по причине простоты дозирования соответствующих видов топлива. Подобный результат можно получить, если использовать специальным образом спрессованные гранулы из отходов деревообработки, шелухи семечек, иного горючего сырья.
Пеллетный котел
В данном варианте гранулы (пеллеты) засыпают в бункер, откуда они подаются шнековым механизмом в топку. Понятно, что такая конструкция позволяет при необходимости быстро увеличивать и уменьшать подачу топлива. Гибкое изменение производительности котла пригодится для оптимизации работы при изменении внешней температуры, подключении дополнительных потребителей. С гранулами не слишком сложно работать при транспортировке, хранении.
Теплообменник для подогрева воды
Повышают эффективность котлов с помощью сложных структур выходных узлов. В таких конструкциях повышается температура теплоносителя . Аналогичные функции выполняют полые стенки корпуса.
Котлы длительного горения на дровах для дома. Необходимость часто подбрасывать дрова весьма неудобна. Однако есть котлы, которые требуют внимание раз в сутки. Подробнее в отдельной публикации.
Водяной котел на дровах своими руками. Создаем котел отопления на дровах своими руками
Иногда подобные устройства ничем не уступают промышленным моделям – как по показателям эффективности, так и по параметрам мощности. В домашних условиях при соблюдении определенных правил и обладая нужным опытом и знаниями, можно изготовить водяной котел отопления на дровах сложнейшей конструкции, который по своим рабочим характеристикам способен превзойти и устройство, собранное в заводских условиях.
Изготовление котла также будет зависеть и от того, насколько точно будут произведены расчеты.
Для того чтобы изготовить проточный котел отопления на дровах, потребуются такие материалы, которые несложно достать, и которые нередко находятся у владельцев частных домов под руками. Особое внимание необходимо уделить таким моментам, как расчет рабочей температуры котла, толщина метала и другим. Если металл будет слишком тонким или рабочая температура котла будет чрезмерно высокой, то металл может выгореть.

Чертеж самодельного котла на твердом топливе
Самодельный котел для водяного отопления на дровах можно изготовить и из старых или списанных котлов, которые ранее использовались в котельной или в паровозах. Таким образом, вы получите устройство, которое уже соответствует многим заданным условиям. Отопительный котел водяного отопления своими руками можно изготовить и из такого устройства, как готовая печь на дровах. Можно пройтись по пунктам, где принимают металлолом, по ближайшим свалкам, и получить котел за небольшую сумму или совершенно бесплатно. Самодельные котлы водяного отопления обойдутся тогда во много раз дешевле, чем котел, собранный на заводе.
Самодельный котел для отопления дома. Самодельные котлы отопления: пошаговая технология изготовления котла своими руками (газового, дровяного, электрического)
Горячая вода по запросу и отопление — это современный комфорт, к которому все привыкли. Однако не так давно в истории горячая вода использовалась только для приготовления пищи и для еженедельного приема ванны.

Сложно поверить, что еще сто лет назад — горячая вода была настоящей роскошью. Чтобы не терять преимущества комфортной жизни на даче или во временном жилье, можно сделать котел самостоятельно.

Основы автономного водонагревателя
Суть отсутствия электросети — быть независимым от муниципальных источников. Быть свободным от ежемесячных счетов за коммунальные услуги и обеспечивать свой дом собственной энергией — это основа автономного образа жизни.

Сегодня многие предпочитают жить в уединении, далеко от городской и деревенской суеты, однако отказываться от благ современности — люди пока не готовы.

Для автономного водонагревателя вам понадобятся два предмета: энергия для тепла и вода. Что касается энергии, есть три основных источника, которые можно использовать для нагрева воды:
- Энергия солнца.
- Природные газы.
- Горящая древесина.
Использование дров для нагрева воды — удобно и дешево. Собирать топливо можно на территории проживания, даже если нет рядом компании, которая будет поставлять ресурс к дому.

Вариант примитивный, так как придется поддерживать огонь целый день, чтобы иметь доступ к благам современности. Также стоит учитывать, что потребление ресурса в зимний период — будет очень большим.

Использование энергии солнца доступно только на территориях, где оно есть постоянно. В России и странах СНГ мало используют этот вид энергии из-за климатических особенностей. Остается газ, который есть везде, даже в самых отдаленных уголках.

3 метода нагрева воды
Есть несколько практических способов нагрева воды, даже если рядом нет общих сетей. Эти способы помогут обеспечить даже небольшую баню горячей водой, если она находится глубоко в лесу или в заброшенном дачном поселке.
Самодельный газовый котле
Несмотря на то, что использование пропана не является безопасным источником энергии вне сети, во многих ситуациях это имеет смысл. Практически в каждом маленьком городке и почти на всех заправках есть этот газ. Есть частные компании по производству, которые заправят баллоны прямо на территории.
- Самый простой способ изготовления — взять старый баллон, разрезать его болгаркой, подвести внутренние коммуникации и начать использование. Без конкретного чертежа — сделать это практически невозможно.
- Более того, такой вариант не одобрит ни одна инстанция, поэтому умельцы используют систему на свой страх и риск. Водонагреватель эффективен, особенно подходит для обеспечения водой на заброшенных дачных участках, где есть только колодец.

Работать такое устройство будет по принципу стандартной газовой колонки, вода по отводам будет нагреваться за счет горения. Если блок будет достаточно мощным — можно подсоединить выход для отопления. Горячая вода будет совершать циркуляцию по кругу, постоянно проходя через огонь.

Электрический котел своими руками
Поможет запастись горячей водой на несколько часов. В отличие от газового метода, такой бойлер будет намного безопаснее. Сделать устройство не просто, так как нужно учесть все особенности электрической инженерии.
- В самом плохом случае — возникнет замыкание, деревянный дом превратится в угли меньше, чем за час.
- Поэтому экспериментируя с чертежами, нужно отдавать себе отчет в том, что вся ответственность всегда лежит только на владельце.
- Более того, установить готовый прибор своими руками — будет намного дешевле и безопаснее, чем создавать конструкцию с нуля.

Также стоит понимать, что для получения просто горячей воды метод более чем подходит, однако для отопления — нет. Огромное количество ресурсов будет потрачено для обеспечения даже небольшого дома теплом.

Чертежи самодельных котлов отопления лучше использовать от тех, кто имеет профильное образование в этой сфере.

Солнечный водонагреватель своими руками
Идеально подходит для дач, которые посещают в летний период. Метод производства довольно простой:
- Найдите старый сломанный водонагреватель. Чаще всего, такой имеется в подсобке или в гараже.
- Удалите все лишнее, оставив только бак.
- Покрасьте этот бак полностью в черный цвет.
- Подсоедините шланг к резервуару и наполните его холодной водой.
- В течение дня вода сама от солнца будет нагреваться. Черный цвет гарантирует то, что лучи буду беспощадно греть металл, создавая тепло внутри резервуара.

В жаркий летний период — температура воды в 50-60 градусов по такому методу — гарантирована. Безопасно, дешево и очень просто в создании. Можно даже усилить воздействие солнца, построив коробку вокруг бака.

Нужно покрасить внутреннюю часть коробки в черный цвет. Верхняя панель должна быть стеклянной, чтобы сквозь нее проходил солнечный свет. В качестве дополнительного материала можно использовать старое стекло или даже осколки.

Самый главный плюс — минимум расходов, использование практически бесплатно. Однако такого варианта будет недостаточно для зимнего отопления.
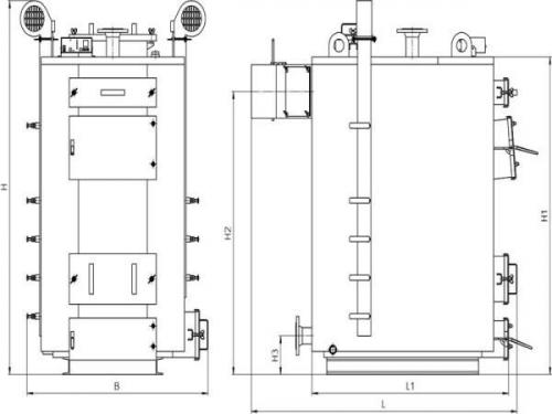
Дровяной котел для водяного отопления. Монтаж отопления в частном доме с котлом на дровах
Дровяные котлы с водяным контуром для отопления частного дома, подключаются к уже существующей системе обогрева с принудительной или естественной циркуляцией теплоносителя. Во время проведения монтажных работ, выполняют требования ППБ и СНиП.
Еще одним важным вопросом, учитываемым во время подключения, является необходимость в размещении вместительного топливного хранилища. Котел, за сезон сжигает 10-15 кубометров дров. Хранилище должно быть сухим, доступным, вместительным и безопасным.
Где можно устанавливать дровяной котел
Водогрейный котел на дровах для отопления частного дома, устанавливается в любом месте, при условии, что оно соответствует техническим и противопожарным требованиям. Общими рекомендациями, относительно выбора помещения под котельную, являются:
- Под нужды котельной в частном доме на дровах, используют любое техническое помещение, соответствующее следующим требованиям: высота потолков не менее 2,2 м, площадь 8-12 м². Присутствует приточная и вытяжная вентиляция и освещение.
- Дровяной котел для отопления частного дома с водяным отоплением, устанавливают на прочное основание. В случае подключения чугунного агрегата, потребуется сделать бетонный фундамент.
- Чтобы предотвратить случайное возгорание при закладке дров, деревянное основание, по направлению открытия топочной дверки, застилают металлическим или асбестоцементным листом.
- Хранилище под дрова размещают в смежном помещении.
- Котел устанавливают в удобном для облуживания месте. Ко всем узлам: системе водоподготовки и фильтрации, оставляют свободный доступ.
- Современное отопление частного дома дровяным котлом, зачастую требуют подключения к электросети. Обязательно устанавливают стабилизатор напряжения и источник бесперебойного питания. Автоматику подключают напрямую от щитовой, через автоматы и УЗО.
- Монтаж дымохода проводят с соблюдением пожарных требований при установке. Все греющиеся элементы, при прохождении плит перекрытия и кровельной разделки, изолируют. На оголовок трубы устанавливаю искрогаситель. Варианты дымоходов обсуждаются здесь .

Установить дровяной котел в подвале можно при условии, что помещение будет сухим и отапливаемым. Соблюдение данных условий продлит время эксплуатации стальных теплогенераторов.Простой котел своими руками. Домашняя технология производства отопительного оборудования
В поисках ответа на вопрос, как сделать котел отопления своими руками достаточно быстро приходишь к убеждению, что ничего особенно сложного в этом нет. При условии грамотной организации производственного процесса. Удобнее отдельные детали делать на верстаке в оборудованной мастерской или ином месте, где можно сделать рабочий стол.
Изготовление деталей корпуса
Основу любого твердотопливного котла для отопления частного дома составляет топка, где температура достигает 1000 ⁰С и для ее сборки потребуются материалы с соответствующими характеристиками. Порядок изготовления корпуса следующий:
- При отсутствии жаропрочных сталей можно обойтись и обычной, но для обеспечения долговечности узла его стенки делаются двойными. Передняя, задняя, боковые и нижняя стенки вырезаются из стального листа при помощи угловой шлифовальной машинки;
- Чертежи котлов отопления имеют обозначения точных размеров всех деталей, которые переносятся на металлопрокат при помощи измерительного инструмента и большой линейки. Помимо стенок камеры из стальной профильной трубы нарезается необходимое количество для использования их в качестве ребер жесткости. Из стального уголка изготавливаются усилители для стыков между отдельными частями печи;
- В передней стенке необходимо проделать прямоугольное отверстие, соответствующее по размерам дверцам топочного и зольного бункеров.
Полезный совет: для выполнения сквозного прямоугольного отверстия нужной конфигурации наносим на металл разметку, по углам производим сверление листа при помощи электродрели. Угловой шлифовальной машинкой делаем сквозной порез в средней части и ведем его от центра к краю. Это позволит избежать лишних повреждений листа.

Изготовление емкостей для воды и теплообменников
Эффективная конструкция отопительного котла предусматривает наличие двух баков для воды. Их делают из нержавеющего стального листа, для сварки которого необходимо специальное оборудование и определенная квалификация. Тут лучше довериться профессионалам и заказать эти емкости в специализированной мастерской.

Конструкция теплообменника представляет собой набор из водопроводных труб. При помощи сварочного аппарата они соединяются таким образом, чтобы образовать проточный контур с максимально большой внешней поверхностью. Это обеспечит быструю и наиболее полную теплоотдачу от сгораемого топлива к теплоносителю.

