Котел для отопления частного дома своими руками. Виды отопительных котлов
- Котел для отопления частного дома своими руками. Виды отопительных котлов
- Самодельные котлы отопления чертежи. Котлы шахтного типа
- Самодельный котел для отопления дома. Самодельные котлы отопления: пошаговая технология изготовления котла своими руками (газового, дровяного, электрического)
- Экономичный дровяной котел своими руками. Котел длительного горения своими руками: чертежи изделий и ТОП-11 лучших моделей
- Простой котел своими руками. Домашняя технология производства отопительного оборудования
- Как правильно развести отопление в частном доме. Однотрубные системы
- Котел водяного отопления на дровах своими руками. Котлы с пиролизным типом горения
- Простая система отопления частного дома. Однотрубная горизонтальная
- Водяное отопление в частном доме с насосом. Виды котлов и других водогрейных аппаратов
Котел для отопления частного дома своими руками. Виды отопительных котлов
Выбор типа самодельного котла отопления зависит от того на каком топливе он будет работать. Отсюда классификация:
- К электрическим котлам отопления не предъявляются высокие требования по безопасности. Конструкция состоит из емкости, которую несложно сделать из отрезка трубы с диаметром больше чем у подводящих патрубков отопительной системы. Внутри устанавливают ТЭНы. Несмотря на простоту изготовления такой котел для отопления экономически не выгоден, так как цена электроэнергии высокая. Поэтому этот вариант выбирают для периодического отопления небольших дачных домиков.
- У газовых котлов высокий КПД и невысокая цена топлива. Однако из-за взрывоопасности газа требования даже к заводским моделям очень высокие. Поэтому получить разрешение на установку и эксплуатацию самодельного котла отопления практически невозможно, а при монтаже в подвале и теоретически.
- В изготовлении жидкотопливного котла своими руками ничего сложного нет. Но для нормальной эксплуатации придется установить емкость для хранения мазута или дизтоплива и проложить от нее утепленный трубопровод. Цена горелки и трудности ее настройки могут отбить желание делать такой котел. Тем более что придется договариваться с пожарной инспекцией о получение разрешения на установку.
- Чаще всего для отопления частного дома устанавливают твердотопливный котел отопления. Его топят дровами, каменным углем, торфом, горючими сланцами. У самодельных котлов этого вида температура на выходе доходит до 120 — 150 ⁰C.
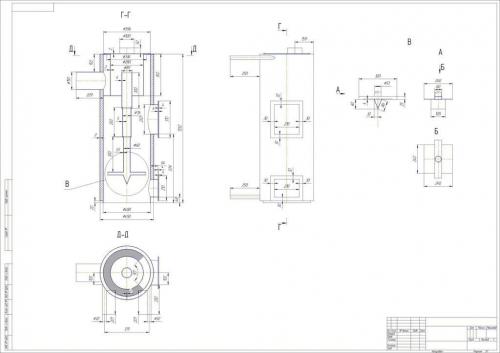
Самодельные котлы отопления чертежи. Котлы шахтного типа
Как уже упоминалось особенностью таких котлов является наличие двух камер: большой вертикальной загрузочной камеры (шахты) и камеры с теплообменником. Топливо поджигается снизу в первой камере и пламя через отверстие попадает в другую, где и отдает свою энергию теплоносителю через теплообменник.
Такие котлы могут быть, как с обычным сжиганием топлива, так и с пиролизным. В первом случае весь необходимый воздух подается через нижнюю дверку, а продукты горения, пройдя через теплообменник, удаляются в дымовую трубу. Во втором случае к месту горения подается ограниченное количество первичного воздуха, где дрова сгорают с выделением пиролизного газа. Кроме того такие конструкции оборудуются дополнительной камерой дожига, куда подается вторичный воздух и осуществляется сжигание газа. В верхней части теплообменной камеры расположена задвижка, которая отрывается при розжиге и позволяющая дымовым газам напрямую выходить в дымовую трубу.

Чертеж-схема котла шахтного типа с камерой дожига
1 — заслонка подачи первичного воздуха; 2 — нижняя дверка для поджига и чистки; 3 — решетка; 4 — дрова; 5 — загрузочная дверка (может располагаться и сверху); 12 — труба с нагретой водой (подача); 13 — пусковая заслонка; 14 — заслонка дымовой трубы; 15 — теплообменник; 16 — подача вторичного воздуха; 17 — камера дожига; 18 — обратка; 19 — слив; 20 — чистка; 21 — заслонка; 22 — колосниковая решетка; 25 — зольник.

Самодельный котел для отопления дома. Самодельные котлы отопления: пошаговая технология изготовления котла своими руками (газового, дровяного, электрического)
Горячая вода по запросу и отопление — это современный комфорт, к которому все привыкли. Однако не так давно в истории горячая вода использовалась только для приготовления пищи и для еженедельного приема ванны.

Сложно поверить, что еще сто лет назад — горячая вода была настоящей роскошью. Чтобы не терять преимущества комфортной жизни на даче или во временном жилье, можно сделать котел самостоятельно.

Основы автономного водонагревателя
Суть отсутствия электросети — быть независимым от муниципальных источников. Быть свободным от ежемесячных счетов за коммунальные услуги и обеспечивать свой дом собственной энергией — это основа автономного образа жизни.

Сегодня многие предпочитают жить в уединении, далеко от городской и деревенской суеты, однако отказываться от благ современности — люди пока не готовы.

Для автономного водонагревателя вам понадобятся два предмета: энергия для тепла и вода. Что касается энергии, есть три основных источника, которые можно использовать для нагрева воды:
- Энергия солнца.
- Природные газы.
- Горящая древесина.
Использование дров для нагрева воды — удобно и дешево. Собирать топливо можно на территории проживания, даже если нет рядом компании, которая будет поставлять ресурс к дому.

Вариант примитивный, так как придется поддерживать огонь целый день, чтобы иметь доступ к благам современности. Также стоит учитывать, что потребление ресурса в зимний период — будет очень большим.

Использование энергии солнца доступно только на территориях, где оно есть постоянно. В России и странах СНГ мало используют этот вид энергии из-за климатических особенностей. Остается газ, который есть везде, даже в самых отдаленных уголках.

3 метода нагрева воды
Есть несколько практических способов нагрева воды, даже если рядом нет общих сетей. Эти способы помогут обеспечить даже небольшую баню горячей водой, если она находится глубоко в лесу или в заброшенном дачном поселке.
Самодельный газовый котле
Несмотря на то, что использование пропана не является безопасным источником энергии вне сети, во многих ситуациях это имеет смысл. Практически в каждом маленьком городке и почти на всех заправках есть этот газ. Есть частные компании по производству, которые заправят баллоны прямо на территории.
- Самый простой способ изготовления — взять старый баллон, разрезать его болгаркой, подвести внутренние коммуникации и начать использование. Без конкретного чертежа — сделать это практически невозможно.
- Более того, такой вариант не одобрит ни одна инстанция, поэтому умельцы используют систему на свой страх и риск. Водонагреватель эффективен, особенно подходит для обеспечения водой на заброшенных дачных участках, где есть только колодец.

Работать такое устройство будет по принципу стандартной газовой колонки, вода по отводам будет нагреваться за счет горения. Если блок будет достаточно мощным — можно подсоединить выход для отопления. Горячая вода будет совершать циркуляцию по кругу, постоянно проходя через огонь.

Электрический котел своими руками
Поможет запастись горячей водой на несколько часов. В отличие от газового метода, такой бойлер будет намного безопаснее. Сделать устройство не просто, так как нужно учесть все особенности электрической инженерии.
- В самом плохом случае — возникнет замыкание, деревянный дом превратится в угли меньше, чем за час.
- Поэтому экспериментируя с чертежами, нужно отдавать себе отчет в том, что вся ответственность всегда лежит только на владельце.
- Более того, установить готовый прибор своими руками — будет намного дешевле и безопаснее, чем создавать конструкцию с нуля.

Также стоит понимать, что для получения просто горячей воды метод более чем подходит, однако для отопления — нет. Огромное количество ресурсов будет потрачено для обеспечения даже небольшого дома теплом.

Чертежи самодельных котлов отопления лучше использовать от тех, кто имеет профильное образование в этой сфере.

Солнечный водонагреватель своими руками
Идеально подходит для дач, которые посещают в летний период. Метод производства довольно простой:
- Найдите старый сломанный водонагреватель. Чаще всего, такой имеется в подсобке или в гараже.
- Удалите все лишнее, оставив только бак.
- Покрасьте этот бак полностью в черный цвет.
- Подсоедините шланг к резервуару и наполните его холодной водой.
- В течение дня вода сама от солнца будет нагреваться. Черный цвет гарантирует то, что лучи буду беспощадно греть металл, создавая тепло внутри резервуара.

В жаркий летний период — температура воды в 50-60 градусов по такому методу — гарантирована. Безопасно, дешево и очень просто в создании. Можно даже усилить воздействие солнца, построив коробку вокруг бака.

Нужно покрасить внутреннюю часть коробки в черный цвет. Верхняя панель должна быть стеклянной, чтобы сквозь нее проходил солнечный свет. В качестве дополнительного материала можно использовать старое стекло или даже осколки.

Самый главный плюс — минимум расходов, использование практически бесплатно. Однако такого варианта будет недостаточно для зимнего отопления.
Экономичный дровяной котел своими руками. Котел длительного горения своими руками: чертежи изделий и ТОП-11 лучших моделей
При доскональном и правильном изучении чертежей твердотопливных котлов вполне возможно сделать котел длительного горения своими руками надежным и экономичным.
Твердотопливные котлы уже не одно десятилетие пользуются немалой популярностью, хотя и имеют один существенный минус – они нуждаются в постоянной загрузке топлива (угля, дров и т. д.). Из-за этого недостатка от них нередко отказываются при обустройстве отопительной системы, но от него легко избавиться – сделать котел длительного горения своими руками, функционирующий почти на всех типах(исключительно твердого, разумеется).

Котел длительного горения своими руками

Для растопки котла можно использовать уголь
Как устроен самодельный котел длительного горения
Принцип работы
Схема работы таких котлов основывается на особенноститлеть несколько часов, производя при этом большое количество тепловой энергии. Характерно, что топливо в таком случае сжигается более полно, а количество отходов, как следствие, заметно снижается.

Чертеж котла
Обратите внимание! Замена активного сжигания тлением возможна ввиду особого устройства отопительного котла.
Основным элементом котла является топка, где горение ограничено, а интенсивность подачи воздуха контролируется при помощи специальных приспособлений. Топливо загружается два раза в сутки большими порциями, после чего медленно тлеет (ограниченное количество кислорода не позволяет ему полноценно гореть).
Труба, посредством которой выводится дым, пропускается через теплообменники и нагревает жидкость в отопительной системе. Выходит, достаточно лишь каждые 12 часов загружать топливо для бесперебойного обогрева дома.

Схема котла
Основные преимущества
Котлы длительного горения выделяются на фоне отопительных систем других типов. Конечно, основное преимущество – это именно длительность работы, но есть и другие важные моменты:
- низкая стоимость топлива;
- автономность;
- возможность обогрева больших площадей при минимальных расходах;
- легкость монтажа и эксплуатации;
- безопасность;
- возможность изготовления в домашних условиях.

Виды твердотопливных котлов
Устройство прибора
Для изготовления котла удобнее использовать металлическую трубу ø30 см и больше с толщиной стенок не менее 5 мм (иначе последние в скором времени прогорят из-за высокой температуры внутри прибора). Высота конструкции может колебаться между 80 см и 100 см, все зависит от площади помещения.
Труба для корпуса
Вне зависимости от модификации котел состоит из трех основных зон:
- загрузочной зоны;
- зоны тления и теплообразования
; - зоны окончательного сжигания, где горит зола и выводятся дымные газы.
Обратите внимание! Прибор, который ограничивает загрузочную зону и, соответственно, время тления, называют распределителем воздуха.
Данный элемент выполняется в виде металлического круга толщиной 5-6 мм с отверстием посередине, через которое с помощью телескопической трубы кислород подается в топку. Диаметр изделия должен быть несколько меньше диаметра корпуса. Высота регулируется посредством специальной крыльчатки.

Котел на дровах длительного горения

Котел на дровах длительного горения
Мнение эксперта:
Масальский А.В.
Редактор категории "строительство" на портале Stroyday.ru. Специалист по инженерным системам и водоотведению.
Обычно зона сжигания не превышает 5 см в высоту – если она будет большей, то топливо будет сгорать слишком быстро. К слову, кислородная труба может быть не только телескопической, но и цельной. Ее диаметр обычно составляет 6 см, в то время как размер отверстия в воздушном распределителе не превышает 2 см, дабы не пресыщать зону кислородом.

Котел длительного горения
Воздух может подаваться одним из двух способов:
- прямо из атмосферы;
- из специальной камеры нагрева (она располагается в верхней части конструкции), что обеспечивает более эффективную работу котла.
Для регулировки используется специальная воздушная заслонка.
Сверху приваривается дымоотводная труба. Она должна вестись перпендикулярно корпусу минимум 0,5 м, иначе образуется чрезмерная тяга.
Снизу оборудуется дверка для удаления продуктов горения. Чистку нужно проводить нечасто, ведь топливо будет сгорать полнее.
Существует два способа нагрева теплоносителя, у каждого есть свои сильные и слабые стороны.

Котел длительного горения
Котел длительного горения
Способ №1. К трубе теплообменника, проходящей через зону сгорания, подключается змеевик, посредством которого и происходит нагрев воды в баке.
Способ №2 . Формируется отдельный металлический бак, сквозь который пропускается труба дымохода. Разгоряченный дым подогревает жидкость.
Первый способ более эффективен, но вместе с тем более сложен в выполнении. Второй сделать проще, но он целесообразен только в небольших домах.
Цены на модельный ряд твердотопливных котлов
Твердотопливные котлы
Изготовление котла длительного горения
Котел
Сделать такую конструкцию в домашних условиях несложно, но для этого потребуются навыкии четкая инструкция.
Простой котел своими руками. Домашняя технология производства отопительного оборудования
В поисках ответа на вопрос, как сделать котел отопления своими руками достаточно быстро приходишь к убеждению, что ничего особенно сложного в этом нет. При условии грамотной организации производственного процесса. Удобнее отдельные детали делать на верстаке в оборудованной мастерской или ином месте, где можно сделать рабочий стол.
Изготовление деталей корпуса
Основу любого твердотопливного котла для отопления частного дома составляет топка, где температура достигает 1000 ⁰С и для ее сборки потребуются материалы с соответствующими характеристиками. Порядок изготовления корпуса следующий:
- При отсутствии жаропрочных сталей можно обойтись и обычной, но для обеспечения долговечности узла его стенки делаются двойными. Передняя, задняя, боковые и нижняя стенки вырезаются из стального листа при помощи угловой шлифовальной машинки;
- Чертежи котлов отопления имеют обозначения точных размеров всех деталей, которые переносятся на металлопрокат при помощи измерительного инструмента и большой линейки. Помимо стенок камеры из стальной профильной трубы нарезается необходимое количество для использования их в качестве ребер жесткости. Из стального уголка изготавливаются усилители для стыков между отдельными частями печи;
- В передней стенке необходимо проделать прямоугольное отверстие, соответствующее по размерам дверцам топочного и зольного бункеров.
Полезный совет: для выполнения сквозного прямоугольного отверстия нужной конфигурации наносим на металл разметку, по углам производим сверление листа при помощи электродрели. Угловой шлифовальной машинкой делаем сквозной порез в средней части и ведем его от центра к краю. Это позволит избежать лишних повреждений листа.

Изготовление емкостей для воды и теплообменников
Эффективная конструкция отопительного котла предусматривает наличие двух баков для воды. Их делают из нержавеющего стального листа, для сварки которого необходимо специальное оборудование и определенная квалификация. Тут лучше довериться профессионалам и заказать эти емкости в специализированной мастерской.

Конструкция теплообменника представляет собой набор из водопроводных труб. При помощи сварочного аппарата они соединяются таким образом, чтобы образовать проточный контур с максимально большой внешней поверхностью. Это обеспечит быструю и наиболее полную теплоотдачу от сгораемого топлива к теплоносителю.
Как правильно развести отопление в частном доме. Однотрубные системы

В однотрубных системах отопления теплоноситель последовательно проходит по всем радиаторам.
Создавая отопление частного дома своими руками, проще всего обустроить однотрубную систему отопления. Она обладает множеством преимуществ, например, экономичностью использования материалов. Здесь мы можем неплохо сэкономить на трубах и добиться доставки тепла в каждое помещение. Однотрубная система отопления предусматривает последовательную доставку теплоносителя в каждую батарею. То есть теплоноситель покидает котел, заходит в одну батарею, потом в другую, потом в третью, и так далее .
Что происходит в последней батарее? Достигнув конца отопительной системы, теплоноситель разворачивается и отправляется обратно в котел по цельной трубе. В чем заключаются основные преимущества подобной схемы?
- Легкость в монтаже – нужно последовательно провести теплоноситель по батареям и вернуть его обратно.
- Минимальный расход материалов – это самая простая и дешевая схема.
- Низкое расположение труб отопления – их можно смонтировать по уровню пола или вовсе опустить под полы (это можно увеличить гидравлическое сопротивление и потребовать применения циркуляционного насоса).
Присутствуют и некоторые недостатки, с которыми приходится мириться:
- ограниченная длина горизонтального участка – не более 30 метров;
- чем дальше от котла, тем холоднее радиаторы.
Впрочем, есть некоторые технические ухищрения, которые позволяют нивелировать эти недостатки. Например, с длиной горизонтальных участков можно справиться установкой циркуляционного насоса. Он же поможет сделать последние радиаторы более теплыми. Компенсировать падение температуры помогут и перемычки-байпасы на каждом из радиаторов. Давайте теперь обсудим отдельные разновидности однотрубных систем.
Котел водяного отопления на дровах своими руками. Котлы с пиролизным типом горения
Для пиролизных котлов также используется твердое топливо, в частности дрова, однако, принцип их работы кардинально отличается от описанных выше установок. Они способны намного дольше и эффективнее отапливать дом, а топливо расходуют более экономно. В связи с этим стоимость таких агрегатов примерно в 1,5-2 раза больше, чем остальных.
Секрет газогенераторных (пиролизных) котлов в том, что под воздействием высокой температуры и при недостатке воздуха древесина преобразуется в древесный уголь, выделяя пиролизный газ.
Для такой реакции необходима температура от 200 ℃ до 800 ℃. При этом выделяется большое количество энергии, которая просушивает дрова и нагревает воздух. Пиролизный газ по трубам перемещается в камеру сгорания, где при смешении с воздухом возгорается – так генерируется большая часть тепла.

Активные углероды участвуют в окислительных процессах при горении пиролизного газа, поэтому выходящий из трубы дым состоит преимущественно из углекислого газа и пара – содержание вредных компонентов ничтожно мало. К тому же, пиролизные котлы в принципе выделяют намного меньше дыма, чем классические установки. Поскольку топливо сгорает практически без остатка, газогенераторные котлы нуждаются в чистке довольно редко.
Стоит отметить, что довольно высокой температуры горения можно добиться даже при наличии сырых дров, однако, в таком случае производительность котла упадет практически вдвое, а значит, настолько же увеличится расход топлива.
Благодаря автоматике интенсивность горения в таком котле можно регулировать, чтобы экономить топливо и создать в помещении оптимальную температуру.
Обратите внимание, что изготовить пиролизный котел отопления на твердом топливе своими руками довольно сложно и очень опасно. В случае ошибок в сборке такая установка может взорваться.
Простая система отопления частного дома. Однотрубная горизонтальная

Самый простой вариант однотрубной горизонтальной системы отопления с нижним подключением.
При создании системы отопления частного дома своими руками схема с однотрубной разводкой может оказаться самой выгодной и дешевой. Она одинаково хорошо подходит как для одноэтажных домов, так и для двухэтажных. В случае с одноэтажным домом она выглядит очень просто – радиаторы соединяются последовательно – с целью обеспечения последовательного протекания теплоносителя . После последнего радиатора теплоноситель отправляется по цельной обратной трубе в котел.
Достоинства и недостатки схемы
Для начала мы рассмотрим основные достоинства схемы:
- простота реализации;
- отличный вариант для небольших домов;
- экономия материалов.

Однотрубная горизонтальная схема отопления – отличный вариант для небольших помещений с минимальным количеством комнат.
Схема действительно очень простая и понятная, поэтому с ее реализацией сможет справиться даже новичок. Она предусматривает последовательное соединение всех устанавливаемых радиаторов. Это идеальная схема разводки отопления для частного дома небольших размеров . Например, если это однокомнатный или двухкомнатный дом, то «городить» более сложную двухтрубную систему не имеет особого смысла.
Глядя на фото такой схемы, мы можем отметить, что обратная труба здесь цельная, она не проходит через радиаторы. Поэтому такая схема более экономичная в плане расхода материалов. Если у вас нет лишних денег, такая разводка станет для вас наиболее оптимальной – она сэкономит деньги и позволит обеспечить дом теплом.
Что касается недостатков, то их мало. Главным недостатком является то, что последняя батарея в доме будет холоднее, чем самая первая. Это связано с последовательным проходом теплоносителя через батареи, где он отдает накопленное тепло в атмосферу. Еще одним недостатком однотрубной горизонтальной схемы является то, что при выходе из строя одной батареи придется отключать сразу всю систему.
Особенности монтажа однотрубной горизонтальной системы
Создавая водяное отопление частного дома своими руками, схема с однотрубной горизонтальной разводкой окажется самой простой для реализации. В процессе монтажа необходимо смонтировать батареи отопления, после чего соединить их отрезками трубы. После подключения самого последнего радиатора необходимо развернуть систему в обратном направлении – желательно, чтобы отводящая труба проходила по противоположной стене.

Однотрубная горизонтальная схема отопления может использоваться и в двухэтажных домах, каждый этаж здесь подключается параллельно.
Чем больше ваше домовладение, тем больше в нем окон и тем больше в нем радиаторов. Соответственно, растут и тепловые потери, в результате чего в последних комнатах становится ощутимо прохладнее. Компенсировать падение температуры можно путем увеличения количества секций на последних радиаторах . Но лучше всего смонтировать систему с байпасами или с принудительной циркуляцией теплоносителя – об этом мы расскажем чуть позже.
Аналогичная схема отопления может быть использована для обогрева двухэтажных домов. Для этого создаются две цепочки радиаторов (на первом и втором этажах), которые подключаются параллельно друг другу. Обратная труба в этой схеме подключения батарей одна, она начинается от последнего радиатора на первом этаже. Туда же подключается обратная труба, спускающаяся со второго этажа.
Водяное отопление в частном доме с насосом. Виды котлов и других водогрейных аппаратов
Эффективность работы отопления в частном доме зависит от установки, нагревающей рабочее тело (воду). Правильно подобранный агрегат вырабатывает количество теплоты, необходимое для радиаторов и бойлера косвенного нагрева (при наличии), экономно расходуя энергоносители.
Автономная водяная система может работать от:
- водогрейного котла, использующего определенное топливо — природный газ, дрова, уголь, солярку;
- электрокотла;
- печи на дровах с водяным контуром ( металлической или кирпичной );
- теплового насоса.
Дополнение. Есть комбинированные типы отопителей, одновременно совмещающие 2—3 энергоносителя, например, уголь – природный газ, дрова – электричество (один экземпляр показан ниже на фото). Также существуют универсальные котлы, куда можно установить дизельную форсунку, газовую или пеллетную горелку – на выбор.

Чаще всего для организации отопления в коттеджах применяют именно котлы – газовые, электрические и твердотопливные. Последние изготавливаются только в напольном исполнении, остальные теплогенераторы – настенном и стационарном. Дизельные агрегаты используются реже, причина – высокая цена горючего. Как правильно выбрать водогрейный бытовой котел, рассматривается в подробном руководстве.
Печное отопление, совмещенное с водяными регистрами или современными радиаторами – неплохое решение для обогрева дачи, гаража и небольшого жилого домика площадью 50—100 м². Недостаток — помещенный внутрь печки теплообменник нагревает воду бесконтрольно. Чтобы избежать закипания, важно обеспечить принудительную циркуляцию в системе.
Справка. Раньше подобные схемы делались самотечными – без насоса, с открытым расширительным бачком. Регистры и магистрали сваривались из стальных труб диаметром 40…80 мм (внутренний), прокладываемых с уклоном 3—5 мм на 1 м для лучшего самотека. Отопление называли паровым, поскольку система не боялась закипания.

Современная гравитационная система без перекачивающего агрегата, работающая от водяного контура кирпичной печи
Тепловые насосы не получили широкого распространения на территории стран бывшего Союза. Причины:
- основная проблема — дороговизна оборудования;
- из-за холодного климата аппараты типа «воздух – вода» попросту неэффективны;
- геотермальные системы «земля – вода» сложны в монтаже;
- электронные блоки и компрессоры тепловых насосов весьма дороги в ремонте и обслуживании.
Из-за высокой цены срок окупаемости агрегатов превышает 15 лет. Но эффективность установок (3—4 кВт теплоты на 1 затраченный киловатт электроэнергии) привлекает мастеров – умельцев, пытающихся собрать самодельные аналоги из старых кондиционеров.
