Самодельные котлы на твердом топливе своими руками. Как работает агрегат
- Самодельные котлы на твердом топливе своими руками. Как работает агрегат
- Самодельный твердотопливный котел. Котел длительного горения своими руками: чертежи изделий и ТОП-11 лучших моделей
- Твердотопливный котел длительного горения своими руками: чертежи. 3 Котёл с верхним горением топлива
- Простой котел своими руками. Домашняя технология производства отопительного оборудования
- Самодельный котел для отопления дома. Виды отопительных котлов
- Котел водяного отопления на дровах своими руками. Сварка дровяного котла – самостоятельный монтаж
- Чертеж твердотопливного котла своими руками. Каков реальный КПД твердотопливных котлов
- Экономичный дровяной котел своими руками. Отопление дровами – плюсы и минусы
Самодельные котлы на твердом топливе своими руками. Как работает агрегат
Обычные твердотопливные котлы способны проработать на одной закладке около 6-7 часов. Если по истечении этого времени в топку не подбросить очередную порцию топлива, это приведет к снижению температуры в доме. Причина кроется в циркуляции основного тепла в помещении по принципу свободного движения воздуха: после нагревания он поднимается вверх и выходит на улицу. Тепловой ресурс одной закладки дров прибора длительного горения рассчитан на 24-48 часов. В отдельных моделях горение поддерживается почти неделю.
Секрет здесь в следующем: в отличии от традиционных котлов, схема котла длительного горения включает в себя не одну, а две камеры сгорания. Первая из них предназначена для сжигания топлива, вторая – для поступивших из первой камеры газов. Качество процесса во многом зависит от своевременной подачи воздуха, для чего в конструкции имеется вентилятор. Подобный подход является инновационным: его впервые представила литовская компания Stropuva в 2000 году, после чего чертежи твердотопливных котлов длительного горения были взяты на вооружение ведущими производителями котельного оборудования.

На сегодняшний день агрегаты, работающие по этому принципу, являются наиболее недорогим и практичным вариантом обогрева домов в местностях, лишенных газификации. Сутью работы приборов данного типа выступает горение верхнего топлива. Обычно месторасположением топки является нижняя часть: как следствие, холодный воздух после нагревания имеет возможность подниматься вверх. Котлы длительного горения очень похожи на пиролизные: выделение основной порции тепла происходит не от сгорания твердых брикетов, а от выделившегося при этом газа.
Для сгорания внутри конструкции имеется специальное закрытое пространство. Камеры соединены между собой телескопической трубой, по которой выделившийся газ из первого отделения поступает во второе. Процесс его дожига сопровождается смешиванием с холодным воздухом, нагнетаемым вентилятором. Эта процедура проистекает без пауз, до полного перегорания топлива. Она отличается достаточно высоким температурным режимом – до +1200 градусов.
Камера для сжигания твердого топлива имеет более обширные размеры: ее объем иногда достигает 500 дм3. В нее можно загружать уголь, опилки, дрова, паллеты. Стабильное нагнетание воздуха обеспечивается встроенным вентилятором. Процесс горения характеризуется очень медленной скоростью расхода топлива. Как следствие, экономичность котельного оборудования резко возрастает.
Причина медленного прогорания заключается в нагнетании воздуха, в результате чего прогорает только верхняя часть топливной закладки. Увеличение подачи воздуха происходит только после полного перегорания верхнего слоя. В продаже имеется целый ряд нагревательных приборов, сутью работы которых является один и тот же чертеж котла длительного горения на дровах. Разная степень их экономичности и эффективности объясняется различием размеров, материалов изготовления и наличием дополнительных функций. Для работы универсальных ТТ котлов можно использовать любое топливо, что значительно упрощает их обслуживание. Наиболее экономичными моделями считаются дровяные ТТ котлы.
Самодельный твердотопливный котел. Котел длительного горения своими руками: чертежи изделий и ТОП-11 лучших моделей
При доскональном и правильном изучении чертежей твердотопливных котлов вполне возможно сделать котел длительного горения своими руками надежным и экономичным.
Твердотопливные котлы уже не одно десятилетие пользуются немалой популярностью, хотя и имеют один существенный минус – они нуждаются в постоянной загрузке топлива (угля, дров и т. д.). Из-за этого недостатка от них нередко отказываются при обустройстве отопительной системы, но от него легко избавиться – сделать котел длительного горения своими руками, функционирующий почти на всех типах(исключительно твердого, разумеется).

Котел длительного горения своими руками

Для растопки котла можно использовать уголь
Как устроен самодельный котел длительного горения
Принцип работы
Схема работы таких котлов основывается на особенноститлеть несколько часов, производя при этом большое количество тепловой энергии. Характерно, что топливо в таком случае сжигается более полно, а количество отходов, как следствие, заметно снижается.

Чертеж котла
Обратите внимание! Замена активного сжигания тлением возможна ввиду особого устройства отопительного котла.
Основным элементом котла является топка, где горение ограничено, а интенсивность подачи воздуха контролируется при помощи специальных приспособлений. Топливо загружается два раза в сутки большими порциями, после чего медленно тлеет (ограниченное количество кислорода не позволяет ему полноценно гореть).
Труба, посредством которой выводится дым, пропускается через теплообменники и нагревает жидкость в отопительной системе. Выходит, достаточно лишь каждые 12 часов загружать топливо для бесперебойного обогрева дома.

Схема котла
Основные преимущества
Котлы длительного горения выделяются на фоне отопительных систем других типов. Конечно, основное преимущество – это именно длительность работы, но есть и другие важные моменты:
- низкая стоимость топлива;
- автономность;
- возможность обогрева больших площадей при минимальных расходах;
- легкость монтажа и эксплуатации;
- безопасность;
- возможность изготовления в домашних условиях.

Виды твердотопливных котлов
Устройство прибора
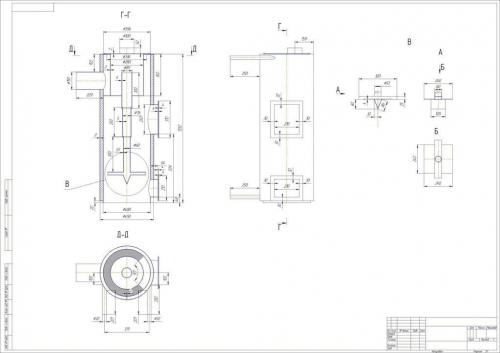
Для изготовления котла удобнее использовать металлическую трубу ø30 см и больше с толщиной стенок не менее 5 мм (иначе последние в скором времени прогорят из-за высокой температуры внутри прибора). Высота конструкции может колебаться между 80 см и 100 см, все зависит от площади помещения.
Труба для корпуса
Вне зависимости от модификации котел состоит из трех основных зон:
- загрузочной зоны;
- зоны тления и теплообразования
; - зоны окончательного сжигания, где горит зола и выводятся дымные газы.
Обратите внимание! Прибор, который ограничивает загрузочную зону и, соответственно, время тления, называют распределителем воздуха.
Данный элемент выполняется в виде металлического круга толщиной 5-6 мм с отверстием посередине, через которое с помощью телескопической трубы кислород подается в топку. Диаметр изделия должен быть несколько меньше диаметра корпуса. Высота регулируется посредством специальной крыльчатки.

Котел на дровах длительного горения

Котел на дровах длительного горения
Мнение эксперта:
Масальский А.В.
Редактор категории "строительство" на портале Stroyday.ru. Специалист по инженерным системам и водоотведению.
Обычно зона сжигания не превышает 5 см в высоту – если она будет большей, то топливо будет сгорать слишком быстро. К слову, кислородная труба может быть не только телескопической, но и цельной. Ее диаметр обычно составляет 6 см, в то время как размер отверстия в воздушном распределителе не превышает 2 см, дабы не пресыщать зону кислородом.

Котел длительного горения
Воздух может подаваться одним из двух способов:
- прямо из атмосферы;
- из специальной камеры нагрева (она располагается в верхней части конструкции), что обеспечивает более эффективную работу котла.
Для регулировки используется специальная воздушная заслонка.
Сверху приваривается дымоотводная труба. Она должна вестись перпендикулярно корпусу минимум 0,5 м, иначе образуется чрезмерная тяга.
Снизу оборудуется дверка для удаления продуктов горения. Чистку нужно проводить нечасто, ведь топливо будет сгорать полнее.
Существует два способа нагрева теплоносителя, у каждого есть свои сильные и слабые стороны.

Котел длительного горения
Котел длительного горения
Способ №1. К трубе теплообменника, проходящей через зону сгорания, подключается змеевик, посредством которого и происходит нагрев воды в баке.
Способ №2 . Формируется отдельный металлический бак, сквозь который пропускается труба дымохода. Разгоряченный дым подогревает жидкость.
Первый способ более эффективен, но вместе с тем более сложен в выполнении. Второй сделать проще, но он целесообразен только в небольших домах.
Цены на модельный ряд твердотопливных котлов
Твердотопливные котлы
Изготовление котла длительного горения
Котел
Сделать такую конструкцию в домашних условиях несложно, но для этого потребуются навыкии четкая инструкция.
Твердотопливный котел длительного горения своими руками: чертежи. 3 Котёл с верхним горением топлива
Есть и другая схема твердотопливных котлов длительного горения. Своими руками такой сделать тоже несложно. Принцип работы заключается в верхнем горении дровяных газов.
В странах СНГ известны два типа таких устройств:
- «Стропува» — агрегаты прибалтийского производства;
- печи Бубафоня.
Последние завоевали большую популярность среди жителей бывшего Советского Союза. Как правило, их используют для помещений, где эстетичный внешний вид не имеет никакого значения (технические помещения, гаражи и т. п. ).
Суть их эффективной работы заключается в наличии двух камер сгорания. Снизу в трубу с большим диаметром (основы конструкции) закладываются дрова. Сверху их прижимает так называемый груз — тяжёлый круг. К нему в перпендикулярном положении приваривается по центру трубка, которая выходит с самого верха котла, а в самом грузе проделывается в этом месте отверстие для подачи воздуха к дровам. Место, где находятся дрова, называют первичной камерой.
Вторичная камера находится сверху круга «груза». Там происходит сжигание газов — продуктов горения. Попадают они во вторичную камеру через зазор между самим кругом и основой. То есть диаметр груза должен быть на несколько сантиметров меньше, чем диаметр трубы основы котла.
В принципе, это вся функциональная часть конструкции, благодаря которой устройство работает в два раза эффективнее, чем обычные твердотопливные котлы. Заключается такое преимущество в том, что газы, которые сгорают во вторичной камере, отдают не меньше тепла, чем сами дрова в первичной.
Источник: https://domastroevo.ru/stati/tverdotoplivnyy-kotel-svoimi-rukami-chto-takoe-tverdotoplivnyy-kotel
Простой котел своими руками. Домашняя технология производства отопительного оборудования
В поисках ответа на вопрос, как сделать котел отопления своими руками достаточно быстро приходишь к убеждению, что ничего особенно сложного в этом нет. При условии грамотной организации производственного процесса. Удобнее отдельные детали делать на верстаке в оборудованной мастерской или ином месте, где можно сделать рабочий стол.
Изготовление деталей корпуса
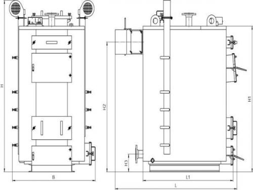
Основу любого твердотопливного котла для отопления частного дома составляет топка, где температура достигает 1000 ⁰С и для ее сборки потребуются материалы с соответствующими характеристиками. Порядок изготовления корпуса следующий:
- При отсутствии жаропрочных сталей можно обойтись и обычной, но для обеспечения долговечности узла его стенки делаются двойными. Передняя, задняя, боковые и нижняя стенки вырезаются из стального листа при помощи угловой шлифовальной машинки;
- Чертежи котлов отопления имеют обозначения точных размеров всех деталей, которые переносятся на металлопрокат при помощи измерительного инструмента и большой линейки. Помимо стенок камеры из стальной профильной трубы нарезается необходимое количество для использования их в качестве ребер жесткости. Из стального уголка изготавливаются усилители для стыков между отдельными частями печи;
- В передней стенке необходимо проделать прямоугольное отверстие, соответствующее по размерам дверцам топочного и зольного бункеров.
Полезный совет: для выполнения сквозного прямоугольного отверстия нужной конфигурации наносим на металл разметку, по углам производим сверление листа при помощи электродрели. Угловой шлифовальной машинкой делаем сквозной порез в средней части и ведем его от центра к краю. Это позволит избежать лишних повреждений листа.

Изготовление емкостей для воды и теплообменников
Эффективная конструкция отопительного котла предусматривает наличие двух баков для воды. Их делают из нержавеющего стального листа, для сварки которого необходимо специальное оборудование и определенная квалификация. Тут лучше довериться профессионалам и заказать эти емкости в специализированной мастерской.

Конструкция теплообменника представляет собой набор из водопроводных труб. При помощи сварочного аппарата они соединяются таким образом, чтобы образовать проточный контур с максимально большой внешней поверхностью. Это обеспечит быструю и наиболее полную теплоотдачу от сгораемого топлива к теплоносителю.
Самодельный котел для отопления дома. Виды отопительных котлов
Котлы, работающие на газу
Перед началом самостоятельного изготовления котла, необходимо определиться с его видом, который зависит от типа топлива, нагреваемого тепловой носитель. При желании можно соорудить котел, работающий от любого топлива. Найти необходимую информацию можно на ресурсах интернета. Однако прежде чем сделать выбор, стоит иметь представление о преимуществах и недостатках самых известных из них.
- Котлы для отопления, работающие на газу. Данный вид не стоит пытаться изготовить своими руками, так как к ним предъявляется очень много требований, которые вы вряд ли сможете удовлетворить. Ну и не менее важная причина – это высокая вероятность взрыва в ходе эксплуатации. Монтаж газового котла запрещен в подвальном помещении дома.
- Для изготовления электрического котла вам не потребуется профессиональных навыков и наличия множества материалов. Нельзя не отметить огромный недостаток – высокие цены на электрическую энергию. Это является идеальным вариантом для периодического обогрева домика на даче, но для постоянного использования электрический котел очень дорог.
- Котел с жидким топливом вполне подходит для изготовления своими руками, но стоимость топлива и особенности настройки форсунок могут вызвать немалые сложности в ходе работ.
- Среди всех перечисленных вариантов самым оптимальным можно назвать котел, работающий на твердом топливе, в качестве которого можно успешно использовать дрова.
Котел водяного отопления на дровах своими руками. Сварка дровяного котла – самостоятельный монтаж
Простота процесса заключается ещё и в доступности материалов и инструментов для работы. Потребуются навыки сварного дела. Итак, что нужно:
- Старая бочка из-под ГСМ или самостоятельно сваренный короб. Тару предварительно выжигают от остатков масел – заполняют дровами и растапливают будущий котёл.
- Листовой, толстостенный металл. Из него будет изготавливаться теплообменник. Кстати, альтернативная замена этому – старые, отжившие своё чугунные радиаторы. Пять-шесть секций будет вполне достаточно для корпуса.
- Трубы профильные. Они потребуются для изготовления дымохода и сборки станины, на которую будет монтироваться котёл. Диаметр и толщина стенок должна быть внушительной, чтобы выдержать вес котла, заполненного топливом и водой.
- Приобретаются колосники, заслонки, дверцы. Если помещение внушительное или объект в два этажа, то потребуется циркуляционный насос – без него носитель не поднимется на высоту, и есть риск размораживания системы в морозы. Недурно установить на готовый котёл манометр и термометр, чтобы контролировать давление и температуру носителя.
- Для трубной разводки потребуются металлопластиковые патрубки и радиаторы – котлы отопления на дровах с водяным контуром без этого неприемлемы.
Будущий корпус должен быть обязательно герметичным – это проверяется ещё на стадии выжигания. Если имеются незначительные дефекты в виде дыр, то их заваривают и заполняют бочку водой – течи быть не должно.
Чугун примечателен тем, что долго не остывает. Но если подпитывать горячий котёл холодной водопроводной водой, то теплообменник неминуемо лопнет. Перед монтажом секции разбирают, вымачивают в кислоте и собирают, используя асбест-шнур, вымоченный в олифе.

Чертеж твердотопливного котла своими руками. Каков реальный КПД твердотопливных котлов
Производители отопительного оборудования, в частности твердотопливных котлов, предлагают большой ассортимент продукции с различными характеристиками.
Исходя из конструкции котла на твердом топливе, все изделия можно разделить на такие группы:
- традиционные отопительные агрегаты;
- дровяные котлы с пиролизным типом горения (газогенераторные);
- длительного горения;
- пеллетные.
Традиционный котел на твердом топливе, самодельный в том числе, по внешнему виду напоминает печь или буржуйку с самыми необходимыми элементами – топочной камерой, дверцей, зольником и дымоходом. С помощью зольника можно регулировать тягу, открывая и закрывая заслонку. Такие конструкции считаются достаточно надежными, поскольку в них нет никаких технологичных элементов, например термодатчиков или градусников, автоматического блока управления или электроники. В данном случае основным элементом конструкции твердотопливного котла является теплообменник, передающий тепловую энергию теплоносителю. Теплообменник бывает трубчатым или изготавливается в виде емкости из сплошных стальных листов.

Есть, однако, и более сложные устройства, которые тоже можно отнести к традиционным. Они оснащены перегородками и дроссельными заслонками, чтобы тягу было удобнее регулировать, а горячий воздух проходил большее расстояние до момента выхода в дымовую трубу. Такие перегородки существенно увеличивают КПД котла, поскольку больше тепловой энергии передается теплоносителю, а не просто «вылетает в трубу». Нужно понимать, что КПД котла это очень важный показатель.
Для подобных котлов можно использовать практически любое топливо – дрова, уголь, пеллеты и даже мусор. Главное, чтобы оно было как можно суше. С точки зрения производительности котлы простых конструкций едва ли могут претендовать на 50 % КПД, а в большинстве случаев он составляет всего лишь 15-20 %. Проблема заключается в том, что топливо слишком быстро сгорает, не успевая передать всю тепловую энергию воде в теплообменнике. В результате, большее количество тепла просто выводится в дымоход или его избыток заставляет теплоноситель закипать. Например, дрова нужно добавлять в топку каждый час, а угля хватит на 2-4 часа, но все равно он сгорает с избытком энергии и большими теплопотерями.
Более экономными и производительными являются современные котлы с перегородками и дроссельными заслонками. В них температуру сгорания топлива можно регулировать, а одной загрузки топлива хватает на 8-12 часов. Поэтому КПД таких установок нередко достигает 80 %.
Экономичный дровяной котел своими руками. Отопление дровами – плюсы и минусы
Самодельные дровяные котлы активно используются для обогрева жилых помещений – это небольшие дачные домики и крупные частные домовладения, расположенные в местах, далеких от газовых магистралей. В качестве топлива для них используются дрова или каменный уголь. Угольные агрегаты отличаются высоким тепловыделением, но достать это топливо получается далеко не всегда. Поэтому люди отдают предпочтение дровяным моделям.
Давайте рассмотрим основные достоинства самодельных котлов на дровах:
- Не нужно разрешение на установку и эксплуатацию – мы вправе самостоятельно распоряжаться данным оборудованием;
- Дешевизна в эксплуатации – по сравнению с электрическим отоплением, обогрев дровами более дешев. А если обрести источник бесплатных поленьев, то останется потратиться только на сборку отопительного котла;
- Независимость от электросетей – это относится к самым простым агрегатам, в составе которых отсутствуют электрические узлы;
- Возможность реализации длительного горения – оно позволит снизить количество подходов для закладки все новых порций горючего;
- Дешевизна в сборке – самодельный котел на дровах для частного дома будет стоить дешевле, чем его заводской аналог.
Есть и некоторые недостатки:

Только постоянная чистка котла и его систематический плановый ремонт смогут обеспечить стабильную и эффективную работу агрегата на всем протяжении его эксплуатации.
- Самодельные дровяные котлы для отопления дома могут не выйти на максимальный КПД – сказываются ошибки кустарной сборки;
- Котлы на твердом топливе на угле и дровах требуют регулярной очистки – то есть, мы можем избавиться от необходимости частой закладки горючего, но с проблемой очистки справиться невозможно. Поэтому нам придется регулярно очищать оборудование от сажи и золы;
- Сложность самостоятельного монтажа – самодельные котлы длительного горения на дровах, с водяным контуром, могут показаться сложными в изготовлении. И чем меньше опыта работы с инструментами, тем более сложной покажется задача.
Кроме того, самодельные котлы длительного горения не отличаются нормальными внешними данными, хотя здесь все зависит от мастерства сборщика.
Помимо сажи и угольков, в котлах длительного горения может образовываться конденсат – он образуется в результате использования сырых дров.
