100 лучших идей дизайна. Волшебная игра цветов и аксессуары
100 лучших идей дизайна. Волшебная игра цветов и аксессуары
Следующей вехой в создании квартиры вашей мечты,после решения вопросов: чем обставить и как спланировать пространство, будет подбор цветовой палитры для ее декора, что не менее важно сделать правильно. Продуманная оттеночная гамма сделает его визуально больше, а ведь именно это входит в первоочередные задачи дизайна маленькой квартиры, не правда ли?
Однокомнатная квартира в черно-белой цветовой гамме
Проще всего достигнуть нужного эффекта, избрав для фоновой обстановки светлые тона из теплого спектра
Важность цветового решения интерьера неоспорима и в психологическом аспекте. Проживающему в небольшой квартире человеку, должно быть комфортно в красках фонового окружения
Психология цвета в дизайне однокомнатной квартиры– Для создания релаксирующей атмосферы в дизайне однокомнатной квартиры должны появиться голубой или коричневый цвет. Такой же эффект будет и от появления зеленого.
Студия в светлых тонах с голубыми акцентами
– Положительно будут влиять на психологические показатели желтые стены.
Желтый цвет в интерьере вызывает чувство тепла и поглощает негативную энергию
– Применение красного спектра требует осторожности. Эти краски действуют возбуждающе и стены, выкрашенные в них, будут быстро утомлять и раздражать
Не рекомендуется окрашивать стены в красные цвета, достаточно несколько ярких акцентов
– Розовый цвет многие считают умилительным. Речь идет естественно о женской части человечества, которой в такой обстановке приятно и уютно. А вот на мужчин он действует прямо противоположно, то есть раздражает и даже провоцирует на открытую агрессию.
Розовый цвет оказывает успокаивающее действие, помогая избавиться от негатива
– Есть смысл оформить квартиру в нейтральных песочно-кремовых тонах. Это придется по вкусу всем.
Нейтральные песочные цвета подойдут к любой квартире
Стены, оформленные вместе с потолком в светлых тонах, реально увеличат высоту помещения, даже если она существенно меньше показателя в три метра. Закрепит эффект и усилит его встроенные в потолок скрытые или небольшие по размерам светильники. А вот низковисящим люстрам в дизайне такой малогабаритной однокомнатной квартиры места не будет, потому что их громоздкость и массивность действуют на окружающее пространство совершено противоположно. Они буквально «пожирают» его.
Встроенные светильники не утяжеляют пространство
Эффект высоты произведут и длинные шторы, причем их цвет в данном контексте будет абсолютно не критичен. Шторы могут быть сшиты как из светлых, так и из темных тканей. Это исключительно дело вашего вкуса, но… Все же постарайтесь выбирать более светлые спектры. Почему? Потому что цвет штор надо гармонизировать с фоновым тоном стен, а они, в рассматриваемом варианте, будут исключительно светлыми.
Легкие занавески придают интерьеру легкость и воздушность
Особой в однокомнатной квартире должна быть и мебель. Нельзя недооценивать ее роль в дизайне
Важно все:
1. Размеры.2. Цвет.3. Расстановка.
Максимальный эффект безграничности пространства снова-таки проявится лишь в присутствии светлой мебели.
Белая мебель в интерьере квартиры-студии
Отлично, если вы сочтете возможным в дизайне однокомнатной квартиры использовать складную мебель. Чаще всего это трансформируемые кровати, которые на день могут превращаться в дополнение шкафа, например. Вы сразу же получаете как минимум два квадрата свободного пространства в дневное время.организована целая игровая площадка для малышей, если таковые есть в доме.
Кровать-трансформер освободит дополнительное пространство в квартире
Увеличить пространство можно, демонтировав перегородки. Это может быть место слияния лоджии и комнаты или кухни. В обоих случаях объединение пространства поспособствует его разгрузке, но такой ход потребует дополнительных работ и затрат, потому чтоутеплить стены бывшей лоджии. Оставлять все в летнем варианте позволительно только в местах с устойчиво жарким климатом.
Дизайн гостиной однокомнатной квартиры. Способы зонирования однокомнатной квартиры
Современный дизайн предлагает разные инструменты и решения для работы с пространством. Единственного универсального варианта на все случаи жизни – не существует. Поэтому выбирай среди них тот, который лучше впишется в интерьер твоей квартиры.
Статичные перегородки
Это облегченная альтернатива межкомнатной стены. Их делают из гипсокартона, бетона, пластика, дерева, стекла и любых других материалов.
Фактически, посреди комнаты достраивается отдельная стена. Но учитывай, что для этого однокомнатная квартира должна быть достаточно просторной и светлой.
В такую перегородку можно встроить раздвижную дверь. Она гораздо компактнее обычной распашной.


Ширмы и передвижные перегородки
От статичных перегородок мобильные ширмы отличаются тем, что их можно выставлять по необходимости. Например, чтобы отделить спальное место на ночь после ухода гостей, обозначить детский уголок или мини-гардеробную.
Когда ширма не нужна, можешь сложить ее и убрать. Хорошо смотрятся легкие тканевые, бамбуковые и ажурные модели. Особенно они популярны в восточных интерьерах.


Арки
Арочные проемы – классический элегантный прием для разграничения пространства. Они бывают прямыми или дугообразными.
В зависимости от ширины проема, арка станет либо символическим обозначением перехода, либо полноценной альтернативой двери со сплошной перегородкой.
Такое решение подходит, когда части комнаты нужно максимально отделить друг от друга. Изящная арка смотрится легче и аккуратнее полноценной межкомнатной гипсокартонной стены.

Декоративные конструкции
Это промежуточный вариант между перегородками с арками. Декоративные конструкции бывают любой формы и конфигурации. Особенно они хороши в современных интерьерах с необычными дизайнерскими акцентами.
Проектировать такие конструкции нужно индивидуально, с учетом метража и планировки однокомнатной квартиры. В них удобно встраивать ниши, полки, даже аквариумы или камины.


Мебель
Современные многофункциональные шкафы-трансформеры уже давно отошли от скучных классических коробов, которые можно поставить только у стены.
Для полноценного зонирования однокомнатной квартиры используй двусторонние стеллажи или шкафы с раздвижными дверями, по типу купе. Доступ с двух сторон сделает конструкцию практичнее и визуально легче.
А для условного зонирования квартиры достаточно невысокой мебели. Например, развернутого рабочего стола, удлиненной низкой этажерки или барной стойки. Последний вариант хорош для отделения кухни.
Гостиную легко зонировать с помощью мягкой мебели и журнальных столиков.


Подиум
У использования подиумов для зонирования квартиры есть два основных преимущества:
- Они не «съедают» место, в отличие от стен, перегородок и других сплошных конструкций.
- Возвышение отлично подходит для хранения вещей вместо шкафа.
В подиум прячутся не только коробки, одежду или постельное белье, но даже и выдвижная кровать. А на маленьких подиумах можно попробовать устроить зеленый уголок или рабочую зону.
Высоту рассчитывай самостоятельно, с учетом высоты потолка. Интересно смотрятся подиумы на несколько ступеней.

Шторы и занавески
Разнообразные шторы и занавески – удобная и практичная альтернатива ширмам. А еще их легко снять и заменить.
Но внимательно выбирай ткань. Слишком тяжелые портьеры иногда загромождают пространство еще больше, чем сплошная перегородка. К тому же они собирают пыль.


Оригинальные решения
Если тебе не нравится ни один из классических вариантов зонирования однокомнатной квартиры, смело подключай воображение. Например, используй растения, аквариумы или камины.
Интересно смотрятся напольные ящики с цветами, подвесные конструкции, кашпо и вертикальные сады.
Интерьер квартиры 1 комнатной. Нестареющая классика
- Современный ремонт однокомнатной квартиры в сталинке
Английский классический стиль идеально подходит для 1-комнатной квартиры. Он помогает рационально оформить помещения любой площади. Для интерьера однокомнатной квартиры в классическом стиле характерны:
- Дорогие декоративные материалы (лучшие сорта древесины, натуральный мрамор, ткани с ручной вышивкой);
- Ванная в однокомнатной квартире с полом из натурального мрамора
- Геометрическая четкость линий;
- Как обустроить малогабаритную квартиру в классическом стиле
- Теплая палитра пастельных тонов;
- Дизайн ванной комнаты в теплых тонах
- Красивая лепнина, хрустальные люстры в лучших традициях английских домов, драпировки и шелковые обои для комнаты;
- Как отделить диваны в комнате с помощью драпировки
- Дорогие паркетные полы.
- Обстановка квартиры с паркетом: сколько стоит обставить однушку по-королевски
В классических интерьерах часто используются белые, кремовые, коричневые, бежевые, шоколадные и зеленые цвета. В приоритете находятся матовые и дымчатые оттенки. Они хорошо сочетаются между собой.
- Пример ремонта однокомнатной квартиры в серо-дымчатой цветовой гамме: стенка в нише, кровать и журнальный столик
Дизайн однокомнатной квартиры в светлых тонах смотрится элегантно и красиво вне зависимости от площади помещения. Ключевыми формами стиля являются круг и овал средних размеров. Дальнейшая фотогалерея содержит ряд интерьерных решений для студии и однушки в классическом стиле с 2017 по 2020 годы.
Модный дизайн однокомнатной квартиры. Планировки однокомнатной квартиры
Чтобы при ремонте однокомнатной квартиры подобрать оптимальный дизайн, нужно учитывать и ее тип. На данный момент распространено несколько основных разновидностей, каждая из которых имеет свои характерные особенности:
- Хрущевка. Квартиры советской постройки, которым уже несколько десятков лет. Их отличительная особенность – крошечная площадь, часто она не превышает 30 квадратов. Небольшая кухня и комната, совмещенный санузел и прихожая в несколько квадратных метров. Тут очень важно продумать все до мелочей, использовать каждый доступный уголок для систем хранения. Планировка стандартная, каждое помещение нужно оформлять отдельно.

- Студия. Более современные решения с объединенным пространством, которые строятся не так давно, площадь на несколько метров больше, чем в хрущевках. Планировка более свободная, кухонная и жилая зоны чаще всего разделяются мебелью, чтобы не занимать пространство. Что касается расстановки, тут есть свобода выбора: проще всего посмотреть фото дизайна однокомнатных квартир-студий.

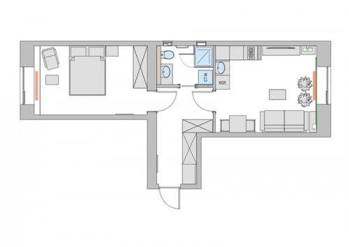
- Среднегабаритная квартира. Обычно площадь составляет около 40 квадратов, что обеспечивает намного больше возможностей при оформлении. Планировка чаще всего стандартная – прихожая, из которой двери идут в комнату, кухню, ванную и туалет. Нередко есть и достаточно большая ниша, в которой можно оборудовать гардероб или даже сделать спальное место. Расположение и компоновка помещения при этом могут быть разными.

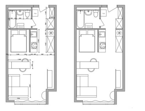
- «Распашонка». Название обусловлено особенностями планировки. Обычно после входа есть коридор среднего размера, из которого в одну сторону расположена дверь в комнату, в другую – кухня, а спереди – туалет и ванна. Ширина помещений обычно не очень большая, что также является особенностью этого типа. Помещения длинные, что требует использования приемов по визуальному расширению пространства.

Есть квартиры в новостройках с площадью более 45 кв м. Это самые лучшие варианты, в которых места достаточно для воплощения любого замысла.