Твердотопливные котлы своими руками. Принцип работы котла на твердом топливе
- Твердотопливные котлы своими руками. Принцип работы котла на твердом топливе
- Твердотопливный котел 100 квт своими руками. Как сделать своими руками котел твердотопливный длительного горения: чертежи и схемы
- Твердотопливный котел длительного горения своими руками: чертежи. 3 Котёл с верхним горением топлива
- Простой котел своими руками. Домашняя технология производства отопительного оборудования
- Котел с высоким кпд своими руками. С чего всё началось
- Котел отопления своими руками чертеж. Виды отопительных котлов
- Твердотопливный котел чертеж. Котлы шахтного типа
Твердотопливные котлы своими руками. Принцип работы котла на твердом топливе
Функционируют аппараты этого типа на торфе, дровах, угле или отходах пиломатериалов. Есть универсальные устройства, которые можно заправлять любым подходящим ресурсом.
Теплообмен котлов с окружающей средой происходит следующими способами:
- водяным;
- паровым;
- воздушным.
Традиционные агрегаты работают по такому же принципу, что и обычные печи. В нижней части устройства находится окошко, в которое загружают топливо: дрова или уголь.
Твердотопливные котлы работают на торфе и дровах.
Котел длительного горения представляет собой удлиненную металлическую камеру, внутри стен которой циркулирует вода. Сжигание топлива происходит в верхней части агрегата, а пламя распространяется сверху вниз, обеспечивая его полную выработку. Заводские устройства оснащают предохранительным клапаном и вентиляторами, повышающими безопасность аппарата.
Пеллетные котлы оснащены дополнительным бункером для хранения древесины. Из него с помощью автоматического устройства она подается в камеру, где происходит горение. В такой системе используют специальные пеллеты, спрессованные из опилок и доходов. Контроль за уровнем топлива осуществляется через особые датчики.
В пиролизных котлах используют дрова, но принцип их работы отличается от такового у аналогичных отопительных устройств. В процессе горения под воздействием высокой температуры древесина превращается в уголь, выделяя окислившийся газ.
Он нагнетается в камеру сгорания, где смешивается с воздухом и воспламеняется, выделяя максимальное количество энергии.
Твердотопливный котел 100 квт своими руками. Как сделать своими руками котел твердотопливный длительного горения: чертежи и схемы
Перед тем, как начать изготовление котла, необходимо определиться с его конструкцией. Ее выбор зависит от назначения агрегата. Если он предназначен для отопления небольшого хозяйственного помещения, гаража или дачного домика, то делать в нем водяной контур не обязательно. Обогрев такого помещения будет происходить непосредственно от поверхности котла, путем конвекции воздушных масс в помещении, как от печи. Для большей эффективности можно устроить принудительное обдувание агрегата воздухом при помощи вентилятора. При наличии системы жидкостного отопления в помещении, необходимо предусмотреть устройство в котле контура в виде змеевика из трубы или другой аналогичной конструкции.

Схема подключения твердотопливного котла к системе отопления
Выбор варианта зависит и от типа твердого топлива, которое нужно будет использовать. Для отопления обычными дровами требуется увеличенный объем топки, а для применения мелких топливных гранул можно устроить специальную емкость, из которой гранулированное топливо подается в котел автоматически. Для изготовления котла твердотопливного длительного горения своими руками, чертеж можно взять и универсальный. Он подойдет для любого вида используемого твердого топлива.


Твердотопливный котел длительного горения своими руками: чертежи. 3 Котёл с верхним горением топлива
Есть и другая схема твердотопливных котлов длительного горения. Своими руками такой сделать тоже несложно. Принцип работы заключается в верхнем горении дровяных газов.
В странах СНГ известны два типа таких устройств:
- «Стропува» — агрегаты прибалтийского производства;
- печи Бубафоня.
Последние завоевали большую популярность среди жителей бывшего Советского Союза. Как правило, их используют для помещений, где эстетичный внешний вид не имеет никакого значения (технические помещения, гаражи и т. п. ).
Суть их эффективной работы заключается в наличии двух камер сгорания. Снизу в трубу с большим диаметром (основы конструкции) закладываются дрова. Сверху их прижимает так называемый груз — тяжёлый круг. К нему в перпендикулярном положении приваривается по центру трубка, которая выходит с самого верха котла, а в самом грузе проделывается в этом месте отверстие для подачи воздуха к дровам. Место, где находятся дрова, называют первичной камерой.
Вторичная камера находится сверху круга «груза». Там происходит сжигание газов — продуктов горения. Попадают они во вторичную камеру через зазор между самим кругом и основой. То есть диаметр груза должен быть на несколько сантиметров меньше, чем диаметр трубы основы котла.
В принципе, это вся функциональная часть конструкции, благодаря которой устройство работает в два раза эффективнее, чем обычные твердотопливные котлы. Заключается такое преимущество в том, что газы, которые сгорают во вторичной камере, отдают не меньше тепла, чем сами дрова в первичной.
Простой котел своими руками. Домашняя технология производства отопительного оборудования
В поисках ответа на вопрос, как сделать котел отопления своими руками достаточно быстро приходишь к убеждению, что ничего особенно сложного в этом нет. При условии грамотной организации производственного процесса. Удобнее отдельные детали делать на верстаке в оборудованной мастерской или ином месте, где можно сделать рабочий стол.
Изготовление деталей корпуса
Основу любого твердотопливного котла для отопления частного дома составляет топка, где температура достигает 1000 ⁰С и для ее сборки потребуются материалы с соответствующими характеристиками. Порядок изготовления корпуса следующий:
- При отсутствии жаропрочных сталей можно обойтись и обычной, но для обеспечения долговечности узла его стенки делаются двойными. Передняя, задняя, боковые и нижняя стенки вырезаются из стального листа при помощи угловой шлифовальной машинки;
- Чертежи котлов отопления имеют обозначения точных размеров всех деталей, которые переносятся на металлопрокат при помощи измерительного инструмента и большой линейки. Помимо стенок камеры из стальной профильной трубы нарезается необходимое количество для использования их в качестве ребер жесткости. Из стального уголка изготавливаются усилители для стыков между отдельными частями печи;
- В передней стенке необходимо проделать прямоугольное отверстие, соответствующее по размерам дверцам топочного и зольного бункеров.
Полезный совет: для выполнения сквозного прямоугольного отверстия нужной конфигурации наносим на металл разметку, по углам производим сверление листа при помощи электродрели. Угловой шлифовальной машинкой делаем сквозной порез в средней части и ведем его от центра к краю. Это позволит избежать лишних повреждений листа.

Изготовление емкостей для воды и теплообменников
Эффективная конструкция отопительного котла предусматривает наличие двух баков для воды. Их делают из нержавеющего стального листа, для сварки которого необходимо специальное оборудование и определенная квалификация. Тут лучше довериться профессионалам и заказать эти емкости в специализированной мастерской.

Конструкция теплообменника представляет собой набор из водопроводных труб. При помощи сварочного аппарата они соединяются таким образом, чтобы образовать проточный контур с максимально большой внешней поверхностью. Это обеспечит быструю и наиболее полную теплоотдачу от сгораемого топлива к теплоносителю.
Котел с высоким кпд своими руками. С чего всё началось
Perelesnik Пользователь FOUMHOUSE
В мой дом заведён газ, но я периодически задумывался над тем, чтобы перейти на отопление твёрдым топливом. Останавливало лишь то, что газовое отопление было выгодно, и переход на дрова оказывался не рентабельным. Дом я отапливал электродным котлом мощностью 7 кВт, работающим в связке с кондиционером, который эксплуатировался «на обогрев». При сильных заморозках дом дополнительно подтапливался котлом, работающим на газе. И вот газ подорожал…
Именно увеличение цены на газ стало тем событием, которое привело к разработке ракетного котла.
Прежде, чем иди и сразу покупать «нечто» под названием «твердотопливный котёл», Perelesnik начал изучать предмет. Он ознакомился с перечнем оборудования, предлагаемого в магазинах, посмотрел, как работают котлы у соседей, понял, какие наиболее частые проблемы возникают, изучил отзывы в Интернете.

После «мозгового штурма» появился список требований, которым должно отвечать устройство - с точки зрения Perelesnik-а :
- Возможность стабильной работы на мощности от 2 до 20 кВт. Это связано с особенностями климата в регионе проживания форумчанина. Зимой температура с месяц может держаться около 0°C, а потом резко на неделю упасть до -25…30°C. В осенне-весенний период температура находится в пределах +5…+10°C. Т.к. дом в межсезонье также нужно отапливать, но от котла не требуется максимальная мощность, нужен «гибко» настраиваемый аппарат.
- Котёл должен быть «всеядным», т.е. гореть в топке должно всё, что может гореть – дрова, топливные брикеты, уголь, отходы и т.д., включая влажное топливо.
- Конструкция котла должна предусматривать закладку поленьев диаметром до 20 см. Это уменьшит необходимость в колке дров.
- Должен работать с ночи до утра на одной закладке топлива. При сильном морозе количество полных закладок топлива не должно превышать трёх.
- Полная энергонезависимость. Устройство должно работать без необходимости его подключения к электрической сети. В случае обрыва проводов или отключения энергии, работу циркуляционного насоса (он должен прокачивать теплоноситель) обеспечивает резервная система питания.
Котел отопления своими руками чертеж. Виды отопительных котлов
Котлы, работающие на газу
Перед началом самостоятельного изготовления котла, необходимо определиться с его видом, который зависит от типа топлива, нагреваемого тепловой носитель. При желании можно соорудить котел, работающий от любого топлива. Найти необходимую информацию можно на ресурсах интернета. Однако прежде чем сделать выбор, стоит иметь представление о преимуществах и недостатках самых известных из них.
- Котлы для отопления, работающие на газу. Данный вид не стоит пытаться изготовить своими руками, так как к ним предъявляется очень много требований, которые вы вряд ли сможете удовлетворить. Ну и не менее важная причина – это высокая вероятность взрыва в ходе эксплуатации. Монтаж газового котла запрещен в подвальном помещении дома.
- Для изготовления электрического котла вам не потребуется профессиональных навыков и наличия множества материалов. Нельзя не отметить огромный недостаток – высокие цены на электрическую энергию. Это является идеальным вариантом для периодического обогрева домика на даче, но для постоянного использования электрический котел очень дорог.
- Котел с жидким топливом вполне подходит для изготовления своими руками, но стоимость топлива и особенности настройки форсунок могут вызвать немалые сложности в ходе работ.
- Среди всех перечисленных вариантов самым оптимальным можно назвать котел, работающий на твердом топливе, в качестве которого можно успешно использовать дрова.
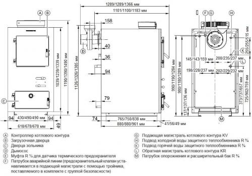
Твердотопливный котел чертеж. Котлы шахтного типа
Как уже упоминалось особенностью таких котлов является наличие двух камер: большой вертикальной загрузочной камеры (шахты) и камеры с теплообменником. Топливо поджигается снизу в первой камере и пламя через отверстие попадает в другую, где и отдает свою энергию теплоносителю через теплообменник.
Такие котлы могут быть, как с обычным сжиганием топлива, так и с пиролизным. В первом случае весь необходимый воздух подается через нижнюю дверку, а продукты горения, пройдя через теплообменник, удаляются в дымовую трубу. Во втором случае к месту горения подается ограниченное количество первичного воздуха, где дрова сгорают с выделением пиролизного газа. Кроме того такие конструкции оборудуются дополнительной камерой дожига, куда подается вторичный воздух и осуществляется сжигание газа. В верхней части теплообменной камеры расположена задвижка, которая отрывается при розжиге и позволяющая дымовым газам напрямую выходить в дымовую трубу.

Чертеж-схема котла шахтного типа с камерой дожига
1 — заслонка подачи первичного воздуха; 2 — нижняя дверка для поджига и чистки; 3 — решетка; 4 — дрова; 5 — загрузочная дверка (может располагаться и сверху); 12 — труба с нагретой водой (подача); 13 — пусковая заслонка; 14 — заслонка дымовой трубы; 15 — теплообменник; 16 — подача вторичного воздуха; 17 — камера дожига; 18 — обратка; 19 — слив; 20 — чистка; 21 — заслонка; 22 — колосниковая решетка; 25 — зольник.
