Самостоятельное строительство: необходим проект или можно обойтись без него
- Самостоятельное строительство: необходим проект или можно обойтись без него
- Связанные вопросы и ответы
- Какие законы и нормативные акты регулируют строительство домов без проекта
- Какие риски и проблемы могут возникнуть при строительстве дома без проекта
- Какие факторы могут повлиять на решение строить дом без проекта
- Какие этапы строительства дома без проекта необходимо пройти
- Какие материалы и технологии можно использовать при строительстве дома без проекта
- Какие специалисты могут помочь в строительстве дома без проекта
- Какие проблемы могут возникнуть при получении разрешения на строительство дома без проекта
- Какие проблемы могут возникнуть при получении разрешения на ввод дома в эксплуатацию без проекта
Самостоятельное строительство: необходим проект или можно обойтись без него
Составить и рассчитать проект строительства своими силами безусловно, можно, если речь идет о несложных конструкциях. Например, небольшого типового дачного домика, к которому не нужно подводить никаких коммуникаций кроме электроснабжения. Проживать в таком строении можно будет в летний сезон.
Важно! Главный плюс скачанных с интернета проектов или нарисованных собственноручно — это то, что вы за них ничего не платите. Однако отрицательных сторон намного больше. В строительстве многие вещи может грамотно рассчитать только профессионал с высшим строительным образованием: например, нагрузки на фундамент и перекрытия, устойчивость конструкции, расчет объема материалов и их грамотный подбор.
В итоге, разработав проект своими руками, можно получить совсем не то, что планировалось или, того хуже, некачественный дом, который простоит недолго. Поэтому, если у вас есть желание построить:
- капитальный дом (с фундаментом);
- долговечный (на десятки и более лет);
- для постоянного проживания (в т. ч. зимой);
- с «тяжелыми» стенами (из кирпича, бетона и пр.);
- с проложенными внутри коммуникациями (водопровод, отопление, электричество, канализация).
В этом случае, лучше поручить задачу все-таки профессионалам и обратиться в фирму для строительства «под ключ». В крайнем случае, если не позволяет бюджет, можно рассмотреть покупку типового проекта или заказать индивидуальный, но у профессионального архитектора, который сделает все расчеты согласно правилам и нормам.

Связанные вопросы и ответы:
Вопрос 1: Можно ли построить дом без проекта
Ответ: Строительство дома без проекта не является лучшим решением, так как проект необходим для того, чтобы обеспечить надлежащий уровень безопасности и качества. Проект определяет размеры и конструкцию здания, а также распределение внутренних помещений. Он также учитывает особенности местности, такие как грунт и климат, чтобы обеспечить надёжность и долговечность дома.
Вопрос 2: Какие проблемы могут возникнуть при строительстве дома без проекта
Ответ: При строительстве дома без проекта могут возникнуть различные проблемы, такие как несоответствие строительных норм и правил, неправильное распределение внутренних помещений, недостаточная устойчивость и надёжность здания, а также проблемы с водоотведением и вентиляцией. Кроме того, без проекта может быть сложно получить разрешение на строительство и в дальнейшем продать дом.
Вопрос 3: Какие документы необходимы для строительства дома без проекта
Ответ: Для строительства дома без проекта потребуется несколько документов, таких как разрешение на строительство, технический проект, который будет содержать основные технические характеристики здания, и проектную документацию, которая будет содержать детализированные чертежи и спецификации. Кроме того, вам также потребуется разрешение на использование земельного участка и разрешение на снос существующих строений, если они есть.
Вопрос 4: Можно ли получить разрешение на строительство дома без проекта
Ответ: Получение разрешения на строительство дома без проекта может быть сложным, так как строительные нормы и правила требуют наличия проекта для строительства. Однако, если вы хотите построить дом без проекта, вам потребуется получить специальное разрешение, которое будет выдано после проверки всех необходимых документов и условий.
Вопрос 5: Какие последствия могут быть при строительстве дома без проекта
Ответ: При строительстве дома без проекта могут быть различные последствия, такие как несоответствие строительных норм и правил, недостаточная безопасность и надёжность здания, а также проблемы с водоотведением и вентиляцией. Кроме того, без проекта может быть сложно получить разрешение на строительство и в дальнейшем продать дом.
Вопрос 6: Как избежать проблем при строительстве дома без проекта
Ответ: Чтобы избежать проблем при строительстве дома без проекта, вам необходимо внимательно изучить все строительные нормы и правила, а также согласовать все необходимые документы с местными властями. Кроме того, вам необходимо нанять квалифицированных специалистов, которые будут следить за качеством строительства и обеспечивать надлежащий уровень безопасности. Важно также учесть все особенности местности, такие как грунт и климат, чтобы обеспечить надёжность и долговечность дома.
Какие законы и нормативные акты регулируют строительство домов без проекта
Грамотное проектирование деревянного жилого дома дает возможность получить качественное строение, которое долгие годы будет радовать вас своей надежностью и функциональностью. Мы заметили, что некоторые потенциальные заказчики экономят на проектировании и строительстве деревянных домов всеми возможными способами. Наиболее распространенный вариант – использование проекта дома под сруб, найденного в интернете, либо вообще работа без документации «на глаз» или по чертежу, сделанном, что называется, «на коленке». К сожалению, такой подход имеет очень много рисков и зачастую приводит к серьезным неприятностям.
Вероятные проблемы
Заказывая сруб из круглого бревна в лапу или дом из лафета под ключ без проекта, вы рискуете столкнуться с рядом сложностей:
- Внешний вид готового строения может кардинально не соответствовать вашим ожиданиям.
- Стоимость смет будет постоянно увеличиваться, так как чувство прекрасного у вас и строителей может отличаться.
- Сложности при изготовлении сложных элементов (кровля, каркасные перегородки…) в связи с конструкционными недочетами.
- Неудобства при эксплуатации здания в результате непродуманного устройства входной группы, лестниц между этажами и прочих элементов конструкции.
- Сложности при работе инженерных коммуникаций. Значительное сокращение интервалов между сервисными процедурами.
- Проблемы при отводе осадков с поверхности крыши. Задержание больших снежных масс с последующим повреждением кровли.
- Избыточные траты на отопление.
- Невозможность корректного обслуживания отдельных участков здания в результате конструктивных просчетов.



Профессиональное проектирование деревянных домов из бревна поможет избежать перечисленных проблем. В нашей компании вы можете заказать индивидуальный проект деревянного дома и даже ни разу не приехать к нам в офис – есть услуга онлайн-проектирования. Особенно важно проектирование для деревянных домов ручной рубки. Инженеры определяют параметры и последовательность соединения элементов, разрабатывают оптимальные узлы примыкания, отличающиеся прочностью и герметичностью. Поверьте, проект – это очень важно!
Профессиональное проведение работ
Компания «УтКи» осуществляет строительство деревянных домов по индивидуальным проектам собственной разработки уже более 20 лет. Наши архитекторы проектируют, а строители затем выполняют строительство домов из лафета и круглого бревна под ключ по всей России. Чтобы получить качественный проект, а потом не менее качественный сруб или баню – обращайтесь! Даже просто за консультацией, мы всегда готовы помочь.
Какие риски и проблемы могут возникнуть при строительстве дома без проекта
Строительство дома без проекта может быть довольно рискованным делом, так как проект позволяет спланировать все этапы работ, учесть особенности участка и строительных материалов, а также обеспечить безопасность и комфорт проживания.
Однако, в некоторых случаях можно рассмотреть альтернативные варианты, которые могут помочь в постройке дома без проекта:
1. Готовые проекты: можно воспользоваться готовыми проектами домов, которые разработаны архитекторами и предлагаются на рынке. Такие проекты обычно имеют все необходимые разрешительные документы и могут быть адаптированы под конкретные условия.
2. Индивидуальный подход: при отсутствии готового проекта можно привлечь профессионального архитектора, который разработает индивидуальный проект дома, учитывая все желания и требования заказчика.
3. Комплексные предложения: некоторые строительные компании предлагают комплексные услуги по проектированию и строительству дома. В этом случае заказчику необходимо только описать свои пожелания, а компания возьмет на себя все остальные этапы процесса.
4. Законодательство: в некоторых случаях законодательство предусматривает возможность строительства без проекта при определенных условиях. Например, для строительства небольших объектов или в сложных экологических условиях.
Важно помнить, что без проекта строительство дома может не соответствовать нормам безопасности и качества, а также вызвать проблемы при продаже или эксплуатации объекта. Поэтому рекомендуется тщательно взвесить все альтернативы и обратиться к профессионалам в случае необходимости.
Какие факторы могут повлиять на решение строить дом без проекта
Что нужно для строительства дома на земельном участке ИЖС. Как понять где можно строиться? С чего начать?
Ответ: Горбачёва Л.Р. (Специалист по связям с общественностью)
Мы не будет говорить, как и из чего строить дом, это не наша тема и компетенция. Мы расскажем Вам о том какие действия необходимо предпринять перед началом строительства, а лучше перед покупкой земельного участка.
Строительство дома – длительный и финансово затратный процесс. Чтобы избежать трудностей и лишних финансовых расходов необходимо придерживаться некоторых рекомендаций.
Шаг 1.
Убедиться, что Ваш земельный участок можно использовать для строительства жилого дома (или другого необходимого объекта), а вид разрешенного использования должен соответствовать желаемому назначению.
Шаг 2.
Помимо выписки из ЕГРН, в которой будут отражены все характеристики участка, в том числе ограничения и обременения, мы советуем заказать градостроительный план земельного участка (ГПЗУ). Получить его можно бесплатно в администрации или заказав на портале «Госуслуги».
Нужен такой документ для того чтобы определить местоположение части земельного участка, в границах которой можно осуществлять застройку, понять есть ли ограничения (обременения) на земельном участке и если есть – то какие.
Кроме этого ГПЗУ отражает нормативы градостроительного зонирования , предусмотренные правилами землепользования и застройки (Далее – ПЗЗ) . Простым языком говоря, это необходимые отступы от границ земельного участка, от красных линий, требования к проценту застроенности участка, сведения об основных, вспомогательных и условно-разрешенных видах разрешенного использования земельного участка. Отметим, что ПЗЗ утверждаются для каждого муниципального образования отдельно, они хоть и типичны, но могут отличаться друг от друга. Более подробно о важности ГПЗУ мы писали ранее в нашей статье: Градостроительный план земельного участка – важнейший документ .
Шаг 3.
Следующий этап: инженерно-геодезические изыскания:
- если границы земельного участка не определены – сделать кадастровые работы по уточнению границ земельного участка,
- если границы установлены, но Вы не знаете как точно они проходят – сделать вынос границ в натуру на местности.
Помимо вышеуказанного, мы также рекомендуем заказать топографическую съемку земельного участка , для определения местоположения границ инженерных сетей и коммуникаций в границах земельного участка или в его непосредственной близости, которые могут накладывать ограничения на использование участка по назначению. Данные работы выполняют инженеры – геодезисты.
Как еще узнать о коммуникациях, которые проходят по Вашему участку мы рассказали в нашем
Шаг 4.
Следующим этапом является подготовка проекта дома. Статьей 51 Градостроительного кодекса (Далее – ГрК РФ) не регламентировано каким именно должен быть проект индивидуального жилого дома. Требования к нему, в любом случае, должны быть соблюдены, не зависимо от того самостоятельно ли вы на листе бумаги сделали наброски вашего будущего дома или же заказали проект в архитектурном бюро.
Шаг 5.
Подача в администрацию уведомление о планируемом строительстве.
Для чего нам уведомление спросите вы, если действует «дачная амнистия»? Стоит отметить, что в статью 51.1 ГрК РФ изменения не внесены, и в соответствии с этой статьей уведомления о планируемом строительстве и завершения строительства все еще требуются, что вводит в замешательство граждан.
Отвечаем: дачная амнистия действует лишь для постановки на государственный кадастровый учет объекта и регистрацию права на него. Но такие уведомления заменяют сейчас разрешение на строительство, и получать их необходимо.
Помимо этого, в связи с тем, что в последнее время часто возникают случаи, когда даже после того как администрация выдала разрешение на строительство, дом построен, а граждане не могут зарегистрировать дом по причине нахождения земельного участка в охранной зоне, мы бы рекомендовали проходить данные процедуры. Читайте более подробно в статье: "Охранная зона на вашем земельном участке. Что это значит и что делать?"
Шаг 6.
Пройдя вышеуказанные этапы можете уверенно начать строительство.
Шаг 7.
После того, как дом был построен необходимо оформить все правовые документы. Вам необходимо будет обратиться к кадастровому инженеру, который сделает внутренние замеры, геодезическую съемку контура здания и подготовит технический план, который необходимо будет подать вместе с заявлением о постановке на государственный кадастровый учет и регистрацию права на объект недвижимости в орган регистрации прав.
Какие этапы строительства дома без проекта необходимо пройти
- Если дом строит бригада рабочих, то для них отсутствие проекта – это возможность маневра, возможность сэкономить или сделать как удобнее им, а не как требует проект, а в случае недобросовестности к проведению работ, еще и возможность схалтурить. Например: имея на руках только эскизный проект или даже планировку этажей, строитель может заложить количество арматуры при бетонных работах на глаз, а не согласно расчетам, при этом заказчик не сможет проконтролировать количество арматуры, которое реально необходимо и будет использовано в процессе строительства. И здесь вы рискуете не только неоправданной потерей средств, но и качества.
- Нередки случаи, когда в процессе строительства дома без проекта исполнитель и заказчик работ не находят понимания. Вероятность того, что их представления не совпадут, велика. Заказчик объяснил строителю «на пальцах» о том, как он представляет себе ту или иную часть дома (например, высоту ступенек), строитель сделал так, как понял. В итоге заказчику либо приходится смириться с тем, как выполнены работы, либо потратить время и деньги на переделку. При этом строитель не несет никакой ответственности за то, что неправильно понял заказчика, «инструкция» на словах не имеет юридической силы.
- Отсутствие проекта может грозить так же и реальной опасностью для жизни и здоровья заказчика. При проектировании дома учитываются множество параметров: привязка к участку, состав грунта и наличие грунтовых вод, требования нормативных документов, физические свойства материалов и многое другое.
Какие материалы и технологии можно использовать при строительстве дома без проекта
Залог успешного строительства дома — грамотно составленный договор (то, что он должен быть в принципе — условие обязательное, подчеркивают эксперты). Самое важное — правильно прописать ответственность сторон: кто и за что отвечает и в какие сроки, а также указать порядок оплаты.
Нужно перепроверить, с каким юрлицом заключается договор. «Например, компания называется «Строитель», а в договоре написано «Строитель Балашиха». Такого быть не должно. Также встречаются компании, которые проект делают на одно юрлицо, а на строительные работы заключаются с другим юрлицом. Хотя сам застройщик утверждает, что это одно и то же. Но когда возникают проблемы, в процессе разбирательств выясняется, что это две абсолютно разные компании. На это надо обращать внимание», — указал Владислав Копица.
Нелишним будет привлечение юристов для понимания возможных подводных камней, добавил Дмитрий Апанасенко. При составлении договора обязательно нужно указать порядок оплат — все работы стоит разделить на этапы и привязать оплату к исполнению данных работ. Последующие оплаты осуществляются только после закрытия предыдущих работ. «Стоит быть внимательным при обсуждениях стоимости будущего дома — если подрядная организация соглашается на все ваши условия, охотно снижает стоимость по вашему желанию — это скорее повод для грусти, чем для радости», — рекомендует эксперт.
Максим Морозов, управляющий партнер юридической компании «КМК»:
— Подрядные работы, заказчиком которых выступает физлицо, регулируется законом «О защите прав потребителей» и Гражданским кодексом. Основная проблема при разрешении споров с подрядными организациями в том, что заказчики обычно поверхностно подходят к вопросу юридического оформления таких отношений. Каждый должен понимать три основных момента: договор, оплата и приемка работ. Устная договоренность с подрядчиком не дает никаких гарантий, и вернуть потраченные деньги, даже в суде, будет сложно.
Обязательно заключайте договор и прописывайте в нем все этапы , сроки и цены. Если подрядчик предоставляет свою форму договора, внимательно изучите ее. Обычно такие договоры прорабатывают штатные юристы, и в них прописано множество возможных «лазеек» для подрядчиков. Если вы заключаете договор с небольшой компанией или частным лицом, есть шанс внести свои корректировки в договор.
Документально закрепляйте оплату за работы : в случае безналичного перевода всегда указывайте назначение платежа. Если это наличные, у вас должно быть подтверждение передачи денежных средств в виде кассового чека или расписки.
Будьте внимательны и не торопитесь подписывать акт приемки работ. После его подписания без замечаний, дальнейшие требования можно предъявить лишь в рамках гарантийных обязательств. Если у вас имеются какие-то замечания, пропишите их в акте, это обезопасит вас в случае возникновения претензий к подрядчику.
Какие специалисты могут помочь в строительстве дома без проекта
Желание сэкономить при строительстве собственного дома достаточно велико, что неудивительно, поскольку стройка – весьма затратный процесс. Купить готовый проект можно за пару-тройку десятков тысяч рублей, а разработка индивидуального проекта обойдется в два-три раза дороже.
Стоит ли нести такие расходы? Ведь разрешение на строительство частного дома выдается и без наличия проектной документации. Рассмотрим, как построить дом без проекта – в каких случаях это оправдано и какие могут быть последствия такого строительства.

Что говорит закон
Действующие в России нормы законодательства четко регламентируют порядок подготовки проектной документации для осуществления строительных работ. В соответствии со статьей 48 пунктом 3 Градостроительного кодекса, начинать строить и ремонтировать объекты индивидуального строительства, к которым относятся отдельно стоящие жилые дома с этажностью не более трех этажей, можно и без наличия проекта.
Необходимо лишь разрешение на строительство. Застройщик волен сам принимать решение о том, нужен ему проект, или нет.

Для получения разрешения понадобятся:
- документы на участок о праве землевладения;
- эскизный проект будущего дома, содержащий схему его расположения относительно других строений (можно нарисовать самостоятельно).
В каких случаях можно строить дом без проекта
Обоснованным строительство дома без проекта можно считать, если требуется постройка небольшого дома:
- без изысков в планировке;
- без подсоединения к водопроводу, электросетям, канализации и газоснабжению.
Возникает вопрос – как жить в таком доме, и имеет ли смысл такая постройка?

Недостатки отсутствия проекта
Стройка без проекта позволяет сэкономить, но с огромной вероятностью могут возникнуть трудности, например, такие как:
- необходимость постоянного контроля проведения работ в связи с отсутствием у строительной бригады проекта с прописанными местами расположения дверей, окон и других важных элементов здания;
- недобросовестность строителей при отсутствии должного уровня знаний заказчика может проявиться в затягивании сроков стройки, несоблюдении пропорций и качественных показателей укладки стройматериалов;
- разночтения между заказчиком и строителями в понимании того, как должны выглядеть те или иные конструктивные объекты дома;
- отсутствие гарантий качества строительства при самостоятельном выполнении работ в связи с упущением важных конструктивных особенностей, а также незнанием и несоблюдением строительных нормативов чревато нарушением норм безопасности проживания в здании;
- невозможность проложить коммуникации после возведения дома.



Представьте себе: поскольку чертежа нет, строители ненароком могут положить лишний кирпич в месте, где должна проходить вентиляционная шахта. А перекрытие между этажами не должно быть возведено в месте, где в плане предусмотрена лестница. Такие «случайности» могут стать фатальными и не подлежать исправлению.

Лишь единицы получают хорошие результаты при возведении собственного дома без проекта, и добиваются этого благодаря наличию знаний, наличию свободного времени и консультированию с опытными специалистами. В большинстве случаев такие здания становятся весьма посредственным жильем с уймой недостатков и неудобств.
Факт! Желание сэкономить на проекте приводит к увеличению общего бюджета, вызванному недостатком знаний и опыта в строительстве. Реальные расходы строительства дома без проекта зачастую превышают ожидаемую сумму. В ходе проектирования можно рассчитать все важные параметры и обоснованно минимизировать расход каких-либо материалов.
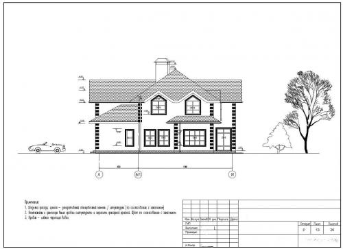
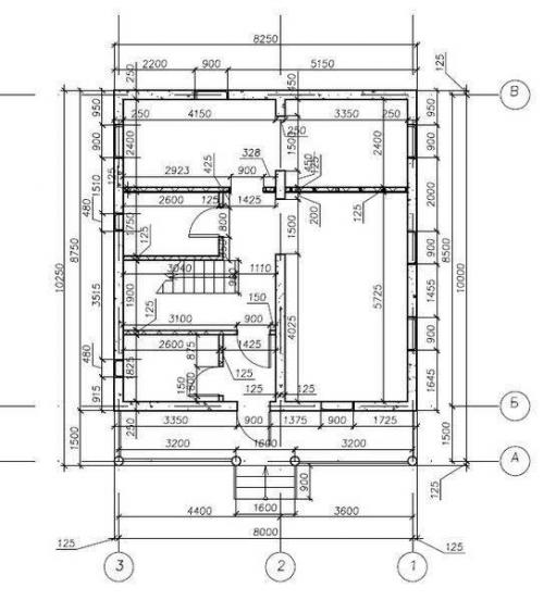
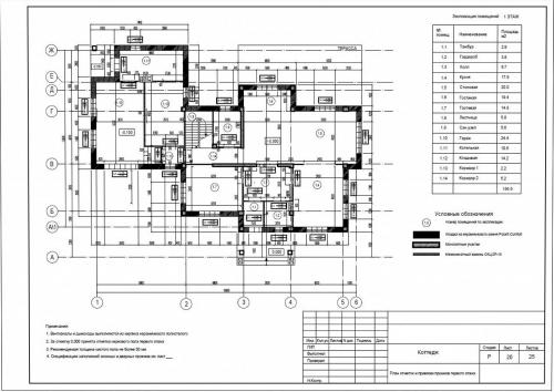
Современный проект дома включает:
- архитектурный раздел с планами каждого этажа, фасада и кровли в разных плоскостях, данные о дымовентиляционной системе, дверных и оконных проемах, перемычках;
- конструктивный раздел со схемами и спецификациями стропильной системы, фундамента, перекрытий, деталей и узлов;
- инженерный раздел с описанием систем инженерных коммуникаций, планы ввода и разводки в доме систем водо-, газо-, электро- и теплоснабжения, составляемые отдельно с участием профильных специалистов, а также слаботочных систем
- 3D-визуализация будущего дома в цвете и трехмерном формате позволяет буквально «пройтись» взглядом по внутренним помещениям и взглянуть на фасад дома снаружи, спланировать ландшафтный дизайн придомовой территории и расстановку мебели внутри здания.


Выводы
Если необходим небольшой частный дом, например, для дачного участка, то постройка дома без проекта вполне оправдана, но при этом может не получиться добиться заданного уровня качества дома.

Для серьезного дома, где планируется постоянное круглогодичное проживание всей семьи, лучше не пожалеть денег и купить готовый проект, либо, если уж вы занялись строительством — заказать разработку индивидуального проекта дома вашей мечты.
Какие проблемы могут возникнуть при получении разрешения на строительство дома без проекта
Российское законодательство разрешает строить индивидуальные дома без проектов, при условии, что они будут соответствовать ряду критериев:
- являться объектами индивидуального жилищного строительства;
- в них будет проживать только одна семья;
- высота здания будет не более трех этажей.
Новости СМИ2
Но главная проблема в том, что существует несколько точек зрения на то, как считать этажи. Согласно Инструкции № 37 от 4 августа 1998 года этажность здания определяется по числу наземных этажей. То есть цокольный этаж, если он выше уровня планировочной отметки земли на 2 метра и более, можно не считать. Такого же мнения придерживается и Федеральное агентство кадастра недвижимости в письме № АМ/1567, в котором говорится, что при определении этажности учитываются только надземные этажи.
А вот у Минэкономразвития другая точка зрения на этот вопрос. В письме № ОГ-Д23–1426 прописано, что такого понятия как «этажность» в законодательстве не существует, есть только термин «количество этажей», в который необходимо включать и подземные, и наземные этажи. Существует и судебная практика, подтверждающая такую позицию Минэкономразвития. В решении № 2–2724/2012 Анапский городской суд опроверг доводы эксперта о том, что подвал не включается в число этажей дома, так как, по мнению суда, эксперт не привел ни одного нормативного акта, подтверждающего подобную позицию.
Таким образом, при подсчете этажей дома, который будет строиться без проекта, следует учитывать подвальные, цокольные, чердачные и все остальные уровни. Конечно, можно рискнуть и не включить в число этажей подвал, но следует быть готовым, что с такой позицией могут не согласиться контролирующие органы и суд.
В законодательстве есть несколько видов помещений, которые совершенно точно не должны учитываться при подсчете количества этажей дома:
- Подполье — помещение любого размера и высоты, расположенное между первым и цокольным этажом, предназначенное для размещения трубопроводных систем.
- Межэтажное пространство — любое помещение, расположенное между этажами, высота которого не превышает 1,8 метров.
Какие проблемы могут возникнуть при получении разрешения на ввод дома в эксплуатацию без проекта
- 47 минут
- 165240
- 24
Публикуем только проверенную информацию
Комплексные услуги по сопровождению сделок с недвижимостью
Юридическая фирма “Двитекс” с 2010 года сопровождает сделки с недвижимостью. Мы имеем богатый опыт сопровождения сделок с недвижимостью (как на стороне покупателя, так и на стороне продавца), регулярно следим за изменениями законодательства и судебной практикой, поэтому можем предложить весь спектр услуг, необходимых для совершения безопасных с правовой точки зрения сделок. Кроме того, одной из сфер деятельности нашей компании является защита доверителей в судебных спорах в сфере недвижимости, в связи с чем мы обладаем обширными практическими знаниями оспаривания сделок с недвижимостью, что позволяет нам выявлять скрытые риски сделок. С судебной практикой наших юристов вы можете ознакомиться в разделе " Наш опыт ". У нас вы можете заказать не только услуги юристов, но и услуги риелторов.
Обращаясь к нам, вы в первую очередь получаете консультацию от профильного юриста. Он задаст уточняющие вопросы, расскажет подробно о порядке сопровождения сделки с недвижимостью и представит вам предложение со стоимостью услуг. При этом мы гибко подходим к порядку оплаты юридических услуг, предлагая разные пакеты услуг и варианты оплаты.
Всю работу по ведению дела мы берем на себя: проверка юридической чистоты объекта, подготовка документов для сделки, получение дополнительных документов, решение организационных вопросов, сопровождение доверителя на всех этапах сделки, регистрация перехода права собственности или сделки, защита ваших интересов до завершения сделки. При этом юрист всегда на связи и защищает интересы доверителя на всех этапах сделки. Работать с нами удобно - посмотрите отзывы наших доверителей об опыте сотрудничества с нами .
