Радиатор алюминиевый или стальной. Стальные лестничные радиаторы
- Радиатор алюминиевый или стальной. Стальные лестничные радиаторы
 - Чем плох алюминиевый радиатор. Алюминиевые радиаторы
 - Стальные или алюминиевые радиаторы для частного дома. Алюминиевые радиаторы отопления
 - Можно ли совмещать стальные и алюминиевые радиаторы. Чугунные и алюминиевые радиаторы в одной системе?
 - Стальной панельный радиатор. Плюсы и минусы стальных радиаторов отопления
 - Стальной радиатор. Лучшие панельные стальные радиаторы
 - Какой радиатор лучше стальной или биметаллический. Выбираем лучший радиатор отопления, стальной или биметаллический
 - Какие радиаторы самые долговечные. Популярные вопросы и ответы
 
Радиатор алюминиевый или стальной. Стальные лестничные радиаторы
Названы так, потому что имеют характерную форму лестницы, расположенной в горизонтальном или вертикальном положении. Вертикальные батареи чаще всего ставят в санузлы и лестничные пролеты. Горизонтальные батареи весьма эффективны в гостиных и спальнях.
Главным преимуществом стальных радиаторов этого типа является их весьма привлекательный внешний вид, во многих случаях намного превосходящий алюминиевые решения. Лестничные батареи выглядят очень эффектно, во-многом потому, что они представлены в нескольких цветовых вариантах.
Отметим также значительную мощность таких радиаторов, при относительно небольших габаритах. В особенности, если сравнивать их со стальными панельными радиаторами. Поэтому, располагая небольшой площадью монтажа, вы можете установить небольшой лестничный радиатор, который справится с обогревом даже большой комнаты.
Такие радиаторы из стали считаются более эффективным из-за небольшого потребления воды. Лестничные батареи отличаются более удобным контролем за их работой и менее частой продувки установки. Не следует забывать о широком ассортименте таких продуктов.
Самым большим недостатком стальных радиаторов является их подверженность коррозии. Если в вашей отопительной система вода низкого качества, нагревательные устройства могут быть повреждены довольно быстро.
Также важным критерием является влажность воздуха в помещениях. Помните, что из-за постоянно высокой влажности может возникнуть коррозия радиаторов. Вот почему стальные батареи не рекомендуется устанавливать в ванных комнатах или помещениях, куда часто попадает дождь и влага.
Чем плох алюминиевый радиатор. Алюминиевые радиаторы

Радиатор отопления в разрезе
Алюминиевыйизготавливается методом литья, следовательно, конструкция радиатора цельная, а это сводит к нулю возможность протечки. Некоторые компании, например, итальянские, разрабатывают свои собственные методы литья и состав сплавов, повышающие эксплуатационные характеристики конечного продукта. Чтобы максимально увеличить теплоотдачу, на радиаторе предусмотрено специальное оребрение, таким образом, алюминиевый радиатор сочетает принцип работы конвектора и секционного радиатора.
Алюминиевые радиаторы производят из сплавов, отличающихся высокой теплопроводностью и коррозийной стойкостью. Высокая теплопроводность алюминиевых радиаторов является их огромным преимуществом – их теплопроводность выше, чем у чугунных, стальных и биметаллических радиаторов, в 2-4 раза, что дает возможность создавать компактные радиаторы с минимальными потерями в теплопередаче.
Хотим подчеркнуть, что в данной статье рассматриваются только качественные алюминиевые радиаторы, проверенные временем, так как бессмысленно рассуждать о надежности «псевдоалюминиевых» радиаторов, которые, к сожалению, в изобилии представлены на российском рынке.
Алюминиевые радиаторы устойчивы к коррозии, хотя некоторые эксперты могут не согласиться с этим утверждением, напирая на то, что в России высокая кислотность теплоносителя. Действительно, в России и СНГ уровень кислотности выше, чем в Европе, но все равно он находится в пределах максимально допустимого значения для качественных алюминиевых радиаторов.
Широкий диапазон опрессовочного и рабочего давления позволяет устанавливать алюминиевые радиаторы, как в закрытых, так и в открытых системах отопления. Некоторые производители, давно работающие на российском рынке, предлагают продукцию, специально адаптированную под российские условия. Качественные алюминиевые радиаторы рассчитаны на опрессовочное давление 24 атм, а рабочее – 16 атм, тогда как городские системы отопления при подготовке к отопительному сезону испытываются при давлении 10 атм, с рабочим давлением в 6 атм.
При контакте с теплоносителем происходит выделение водорода внутри радиатора, поэтому необходимо предусмотреть мероприятия обеспечивающие своевременное удаление воздуха из системы отопления (например автоматические воздухоотводчики). Нельзя проверять наличие водорода огнем.
На всех алюминиевых радиаторах можно установить терморегуляторы (алюминиевые радиаторы, обладая низкой инертностью, очень быстро изменяют температуру нагрева), следовательно, вы легко сможете регулировать микроклимат в помещении, подбирая наиболее комфортные условия.
Стоимость алюминиевых радиаторов разнится в зависимости от производителя и гарантий на продукцию (некоторые производители дают гарантию 10 лет, некоторые страхуют свою продукцию, а более уверенные в качестве своих радиаторов делают и то и другое).
Стальные или алюминиевые радиаторы для частного дома. Алюминиевые радиаторы отопления
Алюминиевый радиатор отопления для частного дома является современной моделью и имеет определенные преимущества на фоне аналогов:
- высокая тепловая инерция — алюминий очень быстро нагревается и также быстро остывает, поэтому вам не придется долго ждать, пока комната прогреется;
 - компактность и вес — алюминий является одним из наиболее легких металлов, что позволяет значительно упростить монтаж и транспортировку батареи;
 - дешевизна — несмотря на высокие характеристики, алюминиевые модели стоят не так дорого, как стальные или чугунные аналоги.
 
Однако алюминий весьма чувствителен к химическому составу теплоносителя, что может существенно сократить срок его службы, особенно если вода имеет агрессивные добавки Кроме того, он несовместим с местными котельными из-за особенностей запорной арматуры.
Отметим, что разброс качества алюминиевых радиаторов достаточно высок и напрямую зависит от производителей. Однако найти высококачественные модели достаточно просто. Главное ориентироваться на сварные соединения, а также гладкость поверхности — чем более они гладкие, тем лучше. Качество напрямую влияет на срок эксплуатации устройства, поэтому если перед вами стоит выбор сэкономить или взять модель подороже, лучше выбирать второе. Дело в том, что посредственные батареи быстро выйдут из строя и вам придется тратить деньги на их восстановление или замену, не считая ремонта из-за протечек. Поэтому дорогие, но качественные радиаторы с повышенным сроком эксплуатации окупятся в перспективе.
В целом, срок службы во многом зависит от качества теплоносителя — чем больше в нем растворено химических веществ, тем более разрушительным он будет для металла. И наоборот, лучшим выбором для долговечности является дистиллированная вода, химически инертная.
Наиболее слабым же местом радиаторов из алюминия являются швы, соединяемые сваркой. Если разрушение металла и начинается, то именно с этих позиций. Поэтому для дополнительной защиты используются специальные прокладки из термостойкой резины, незаменимый при использовании антифриза в качестве теплоносителя. Любое повреждение защитного слоя, особенно на сварных швах, приводит к попаданию в систему кислорода, который, в свою очередь, провоцирует окисление. Оно приводит к ржавчине и, как следствие, ослаблению металла. Поэтому при использовании антифриза раз в пять лет его стоит обновлять, а всю систему полностью очистить.
Можно ли совмещать стальные и алюминиевые радиаторы. Чугунные и алюминиевые радиаторы в одной системе?
/// Чугунные и алюминиевые радиаторы в одной системе?
Ситуация такая: в одной комнате стоят алюминиевые батареи, ради эксперимента хочу поставить обратно чугунные. И вот когда я взял чугунный радиатор, помыл, затянул его (12 секций) на третий этаж, мне его не рекомендуют менять, говоря, что чугун забьет проходы алюминиевых радиаторов, правда ли это?
Собственно хочу поменять, чтобы узнать станет теплее, или нет?
serge
Сообщить модераторам
Да едва ли там что-то забирает, стоят разные у людей батареи, у кого нет денег сразу все поменять, и греют хорошо. А завоздушить может при любых вариантах, это уже тогда к сантехникам нужно идти, чтобы воду спускали в подвале.
Доминик
Новичок
Доминик
Сообщить модераторам
Теплее в комнате, от самой замены алюминиевого радиатора на чугунный, не станет. Теплее может стать только тогда, если Вы увеличите количество радиаторов, или же увеличите температуру воды в батареях.
1
MaksimMaksimov
Новичок
MaksimMaksimov
Сообщить модераторам
Странный вопрос. В общей системе отопления беспокоиться о чистоте алюминиевых батарей наивно. Вода в многоэтажке циркулирует по кругу, а в системе чего только не стоит – и алюминий, и биметалл, и чугун. Это если бы система была индивидуальной, тогда можно было бы задуматься о последствиях блуждания окалины из чугуна по трубам.
1
Маша
Продвинутый форумчанин
Маша
Сообщить модераторам
В смысле? Вы считаете, что чугун растворяется в воде, подобно сахару?
Теплее не станет… алюминиевые радиаторы обладают гораздо более высокой теплоотдачей, нежели чугунные
MaksimMaksimov
Новичок
MaksimMaksimov
Сообщить модераторам
Мариша, вы когда-нибудь видели чугунные батареи, когда их чистят, разбирают? Чугун не растворяется в воде, он окисляется под действием воды и кислорода.
Одни части окалины оседают на низ секции, другие блуждают по системе, застревая в узких проходах, особенно на металлопластиковых фитингах, в которых идёт заужение протока.
Маша
Продвинутый форумчанин
Маша
Сообщить модераторам
Ага… А алюминиевые, хотите сказать, не подвержены коррозии (не смотря на покрытия и прочее)? По долговечности, будем справедливы - чугун лидирует таки…
Другое дело, в целесообразности совмещения 2 типов батарей, вот тогда да, согласна, проходы забьет… Но не вижу смысла, совершенно никакого. проводить подобные эксперименты… К слову, у меня такая-же котовасия - в одной комнате алюминий, в остальных чугун)) Но это от бедности, досталось по наследству после ремонта объекта)… Пока, за 5 лет теплоотдача не понизилась, но менять надо, согласна… Хоть у нас теплоноситель не магистральный (согласитесь, это также имеет значение)…
1
SergeiZuba
Новичок
SergeiZuba
Сообщить модераторам
Приветствую всех! Я хочу поделиться своими советами по выбору радиаторов для отопления дома. Прежде всего, необходимо определиться с типом радиатора - стальные, алюминиевые, биметаллические или чугунные. Каждый тип имеет свои особенности, преимущества и недостатки. Также важно учитывать размеры помещений и требуемую мощность отопления. Для этого можно воспользоваться калькуляторами, которые помогут определить необходимое количество радиаторов и их мощность. Не забывайте также обратить внимание на дизайн радиаторов - они должны соответствовать стилю интерьера и быть удобны в использовании. При выборе радиатора стоит учитывать его энергосберегающие свойства, так как это позволит экономить на коммунальных платежах. Наконец, стоит обратить внимание на качество и надежность радиатора, чтобы он прослужил долгое время и не потребовал дополнительных затрат на ремонт и замену. Чтобы найти именно такие (качественные и надежные) варианты радиаторов отопления, можете посетить этот сайт - https://mircli.ru/radiatory-otopleniya/ . Я у этих ребят заказывал все для проведения новой системы отопления, помогли рассчитать нужное количество всех комплектующих и все это дело доставили по указанному адресу без опозданий.
Приветствую всех! Я хочу поделиться своими советами по выбору радиаторов для отопления дома.
Первым шагом является определение типа радиатора - стального, алюминиевого, биметаллического или чугунного. Каждый тип имеет свои особенности, преимущества и недостатки.
Важно учитывать размеры помещений и требуемую мощность отопления. Для этого можно воспользоваться калькуляторами, которые помогут определить необходимое количество радиаторов и их мощность.
Не забывайте также обратить внимание на дизайн радиаторов - они должны соответствовать стилю интерьера и быть удобны в использовании.
При выборе радиатора стоит учитывать его энергосберегающие свойства, так как это позволит экономить на коммунальных платежах.
Наконец, стоит обратить внимание на качество и надежность радиатора, чтобы он прослужил долгое время и не потребовал дополнительных затрат на ремонт и замену.
Чтобы найти именно такие (качественные и надежные) варианты радиаторов отопления, можете посетить этот сайт - https://mircli.ru/radiatory-otopleniya/.
Я у этих ребят заказывал все для проведения новой системы отопления, помогли рассчитать нужное количество всех комплектующих и все это дело доставили по указанному адресу без опозданий.
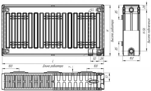
Стальной панельный радиатор. Плюсы и минусы стальных радиаторов отопления
На смену громоздким и нескладным чугунным радиаторам пришло новое поколение элегантных и легких стальных радиаторов. Как понятно из названия, выполненные такие радиаторы из стали и могут быть трубчатыми и панельными. Панельные радиаторы самые распространенные и могут состоять из различного количества секций. Трубчатые радиаторы представляют собой конструкцию из стальных труб, по которым проходит горячая вода. Такие радиаторы бывают абсолютно разного и оригинального дизайна.
Основными производителями стальных радиаторов выступают страны Европы: Германия, Италия, Чехия и Франция. При их производстве используют низкоуглеродную сталь с покрытием фосфатами, порошковой эмалью и термической обработкой. Панельные радиаторы производятся разных форм и размеров, что позволяет удовлетворить потребности большинства потребителей. Соотношение цены и качества стальных радиаторов является максимально выгодной и доступной.
Достоинства:
Оригинальный и эстетичный внешний вид, современность конструкции. Стальные радиаторы выглядят очень просто и стильно, они подходят к большинству интерьеров, занимают немного места и совсем не портят вид комнаты.
 Невысокая цена , большой выбор моделей и производителей на рынке. Ассортимент стальных радиаторов может удовлетворить потребности любого покупателя, а простота конструкции помогает сохранить невысокую цену на изделие.
Низкая тепловая инертность и хорошая тепловая отдача. Малый объем теплоносителя помогает потреблять меньше энергии, при этом хорошо прогревая воздух, а доля теплового потока, которая передается конвекцией достигает 75%, что позволяет отнести данный тип радиаторов к конвекторам.
Разрешены в использовании в жилых многоквартирных домах, больницах и даже дошкольных заведениях. Самым главным достоинством данных радиаторов выступает их экологичность и безопасность.
 Простота монтажа и демонтажа.
Недостатки:
Низкая устойчивость к гидро- и пневмоударам. Низкое рабочее давление и чувствительность к ударам, в т.ч. и гидравлическим, приводит к сокращению срока службы данного типа радиаторов.
Низкая коррозийная стойкость . При сливе воды из системы, соприкосновение атмосферы со стенками радиатора может вызвать появление коррозии.
Стальной радиатор. Лучшие панельные стальные радиаторы
Панельные модели имеют простую плоскую конструкцию, отличаются хорошей теплоотдачей, низкой ценой, универсальным дизайном. Характеристики стальных радиаторов рассчитаны на установку в частных домах, в которых в отопительной системе давление не превышает 10 бар. Производители предлагают однопанельные и двухпанельные приборы разной мощности.
Royal Thermo Compact C22-500
Батареи выпускает российская компания, владеющая двумя заводами по производству алюминиевых и стальных радиаторов. Предприятия укомплектованы европейским инновационным оборудованием, высокий уровень автоматизации обеспечивает безупречное качество готовых продуктов. Модель Compact C22-500 – двухпанельная, с боковым подключением, хорошей теплоотдачей. Изготавливается из прочной стали, толщиной 1,2 мм.
Панели окрашиваются с помощью системы Nordson, стандартный цвет RAL9016, дополнительные оттенки – серый и черный. Покрытие устойчиво к механическому воздействию, надежно защищает металл от коррозии. Серия выдерживает опрессовочное давление до 13 бар. Прочность сварных швов позволила производителю дать 10-летнюю гарантию на свою продукцию.
Достоинства:
- Крепежные элементы в комплекте;
 - Покрытие не выцветает на солнце и под воздействием тепла;
 - Универсальная высота;
 - Аэродинамическая решетка для увеличения теплоотдачи;
 - Наличие индивидуального паспорта у каждой батареи.
 
Недостатки:
- Не обнаружены.
 
Конструктивные особенности, качество металла и швов позволяют использовать теплотехнику в системах отопления, в которых температура теплоноситель достигает 120 градусов. Батарея вмещает небольшой объем воды или антифриза, что делает прибор одним из самых экономичных в своем классе.
Axis Classic 22-500
Разработанные сербскими инженерами стальные радиаторы отопления предназначены для систем закрытого типа. При изготовлении корпуса используется металл, толщиной 1,2 мм. Боковая подводка упрощает подключение, а монтаж осуществляется с помощью кронштейнов, идущих в комплекте. При разработке конструкции учитывался действующий в России ГОСТ, что позволило увеличить максимальное давление, выдерживаемое панелями.
Модель отличается небольшим объемом теплоносителя, высокой теплопроводностью используемого при производстве материала. Это обеспечивает небольшую инерционность отопительного прибора, позволяя быстро нагреть помещение. Лицевая панель имеет рифленую структуру для увеличения площади теплоотдачи. По тепловой мощности оборудование является одним из лучших в классе.
Достоинства:
- Возможность выбора стороны подключения;
 - Легкосъемная декоративная решетка;
 - В качестве теплоносителя можно использовать антифриз;
 - Не выделяет водород, что препятствует коррозии;
 - Прочность декоративного покрытия.
 
Недостатки:
- Лаконичный дизайн.
 
Немецкая компания предлагает стальные радиаторы с нижним подключением для частного дома, объекта коммерческой недвижимости. Особенностью модели является наличие термостатического вентиля, который обеспечивает экономию энергии на 5% больше, чем теплотехника конкурентов по классу. Наружная бесступенчатая регулировка обеспечивает гидравлическую настройку прибора без применения инструмента.
Для этой марки разработана система крепежа, которую невидно со стороны, что положительно влияет на интерьер. При производстве применяются листы металла, толщиной 1,25 мм, что позволяет выдерживать высокое давление. Сварка панелей выполняется роликовым швом, оребрения увеличивают теплоотдачу.
Достоинства:
- Порошковое декоративное покрытие;
 - Встроенный терморегулятор;
 - Эффективный воздухоотводчик;
 - Гарантия производителя 5 лет;
 - Элегантный дизайн.
 
Недостатки:
- Кронштейны приобретаются отдельно от батареи.
 
Rommer Compact 22 500
Китайский бренд производит отопительную технику на немецком и итальянском оборудовании в соответствие с действующим российским ГОСТом, европейскими стандартами. Стальные радиаторы Rommer серии Compact выпускаются с боковым подключением. Рассчитаны на эксплуатацию в системах с принудительной циркуляцией. Экономичны, расходуют минимальный объем теплоносителя. На герметичность проверяются при давлении в 13,5 атмосфер.
Какой радиатор лучше стальной или биметаллический. Выбираем лучший радиатор отопления, стальной или биметаллический

Чтобы решить, какой радиатор отопления лучше, стальной или биметаллический, следует принять во внимание основные конструкционные различия, технические и эксплуатационные характеристики.
Не стоит поспешно приобретать понравившиеся батареи, ориентируясь исключительно на их стоимость или внешний вид, предварительно не получив исчерпывающей информации об остальных параметрах и отличиях.
Различия между радиаторами из стали и биметалла
Неверно будет считать, что единственным отличием между стальными и биметаллическими батареями является используемый при производстве металл. Существуют важные отличия в конструкции и устройстве влияющие на характеристики каждого прибора отопления.
Конструкционные особенности биметаллических приборов отопления
Биметаллические калориферы состоят из стального или медного сердечника, в виде прочной толстостенной трубы, окруженной алюминиевым корпусом. Такая конструкция влияет на способность выдерживать максимальное рабочее давление теплоносителя в системе отопления 16 атм., и выше. Дополнительно можно отметить следующие преимущества:
- Длительный срок эксплуатации устройства. Батареи из биметалла гарантированно проработают больше 15, при условии правильной эксплуатации 20 лет.
 - Невысокие требования к качеству теплоносителя. Сталь ржавеет медленно, не вступает в химическую реакцию с добавками, используются для увеличения теплоотдачи в центральных системах отопления.
 - Возможность подключения к центральной системе отопления в многоэтажном доме.
 

Между радиаторами из стали и биметалла существенная разница в стоимости. Производитель предлагает алюминиево-стальные батареи, по цене, приблизительно на треть дороже, чем за металлический аналог.
Конструкция трубчатых и панельных батарей из стали
Батареи из стали изготавливаются двумя основными способами. От выбранной конструкции зависят эксплуатационные характеристики изделия:
- Стальные панельные радиаторы – конструкция представляет две металлические пластины, соединенные между собой. На внутренней стороне каждого листа выдавлена канавка. При стыковке между пластинами образуется канал для циркуляции теплоносителя.
 - Батареи трубного типа – представляют простую конструкцию, состоящую из стальной трубы и напаянными или закольцованными ребрами для распределения тепла. Устройство отличает низкая стоимость и сравнительно небольшая эффективность. Выгодным отличием стальных трубчатых радиаторов является устойчивость к высокому гидравлическому давлению.
 

Сравнение теплоэффективности стальных и биметаллических радиаторов
Теплоотдача биметаллических и стальных радиаторов приблизительно одинаковая. Это обусловлено тем, что в качестве основного нагревательного элемента обоих типов батарей используется сердечник, пластина или труба из стали.
В качестве достоинства биметалла можно отметить большее время необходимое для остывания батареи.

Какой радиатор выбрать, биметалл или сталь
Сравнение стальных трубчатых радиаторов с биметаллическими показало практически идентичные параметры теплоотдачи и устойчивости к высокому давлению в системе отопления и некачественному теплоносителю. Панельные модели, хотя и имеют красивый внешний вид и привлекательную стоимость, уступают в этом параметре предыдущим вариантам.
Устанавливать стальные панели не рекомендуется в высотных домах, а также в помещениях с повышенной сыростью. Но для частного дома с автономным отоплением, стальные панельные радиаторы являются оптимальным вариантом. Срок эксплуатации изделия рассчитан на 10 лет. Толщина стали в панелях 1,25 мм, что обеспечивает долгий срок службы.
Биметаллические калориферы можно устанавливать для любых помещений. Способность выдерживать высокое давление позволяет подключение к центральной системе отопления. При этом приборы имеют красивый внешний вид, поэтому их чаще всего приобретают для офисов и квартир. Несколько уменьшает популярность изделий высокая стоимость.
Трубчатые калориферы – в качестве недостатков можно отметить непрезентабельный внешний вид. Остальные характеристики относительно теплоотдачи, стоимости и надежности не уступают тем, что имеют панельные и биметаллические приборы отопления. Производители батарей недавно начали налаживать выпуск хромированной продукции, что несколько увеличило спрос потребителей.
Что лучше выбрать, стальные отопительные радиаторы или биметаллические? Для подключения к центральному отоплению лучше использовать биметалл или, по крайней мере, трубчатый калорифер. Для автономных систем вполне подойдут панельные модели.

Какие радиаторы самые долговечные. Популярные вопросы и ответы
Какие бывают радиаторы отопления?
Сейчас на российском рынке востребованы три типа радиаторов отопления: алюминиевые, биметаллические и стальные панельные. Первые и вторые внешне выглядят почти одинаково и состоят из наборных вертикальных секций. Разница в составе и технических характеристиках. Алюминиевые батареи полностью состоят из алюминия, который лучше других металлов проводит тепло. Поэтому они обладают самой высокой теплоотдачей — до 185 Вт на секцию. У них высокое рабочее давление — 16 атмосфер, и они могут пережить любые перепады и гидроудары в системе отопления, потому выдерживают давление на разрыв выше 48 атмосфер. Биметаллические радиаторы снаружи состоят из алюминия, а изнутри полностью сделаны из стали. Такая конструкция позволяет им работать в старых домах, подключенных к центральной системе отопления. Там теплоноситель часто отличается повышенным содержанием щелочи (высоким pH), а в самой воде могут содержаться вредные примеси. В таких условиях алюминиевый радиатор быстрее выходит из строя, а биметаллический служит долго благодаря стальной закладной. Теплоотдача у таких радиаторов — порядка 170 Вт на секцию, и они выдерживают давление до 35 атмосфер, а на разрыв — и вовсе 62 атмосферы. Стальные панельные радиаторы целиком состоят из стали и представляют собой две панели, между которыми расположен нагревательный элемент. Теплоотдача хороших панельных батарей сравнима с алюминиевыми, а вот по надежности они уступают. У стальных приборов рабочее давление только 9 атмосфер.
На что обратить внимание при покупке?
При выборе радиаторов важно обратить внимание на качество теплоносителя в системе отопления. Как правило, в новостройках и частных домах водоподготовка хорошая и pH в норме, поэтому оптимальный вариант — алюминиевые радиаторы. Если дому больше 20 лет, и он отапливается от центральной котельной, то pH воды, скорее всего, высокий, поэтому лучше выбрать биметаллические радиаторы или стальные панельные.
Что должно быть в сертификате радиатора?
При покупке важно проверить наличие сертификата соответствия ГОСТу. Это значит, что прибор прошел испытания в специальной лаборатории, безопасен для эксплуатации в российских системах отопления и соответствует техническим характеристикам, заявленным в техническом паспорте. Также важно проверить наличие маркировки на радиаторе. Там должны быть указаны бренд, модель, страна и дата производства. При отсутствии маркировки покупателю некому будет предъявить претензии, если батарея окажется некачественной.
Что влияет на цену?
Цены радиаторов отопления зависят от страны производства. Возьмем для примера алюминиевые радиаторы. Самые дешевые приезжают из Китая, средняя цена за секцию около 400 рублей. Однако китайские компании ради снижения цены экономят на производстве, потому батареи не отличаются надежностью и могут сломаться через пять-семь лет эксплуатации. Российские приборы находят в среднем ценовом сегменте — примерно 880 рублей за секцию. Если они отечественные, то в большинстве своем соответствуют российским стандартам и служат довольно долго — до 15 лет. Европейские радиаторы стоят чуть дороже отечественных (в зависимости от курса валют) — порядка 950 рублей за секцию. Вдобавок к российским проверкам приборы проходят испытания в европейских лабораториях, что дает дополнительную гарантию качества. Поэтому европейские радиаторы служат до 20 лет и дольше.
Можно ли установить радиатор самому?
В теории установить радиаторы самостоятельно можно, но этого делать не рекомендуется. Монтажом должны заниматься специалисты, которые знают нюансы работы систем отопления. Иначе можно наделать ошибок, в результате которых радиаторы будут плохо греть или начнут протекать. Например, есть истории, когда люди решали заняться установкой самостоятельно и подключали батареи к системе горячего водоснабжения. На первый взгляд это кажется логичным, ведь вода в радиаторах должна быть горячей. Но разница в том, что в отличие от закрытой системы отопления, в системе водоснабжения проточная вода, и примеси, которые могут в нее попадать, со временем разрушают радиаторы. Профессионалы об этом знают, но люди, которые устанавливают батареи сами, часто не в курсе.