Чертежи котлов на твердом топливе своими руками. Котел с верхним горением
- Чертежи котлов на твердом топливе своими руками. Котел с верхним горением
- Как усовершенствовать котел на дровах. Устройство твердотопливного котла
- Твердотопливный котел в разрезе. Выбираем конструкцию обогревательного котла
- Самодельный твердотопливный котел. Разновидности котлов
- Шахтный котел длительного горения своими руками: чертежи. Как сделать своими руками котел твердотопливный длительного горения: чертежи и схемы
- Котел нижнего горения своими руками. Пиролизный котел своими руками
- Простой котел своими руками. Домашняя технология производства отопительного оборудования
- Котел на дровах своими руками чертежи. Разные конструкции
Чертежи котлов на твердом топливе своими руками. Котел с верхним горением

Для обеспечения лучших условий сгорания топлива в верхней части располагается камера подогрева воздуха. Подача воздуха, а значит, и скорость горения, регулируются задвижкой на входе в эту камеру сверху. Теплообменник здесь выполнен в виде «водяной рубашки» вокруг камеры сгорания.

Чертеж котла на твердом топливе верхнего горения
1 — наружная стенка (труба); 2 — внутренняя стенка; 3 — водяная рубашка; 4 — дымовая труба; 5 — телескопическая воздухоподающая труба; 6 — распределитель воздуха (металлический «блин» с ребрами; 7 — камера предварительного подогрева воздуха; 8 — патрубок подачи воздуха; 9 — подающая труба с нагретой водой; 10 — воздушная заслонка; 11 — загрузочная дверка; 12 — дверка для чистки; 13 — труба с водой из системы (обратка); 14 — трос, управляющий заслонкой.
Как усовершенствовать котел на дровах. Устройство твердотопливного котла
Устройство твердотопливного котла таково, что он способен работать как на дровах, так и на угле. Что примечательно, для монтажа данных агрегатов не нужно получать разрешение на установку. Кроме того, они не нуждаются в частых проверках и обследованиях с приглашением специалистов. Обычно агрегат имеет цилиндрическую или прямоугольную форму.
Компоненты, присутствующие во всех котлах:
- Топка или камера сгорания. В нее закладываются дрова и затем сжигаются. За счет этого образуется тепло.
- Поддувало (зольник) — отверстие, пропускающее воздух к месту горения. Является частью топки и отделяется от нее колосниковой решеткой, через щели которой высыпается шлак, оставшийся после сгорания дров.
Принцип действия новой разновидности котлов основан на пиролизном сжигании топлива. В них процесс получения тепловой энергии более сложный, но эффективный.
В пиролизных котлах выделяется горючий газ, полученный при разложении древесины в условиях недостатка кислорода. Данный пар перемешивается с воздухом и сгорает факелом в зоне теплообменника. Конструкция оснащена загрузочной камерой и топкой.
После укладки угля или дров в загрузочную камеру сырье поступает через керамическую горелку в камеру сгорания, где на выходе располагается факел. Регулировка подачи газа позволяет держать температуру теплоносителя на уровне 65–68 ºС.
Теплообменник является одним из самых важных узлов котла с высоким КПД. Через стенки его трубок осуществляется передача тепла. По конструкции теплообменник напоминает змеевик, который расположен в зоне пламени камеры сгорания. У новых агрегатов в большинстве случаев его конструируют так, что сама топка расположена внутри змеевика, за счет чего уменьшаются теплопотери.
Теплообменники делятся на два вида:
- Стальные. Такие агрегаты достаточно легкие, простые в установке и стоят недорого. Однако срок их эксплуатации составляет около 10 лет. Ремонту не подлежат.
- Чугунные. Характеризуются долгим периодом службы — свыше 20 лет. Такие котлы устойчивы к коррозии. При поломке одной из секций можно заменить ее на новую.

Твердотопливный котел в разрезе. Выбираем конструкцию обогревательного котла
Печи для обогрева и твердотопливные котлы при сходстве процессов горения различаются по функциональности. Отопительный котёл, в отличие от печи, должен не только обогревать помещение по месту установки, сжигая дрова или уголь, но и снабжать отопительный контур нагретым теплоносителем. Но для выполнения второй задачи мало разместить в печи теплообменник (участок отопительного контура) — необходимо также обеспечить непрерывность горения топлива и равномерность циркуляции теплоносителя через этот змеевик.
Трубный теплообменник твёрдотопливного котла из огнеупорного кирпича
Какую конструкцию котла выбрать, чтобы было легче его изготовить своими руками, с какими сложностями придётся столкнуться в процессе работы? На эти вопросы можно получить ответ еще на стадии проектирования. Чертежи самодельных твердотопливных котлов дают достаточное представление о том, как выглядит та или иная конструкция, и на что следует обратить внимание в процессе изготовления.
Пример схематичного изображения твёрдотопливного котла снаружи: виды спереди, сбоку и сзади.
*
Каждая разновидность котельного оборудования, работающего на твердом топливе, имеет свои особенности конструкции и нюансы изготовления. Планируя самостоятельную сборку отопительного агрегата, необходимо решить, какой конструкции отдать предпочтение — с нижним или верхним (шахтным) способом горения.
Агрегаты с нижним горением — это оборудование, в котором дверка для загрузки дров расположена в верхней части камеры сгорания, но сгорание топлива происходит снизу, в результате чего верхние слои закладки под собственным весом перемещаются вниз, а дожигание дыма происходит в верхней части. В зависимости от модели, движение воздуха через топку происходит снизу вверх принудительно (вентилятор) или же естественным путём (тяга), что обуславливает независимость от электросети, но пониженную эффективность и меньший объём загружаемого топлива.
Схематичное изображение в разрезе твёрдотопливного котла с нижним горением топлива
В твёрдотопливных котлах шахтной конструкции загрузка дров производится через дверку, которая расположена в верхней части камеры сгорания. Такие агрегаты оборудуются принудительной тягой, которая направлена сверху вниз — гонит дым в нижнюю часть топки, где он в смеси с воздухом сгорает, а по пути подогревает и дополнительно просушивает топливо нижних ярусов.
Схема работы твёрдотопливного отопительного котла с верхним способом горения топлива
К самостоятельному изготовлению больше подходит агрегат с нижним способом горения, так при его сборке можно обойтись без вентилятора для принудительной тяги.
Твёрдотопливный стальной котёл нижнего горения без отделки
Важно! Чем сложнее конструкция оборудования, тем выше технологические требования к качеству исполнения её составляющих, которые не должны иметь отклонений от расчётных параметров. Не менее ответственен и процесс сборки такого агрегата.
*
По способу горения котлы на твердом топливе могут быть рассчитаны на обычный режим или же работать с выходом на пиролиз — процесс разложения твёрдого топлива на две составляющие и с последующим раздельным их сжиганием. Отдавая предпочтение второму, более сложному, варианту, придется учитывать необходимость установки второй камеры сгорания, что увеличит габариты отопителя и, соответственно, потребует большего количество материалов.
Выбор типа отопительной техники во многом определяется видом твердого топлива, которым будет снабжаться нагревательный прибор. Если у вас под рукой в большом количестве дрова, лучше будет, если сделанный вами котел будет рассчитан на топку дровами. При большей доступности каменного угля подойдет другая модель. Длительность горения закладки, качество обогрева определяются типом твердотопливного котла, его мощностью и эффективность ю конструкции.
На заметку: температура горения угля значительно выше, чем у дров, поэтому колосники , теплообменник и корпус котла под уголь изготавливаются из стали большей толщины. Альтернативой может стать создание корпуса и топочной камеры котла из огнеупорного кирпича.
Если нет возможности создать внешний корпус агрегата из стали необходимой толщины, рациональным решением станет кирпичный твердотопливный котел . Футеровка огнеупорным кирпичом позволит создать просторную, удобную и устойчивую к высоким температурам камеру сгорания.
Сооружение камеры сгорания из огнеупорного кирпича с размещением внутри теплообменника
Выбор котла с конструкцией приемлемой сложности необходимо делать после анализа технического исполнения и объективной оценки своей компетенции и возможностей. При наличии сомнений, чтобы исключить вероятность неоправданной порчи материала, лучше отдать предпочтение агрегату простой, понятной по чертежам конструкции — даже такой твёрдотопливный котёл способен обеспечить дом теплом в холодное время года.
Самодельный твердотопливный котел. Разновидности котлов
Все существующие твердотопливные котлы можно условно разделить на 3 группы:
Существует и ряд иных классифицирующих признаков, но именно принцип сгорания топлива является определяющим при выборе котла.
Пиролизный
В котлах подобного типа топливо сгорает медленно при минимальном доступе воздуха, за счет чего увеличивается количество горючего газа и при повторном его сгорании КПД котла повышается до 85-90%. И хотя некоторые считают, что изготовить собственноручно такой котел очень сложно, мы расскажем и, главное, покажем, как правило сделать пиролизный твердотопливный котел длительного горения своими руками (чертежи см.ниже).
Фото 1 Схема устройства пиролизного котла на дровах
Классический
Конструктивно это стандартная деревянная печь, где за счет меньшего размера топочной камеры топливо сгорает чуть медленнее. Как правило, именно такие котлы предпочитают изготавливать самостоятельно. О том, как сделать такой классический агрегат, вы также узнаете в статье.
Фото 2 Схема классического котла длительного горения
Конструкция таких котлов примечательна не только простотой изготовления, но и возможностью подключения второго контура для получения горячей воды одновременно с отоплением.
Это наиболее эффективные котлы, коэффициент полезного действия которых приближается к 95%. Основное преимущество в полностью автоматическом процессе, где загруженные в бункер пеллеты посредством шнека пересыпаются в камеру сгорания. Сложная конструкция и автоматика делают его самостоятельное изготовление затрудненным.
Фото 3 Схема твердотопливного котла с автоматической подачей пеллет
Разновидности топлива
На сегодняшний день твердое топливо на российском рынке представлено в большом ассортименте. Это:
- дрова, в том числе евро (спрессованные хвойные или лиственные опилки),
- гранулированные биопеллеты (спрессованные опилки, торф, отходы сельского хозяйства и т.д.);
- уголь – все разновидности и фракции каменного и антрацит;
- отходы деревообрабатывающего и сельскохозяйственного производства.
Для того, чтобы отопление было рентабельным, рекомендуется приобретать или изготавливать универсальный котел, который может функционировать на любом виде топлива
Если вы решили приобрести такое оборудование, обратите внимание на комбинированные котлы отопления. которые работают на альтернативных видах топлива, причем переключение осуществляется очень быстро и легко
Это могут быть следующие варианты:
- электрические комбо;
- твердотопливные комбо;
- универсальные, использующие любые комбинации топлива.
Конструкция и принцип работы
Принцип работы такого котла относительно прост – снизу подтягивается холодный воздух, проходя через стенки камеры, он нагревается, поднимается вверх и обогревает помещение.
Фото 4 Делаем котел из подручных материалов
В котлах длительного горения, в отличие от традиционных, доступ воздуха должен быть максимально ограничен. Для того, чтобы увеличить продолжительность горения и сократить количество свободного пространства в камере сгорания, необходимо загружать топливо как можно больше и плотнее.
Шахтный котел длительного горения своими руками: чертежи. Как сделать своими руками котел твердотопливный длительного горения: чертежи и схемы
Перед тем, как начать изготовление котла, необходимо определиться с его конструкцией. Ее выбор зависит от назначения агрегата. Если он предназначен для отопления небольшого хозяйственного помещения, гаража или дачного домика, то делать в нем водяной контур не обязательно. Обогрев такого помещения будет происходить непосредственно от поверхности котла, путем конвекции воздушных масс в помещении, как от печи. Для большей эффективности можно устроить принудительное обдувание агрегата воздухом при помощи вентилятора. При наличии системы жидкостного отопления в помещении, необходимо предусмотреть устройство в котле контура в виде змеевика из трубы или другой аналогичной конструкции.

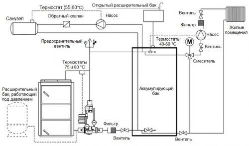
Схема подключения твердотопливного котла к системе отопления
Выбор варианта зависит и от типа твердого топлива, которое нужно будет использовать. Для отопления обычными дровами требуется увеличенный объем топки, а для применения мелких топливных гранул можно устроить специальную емкость, из которой гранулированное топливо подается в котел автоматически. Для изготовления котла твердотопливного длительного горения своими руками, чертеж можно взять и универсальный. Он подойдет для любого вида используемого твердого топлива.


Котел нижнего горения своими руками. Пиролизный котел своими руками
Нынешний рынок отопительных приборов поражает своим разнообразием, но, по мнению многих специалистов, самыми эффективными и практичными являются газогенераторные твердотопливные котлы. Они имеют достаточно высокий КПД, в некоторых моделях до 90% и даже выше. Принцип работы твердотопливного газогенераторного котла заключается в использовании «медленного» горения в условиях недостатка кислорода. В результате образуется большое количество горючих газов, которые потом сжигаются во второй камере. В качестве горючего можно использовать дрова, торфяные брикеты, солому, каменный уголь, пеллеты, опилки, а также бытовой мусор.
Пиролизные отопительные котлы пользуются довольно неплохим спросом, однако, стоимость их доступна далеко не каждому. В зависимости от типа конструкции, мощности агрегата и фирмы производителя предложения стартуют от 500€. Поэтому многие народные умельцы пробуют изготовить такой котел самостоятельно.

Пиролизные котлы с верхней и нижней камерой горения пиролизных газов
Несмотря на то, что конструкция пиролизного котла достаточно сложна, сделать это вполне по силам каждому, кто умеет обращаться со сварочным аппаратом и разбирается в чертежах. Прежде чем начинать изготовление стоит уяснить, что все они делятся на агрегаты с верхней или нижней камерой сжигания синтез-газов. Это зависит от способа подачи этих самых газов в камеру вторичного сгорания: когда они, повинуясь законам физики, поднимаются кверху самостоятельно, то это котел с верхней камерой дожига, а если продукты сгорания при помощи принудительного наддува опускаются в нижнюю топку и сгорают там — это конструкция с нижней камерой.
Стоит понимать, что котлы с нижней камерой догорания имеют не только более сложную конструкцию, но и потребуют дополнительных расходов на приобретение вентилятора, обеспечивающего требуемое направление движения газов. Потому быстрее и дешевле сделать котел с верхней пиролизной камерой.
Простой котел своими руками. Домашняя технология производства отопительного оборудования
В поисках ответа на вопрос, как сделать котел отопления своими руками достаточно быстро приходишь к убеждению, что ничего особенно сложного в этом нет. При условии грамотной организации производственного процесса. Удобнее отдельные детали делать на верстаке в оборудованной мастерской или ином месте, где можно сделать рабочий стол.
Изготовление деталей корпуса
Основу любого твердотопливного котла для отопления частного дома составляет топка, где температура достигает 1000 ⁰С и для ее сборки потребуются материалы с соответствующими характеристиками. Порядок изготовления корпуса следующий:
- При отсутствии жаропрочных сталей можно обойтись и обычной, но для обеспечения долговечности узла его стенки делаются двойными. Передняя, задняя, боковые и нижняя стенки вырезаются из стального листа при помощи угловой шлифовальной машинки;
- Чертежи котлов отопления имеют обозначения точных размеров всех деталей, которые переносятся на металлопрокат при помощи измерительного инструмента и большой линейки. Помимо стенок камеры из стальной профильной трубы нарезается необходимое количество для использования их в качестве ребер жесткости. Из стального уголка изготавливаются усилители для стыков между отдельными частями печи;
- В передней стенке необходимо проделать прямоугольное отверстие, соответствующее по размерам дверцам топочного и зольного бункеров.
Полезный совет: для выполнения сквозного прямоугольного отверстия нужной конфигурации наносим на металл разметку, по углам производим сверление листа при помощи электродрели. Угловой шлифовальной машинкой делаем сквозной порез в средней части и ведем его от центра к краю. Это позволит избежать лишних повреждений листа.

Изготовление емкостей для воды и теплообменников
Эффективная конструкция отопительного котла предусматривает наличие двух баков для воды. Их делают из нержавеющего стального листа, для сварки которого необходимо специальное оборудование и определенная квалификация. Тут лучше довериться профессионалам и заказать эти емкости в специализированной мастерской.

Конструкция теплообменника представляет собой набор из водопроводных труб. При помощи сварочного аппарата они соединяются таким образом, чтобы образовать проточный контур с максимально большой внешней поверхностью. Это обеспечит быструю и наиболее полную теплоотдачу от сгораемого топлива к теплоносителю.
Котел на дровах своими руками чертежи. Разные конструкции
Для решения отмеченных выше задач используют различные решения. Чтобы не закладывать часто новые порции топлива увеличивают размеры топки. Сделать процесс горения равномерным помогает размещение сверху прижимного устройства, дозированная подача воздуха.
Схема типичного котла этого класса
Создать чертежи твердотопливных котлов длительного горения своими руками будет проще после подробного изучения стандартной конструкции:
- В начальном положении прижимное устройство (10) находится в верхнем положении.
- Через дверцу (6) в топку загружают крупную партию дров.
- После поджигания происходит регулируемый механическим приводом (16) процесс горения.
- Свежий воздух подается нагнетателем через телескопическую полую внутри штангу. Он распределяется равномерно через прижимной диск (10).
- Подача кислорода сверху обеспечивает постепенное сгорание топлива, слоями.
- Золу после завершения цикла удаляют через нижнюю дверцу (13).
- Для поднятия диска (10) в верхнее положение используют лебедку (2) с электроприводом.
Недостатком данной конструкции является невозможность произвольной закладки дров в топку. Существенное преимущество – повышенная до 24 часов и более длительность одного рабочего цикла.
В следующей конструкции топливо можно подкладывать по мере необходимости. Здесь использована технология пиролиза. Она характерна дозированной подачей кислорода и низкой интенсивностью горения. Тлеющие дрова выделяют горючий газ. Он сгорает в дополнительной камере.
Пиролизный котел
Эта установка полноценно использует топливо. В продуктах сгорания содержится минимальное количество сажи. Сложной является оптимальная регулировка рабочих процессов.
Газовые и дизельные агрегаты лишены упомянутых недостатков по причине простоты дозирования соответствующих видов топлива. Подобный результат можно получить, если использовать специальным образом спрессованные гранулы из отходов деревообработки, шелухи семечек, иного горючего сырья.
Пеллетный котел
В данном варианте гранулы (пеллеты) засыпают в бункер, откуда они подаются шнековым механизмом в топку. Понятно, что такая конструкция позволяет при необходимости быстро увеличивать и уменьшать подачу топлива. Гибкое изменение производительности котла пригодится для оптимизации работы при изменении внешней температуры, подключении дополнительных потребителей. С гранулами не слишком сложно работать при транспортировке, хранении.
Теплообменник для подогрева воды
Повышают эффективность котлов с помощью сложных структур выходных узлов. В таких конструкциях повышается температура теплоносителя . Аналогичные функции выполняют полые стенки корпуса.
Котлы длительного горения на дровах для дома. Необходимость часто подбрасывать дрова весьма неудобна. Однако есть котлы, которые требуют внимание раз в сутки. Подробнее в отдельной публикации.