Каркасный дом своими руками: пошаговая инструкция
- Каркасный дом своими руками: пошаговая инструкция
- Бюджетный каркасный дом своими руками. Первым делом определяем бюджет и составляем проект каркасного дома
- Построить каркасный дом своими руками чертежи. Необходимость в грамотных чертежах каркасных домов
- Каркасный дом 6 на 8 своими руками. Шаг №2: Фундамент для каркасного дома своими руками
- Маленький каркасный дом своими руками. Инструкция к фундаменту
- Каркасный дом своими руками смета. Каркасник своими руками. Смета, цены на строительство
- Каркасный дом 4 на 6 своими руками. Дачный домик 6х4 своими руками по цене бытовки. Комплект чертежей для самостоятельной сборки
- Каркасный дом 6 на 9 своими руками. Проект каркасного дома 6х9 СВОИМИ РУКАМИ. Часть 2 (с подробным текстом и картинками)
Каркасный дом своими руками: пошаговая инструкция
Есть мнение, что строительство каркасного дома вполне можно осилить самостоятельно. Например, заказать на заводе силовой каркас с инструкцией для самостоятельной сборки, чтобы сэкономить на бригаде сборщиков. При большем желании можно даже закупить материалы на строительном рынке, изготовить каркас и собрать дом полностью с нуля своими руками.
Но очевидно, что браться за такое мероприятие стоит, только досконально изучив каркасную технологию строительства, пообщавшись с профильными строительными компаниями и владея базовыми навыками сборки деревянных конструкций.
Изучить технологию необходимо для того, чтобы определиться с вариантами наполнения каркаса (утеплитель, пароизоляция, гидроизоляция), видами внутренней и внешней отделки, а также решить вопрос, будет ли устанавливаться вентилируемый фасад. От выбора вариантов напрямую зависит сложность работ и решение по самостоятельному их выполнению либо привлечению бригад по крайней мере на некоторые этапы сборки.
Постройка каркасного дома
Постройка каркасного дома: краткая инструкция
В деле самостоятельной сборки каркасного дома важно ничего не упустить и не допустить ошибок. Перед вами — краткая обзорная инструкция, которая поможет увидеть картину в целом, чтобы рассчитать свои силы и возможности:
- Проектирование. В него входит как архитектурная часть — дизайн дома, расположение помещений, стен и перегородок, окон и дверей, так и конструктивная и инженерная части — толщина стен, устройство силовых элементов, расположение санузлов, трассировка инженерных систем. Все параметры предварительно отражаются на схеме, чтобы можно было скорректировать некоторые моменты, проверить правильность расчетов, изменить планировку. Рабочие чертежи — это детальные схемы отдельных частей, с помощью которых можно выполнять все работы, придерживаясь указанных параметров.
- Разметка и грунтовые работы. В первую очередь, местность под будущее строительство расчищается, потом делается разметка под проект дома. Необходимость выкопки котлована под фундамент и его глубина определяется типом фундамента. На выбор типа влияет геология грунта, вес и конфигурация будущего дома. Для свайного фундамента (свайно-винтовой, буронабивной) рыть котлован не надо, для ленточного заглубленного — надо. Если предполагается цокольный этаж или подвал — котлован будет глубоким.
- Монтаж. Если предварительные работы были выполнены верно, во время монтажа останется собрать все детали в единое целое, получив готовый контур дома. В сборку входит установка силового каркаса, его наполнение, устройство пола и кровли, монтаж окон, дверей, внутренних перегородок.
- Отделка. Производится как внутри, так и снаружи дома, с целью получить эстетически привлекательное, долговечное и простое в эксплуатации строение.
Бюджетный каркасный дом своими руками. Первым делом определяем бюджет и составляем проект каркасного дома

Проект каркасного дома из двойного бруса
Пошаговая инструкция как построить дом своими руками начинается с важнейшего этапа, пренебрегать которым нельзя ни в коем случае. Необходимо составить 2 вещи:
- проект здания;
- смету на расходы.
Для того, чтобы сделать проект, вполне достаточно базовых навыков черчения. Важно правильно рассчитать количество требуемых материалов, чтобы потом не пришлось докупать их в авральном режиме.
Можно, конечно, приобрести материалы «с запасом», но тогда постройка дешевого каркасного дома своими руками окажется не такой уж дешевой.
Что касается сметы, то ее составить очень просто. Все расценки на материалы и услуги есть в интернете. Остается только переписать их, а затем сложить на калькуляторе – и получится общий бюджет строительства. Не стоит забывать о таких вещах:
- стоимость услуг (доставка покупок на участок, работа электрика и т.д.);
- стоимость проводов и труб (зависит от того, насколько далеко придется их прокладывать – расстояние до центральной системы водо- или газоснабжения может быть внушительным);
- внутренняя отделка, осветительные приборы и мебель.
Стоит отдельно обозначить «верхний порог» бюджета. Для этого нужно учесть рост цен и примерно подсчитать, насколько они увеличатся на дату конца строительства. Для хорошей сметы, позволяющей недорого построить самый дешевый каркасный дом своими руками, это очень важно.
Построить каркасный дом своими руками чертежи. Необходимость в грамотных чертежах каркасных домов
Главный козырь каркасного строительства домов – это его доступность, оптимальная цена, за которую можно получить собственный жилой каркасник для круглогодичного проживания. Это окупает и перевешивает возможные недостатки, которые существуют у каркасной конструкции.
Сравнительно низкая прочность – в сравнении с капитальными стенами, необходимость обустройства и постоянной работы вытяжной вентиляции в каркасном доме , относительно небольшая долговечность – опять же, в сравнении с строениями из кирпича.
А поскольку каркасное строительство сочетает ценовую и технологическую доступность, его часто выбирают для осуществления своими руками. Причём работы ведутся при отсутствии больших профессиональных навыков, опыта какого-либо строительства.
На заметку
В таком случае, главным помощником, консультантом и хорошим подспорьем в решении строительных вопросов будет проект будущего дома. Он будет содержать перечень материалов, их размеры, а также изображения способов крепления, вида каркасных стен в сборе.
Желательно, чтобы проект каркасного строительства был рассчитан и прорисован профессионалом. Есть важные моменты, которые необходимо учесть, чтобы дом получился прочным и прослужил вам не один десяток лет. Поэтому экономить и строить без него может оказаться себе дороже. На чём тогда можно оптимизировать собственные расходы?

Проект первого этажа.
Сэкономить на проекте каркасного дома можно приобретением готового типового проекта. Такой документ обходится в несколько раз дешевле индивидуального. При этом содержит все необходимые для строителя сведения.
Каркасный дом 6 на 8 своими руками. Шаг №2: Фундамент для каркасного дома своими руками
Огромное достоинство каркасного дома в том, что для его строительства подойдет практически любой тип фундамента. Единственным ограничением является тип грунта на участке и Ваши возможности.
Стоит сказать, что заложение фундамента для каркасного дома своими руками заслуживает отдельных тем обсуждения и вынесено в отдельные статьи. Тем более что типов подходящих фундаментов несколько, а какой выбрать – решать только Вам.
Здесь же я расскажу в двух словах о подходящих фундаментах для каркасного дома, и о том, в каких случаях применяется каждый из них, а также дам ссылки на подробное их описание.
Свайно-винтовой фундамент для каркасного дома
Самым распространенным типом фундамента для каркасного дома является свайно-винтовой. Это практически самый простой и дешевый вариант для такого дома, тем более, что произвести монтаж свайно-винтового фундамента не сложно и своими руками.
Такой фундамент подходит практически для любых грунтов, кроме скалистых. Особенно хорошо подходит для болотистых грунтов, где плотные породы грунта располагаются глубоко и другие типы требуют огромных затрат.
Вообще, все плюсы и минусы свайно-винтовых фундаментов , рассмотрены в другой теме, которая поможет Вам определиться с выбором опоры для Вашего дома.
Мелкозаглубленный ленточный фундамент
Мелкозаглубленный ленточный фундамент , так же используется для строительства каркасного дома своими руками довольно часто. Это обусловлено относительно небольшими затратами на его заложения, а также возможностью использования бетонных полов в доме.
Такой фундамент, в связи с его относительной хрупкостью, требует точного соблюдения технологии заложения.
Как правило, мелкозаглубленный ленточный фундамент используется в хороших грунтах, и категорически противопоказан на почве с очень высоким уровнем грунтовых вод и болотистых грунтах.
Плитный фундамент для каркасного дома
В последнее время, все большую популярность для строительства каркасного дома своими руками набирает плитный фундамент. Не смотря на его не малую стоимость, у него присутствуют очевидные плюсы, такие как универсальность, надежность, долговечность, а также его можно использовать как черновой пол в доме и не тратиться на него отдельно.
Частенько, вместо классической монолитной плиты используют плитный фундамент с ребрами жесткости. Это позволяет немного сэкономить на заложении, а также усиливает всю конструкцию в целом.
Маленький каркасный дом своими руками. Инструкция к фундаменту
Поэтапное строительство каркасного дома своими руками начинается с фундамента. Это — основа дома, большая, ровная и прочная «подставка», на которой держится вся каркасная конструкция. Её можно вылить из бетона или собрать из готовых бетонных блоков.

Ленточный фундамент для каркасника.
Каркасное строительство называют «лёгким». Стены каркасника значительно меньше давят на поверхность земли, чем капитальные сооружения из кирпича или монолиты из бетона. Каркас также легче брусового деревянного дома. Поэтому вашему строению понадобится небольшой мелкозаглубленный фундамент, при этом глубину можно сделать на 100-300 мм.
На заметку
Решая, как самому построить каркасный дом своими руками, неизменно сталкиваешься с вопросом выбора конструкций и материалов. Для каркасных строений сооружают мелкозаглубленные ленточные фундаменты или плиты. В некоторых случаях для каркасников делают фундаменты глубокими.
В некоторых случаях для каркасников нужна большая глубина фундамента. Это бывает, когда грунт – зыбкий, подвижный, сыпучий и строение планируется на берегу водоёма. В таком случае устанавливают свайно-винтовой фундамент , который будет опираться на глубокие и неподвижные слои грунта.
Ленточный фундамент
Представляет собой каменную ленту, дорожку, заглубленную в землю на 100-400 мм. Над поверхностью земли фундамент возвышается на 100-300 мм. Таким образом, общая высота ленточного фундамента для каркасного дома составляет 200-700 мм.

Опалубка ленточного фундамента с арматурной сеткой
На заметку
Можно сделать фундамент глубже и выше – но это уже на ваше усмотрение, при желании израсходовать больше строительных материалов и получить более массивную конструкцию основания дома.
Ленту фундамента заливают в подготовленные заранее траншеи. Бетон для заливки можно замешивать самостоятельно. Перед заливкой в траншеи насыпают слой песка и тем самым делается так называемая песчаная подушка (толщина до 100 мм) и укладывают металлические арматуру.
Плитный фундамент
Плитный фундамент также называют плавающим. Каркасный дом будет подниматься и опускаться вместе с ним, при сезонных расширениях грунта . Поэтому плита должна быть достаточно прочной, чтобы можно было возводить здание в два этажа и выше.
Плитный фундамент заливают из бетона и арматуры, при этом арматуру связывают проволокой. Арматурная сетка обеспечивает плите каркасного дома необходимую прочность, жестко фиксируя монолитную плиту.
Расчет фундамента производится по принципу повышенной нагрузки, применяют арматуру разного диаметра. Плюс можно менять расстояние между прутьями, и это поможет увеличить прочность фундамента. Стоимость зависит от сложности работы и потраченных материалов на создание.

Фундамент залит монолитной плитой
Плитное основание можно минимально заглубить в грунт на 100-200 мм, или лить бетон на гравийную подушку без заглубления. Общая высота плиты должна составлять 200-300 мм.
Для плиты фундамента важно обеспечить стойкость к подъёму грунтовой влаги. Поэтому при замешивании бетона в него добавляют водостойкую добавку. Это обеспечит водостойкость бетонной плиты и сухой пол внутри будущего помещения. А также продлит долговечность фундамента и всего строения.
Свайно-винтовой фундамент
Для получения свайно-винтового фундамента можно использовать асбестовые трубы или металлические готовые сваи. Для асбестовых труб готовят ямы, в которые устанавливают трубу и заливают в неё бетон. Предварительно – армируют, т.е. ставят металлическую арматуру внутрь трубы. Металлические сваи вкручивают в землю без вынимания грунта, не выкапывая ямы.
Для того чтобы было легче и понятнее, как монтировать свайно-винтовой фундамент и каркасный дом своими руками – пошаговое фото.

Каркасный дом своими руками смета. Каркасник своими руками. Смета, цены на строительство
Я победила лень и даже нарисовала графики)
Ссылка на смету - https://drive.google.com/file/d/117bnEel4uyBgB8tn7Zto8121Vsq…
Если не читали предыдущие посты, вкратце:
Дом 140м2, каркасник в два этажа с террасой и балконом. Строили сами, практически без привлечения наемной силы. Фундамент утепленная шведская плита, домокомплект покупали с завода, стены 200мм, участок 15 соток. Стройка в период 2014 - 2016г. Живем с 2015г.
Дом не рухнул, все збс, каркасником довольны.
Затраты на сегодняшний день с нуля:


Пару слов о том, как все же считать цену на дом.
Вот купили вы квартиру. Есть допустим 3 млн стоимость квартиры (коробка в случае дома), начали делать отделку + 1 млн, но не будете же вы жить без плиты и холодильника (техники, если раньше ее не было) + 200 тыс. Итого 4,2 млн и вы въехали. Все просто.
Если же дом, можно посчитать отдельно коробку и отделку, но вы не сможете жить без септика, забора, подключения коммуникаций, без дорожек, как минимум.
Для жизни в доме нужна не только теплая коробка, но и внешние траты, фасад например.
Поэтому когда спрашивают сколько потратили, всегда говорю - 5,5 млн. В любом случае это все не единовременно, а растянуто. Квартиру сделал и забыл, а тут вливания бесконечны и остановиться невозможно.
Но конечно эту сумму я разбила на статьи)):


Как я уже писала - мы очень мало потратили на рабочих, но не экономили на материалах. Можно было бы уложится в 1,3 млн - если купить дрова для дома на лесопилке, а не заказывать домокомплект, купить металлочерепицу не Рукки, а "ООО Липецкстройметаллзаводсупер", окна не Рехау с ламинацией, а двухкамерные, фундамент не УШП, а ленту и полы по грунту с батареями, вместо теплого пола. А если перекрытие деревянное сделать - там смело минус 200 тыс. Ну короче все относительно.
Серия постов, в которой все расписано подробно:
Каркасник своими руками. Интерьер
Каркасник своими руками. Почему каркас?
Каркасник своими руками. ч.4 Крыша, лестница, отмостка
Каркасник своими руками. ч.3. Утепление, электрика, ГКЛ
Каркасник своими руками. ч.2 Собираем конструктор
Каркасник своими руками. ч.1 УШП
В общем как обещала, смету скинула, в ней все подряд - фильтруйте по нужному именно вам.
Про что еще рассказать?)
ПС. Кто просил проект - скинуть не могу - оказывается муж его отдал коллеге как руководство.
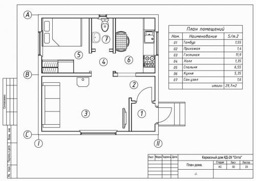
Каркасный дом 4 на 6 своими руками. Дачный домик 6х4 своими руками по цене бытовки. Комплект чертежей для самостоятельной сборки
Проект содержит понятные даже простому обывателю чертежи для самостоятельной постройки одноэтажного каркасного деревянного домика размерами 6х4 с просторным чердачным помещением. Идеально подойдет людям, имеющим скромный бюджет, но не желающим ютиться в бытовке на своем дачном участке.
Дачный домик 6х4 своими руками по цене бытовки
Комплект чертежей каркасного домика 6х4 для самостоятельной сборки
КАКИЕ ВЫГОДНЫЕ ОТЛИЧИЯ ОТ ДРУГИХ ПРОЕКТОВ?
1. Проект содержит понятные чертежи с размерами всех элементов и узлов каркаса
(стоек стен, оконных и дверных проемов, балок перекрытий, стропильной системы).
2. Все необходимые материалы и их точные размеры указаны непосредственно на
странице где нарисован тот объект, который вы будете изготавливать или собирать и
вам не придётся тратить уйму времени чтобы найти и рассчитать, что вам нужно, всё
указано на схеме, просто и удобно.
3. Проект разработан под размеры типовых материалов из строительных магазинов, с
целью уменьшения отходов и соответственно финансовых расходов.
4. Габариты и форма дома выбраны для максимальной экономии строй материалов.
ПОЧЕМУ ИМЕННО КАРКАСНЫЙ ДОМ?
· ПРОСТАЯ КОНСТРУКЦИЯ.
Каждый желающий, имеющий свободное время, технические навыки, некоторые
инструменты и одного-двух помощников, может легко построить этот каркасный дом.
· ВСЕПОГОДНОСТЬ.
Строить каркасный дом можно в любое время года.
· ОТСУТСТВИЕ УСАДКИ.
Дома, построенные по каркасной технологии, не имеют усадки и пригодны к отделке и
проживанию сразу после окончания строительства.
· ЭКОНОМИЯ НА ФУНДАМЕНТЕ.
Вам не нужно возводить и заливать фундамент. Просто ставите брусья нижней обвязки на столбы из строительных блоков и дом готов к установке.
· СРОК СТРОИТЕЛЬСТВА.
Изготовление деталей, узлов и сборка каркаса от 14 дней.
· ЭНЕРГОСБЕРЕЖЕНИЕ.
Стена каркасного дома держит тепло так же хорошо, как почти 2 метра кирпичной стены.
Вы экономите на отоплении.
· СТОИМОСТЬ ДОМА.
За счет уникальной технологии, недорогих материалов и быстрой сборки вы серьезно
экономите на строительстве. Такой дом в 2-3 раза дешевле других аналогов.
ИНСТРУМЕНТЫ ДЛЯ СТРОИТЕЛЬСТВА
• Пила дисковая
• Шуроповерт с двумя аккумуляторами
• Лобзик электрический
• Ручная ножовка
• Уровень обычный или лазерный
• Гвоздодер
• Металлический угольник
• Рулетка 3 м, 7 м
• Молоток на 1 кг, на 500 гр
• 2 топора, маленький легкий и средний
• Клещи большие.
• Серьезно задумались о постройке садового домика, гостевого домика, бани или отдельной кухни. Излазили весь интернет в поисках простого, но наглядного проекта, понятного не только специалисту, и в котором содержатся конкретные подробные чертежи деталей и узлов с размерами для их изготовления и сборки, а не общие картинки с видами фасадов и планировок.
• Уже сделали свой выбор в пользу деревянного каркасного дома.
• Рассматриваете возможность отсроченного финансирования, за счет строительства этапами. Можно возвести фундамент, а через некоторое время каркас с обшивкой OSB и кровлей, а утепление и отделку отложить.
• Не обладаете достаточными средствами для покупки готового большого дома, но имеете сильное желание возвести его своими руками, и готовы начать с малого, а затем постепенно пристраивать.
• Хотите заняться или уже занимаетесь бизнесом по строительству недорогих малоэтажных домов по каркасной технологии.
• Планируете организовать или расширить загородную базу отдыха, кемпинг, гостиничный комплекс.
ОПИСАНИЕ КОНСТРУКЦИИ ДОМИКА
Одноэтажный утепленный каркасный дом 6х4 м. Кухня 6 м2. Комната 12 м2.
Каркасный дом 6 на 9 своими руками. Проект каркасного дома 6х9 СВОИМИ РУКАМИ. Часть 2 (с подробным текстом и картинками)
В этот раз я решил исправить ошибки и описывал все действия в тексте и делал картинки из Архикада, чтобы все, кто не может смотреть
Продолжаем наши уроки проектирования! В прошлый раз мы рассчитали и спроектировали в Архикаде сваи и их обвязку (ростверк). Сегодня переходим к следующему этапу — лагам пола, бриджингами и черному полу.
Итак, напоминаю, что мы делаем проект одноэтажного каркасного дома 6*9 с небольшим крыльцом.
Обвязка свай сделана из трех досок 200*50. Балки пола мы будем делать из них же, так как они достаточны для наших нагрузок и при этом удобно покупать больше пиломатериала одного сечения.
В прошлый раз мы остановились на том, что у нас есть 3 ряда свай и соответственно ростверка. А значит очевидно что балки пола мы будем пускать поперек их, т. к. у нас между ними пролет менее 3 метров, а вдоль — 9 метров, чем больше пролет, тем сложнее его перекрыть и нужны доски большего сечения, так что пускать вдоль балки нет никакого смысла.
На получившийся пролет в 2,7 метра согласно калькулятору нам хватает доски 169*50, мы берем 200*50 с запасом.
Делаем шаг балок (лаг) пола - 625 мм. Это позволяет не резать OSB размером 2500*1250.
С другой стороны, придется резать утеплитель, так как редкий утеплитель влезет в 575 мм (625 минус толщина балки 50 мм), поэтому я рекомендую использовать строганные балки 45 мм или использовать эковату.
Так или иначе, я выбрал шаг 625 (кроме первой лаги, у нее шаг 600 мм, чтобы все было красиво и ровно опять же с OSB)
В итоге у нас получается, вот такая картина с лагами.
Давайте перейдем к перемычкам пола. По правилам они должны идти с шагом не реже 2,5 метров, но на практике я всегда делаю их с шагом 1250 мм (чтобы стыки ОСБ не висели в воздухе). Не забываем, что первый бриджинги (начинаем снизу) должен быть с шагом 1225 мм (для красивой раскладки)
Итого получается:
Так, теперь не забываем, что бриджинги нужны нам еще и под стены которые идут вдоль лаг (обычно фронтонные), иначе они будут упираться только на 50 мм доски, что не очень хорошо. Это один из методов для поддержки этих стен я использую именно его.
Теперь давайте посмотрим на планировку, мы видим 5 внутренних стены. Три идут поперек лаг, с ними проблем нет, они хорошо стоит на лагах. А вот с двумя, которые вдоль — нужно поработать, т. к. они лежат просто на фанере, при том, что они несущие.
Добавляем бриджинги с шагом 625 и под них!
Включаем слой ростверка и что мы видим! Несколько центральных бриджей очень близко к центральному ряду. Используем халявную силу ростверка и сделаем пол еще крепчке, чуток сдвинем бриджи:
Наши итоговый красивые балки:
Ну все, можем приступать к плитам черного пола, в данном случае это ОСБ-3 размером 2500*1250мм и толщиной 22 мм.
Что важно знать, первый ряд кладем плиту стандартно, а вот со второго уже нужен шахматный порядок, начинаем с половинки плиты. И так дальше делаем через ряд. В итоге получается вот такой пол:
Заметьте, все плиты и в длину и в ширину у нас лежат или на лагах или на бриджах и никогда не висят в воздухе, это важно.