Как строят каркасные дома. Укладка фундамента под каркасный дом
- Как строят каркасные дома. Укладка фундамента под каркасный дом
- Каркасный дом 4 на 6 своими руками. Дачный домик 6х4 своими руками по цене бытовки. Комплект чертежей для самостоятельной сборки
- Основание каркасного дома. Нижняя обвязка и пол
- Построить каркасный дом своими руками чертежи. Необходимость в грамотных чертежах каркасных домов
- Как строят каркасные дома в россии. Из истории каркасного строительства
- Каркасный дом недостатки. Недостатки
Как строят каркасные дома. Укладка фундамента под каркасный дом
Каркасный дом может быть самостоятельно возведен вами на плитном, свайном, столбчатом или ленточном фундаменте. Каждый имеет свои достоинства и недостатки, подходит для определенного типа грунта. Как определить, какой из них выбрать?
Анализ грунта на участке под строительство
Фундамент, подобранный в соответствии с особенностями грунта, – не просто надежная основа всего строения. Это еще и рациональное использование ваших денежных средств. Не всегда каркасному дому нужен дорогостоящий плитный или ленточный фундамент глубокого заложения.

Сделать правильный выбор поможет анализ земли , взятой со строительного участка. Что он поможет определить:
- Глубину залегания грунтовых вод. Если они протекают близко к поверхности почвы, придется отказаться от устройства погреба.
- Качественный состав земли (мелкий песок, гравий, глина и др.). Наилучший вариант для строительства –гравийный грунт, наихудший – мелкопесчаный.
- Глубину промерзания грунта. Чем она больше, тем более трудоемкими и дорогостоящими будут работы по закладке фундамента.
Для исследования можно самому выкопать яму глубиной не менее полутора метров, взять пробы земли и отнести их в лабораторию. Менее трудоемкий вариант – приглашение инженеров-геологов непосредственно на строительную площадку.
Особенности ленточного фундамента
Ленточный фундамент представляет собой замкнутый контур из армированного бетона. Его прокладывают под несущими стенами дома по всей их длине.

Несмотря на трудоемкость и дороговизну укладки, ленточное основание является оптимальным вариантом для каркасного дома. Оно имеет большую несущую поверхность, позволяет обустроить подвал и выполнить строительные работы даже на пучинистом грунте.
Последовательность возведения ленточного фундамента:
- Рытье траншеи и укладка песчаной подушки на ее дно.
- Гидроизоляция стенок траншеи.
- Монтаж деревянной опалубки.
- Сборка и установка армирующей сетки.
- Заливка опалубки бетоном и его уплотнение.

Высота ленточного фундамента должна быть минимум в 2 раза больше его ширины. При таких условиях в нем не возникает поперечная деформация.
Свайно-винтовой фундамент – простое и доступное основание для дома
Свайно-винтовой фундамент позволяет без опыта строительства возводить жилой дом на слабых и участках с неровным рельефом. Он становится надежной опорой для стен, так как сваи прочно цепляются за твердые породы ниже уровня промерзания грунта.

Винтовые сваи – металлические стержни, на заостренные концы которых приварены лопасти. Такая конструкция позволяет просто вкрутить их в землю, как сверло. Это можно сделать с помощью привлеченной специальной техники или вручную. Но в последнем случае понадобится не менее трех человек.
Укладка столбчатого фундамента
Столбчатое основание возводят только на стабильных грунтах с высокой несущей способностью.
Работы выполняют пошагово:
- По выбранному периметру в земле бурят круглые скважины.
- В них устанавливают связанный из арматуры металлический каркас.
- Опускают в скважины опалубку из обсадных труб.
- Обрезают надземные элементы по одному уровню.
- Заливают скважины бетоном и уплотняют его.

Высота оголовков (надземная часть столбов) не должна быть меньше 400 мм. В противном случае древесная обшивка пола будет гнить от постоянного воздействия влаги.
Плитный фундамент – когда немалые вложения оправдывают себя
Плитный фундамент по праву считается самым дорогостоящим. Это связано с большой несущей площадью, которая является главным достоинством монолитного основания.
Построенный на такой плите дом защищен от перекосов, ведь даже при воздействии сил морозного пучения он двигается вместе с фундаментом.

Технология укладки основания предполагает
- Снятие верхнего слоя почвы (плодородного).
- Укладку геоткани, засыпку песчано-гравийной подушки и ее трамбовку.
Высота плитного основания обычно составляет 100 мм .
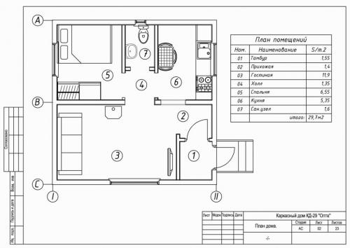
Каркасный дом 4 на 6 своими руками. Дачный домик 6х4 своими руками по цене бытовки. Комплект чертежей для самостоятельной сборки
Проект содержит понятные даже простому обывателю чертежи для самостоятельной постройки одноэтажного каркасного деревянного домика размерами 6х4 с просторным чердачным помещением. Идеально подойдет людям, имеющим скромный бюджет, но не желающим ютиться в бытовке на своем дачном участке.
Дачный домик 6х4 своими руками по цене бытовки
Комплект чертежей каркасного домика 6х4 для самостоятельной сборки
КАКИЕ ВЫГОДНЫЕ ОТЛИЧИЯ ОТ ДРУГИХ ПРОЕКТОВ?
1. Проект содержит понятные чертежи с размерами всех элементов и узлов каркаса
(стоек стен, оконных и дверных проемов, балок перекрытий, стропильной системы).
2. Все необходимые материалы и их точные размеры указаны непосредственно на
странице где нарисован тот объект, который вы будете изготавливать или собирать и
вам не придётся тратить уйму времени чтобы найти и рассчитать, что вам нужно, всё
указано на схеме, просто и удобно.
3. Проект разработан под размеры типовых материалов из строительных магазинов, с
целью уменьшения отходов и соответственно финансовых расходов.
4. Габариты и форма дома выбраны для максимальной экономии строй материалов.
ПОЧЕМУ ИМЕННО КАРКАСНЫЙ ДОМ?
· ПРОСТАЯ КОНСТРУКЦИЯ.
Каждый желающий, имеющий свободное время, технические навыки, некоторые
инструменты и одного-двух помощников, может легко построить этот каркасный дом.
· ВСЕПОГОДНОСТЬ.
Строить каркасный дом можно в любое время года.
· ОТСУТСТВИЕ УСАДКИ.
Дома, построенные по каркасной технологии, не имеют усадки и пригодны к отделке и
проживанию сразу после окончания строительства.
· ЭКОНОМИЯ НА ФУНДАМЕНТЕ.
Вам не нужно возводить и заливать фундамент. Просто ставите брусья нижней обвязки на столбы из строительных блоков и дом готов к установке.
· СРОК СТРОИТЕЛЬСТВА.
Изготовление деталей, узлов и сборка каркаса от 14 дней.
· ЭНЕРГОСБЕРЕЖЕНИЕ.
Стена каркасного дома держит тепло так же хорошо, как почти 2 метра кирпичной стены.
Вы экономите на отоплении.
· СТОИМОСТЬ ДОМА.
За счет уникальной технологии, недорогих материалов и быстрой сборки вы серьезно
экономите на строительстве. Такой дом в 2-3 раза дешевле других аналогов.
ИНСТРУМЕНТЫ ДЛЯ СТРОИТЕЛЬСТВА
• Пила дисковая
• Шуроповерт с двумя аккумуляторами
• Лобзик электрический
• Ручная ножовка
• Уровень обычный или лазерный
• Гвоздодер
• Металлический угольник
• Рулетка 3 м, 7 м
• Молоток на 1 кг, на 500 гр
• 2 топора, маленький легкий и средний
• Клещи большие.
• Серьезно задумались о постройке садового домика, гостевого домика, бани или отдельной кухни. Излазили весь интернет в поисках простого, но наглядного проекта, понятного не только специалисту, и в котором содержатся конкретные подробные чертежи деталей и узлов с размерами для их изготовления и сборки, а не общие картинки с видами фасадов и планировок.
• Уже сделали свой выбор в пользу деревянного каркасного дома.
• Рассматриваете возможность отсроченного финансирования, за счет строительства этапами. Можно возвести фундамент, а через некоторое время каркас с обшивкой OSB и кровлей, а утепление и отделку отложить.
• Не обладаете достаточными средствами для покупки готового большого дома, но имеете сильное желание возвести его своими руками, и готовы начать с малого, а затем постепенно пристраивать.
• Хотите заняться или уже занимаетесь бизнесом по строительству недорогих малоэтажных домов по каркасной технологии.
• Планируете организовать или расширить загородную базу отдыха, кемпинг, гостиничный комплекс.
ОПИСАНИЕ КОНСТРУКЦИИ ДОМИКА
Одноэтажный утепленный каркасный дом 6х4 м. Кухня 6 м2. Комната 12 м2.
Основание каркасного дома. Нижняя обвязка и пол
Для защиты обвязки от воздействия влаги снизу, на фундамент укладывается рубероид или гидроизол. Можно использовать битумную мастику, но она будет дороже рулонного материала. Иногда материалы комбинируют: один раз фундамент покрывается мастикой, а сверху укладывается гидроизоляция.
Сборка каркасного дома начинается с обвязки. Для нее используются доски сечением 15х5 см или брус 15х15 см. Доски укладываются по периметру и выравниваются по внешнему краю фундамента. В нужных местах просверливаются отверстия под шпильки. Второй слой досок укладывается таким образом, чтобы перекрыть нижние стыки досок. Это придает конструкции дополнительную прочность. Проще и быстрее монтаж бруса, но цена его выше, чем досок. К тому же общая несущая способность двойной доски будет выше, чем у одного бруса.
На обвязку устанавливается доска 20х5 см на ребро. Она также выравнивается по внешнему краю фундамента и крепится саморезами. Лаги монтируются из досок такого же сечения. Крепятся саморезами или специальными уголками. Шаг установки – 30–60 см.
Важно! Чем больше длина пролёта лаги, тем меньше шаг. Это обеспечит равномерное распределение нагрузки на перекрытие, минимизирует прогиб лаг и исключит эффект «батутности».
Следующий этап – утепление. Здесь важно подобрать качественный утеплитель.
Важно! Нежелательно использовать пенопласт. Он относится к горючим материалам, соответственно представляет собой повышенную опасность для деревянных конструкций. Чаще всего для теплоизоляции пола применяют плиты каменной ваты.
Для устройства чернового пола используется обрезная доска 10х2,5 см. Поверх нее укладывается фанера толщиной 0,5–0,6 см. Можно укладывать листы фанеры сразу без настила из досок. В этом случае толщина листов должна составлять минимум 1,5 см. Такой вариант быстрее, но в некоторых случаях дороже. Подобно кирпичной кладке, фанера укладывается в разбежку. Промежуток в несколько сантиметров между листами компенсирует расширение при повышении влажности воздуха.
Крепкий каркас – залог крепкого дома
Возможны две схемы строительства каркасного дома:
- сооружение стены на полу и последующая ее установка в вертикальном положении;
- сборка всех элементов сразу на месте.
Первый способ обычно используется на заводах по производству модулей каркасно-щитовых домов. В некоторых случаях сборка на полу легче, чем сразу на месте, но получившаяся конструкция будет иметь немалый вес, поэтому для ее поднятия и установки понадобиться несколько человек.
Собирать элементы сразу вертикально может даже один человек. Такой способ медленнее, но поможет избежать неточности в размерах – детали собираются «по-месту».
Построить каркасный дом своими руками чертежи. Необходимость в грамотных чертежах каркасных домов
Главный козырь каркасного строительства домов – это его доступность, оптимальная цена, за которую можно получить собственный жилой каркасник для круглогодичного проживания. Это окупает и перевешивает возможные недостатки, которые существуют у каркасной конструкции.
Сравнительно низкая прочность – в сравнении с капитальными стенами, необходимость обустройства и постоянной работы вытяжной вентиляции в каркасном доме , относительно небольшая долговечность – опять же, в сравнении с строениями из кирпича.
А поскольку каркасное строительство сочетает ценовую и технологическую доступность, его часто выбирают для осуществления своими руками. Причём работы ведутся при отсутствии больших профессиональных навыков, опыта какого-либо строительства.
На заметку
В таком случае, главным помощником, консультантом и хорошим подспорьем в решении строительных вопросов будет проект будущего дома. Он будет содержать перечень материалов, их размеры, а также изображения способов крепления, вида каркасных стен в сборе.
Желательно, чтобы проект каркасного строительства был рассчитан и прорисован профессионалом. Есть важные моменты, которые необходимо учесть, чтобы дом получился прочным и прослужил вам не один десяток лет. Поэтому экономить и строить без него может оказаться себе дороже. На чём тогда можно оптимизировать собственные расходы?

Проект первого этажа.
Сэкономить на проекте каркасного дома можно приобретением готового типового проекта. Такой документ обходится в несколько раз дешевле индивидуального. При этом содержит все необходимые для строителя сведения.
Источник: https://domastroevo.ru/stati/karkasnyy-dom-svoimi-rukami-poshagovaya-instrukciya
Как строят каркасные дома в россии. Из истории каркасного строительства
Каркасная технология строительства стала активно использоваться за много столетий до нашего времени. В странах Азии сохранились памятники архитектуры возведенные по данной технологии еще в 3 столетии нашей эры. Жители европейских стран освоили и стали повсеместно использовать каркасную технологию (фахверк) ещё в 12 веке нашей эры и до настоящего времени повсеместно используют.
С технологичным и промышленным развитием народов, усовершенствовались материалы и технологии строительства. Ранее прочный каркас дома заполняли теплоэффективными смесями из глины и соломы, использовали навоз, в настоящее время используются более удобные и развитые способы утепления. Для монтажа несущего каркаса использовали вечно прочные породы деревьев, таких как лиственница и дуб. Такие конструктивы, сохраняли свою прочность более ста лет и замене подвергалось, только внутреннее содержимое стен и их облицовка.
Во времена освоения американского континента, европейскими колонистами каркасная технология была привезена на материк, где окончательно прижилась и существенно помогла в обустройстве новых поселений и городов. В Канаде, каркасные дома настолько прижились, что многим из нас подобная технология известна как канадская. Однако корни каркасного строительства лежат далеко за пределами Канады и возникло оно за долго до образования Канады.

Широко, повсеместно и до настоящего времени каркасное строительство применяется в холодных Скандинавских странах: Финляндия и Норвегия. По ряду причин, одними из которых является энергоэффективность и экономичность жители Северных регионов отдают предпочтение именно смешанному каркасному варианту. Среди жителей России каркасное строительство еще называют финской технологией – финские домики.
По сути, технологию каркасного строительства нельзя отнести к той или иной стране. В каждом регионе она всегда использовалась, в различных вариациях, но со своими дополнениями и особенностями.

Каркасный дом недостатки. Недостатки
Среди главных минусов строений для постоянного проживания , которые возводят по каркасной технологии, отмечают:
- Пожароопасность . Из-за того, что дом выполнен на большую часть из горючих материалов, есть риск возникновения пожара, поэтому многие боятся его возводить.
Но как показывает практика, чаще всего он появляется в результате неисправностей электропроводки, забытых во включенном состоянии электроприборов.
В таких ситуациях воспламеняются не стены, а отделочные материалы, предметы интерьера и личные вещи проживающих, от которых пламя передается на несущие конструкции.
Поэтому пожароопасными являются только те строения, при возведении которых не были соблюдены правила пожарной безопасности (в частности, изоляция электропроводки от горючих материалов, пропитка и облицовка негорючими материалами).
- Низкий уровень шумоизоляции . Он может появиться в случае нарушения технологии строительства, монтажа стеновых панелей.
Если внимательно следовать технологии, то удастся добиться уровня шумоизоляции, как в домах из бруса или кирпича. Если речь идет о летнем доме, расположенном в сельской местности, вдали от шумов цивилизации, то этот недостаток не является существенным.
- Непродолжительный срок службы . Этот недостаток связывают с подверженностью деревянных конструкций гниению, поражению болезнетворными микроорганизмами, плесенью.
Такой недостаток удается устранить благодаря вентиляции, обработки деревянных материалов специальными составами. В среднем, срок службы составляет 50 лет (для сравнения кирпичные и бетонные строения способны простоять в 2 раза дольше).
- Относительная хрупкость стен . Они не могут похвастаться такой же прочностью, как бетонные или кирпичные. Однако в нашей стране отсутствуют суровые атмосферных аномалий, которые бы каркасный дом не смог выдержать.