Монтажный зазор при установке окон. Правильные замеры перед установкой окон
- Монтажный зазор при установке окон. Правильные замеры перед установкой окон
 - Заполнение пустот между окном и стеной. Как сделать утепление откосов пластиковых окон снаружи?
 - Установка пластиковых окон. Как правильно установить пластиковое окно
 - Узел установки окна. Узлы примыкания оконных блоков к стеновым проемам. Часть 2
 - Технология установки пластиковых окон. Почему так часто возникают проблемы с пластиковыми окнами?
 - Зазор между окном и откосом. Технические требования к монтажному шву
 
Монтажный зазор при установке окон. Правильные замеры перед установкой окон
Даже в домах, построенных по типовому проекту, нет двух одинаковых окон. Для замера проемов можно вызвать специалиста: стоимость замеров будет колебаться в пределах 400-600 рублей – фактически, вы платите только за выезд мастера. Вызвать замерщика имеет смысл, если вы будете заказывать изготовление окон. При покупке готовых – а фирмы, которые устанавливают пластиковые окна, часто предлагают готовые оконные конструкции, под оконные проемы типовых домов – можно замерить проемы самостоятельно.
Замеряем:
- Ширину оконного проема в трех местах – в верхней и нижней частях проема и посередине.
 - Высоту оконного проема – справа, слева и в середине.
 - Если есть четверть – замеряем параметры проема от правой до левой боковой четверти и от верхней четверти до низа проема.
 
Снимаем размеры пластикового окна
Из полученных размеров вычитаем, если окно без четверти:
- 5 см по вертикали.
 - 3 см по горизонтали.
 
Если окно с четвертью, то вычитаем из расстояния между верхней четвертью и низом 3 см.
На этом замеры ещё не закончились, поскольку нам нужно прикинуть, какова будет длина и ширина подоконника и отлива. Меряем:
- Длину подоконника, прибавляем к нему по 5-10 см.
 - Ширину подоконника, прибавляем к ней 4-5 см.
 - Длину отлива – по возможности точно.
 - Ширину отлива, прибавляем к ней 5 см.
 
Замеры закончены.
Подводим итоги замеров
Вы можете идти в фирму, которая занимается производством и продажей пластиковых окон, если у вас есть следующие цифры:
- Высота окна.
 - Ширина окна.
 - Длина и ширина отлива.
 - Длина и ширина подоконника.
 
По этим замерам можно подобрать окно из готовых решений или сделать заказ на изготовление.
Совет: уточните, на что производитель дает гарантию. Если гарантийные обязательства распространяются на фурнитуру, целостность (герметичность) стеклопакета и профилей – все хорошо. Если только на фурнитуру – тоже неплохо. Если производитель отказывается давать гарантию на фурнитуру или стеклопакеты, мотивируя это тем, что «вы же сами ставите, мы ничего гарантировать не можем», смело идите в другую фирму.
Убедились, что с гарантией все в порядке? Уточните комплектность поставки. Кроме окна заданных размеров и стеклопакета в сборе вам должны доставить:
- Подоконник.
 - Проставочный профиль.
 - Заглушки для подоконника.
 - Отлив.
 - Анкерные пластины, с помощью которых будет закреплено в проеме окно.
 

Элементы пластикового окна
Заказывая окно, уточните:
- Ширину профиля.
 - Количество камер в стеклопакете.
 - Ширину и длину поставляемых заглушек, отлива и подоконного и проставочного профиля.
 
Совет: поинтересуйтесь толщиной стеклопакета и тем, каково расстояние между стеклами в двух- и трехкамерном пакете. Если оно не одинаковое – вам продают хороший стеклопакет, сделанный в соответствии с рекомендациями ГОСТ.
Мы намеренно не касаемся вопросов выбора окна по типу фурнитуры, стеклопакета и особенностей конструкции (глухие, одно- и двухстворчатые, с фрамугой или форточкой и т.д.) Это тема для отдельного объемного материала. Пока же, подробно, с примерами об этом могут рассказать специалисты фирм, которые изготавливают и устанавливают пластиковые окна.
Заполнение пустот между окном и стеной. Как сделать утепление откосов пластиковых окон снаружи?
Наружное утеплениеявляется важной процедурой для сохранения тепла внутри посещения.
С его помощью можно закрыть стыки в оконных проемах или улучшить внешний вид дома.
Рассмотрим, зачем и когда нужно наружное утепление ПВХ окон, какими способами это можно сделать, а также разберем материалы и инструменты, которые могут пригодиться в процессе работ.
может потребоваться, когда :
- Во время установки рамы между ней и проемом образовались неприкрытые щели или не закрытая монтажная пена. Если ее не изолировать, то она начнет напитывать влагу или рассыхаться.
 - Необходимо защитить оконную коробку от внешнего воздействия на стыках с проемом, чтобы в них не попадала вода, а также не образовывались места продува или мосты холода. Также перепады температур в местах крепления могут привести к их разрушению и просадке рамы.
 - После усадки окна появились пустые места, через которые будет проходить холод.
 - Нужно сместить точку росы, чтобы на окне не образовывался конденсат, из-за которого появляется сырость, плесень или грибок.
 - Требуется улучшить внешний вид оконного проема снаружи.
 
Делать утепление рекомендуется всегда, так как это сильно уменьшает теплопотерю, но в некоторых случаях данную процедуру провести затруднительно или она не нужна :
- В деревянных домах утепление откосов чаще всего проводится с помощью деревянных панелей, которыми закрываются швы, так как использование утеплителя может негативно сказаться на оконном проеме.
 - Если сделана четверть из кирпича (специальный выступ, который закрывает верх и боковые стороны проема от влаги), то утепление откоса может быть затруднительно или просто не нужно.
 - Если стыки заштукатурены, а потерь тепла нет, то обработка откосов снаружи может привести к обратному эффекту, то есть в помещении будет слишком жарко, а также сместиться точка росы, из-за которой будет появляться плесень.
 
Основные методы
Способы наружного утепления чаще всего отличаются в зависимости от выбранного материала, но можно выделить несколько основных :
-  Обычное оштукатуривание . Данный способ является простым и экономичным, а также самым распространенным.
Этот метод заключается в том, чтобы просто замазать слоем штукатурки все места соединения и примыкающие к ним части оконного проема.
При использовании специальной «теплой» смеси, может снизить теплопотерю.
Недостатком можно считать то, что из-за отсутствия дополнительных изолирующих материалов энергоэффективность повышается незначительно, а в некоторых местах могут образовываться мосты холода.
 -  Комбинирование штукатурки и утеплителя . Такой способ подразумевает утепление откосов и прилегающей к ним стены полимерными материалами, которые крепятся на теплоизолирующий клей с саморезами. Поверх утеплителя промазывается слой клея, а после его высыхания проводиться дополнительная обработка штукатуркой.
Недостатком такого метода является то, что окно нужно защищать от клея, а также в высотных постройках придется нанимать специальную бригаду, так как такое утепление трудоемкое. Также существенно повышаются затраты по сравнению с простой обработкой штукатуркой.
 -  Комбинирование утеплителя и сэндвич-панелей . При таком методе утепления используются специальные пластины, которые состоят из 2 ПВХ слоев, между которыми плотно посажен полимерный утеплитель.
Монтаж таких панелей осуществляется на саморезы, что ускоряет работу, по сравнению с предыдущим методом. Между сэндвич-панелью и стеной при таком методе укладывается дополнительный слой утеплителя, например, минеральная вата.
Недостатком является то, что при таком способе часть стены, которая прилегает к проему не утепляется, из-за чего уменьшается теплоизолирующий эффект, по сравнению с предыдущим способом. Стоимость такого утепления выше, чем у штукатурки, но сэндвич-панели имеют привлекательный внешний вид, а места крепления легко спрятать за специальными накладками.
 
Установка пластиковых окон. Как правильно установить пластиковое окно
На сегодняшний день много фирм предлагают свои услуги по установке пластиковых окон. Но не все фирмы устанавливают окна качественно. Как правило, их монтаж происходит по ускоренному методу с несоблюдением норм, которые прописаны в ГОСТ. Если таким горе-монтажникам задать вопрос о монтаже пластиковых окон по ГОСТ, то, в большинстве случаев, они будут рассказывать, что такой монтаж будет стоить дороже. Но стоит задуматься нужен ли вам монтаж “тяп-ляп” на скорую руку или лучше установить окна в соответствии с ГОСТ. В чем их разница?
При простом монтаже окно просто устанавливается в проём по уровню и зазоры между проемом и окном заполняются монтажной пеной. На этом этапе как правило монтажники стараются сэкономить пену и в результате получается совсем плохо. Со временем пена под воздействием влаги из воздуха и солнечного света начинает разрушаться и крошиться. В результате возникают щели в пене и из окна начинает дуть холодным воздухом. В общем, получается, что окно вроде бы есть, а толку от него нет, так как оно не выполняет своей функции.
Чтобы такого не происходило, нужно правильно производить монтаж, в соответствии с рекомендацией государственного стандарта, тогда окно на долгие годы будет защищать ваш дом от холода и жары.
Любая замена окон начинается с определения размеров оконного блока. Для этого этапа лучше вызвать замерщика, у которого есть нужный опыт в этом вопросе. В основном, услуги замерщика у фирм-производителей окон бесплатные. Но если вы решили сами произвести замеры, то нужно знать, что существует два типа оконных проемов. И оконный блок для них замеряется по-разному. Поэтому перед замерами нужно удалить штукатурку с оконного проёма и определить какой проём у вас.
Демонтаж старой штукатурки также необходим для повышения точности замеров.
– это окно с четвертью. Четверть — это специальный выступ на оконном проеме, к которому прижимается оконная рама при монтаже. Этот выступ находиться ближе к улице, а оконная рама изнутри помещения прижимается к нему.
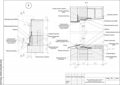
Узел установки окна. Узлы примыкания оконных блоков к стеновым проемам. Часть 2
Узлы примыкания оконных блоков к проемам
в трехслойных стенах
Сама система трехслойной стены с облицовочным слоем из кирпича и эффективным утеплителем вызывает много споров и вопросов, и все же остается одной из самых популярных в решении фасадов жилых и общественных зданий.
Узел примыкания оконных блоков является одной из «болевых точек» такого решения наружных стен. Оптимальное с точки зрения теплотехники размещение оконного блока в толще утеплителя не является удобным и оптимальным с точки зрения удобства производства работ.
Часто различные источники предлагают выполнять этот узел с антисептированной доской, закрывающей эффективный утеплитель в проемах. Установка доски – процесс неудобный для монтажников, кроме того есть вопрос по живучести доски в таком узле («не сгниет ли доска?»). С другой стороны, контакт пенного утеплителя монтажного шва и минераловатного утеплителя стены тоже не является надежным решением: в трехслойной стене допустимо применение теплоизоляции невысокой плотности, и чаще всего именно такой утеплитель и используется; при постоянных подвижках монтажного шва (температурное расширение, ветровое давление и пр.) монтажная пена со временем растреплет нежесткую плиту утеплителя в месте примыкания, образуя пустоту по контуру оконного блока; такая пустота станет «мостиком холода».
Однозначных требований по необходимости установки доски, закрывающей утеплитель стены в проеме, нет. Это решение принимается при разработке конкретного узла для конкретного объекта.
Часто доска устанавливается только в верхнем узле примыкания оконного блока к стеновому проему. При строительстве многоэтажных жилых (и общественных) зданий с трехслойными наружными стенами леса используются нечасто, поэтому кладка ведется снаружи вовнутрь (от лицевой версты вовнутрь), в лицевую версту устанавливаются гибкие связи, на них через специальные фиксаторы, обеспечивающие зазор между лицевой верстой и утеплителем, навешивается утеплитель, в последнюю очередь возводится внутренняя верста. При таком способе монтажа утеплитель дополнительно не крепится к внутренней версте ни механически, ни на клею. Доска в верхнем узле примыкания не допускает провисания утеплителя. Практикуются и различные варианты замены доски в данном узле, например, на металлические скобы с шагом 300 мм.
При разработке узлов примыкания окон к проемам в трехслойных стенах с горючим утеплителем (например, экструдированный пенополистирол в стенах подвала) важно не забывать о противопожарном обрамлении проема негорючим утеплителем.
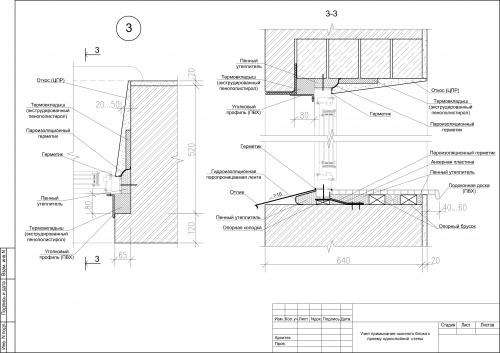
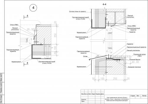
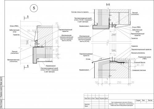
Узлы примыкания оконных блоков к проемам
в стенах с наружной теплоизоляцией
В стенах с наружной теплоизоляцией и отделочным покрытием из тонкослойной штукатурки при использовании в качестве утеплителя пенополистирольных плит предусматриваются противопожарные рассечки из негорючего утеплителя, в том числе по периметру проемов.
Для стен с навесным вентилируемым фасадом тоже существуют требования по противопожарному обрамлению проемов. Во всех системах НВФ есть свои решения противопожарных коробов для обрамления проемов. Основные типы рассмотрены, например, в СТО НОСТРОЙ 2.14.67-2012 (раздел 6.2). При разработке узлов примыкания оконных блоков к проемам стен с навесным вентилируемым фасадом в разделе АР допустимо не показывать противопожарные коробы, т.к. проект (раздел) НВФ будет разрабатываться отдельно, и противопожарные коробы будут приняты в зависимости от выбора системы. А в разделе АР должно быть принципиальное решение по месту установки оконного блока и решению монтажного шва.






Технология установки пластиковых окон. Почему так часто возникают проблемы с пластиковыми окнами?
Многие считают, что окна из ПВХ хороши настолько, насколько качественно они установлены. Во многом это действительно так. Дело в том, что изготовление пластиковых окон ведётся с применением автоматизированных систем, а расчёты и проектирование производится на компьютерах с применением специализированного программного обеспечения. Именно поэтому брак при сборке светопрозрачных конструкций из ПВХ — дело крайне редкое, а во главу угла становится пресловутый «человеческий фактор». Необходимо отметить, что помимо качественного монтажа, весьма немаловажно грамотно выбрать оконную систему, оптимально подходящую для определённых условий. И ещё, неправильно измеренное окно просто не может быть качественно установленным.
 Последствия некачественного монтажа 
Установщики оконных систем работают «от выработки», им выгодно смонтировать окна быстро, при этом ещё и сэкономить немного пены и анкеров для шабашки. Часто руководство не очень ответственной компании-сборщика ограничивает время на монтаж, перегружая бригады заказами и нормами. Поэтому редко соблюдаются правила подготовки проёма и устройства многослойного монтажного шва.
Из-за сезонности подобной работы компании-производителю сложно подготовить и удержать в штате квалифицированные кадры, отсюда имеет место некомпетентность замерщиков и установщиков.
И ещё одна причина частого брака при монтаже пластиковых окон заключается в слабом контроле государства над исполнением соответствующих нормативных актов. Это притом, что для монтажа оконных систем из ПВХ они существуют ещё с 2003 года, в отличие от многих других, абсолютно обделённых ГОСТами строительных технологий, которые активно применяются в нашей стране. К сожалению, законодательные акты в области технического регулирования имеют добровольный характер, если они не включены в список обязательных. Практика показывает, что хуже всего окна установлены там, где монтаж происходит практически без контроля — в новостройках. Поэтому единственным выходом для заказчиков на изготовление и установку пластиковых окон является оказание давления по отношению к замерщикам, бригадам установщиков и подрядным компаниям вцелом. Естественно, для этого владельцу следует знать технологию установки окон.
Зазор между окном и откосом. Технические требования к монтажному шву
Пункт 5.1.1 Стандарта №30971-2002 гласит, что монтажный шов, соединяющий оконный проем и раму, должен состоять минимум из трех слоев. У каждого слоя есть свое предназначение: наружный водонепроницаемый паропроницаемый слой (на рисунке обозначен цифрой 1), центральный теплоизоляционный слой (2), внутренний водонепроницаемый пароизоляционный слой (3).
Наружный слой шва подвержен большему влиянию окружающей среды. Он должен быть водонепроницаемым и в то же время паропроницаем. Гидроизоляция необходима для того чтобы защитить основной (теплозащитный) слой шва от попадания влаги, а паропроницаемость нужна для того чтобы молекулы воды, которые могли попасть в шов, не скапливались в нем, а уходили на улицу.
Помимо этого, материал, который используется для наружного шва, должен быть устойчив к перепадам температуры. Для обычных окон температурный диапазон эксплуатации - от -35°С до +70°С, для морозостойких - от ниже -36°С до +70°С. Наружный слой шва должен обладать высокой невосприимчивостью к солнечному свету (УФ-лучам).
В монтаже для наружного слоя монтажного шва используется диффузионная лента.
Внутренний слой монтажного шва проходит со стороны помещения. Его особенность - влаго и паронепроницаемость, если это не будет соблюдено, в теплозащитную часть шва будет проникать большое количество воды.
Идеальным решением для внутреннего слоя монтажного шва является специальная пароизоляционная пленка.
Центральный слой заполняет пустоты между оконной конструкцией и стенойи выполняет роль теплоизоляции. В качестве внутреннего слоя чаще всего выступает монтажная пена . Заполнение монтажной пеной должно быть без пустот и разрывов, в том числе и по углам окна.
В вышеупомянутом ГОСТе, пункт 5.3.5 указано, что влагопоглощение материала для центрального слоя не должно превышать 3% от собственной массы при полном погружении в воду на 24 часа.
Помимо трех слоев монтажного шва для большей защиты от внешних факторов рекомендуется защищать стену дополнительной гидро- и пароизоляционной лентой, каучуковой мастикой или строительным праймером.