Металлический сайдинг против винила: что выбрать для вашего дома
- Металлический сайдинг против винила: что выбрать для вашего дома
 - Связанные вопросы и ответы
 - В чем заключаются основные преимущества металлического сайдинга
 - Какие типы металлического сайдинга наиболее популярны на рынке
 - Какие факторы влияют на выбор между металлическим и виниловым сайдингом
 - Как металлический сайдинг отличается от винилового в плане эстетики
 - Как металлический сайдинг справляется с эрозией и износом
 - Какие типы домов наиболее подходят для установки металлического сайдинга
 
Металлический сайдинг против винила: что выбрать для вашего дома
Металлический сайдинг изготавливается из оцинкованной стали и имеет декоративное покрытие. Поэтому он крепко выдерживает любые негативные воздействия — мороз и жару, прямые удары и даже пожары. Единственный нюанс заключается в том, что при значительном физическом воздействии материал может погнуться.
Достоинства металлического сайдинга многочисленны:
- Прочен и способен служить до 30 лет и более;
 - Прост в монтаже, для работ достаточно 2-3 человек и минимального набора инструментов;
 - За счет оцинковки металла хорошо переносит влагу, внешний полимерный слой защищает цвет от выгорания;
 - При правильном монтаже сохраняет циркуляцию воздуха и не приводит к образованию конденсата;
 - Походит для любых погодных условий, не горит и не плавится, не теряет прочности при низких температурах;
 - Экологически чистый материал.
 
Металлический сайдинг широко используется для облицовки фасадов домов. Его цветовая гамма насчитывает несколько десятков оттенков, имитацию камня и бруса, корабельной доски и блок-хауса. Если вы не знаете, какой вариант сайдинга выбрать — металлический или виниловый, а эксплуатационные особенности этих материалов не имеют большого значения, предлагаем обратить внимание на металлосайдинг. Большое разнообразие его дизайнов позволит выбрать наиболее подходящий вариант.
Несмотря на все вышеперечисленные достоинства, металлический сайдинг имеет некоторые недостатки:
- Дороговизна. Он вдвое дороже винилового сайдинга, к тому же панели длиной в 4-6 метров требуют особых условий доставки, что также сказывается на их итоговой стоимости;
 - При всей своей прочности, металлический сайдинг плохо переносит повреждения острыми предметами. Если на ПВХ они незаметны за счет сплошной окраски, то на металле царапины не только видны, но и с течением времени приводят к коррозии;
 - Плохая звуко- и термоизоляция. Под такую отделку желательно прокладывать изолирующие материалы.
 
Выбирая металлический сайдинг, важно заранее закладывать в бюджет расходы на упаковку и поддоны для транспортировки материала, обустройство площадки для хранения, а также покупку или аренду оборудования, способного резать металл.
Связанные вопросы и ответы:
Вопрос 1: Что такое металлический сайдинг и виниловый сайдинг
Ответ: Металлический сайдинг - это тип кровельного покрытия, которое состоит из металлических листов, которые устанавливаются на крышу для защиты от непогоды. Виниловый сайдинг - это тип кровельного покрытия, которое состоит из пластиковых листов, которые устанавливаются на крышу для защиты от непогоды.
Вопрос 2: В чем основная разница между металлическим и виниловым сайдингом
Ответ: Основное отличие между металлическим и виниловым сайдингом заключается в материале, из которого они состоят. Металлический сайдинг состоит из металлических листов, в то время как виниловый сайдинг состоит из пластиковых листов. Также металлический сайдинг обычно более прочный и долговечный, чем виниловый сайдинг.
Вопрос 3: Какой сайдинг предпочтительнее для установки на крышу
Ответ: Выбор между металлическим и виниловым сайдингом зависит от многих факторов, таких как климат, стиль дома, бюджет и личные предпочтения. Металлический сайдинг обычно более прочный и долговечный, но также может быть дороже. Виниловый сайдинг обычно более недорогим, но менее прочным и долговечным.
Вопрос 4: Какой сайдинг лучше с точки зрения экологии
Ответ: Металлический сайдинг обычно более экологичный, чем виниловый сайдинг. Металлический сайдинг может быть изготовлен из переработанного металла и может быть переработан после использования. Виниловый сайдинг обычно не может быть переработан и может быть загрязнителем окружающей среды.
Вопрос 5: Какой сайдинг лучше с точки зрения энергоэффективности
Ответ: Металлический сайдинг обычно более энергоэффективен, чем виниловый сайдинг. Металлический сайдинг может отражать солнечные лучи, что помогает сохранять тепло в здании зимой и сохранять его прохладным летом. Виниловый сайдинг может поглощать солнечные лучи, что может приводить к повышению температуры в здании летом.
Вопрос 6: Какой сайдинг лучше с точки зрения стоимости
Ответ: Виниловый сайдинг обычно более недорогий, чем металлический сайдинг. Виниловый сайдинг может быть установлен быстрее и дешевле, чем металлический сайдинг. Однако, металлический сайдинг может быть более долговечным и экономически выгодным в долгосрочной перспективе.
Вопрос 7: Какой сайдинг лучше с точки зрения дизайна
Ответ: Металлический сайдинг обычно предлагает больше вариантов дизайна, чем виниловый сайдинг. Металлический сайдинг может быть изготовлен в различных цветах, текстуры и формах, что позволяет создать индивидуальный дизайн крыши. Виниловый сайдинг обычно доступен в ограниченном диапазоне цветов и текстур.
В чем заключаются основные преимущества металлического сайдинга

Металлический сайдинг — это популярный вариант облицовки для домов и зданий различного типа. Он обеспечивает стойкость к различным климатическим условиям, а также дает владельцам большую свободу в выборе дизайна. Однако, как и любой строительный материал, металлический сайдинг имеет свои преимущества и недостатки.
Преимущества металлического сайдинга
- Долговечность
 
Металлический сайдинг известен своей устойчивостью и долговечностью. Он обычно не подвержен гниению, термитам или другим насекомым, которые могут повредить деревянный сайдинг. Кроме того, металл отличается стойкостью к коррозии при правильном уходе.
- Малое обслуживание
 
В отличие от других материалов, таких как дерево, металлический сайдинг требует минимального обслуживания. Он не требует регулярной покраски или замены, что экономит время и деньги владельцев.
- Вариативность внешнего вида
 
Сайдинг из металла доступен в широком спектре цветов и стилей, что позволяет владельцам с легкостью подобрать нужный дизайн. Кроме того, металл можно покрасить практически в любой цвет, создавая еще больше вариантов для индивидуализации.
- Экологическая безопасность
 
Металлический сайдинг можно полностью перерабатывать, что делает его более экологически чистым, чем многие другие строительные материалы.
Недостатки металлического сайдинга
- Цена
 
Одним из основных недостатков металлического сайдинга является его стоимость. Металл обычно дороже других материалов для сайдинга таких, как винил или дерево, особенно при выборе высококачественных вариантов.
- Уровень шума
 
Металл может усиливать звуки, что может стать проблемой в шумных районах. Однако эту проблему можно решить, используя дополнительную изоляцию.
- Возможность вмятин и царапин
 
Металл может быть подвержен вмятинам и царапинам, особенно в условиях активного использования или при плохой погоде, например, во время града.
- Проблемы с изоляцией
 
Металл — это хороший проводник тепла, что может привести к потере тепла зимой и нагреванию здания летом. Но правильная установка и дополнительная изоляция могут помочь справиться с этой проблемой.
Итак, при выборе металлического сайдинга следует взвесить все преимущества и недостатки. Он может быть идеальным решением для тех, кто ищет долговечный, низкотехнологичный и эстетически приятный вариант облицовки. Однако потенциальные проблемы, такие как цена, уровень шума и потеря тепла, могут быть препятствием для некоторых владельцев зданий.
Какие типы металлического сайдинга наиболее популярны на рынке
Виниловый сайдинг. Фото: tn-siding.ru
Виниловый сайдинг представляет собой листы из поливинилхлорида формованные в виде бревна, корабельного бруса, блок-хауса или корабельной доски. Палитра цветов насчитывает десятки оттенков, возможна имитация фактуры натурального материала, чаще всего встречается имитация древесной фактуры — это можно считать данью истории. Это один из самых популярных видов сайдинга, так как является оптимальным по соотношению цены и качества.

Обшивка дома сайдингом ТЕХНОНИКОЛЬ Фото: tn-siding.ru

Обшивка дома сайдингом ТЕХНОНИКОЛЬ. Фото: tn-siding.ru

Обшивка дома сайдингом ТЕХНОНИКОЛЬ. Фото: tn-siding.ru

Обшивка дома сайдингом ТЕХНОНИКОЛЬ. Фото: tn-siding.ru

Обшивка дома сайдингом ТЕХНОНИКОЛЬ. Фото: tn-siding.ru

Обшивка дома сайдингом ТЕХНОНИКОЛЬ. Фото: tn-siding.ru
Особенности применения
Виниловый сайдинг подходит для разных климатических зон, применяется в диапазоне температур от -50°С до +50°С. Панели не подвергаются деформациям, гниению, ржавчине, они легкие, их можно смонтировать самому. Неблагоприятные погодные факторы больше не воздействуют непосредственно на стены, обшитые сайдингом. Панели выпускаются с перфорированной кромкой с одной стороны, служащей для закрепления на фасаде.
Замки-защелки по всей длине панели скрепляют между собой элементы облицовки. Способ соединения прост и удобен. Небольшой вес сайдинговых панелей облегчает их доставку к месту монтажа и сами работы. На стене панели закрепляются горизонтально снизу вверх в виде «корабельной доски» таким образом, чтобы дождевая вода не проникала на внутреннюю сторону облицовки. Это позволяет легко обслуживать фасад, обшитый сайдингом, его просто моют струей воды из шланга. материал относится к группе горючести Г2, то есть не поддерживает горения.
Какие факторы влияют на выбор между металлическим и виниловым сайдингом
Выбор фасада — дело ответственное и требующее определенных знаний о представленных на рынке материалах облицовки. Главная задача — максимально удовлетворить функциональные и эстетические пожелания и при этом учесть возможности кошелька. Сегодня всё большую популярность набирает сайдинг — практичный и надежный материал для обшивки зданий за относительно небольшие деньги. Наиболее популярные виды сайдинга — металлический и виниловый. В этой статье расскажем Вам о плюсах и минусах каждого.
Металлосайдинг является многослойным листовым материалом, основание которого — тонколистовой металл, прошедший с обеих сторон обработку цинком. Задняя поверхность грунтуется и окрашивается, а наружная сторона покрывается специальным полимерным слоем. Полимерные покрытия защищают материал от коррозии и нежелательных внешних воздействий. Более дешевый металлосайдинг покрывается полиэстром, а дорогостоящие виды металлосайдинга защищены слоем акрила и поливинилденфторида. Эта смесь имеет одновременно свойства тефлона и пластика.
Изготовители металлосайдинга на сегодняшний день производят несколько его видов: из алюминия, сочетания титана и цинка, меди и стали. Алюминиевый сайдинг обычно используется для внутренней оттелки помещения из-за своего изящества и легкости, но в прочности проигрывает стальному. Медный сайдинг очень красив, но его предпочитают гораздо реже ввиду очень высокой стоимости.
В настоящее время на рынке облицовочных покрытий высокий спрос именно на фасады из оцинкованной стали, благодаря которой металлосайдинг занял уверенную позицию одного из самых востребованных и надежных отделочных материалов для фасада.
Плюсы металлосайдинга
- Долгий срок эксплуатации. Гарантийная эксплуатация 25-50 лет;
 - Универсальность. Используется как для отделки внутренних помещений, так и для отделки заборов, фронтонов и фасадов: облицовка жилых и промышленных зданий;
 - Пожаробезопасность. В противоположность деревянному и виниловому сайдингу ПВХ, металлсайдинг — абсолютно негорючий материал! Поэтому металлический сайдинг используют при строительстве зданий с повышенными требованиями пожарной безопасности;
 - Устойчивость к температурным воздействиям. Выносит как жару, так и сильный холод;
 - Прочность и влагостойкость. Не реагирует на атмосферные осадки, не гниёт и не ржавеет, способен вынести механические воздействия;
 - Экологичность. Безопасен для окружающего мира;
 - Легкость монтажа. Система металлоконструкции доступна для понимания и не имеет сложностей при установке. Металлические панели можно заказать длинной до 6 м., что увеличивает скорость монтажа за счет уменьшения стыков;
 - Высокая стойкость к коррозии и ультрафиолету. Не реагирует на ультрафиолет, а, следовательно, не меняет цвет;
 - Простота в уходе. Не нуждается в окрашивании, достаточно лишь изредка проводить влажную помывку;
 - Многообразие выбора цветов и текстур. Существуют как однотонные покрытия, так и с имитацией под дерево, камень, кирпич (подробнее о покрытиях металлосайдинга здесь);
 - Большой выбор вариантов профилировки. Профиль металлосайдинга изготавливают горизонтальными прямыми полосами с перфорированием, теснением (например, под дерево), углублениями.
 
Как металлический сайдинг отличается от винилового в плане эстетики
Сначала определимся с экономикой, потому что если вы имеете ограниченный бюджет ваш выбор будет целиком обусловлен этим обстоятельством. Так вот металлический сайдинг в два, а чаще и более раз дороже винилового. Следовательно, при ограниченности средств выбор однозначен - винил. Сюда же накладывается и вопрос транспортировки и разгрузки. Металлический сайдинг значительно тяжелее винилового. Панели шестиметровой длины (есть и меньшей длины), кроме того, что потребуют при доставке длинномер, так еще и собранные на палетту имеют значительный вес и при разгрузке потребует нескольких человек. Тем более бросать, перегибать, укладывать на неровную поверхность их нельзя – материал тут же подвергнется неустранимой деформации и потеряет товарный вид.
Второй наиважнейший фактор для потребителя срок службы . Тут производители как винилового, так металлического сайдинга любят указывать очень большие сроки до 50 лет, например. К этому следует относиться критически. Срок службы сайдинга сильно зависит от производителя и строгого соблюдения технологического процесса при производстве. На мой взгляд к этому более чувствителен винил, а металл как материал совершенно не подвержен старению. Единственно защитный лицевой слой должен быть качественным.
Размеры. Максимальная длина панели для винилового сайдинга составляет 3660 мм для металлического 6000 мм. Понятно, что длинную деталь легко укоротить (и тот и другой материал легко режутся), а вот из короткой длинную уже не сделать. Так что тут преимущество металла.
Способность противостоять механическим деформациям. Тут победитель понятен - винил. После умеренном механическом воздействия полностью восстанавливает свою форму. В отличие от металла – тут все фатально, при любом ударе на нем остаются вмятины. Если ваши дети любят играть в футбол на лужайке перед домом, то металл не ваш вариант.
Вес. Об этом уже было
Внешний вид.
Как металлический сайдинг справляется с эрозией и износом
Металлический сайдинг – это один из наиболее популярных современных материалов для наружной отделки, изготовленный из стали или алюминия с защитным покрытием. Он представляет собой панели или доски, которые монтируются на каркас здания. Среди ключевых преимуществ металлического сайдинга можно выделить:
- Экономичность
 - Долговечность
 - Низкие требования к обслуживанию
 - Разнообразие стилей и цветовых решений
 
Одним из основных достоинств металлического сайдинга является его устойчивость к плесени, гнили и воздействию вредителей, таких как Termites. Более того, металл не требует регулярного покраски, как деревянные панели, что значительно снижает затраты на обслуживание.
Преимущества металлического сайдинга
1. **Долговечность**: Металлический сайдинг может прослужить от 20 до 50 лет.
2. **Легкий монтаж**: Установка металлического сайдинга обычно происходит быстрее благодаря стандартизированным размерам панелей.
3. **Экономичность**: Обычно, стоимость металлического сайдинга ниже, чем у многих фасадных панелей.
4. **Устойчивость к внешним воздействиям**: Металлический сайдинг не поддается гниению, плесени и повреждениям от насекомых.
Недостатки металлического сайдинга
Как и любой другой строительный материал, металлический сайдинг имеет свои недостатки:
1. **Теплопроводность**: Металл может «забрать» тепло, что требует дополнительной изоляции.
2. **Шумность**: При сильных дождях или граде металлический сайдинг может создавать громкий звук.
3. **Проблемы с ржавчиной**: Несмотря на защитное покрытие, со временем металлический сайдинг может начать ржаветь, если покрытие повреждено.
Какие типы домов наиболее подходят для установки металлического сайдинга
Сайдинг из металла выбирают те, кто хочет красивую и надежную отделку фасада. Он отличается прочностью и долговечностью, а самое главное —внешний вид останется привлекательным долгое время (до 50 лет) без дополнительного ухода и покраски. Очень важно при этом правильно выполнить монтаж, чтобы сохранить эксплуатационные свойства материала.
Лучший вариант —обратиться к профессиональным установщикам. Но если вы, по какой-либо причине, хотите осуществить обшивку самостоятельно, настоятельно рекомендуем соблюдать все правила и поэтапно следовать инструкции. В статье мы подробно рассмотрим технологию установки металлического сайдинга.

Подготовка материалов и инструмента.
Сайдинговые панели.
Обычно на полосах имеется защитная пленка, которую нужно снять до начала работ.
Доборные элементы.
Кроме самого сайдинга понадобятся планки различного назначения для отделки углов, проемов, крепления и соединения рядовых панелей. Можно изготовить доборные элементы на заказ по вашим размерам. Важный момент - на деталях должна быть завальцовка, она придаст жесткости и убережет от травм.
Крепеж.
Предпочтительнее использовать оцинкованные саморезы. Если необходимо закрепить панель насквозь —воспользуйтесь метизом с резиновым уплотнителем, который не пропустит влагу в места среза и предотвратит появление ржавых подтеков. Допустимо применение оцинкованных гвоздей. Шляпку обычно подбирают в тон покрытия.
Ремонтная краска.
Места спила и легкие царапины верхнего покрытия следует закрасить в процессе монтажа специальный краской, которую приобретают вместе с сайдингом. Краска защитит металл от коррозии. Наносят ее только на поврежденный участок, для удобства можно воспользоваться ватной палочкой.
Инструменты:
Для резки сайдинга.
Ножницы или электропила по металлу.
Запрещено применять болгарку и шлифмашинку, так как при этом повреждается защитный наружный слой и впоследствии металл ржавеет.
Для просверливания дополнительных отверстий крепления.
Перфоратор или пуансон (штампует отверстия с загибом материала).
Для крепления.
Молоток или шуруповерт, а также дрель со специальной насадкой для метизов с уплотнителем. Не рекомендуется крепить металлический сайдинг при помощи скоб.
Для измерений.
Рулетка с измерительной лентой из ткани, пластмассовый или деревянный угольник, отвес, строительный или любой другой уровень.
Для защиты.
Пластиковые очки, хлопковые перчатки.
Как крепить металлический сайдинг
Корабельная доска, Брус, Бревно —инструкция.
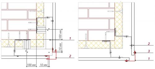
Крепление осуществляют на обрешетку из металлического профиля. Направляющие фиксируют с шагом 40-50 см. на предварительно подготовленные поверхности стен. Возможна укладка утеплителя между профилями, в этом случае теплоизоляцию закрывают пароветрозащитной мембраной.
Сайдинг монтируется в следующем порядке:
1. Стартовый профиль.
2. Угловые элементы сложной конструкции, Н-планка для сложного соединения.
3. Наличники.
4. Рядовые панели.
5. Простые углы и Н-планки.
6. Софит.
1. Фиксация стартовой рейки.
Для начала определяют нижнюю точку на обрешетке. От нее вверх на 30-40 мм., с учетом ширины планки, проводят линию по всему периметру здания, точно выверяя горизонтальность. По этой линии устанавливают стартовый профиль, крепеж выполняют на 30-40 см. друг от друга.
В случае, когда панели монтируют над цоколем, сначала ставят водосливную рейку, над ней стартовую.
Температурные зазоры не предусматривают, так как коэффициент расширения у металла незначительный - в 10 раз меньше, чем у пластика.

2. Крепление угловых и соединительных профилей.
Сложные элементы:
Элементы имеют усложненную форму и устанавливаются сразу после стартовой рейки. Саморезы фиксируют с шагом 20-30 см. Как правило, такие доборные планки используют редко, чаще применяют обычные. Их стоимость гораздо меньше, монтировать проще и есть возможность заменить деталь, так как установка выполняется после монтажа рядовых панелей.
Простые элементы:
Монтаж выполняется на лицевую сторону сайдинга. Крепят элементы насквозь с шагом 40-50см. нержавеющими метизами с уплотнителем. Чтобы впоследствии можно было легко выкрутить саморез, ставят вытяжные заклепки 6мм. Заклепки крепят в предварительно просверленные отверстия. Простые углы изготавливают на заказ нужных размеров, максимальная длина составляет 200см.
