Фахверк без стен: открытый план и открытый вид
- Фахверк без стен: открытый план и открытый вид
- Связанные вопросы и ответы
- Что такое фахверк
- Какие материалы используются для отделки фасада под фахверк
- Какие технологии используются для отделки фасада под фахверк
- Какие преимущества имеет отделка фасада под фахверк
- Какие недостатки имеет отделка фасада под фахверк
- Как выбрать материал для отделки фасада под фахверк
- Как выбрать технологию для отделки фасада под фахверк
Фахверк без стен: открытый план и открытый вид

Фахверк – хорошо узнаваемый стиль немецкой архитектуры, распространенный во многих странах Европы. Определение «Fachwerk» (нем.) означает «секции и сооружение», по сути, решетчатая конструкция. Фасады зданий действительно напоминают решетчатое обрамление. Как строят такие красивые дома, как они выглядят внутри и возводят ли их в России, расскажем в нашей статье.
Что это такое?
Фахверк – это способ строительства домов, придуманный в Германии много веков назад. Он представляет собой возведение каркаса из вертикальных и наклонных балок, которые удерживают крышу. Просветы между балками заполняют строительным материалом: кирпичом, деревом, глиной, камнем, щебнем. Затем покрывают штукатуркой, но деревянные балки не прячут под отделочным материалом – их оставляют снаружи дома.
Со временем древесина темнеет и эффектно контрастирует со светлой штукатуркой.
Дома смотрятся настолько красиво, что некоторые владельцы декорируют здания под фахверк независимо от того, каким способом они выстроены, то есть имитируют немецкий стиль, в действительности его не имея. Чтобы глубже понять технику решетчатых зданий, следует изучить все плюсы и минусы такого строительства.
Преимущества технологии фахверк заключаются в ниже перечисленном.
Фахверк – это уникальный стиль немецкой архитектуры, распространенный во многих странах Европы. Определение «Fachwerk» (нем.) означает «секции и сооружение», по сути, решетчатая конструкция. Фасады зданий действительно напоминают решетчатое обрамление.
Как строят такие красивые дома?
Фахверк – это способ строительства домов, придуманный в Германии много веков назад. Он представляет собой возведение каркаса из вертикальных и наклонных балок, которые удерживают крышу. Просветы между балками заполняют строительным материалом: кирпичом, деревом, глиной, камнем, щебнем. Затем покрывают штукатуркой, но деревянные балки не прячут под отделочным материалом – их оставляют снаружи дома.
Эффектный результат
Со временем древесина темнеет и эффектно контрастирует со светлой штукатуркой. Дома смотрятся настолько красиво, что некоторые владельцы декорируют здания под фахверк независимо от того, каким способом они выстроены, то есть имитируют немецкий стиль, в действительности его не имея.
Преимущества технологии фахверк
- Удобство строительства: фахверк позволяет возводить дома с минимальными затратами на материалы и труд
- Эстетическая привлекательность: фахверк создает уникальный внешний вид, который отличается от других стилей
- Простота ремонта: в фахверке ремонт легко выполнить, так как доступны все элементы конструкции
- Экологическая безопасность: фахверк может быть построен из экологически чистых материалов, таких как дерево и глина
- Красота внешнего образа . Дома в элегантном стиле с ностальгическими нотками старины выглядят привлекательно. Просветы между балками, заполненные стеклами, делают здания воздушными и легкими.
- Длительный срок эксплуатации. Дома, выполненные профессионалами из качественных современных материалов, отличаются долговечностью.
- Пригодность к любым климатическим условиям. Поскольку технология фахверк предполагает разные строительные материалы для возведения стен, их подбирают для конкретных климатических условий. Поэтому красивые решетчатые фасады можно встретить как в южных, так и в северных регионах.
- Свет и тепло. Здания нередко строят со стеклянными фасадами, занимая стеклопакетами три четверти поверхности всех стен. Они пропускают много тепла и света, делая внутреннее пространство коттеджа просторным и невесомым.
- Быстрое возведение . Если не учитывать время на закладку фундамента, само строение можно возвести за один-два месяца. Это связано с тем, что здания чаще всего строят с помощью произведенных на заводе готовых строительных блоков.
- Этажность . Технология позволяет возводить строения высотой до 4 этажей.
- Усадка . Для таких зданий она минимальна – не более 1–2%. Это значит, что въезжать в новый дом можно сразу после строительства, к отделочным работам также приступают сразу.
- Деформация . Строения по технологии фахверк фактически не дают деформаций и трещин. Этому способствуют минимальная усадка и фрагментарное наполнение стен, которое мягко реагирует на проседание грунта.
- Внутренний простор. Клееный брус, применяемый в строительстве, может иметь длину более 6 метров, что позволяет сделать внутреннее пространство довольно большим.
- Недорогой фундамент. Дома по технологии фахверк чаще всего содержат наполнение из легких строительных материалов, что позволяет обходиться без дорогого заглубленного фундамента.
- Разнообразие материалов. Коттедж в стиле фахверк можно возвести из любых строительных материалов, на любой вкус заказчика. На изготовление балок идут разные породы деревьев. Многообразен и отделочный ассортимент.
- Лояльность стиля. С элементами фахверк сочетаются любые другие архитектурные направления.
Связанные вопросы и ответы:
Вопрос 1: Что такое фахверк
Ответ: Фахверк — это традиционный немецкий способ строительства фасадов, который используется уже более 600 лет. Он представляет собой стену, состоящую из горизонтальных и вертикальных деревянных балок, между которыми заполнены кирпичи или камни. Фахверк отличается своей прочностью, эстетичностью и энергоэффективностью.
Вопрос 2: Какие материалы используются для отделки фасада под фахверк
Ответ: Для отделки фасада под фахверк могут использоваться различные материалы, такие как: фахверковые панели, фахверковые плиты, фахверковые блоки, фахверковые панели из ПВХ, фахверковые панели из стекловолокна и другие. Выбор материала зависит от желаемого эстетического эффекта, бюджета и других факторов.
Вопрос 3: Какие способы монтажа фахверка существуют
Ответ: Существует несколько способов монтажа фахверка: настенный фахверк, фахверк на подбое, фахверк на каркасе и фахверк на каркасе с подбоем. Каждый способ монтажа имеет свои особенности и преимущества, и выбор метода зависит от типа здания, его архитектуры и других факторов.
Вопрос 4: Какие цвета и фактуры можно использовать для фахверка
Ответ: Фахверк может быть окрашен в различные цвета, что позволяет создавать эстетические решения, соответствующие архитектурному стилю здания. Также можно использовать фактуры, имитирующие различные поверхности, такие как грубую древесину, гладкую древесину, кирпич и другие.
Вопрос 5: Как выбрать подходящий фахверк для своего дома
Ответ: Выбор подходящего фахверка зависит от архитектурного стиля дома, его размеров, особенностей местности и других факторов. Важно также учитывать бюджет и эстетические предпочтения. Поэтому рекомендуется обратиться к специалисту, который сможет помочь подобрать оптимальный фахверк для вашего дома.
Вопрос 6: Какие преимущества имеет фахверк перед другими видами фасадных работ
Ответ: Фахверк имеет ряд преимуществ перед другими видами фасадных работ, таких как: прочность, энергоэффективность, долговечность, эстетичность, гибкость в дизайне и другие. Фахверк также может быть использован для реставрации исторических зданий, что позволяет сохранить их оригинальный облик.
Вопрос 7: Как обеспечить долговечность фахверка
Ответ: Для обеспечения долговечности фахверка необходимо использовать качественные материалы и соблюдать правила монтажа. Также важно правильно обрабатывать фахверк с помощью специальных препаратов, чтобы защитить его от воздействия окружающей среды и увеличить срок службы.
Вопрос 8: Как выполнить ремонт фахверка
Ответ: Ремонт фахверка может быть выполнен с помощью специальных препаратов и инструментов. Важно правильно выбрать материалы и методы ремонта, чтобы не повредить фахверк и не ухудшить его эстетический вид. Рекомендуется обратиться к специалисту, который сможет выполнить ремонт фахверка качественно и эффективно.
Что такое фахверк
Фахверковые дома в наши дни становятся весьма популярны. Почему? Во-первых, они выглядят стильно и красиво. Причем, не только на фотографиях, но и в жизни. А во-вторых, этот тип строительства считается экологически чистым.
В нашей стране фахверковые дома пока что встречаются нечасто. Поэтому возникает немало вопросов о том, что такое фахверк и как этот тип строительства применяется на практике. Архитектор Starkwood Алексей Соколов, разрабатывающий проекты деревянных домов вот уже 18 лет, отвечает на самые часто задаваемые вопросы по этой теме.
Так что же такое «фахверк»?
Это дома, которые традиционно строили жители Северной Европы. Скандинавы, прибалты, немцы и англичане были знатными кораблестроителями. И вот эти навыки применяли и при строительстве жилых домов. Из цельных стволов дуба и сосны создавали рамы, стойки и балки. А потом все эти элементы соединяли при помощи тех же самых технологий, что использовались во время строительства кораблей. Плоскости стен заполняли глиной, кирпичом, цементом. Фахверковое строительство было удобно еще и тем, что при возведении нового дома можно использовать материалы от старого дома.
Чем отличается классическое строительство фахверк домов от современного фахверка?
Современные технологии позволили сделать пространство между балками инструментом дизайна. И если столетия назад место просто заполняли глиняным раствором, то сейчас для этого используют практически любой современный строительный материал, в том числе и панорамные стекла. Современные технологии позволяют остеклить 70% дома. Причем, жить в нем будет комфортно в любое время года.
В современных фахверковых домах крыши делают как классические двухскатные, так и односкатные или плоские в стиле хай-тек. Это добавляет в классический дизайн дома свежие современные ноты. Конструкция современного фахверка хороша и тем, что позволяет эффективно скрыть инженерные коммуникации. Системы обычно устанавливают под полом или монтируют в опорные конструкции.
Почему фахверк до сих пор популярен?
Потому что весьма эффективен. Строительство занимает мало времени. Дома возводятся из уже готовых конструкций, созданных по индивидуальному проекту, с учетом всех пожеланий заказчика.
На сегодняшний день такие дома делают чаще с панорамными окнами. Такой вид остекления придает архитектуре невероятно стильный внешний вид. Так что панорамные окна безрамного типа, наряду с высокой скоростью возведения дома — одна из причин популярности фахверка.
Еще одна причина популярности фахверковых домов — отсутствие внутренних несущих стен. Это дает практически безграничные возможности для планировки пространства. Фактически внутреннее устройство дома зависит только от желания хозяина.
Как работает с фахверковой системой Starkwood?
В нашей компании мы создаем каркас дома из клееного конструкционного бруса высшего качества. В наружной отделке используют панель декоративную, большое остекление, планкен, имитацию бруса или полностью брус, декоративную штукатурку, композитные плиты и многое другое. И от выбранных отделочных материалов зависит внутреннее наполнение стен.
В чем плюсы таких домов?
Во-первых, это возможность строительства длинных пролетов. Клееный брус позволяет создавать пролеты длиной более 6 метров. А это в свою очередь делает помещения внутри дома более просторными и дает больше свободы для планировки внутреннего пространства.
Во-вторых, экологичность. В основном при строительстве фахверковых домов используют стекло и дерево. Они считаются самыми экологически чистыми строительными материалами.
В-третьих, прочность и надежность. При соблюдении технологий строительства современные фахверковые дома из клееного бруса так же долговечны, как деревянные или каменные.
И в-четвертых, возведение фахверковых домов не зависит от времени года. Строительство можно вести даже осенью и зимой. А это значит, что вы получите готовый дом в определенные сроки.
В чем особенность проектирования фахверковых домов в Starkwood?
Мы имеем большой опыт работы с технологией фахверка. Поэтому отлично знаем, какие моменты могут встретиться при строительстве и на что стоит обратить более пристальное внимание на этапе проектирования.
Фахверк — достаточно интересная технология, имеющая богатую историю. Несомненно, у такого типа строительства есть свои нюансы, без учета которых получить качественный и стильный дом невозможно. Поэтому для строительства фахверкового дома стоит обращаться только к профессионалам, имеющим опыт работы с такими технологиями.
Фахверковые дома в наши дни становятся весьма популярны. Это связано с их уникальным дизайном и экологической чистотой. Однако, в нашей стране фахверковые дома пока что встречаются нечасто, поэтому возникает немало вопросов о том, что такое фахверк и как этот тип строительства применяется на практике.
Архитектор Starkwood Алексей Соколов, разрабатывающий проекты деревянных домов вот уже 18 лет, отвечает на самые часто задаваемые вопросы по этой теме. Согласно ему, фахверковые дома - это традиционный тип строительства, который использовался жителями Северной Европы. Скандинавы, прибалты, немцы и англичане были знатными кораблестроителями и применяли свои навыки при строительстве жилых домов.
Из цельных стволов дуба и сосны создавались рамы, стойки и балки, которые затем соединялись при помощи технологий, использовавшихся во время строительства кораблей. Плоскости стен заполнялись глиной, кирпичом, цементом. Фахверковое строительство было удобно еще и тем, что при возведении нового дома можно было использовать материалы от старого дома.
Современные технологии позволили сделать пространство между балками инструментом дизайна. Если столетия назад место просто заполняли глиняным раствором, то сейчас для этого используют практически любой современный строительный материал, в том числе и панорамные стекла. Современные технологии позволяют остеклить 70% дома, при этом жить в нем будет комфортно в любое время года.
Фахверковые дома - это не только красивые и экологически чистые сооружения, но и прочные и долговечные. Они могут прослужить десятки лет, сохраняя свою первоначальную красоту и функциональность.
В заключение, фахверковые дома - это уникальный тип строительства, который сочетает традиционные технологии с современными материалами и дизайном. Они идеально подходят для тех, кто ценит красоту, экологичность и прочность.
Какие материалы используются для отделки фасада под фахверк
Одна из отличительных черт фахверкового строения — множество небольших оконных проемов. Сегодня актуально панорамное остекление с декором в виде балок каркаса. Другие декоративные элементы будут излишни.

Крышу дома в современном или классическом стиле делают двускатной. Если особняк выдержан в стиле хай-тек или индастриал гармонично будет смотреться плоская крыша. Широкая кровля дополнит стиль шале и кантри .

Фахверковые дома: Проект Шале 10
Современные проекты домов в данном архитектурном стиле предполагают использование стеклянных поверхностей.
Это могут быть:
- окна;
- двери;
- ограждения террас и балконов.
Новые постройки часто отличаются от аутентичных фахверковых построек, но основа любого проекта — балочный каркас. В современных проектах часто наблюдается сочетание разных стилей: фахверк + хай-тек, модерн, кантри, японские мотивы и др. Но, возведение каркаса следует выполнять по технологии фахверк.

Проект двухэтажного дома

Общая площадь загородного коттеджа — 315 м2. В доме 4 спальни, 3 санузла. 228,2 м2 занимают помещения, 87,7 — балконы и террасы.
Каркас особняка сделан из клееного бруса. Проект предполагает использование большого количества стекла: в объемных панорамных окнах, входных дверных проемах, ограждении балкона.
Данный проект лучше всего воплощать на живописном загородном участке в отдалении от соседних домов и дорог. Иначе ввиду прозрачности конструкции будет сложно сохранять приватность. Панорамные окна выполняют функцию стен и пропускают максимальное количество естественного света внутрь. При желании, стеклянные стены можно заменить на другой материал с отделкой в фахверковом стиле.
Широкая кровля дополняет объемную конструкцию дома и защищает материалы от воздействия влаги. Цоколь имеет отделку из натурального камня и находится на возвышении, что позволяет возвести террасу открытого типа со стороны сада. При помощи подсветки в вечернее время можно выделить каждую плоскость и деталь дома. Стекло, использованное в экстерьере создает впечатление простора и внутри дома.
Планировка первого этажа:

- гостиная;
- кухня-столовая;
- комната с проходом на террасу;
- хозяйственные помещения.
На втором этаже расположены три спальни, два санузла, две гардеробные и два балкона, выходящие на разные стороны дома.

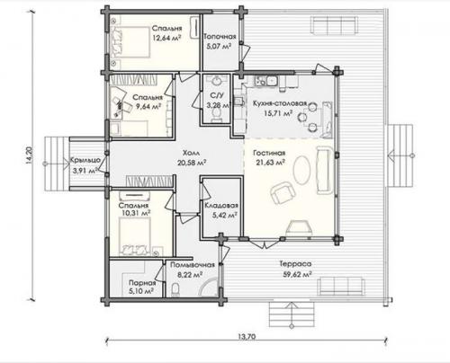
Одноэтажный дом

Площадь строения — 181 м2. В доме три спальни и одна ванная комната.
Пространство разделено на три функциональные зоны:

- Гостиная с камином, столовая, кухня+кладовая; терраса площадью 59 м2.
- Три спальни и гардеробная.
- Баня с мыльной и парной.
Также в доме есть котельная.
Проект предусматривает большую площадь остекления. Благодаря использованиютеплопотери сведены к минимуму. Квадратная форма строения позволяет воплотить в жизнь различные дизайнерские идеи. Фасад дома выполнен из стекла, которое разделяет на сегменты темные деревянные балки в стиле фахверк.
Дом-баня

Площадь бани — 50 м2. Строение выдержано в современном стиле. Материал — клееный брус. Баня большой площади смотрится органично и невесомо за счет широкой крыши, прикрывающей террасу и поленницы с дровами.
Какие технологии используются для отделки фасада под фахверк
Дома в стиле фахверк – это строения, имеющие интересный дизайн: рисунок с помощью деревянных элементов на белом фоне. Таких вариаций существует бесконечное множество, поэтому однозначно сказать, сколько потребуется материала невозможно. Причудливые узоры из вертикально либо горизонтально, либо под углом расположенных дощечек-планкена темно-коричневого цвета разбросаны одиночно по всем стенам дома.
Чтобы они не деформировались в процессе эксплуатации, не подвергались кручению, не выгибались и располагались в соответствии с предполагаемым рисунком, нужно подумать об исходном сырье для производства планкена. Производители рекомендуют облицовку под фахверк из лиственницы или сосны. Что же собой представляют эти два вида древесины?
Особенности и характеристики сосны:
- Сосна мягкий и податливый материал, так как по шкале Бриннеля она имеет коэффициент 1,6 ед. твердости.
- С ней легко работать, но при эксплуатации она может подвергаться механическим повреждениям: остаются царапины и сколы.
- Древесина не удерживает тепло, имеет низкий порог устойчивости при воздействии влажной погоды.
- Планкен из хвойной породы сосны прослужит 10-12 лет. Он является самым дешевым материалом для фахверковой облицовки стен дома.
- Пористая структура сосны является хорошим местом для жизни и размножения насекомых.
- Составляющие элементы планкена легко склеиваются.
- Смолистый аромат хвои признан лечебным.
Физико-химические свойства лиственницы как исходного материала для производства обшивки стен дома:
- Лиственница чрезвычайно твердый и плотный материал – 109 ед. по шкале Брюннеля.
- Срок службы более 100 лет.
- Стоимость планкена находится в среднем ценовом диапазоне.
- Древесина устойчива к влажному климату и нападению насекомых.
- Лиственница не подвержена короблению, но при пересыхании могут появиться трещины.
- Так же как и сосна легко поддается приемам искусственного старения.
- Древесина источает очень сильный смолистый аромат, что можно считать недостатком, нежели достоинством.

Какие преимущества имеет отделка фасада под фахверк
Фахверк относится к каркасному строительству и на сегодняшний день это наиболее продвинутая технология возведения деревянных каркасных домов. Основой строения служит конструкция из прочных деревянных столбов, горизонтальных балок и диагональных раскосов, а пространство между ними заполняется различным строительным материалом с достаточной теплоемкостью.

Деревянные элементы декора

Фахверковые дома — немецкий стиль
Изначально для возведения фахверковых домов использовались обычные бревна и деревянные балки различного сечения, а образованные ими секции заполнялись соломой, смешанной с известью и глиной (по типу саманных построек). Позже начали использовать камень и обожженный кирпич, иногда доски. Сейчас каркас изготавливается из клееного бруса хвойных пород, а для заполнения секций используются современные материалы – сэндвич панели, ЦСП, газобетон, различные утеплители. При этом элементы каркаса всегда остаются на виду, независимо от способа финишной отделки фасада.
Такие дома имеют весомые преимущества:
- деревянный каркас обладает сравнительно небольшим весом и не оказывает серьезной нагрузки на основание. Это позволяет возводить здания на мелко заглубленных фундаментах, что значительно сокращает сроки строительства и затраты на материалы;
- в каркасной конструкции легко спрятать все коммуникации;
- длина брусьев дает возможность перекрывать большие пролеты, а значит, внутренние помещения могут быть очень просторными;
- технология крепления и перевязки брусьев снижает практически к нулю риски перекоса здания;
- фахверковые дома выглядят колоритно и эффектно, выделяясь на фоне стандартных построек.

Эффектный вид фахверкового дома

Уютный немецкий дом
Правда, минусы у стиля фахверк тоже есть:
- разработка проекта и монтаж конструкций требует профессиональных знаний и навыков, а услуги специалиста весьма недешевы;
- классический фахверковый дом не подходит для северных регионов, поскольку стены в нем недостаточно толстые и не могут обеспечивать надежной теплоизоляции;
- открытый деревянный каркас нуждается в регулярной обработке антипиренами, антигрибковыми и гидрофобными составами.
Помимо строительства фахверковых домов существует и более практичный вариант – наружная отделка под фахверк. Во-первых, стилизовать под фахверк можно абсолютно любой дом стандартной формы. Во-вторых, выполнить имитацию несложно самостоятельно, никаких специальных знаний для этого не нужно. В-третьих, такая отделка обойдется дешевле, чем, например, обшивка фасада сайдингом.
Какие недостатки имеет отделка фасада под фахверк
В качестве основы под отделку может служить обычный дом — деревянный, кирпичный, шлакоблочный. Для обшивки стен применяются следующие материалы.
Полиуретановые панели
Обшивка наружных стен полимерными панелями — самый распространенный и недорогой вариант отделки. Доски и бруски из полиуретана не нуждаются в окраске. Нужные оттенки можно подобрать так, что имитация фахверка на фасаде будет выглядеть очень реалистично. Преимущества полимерного покрытия:
- Презентабельный внешний вид.
- Устойчивость к UF-излучению, перепадам температуры, осадкам.
- Отсутствие деформации, трещин и других видимых дефектов.
- Малый вес.
- Инертность к органике (плесени, грибку, насекомым).
- Долговечность.
Полиуретановый декор приклеивают к фасаду на специальный клей (жидкие гвозди, Корунд, Церезит). Готовое покрытие создает впечатление отделки из древесины, но цена полимера на порядок ниже.
Фасад под фахверк из ЦСП
Строительная цементно-стружечная плита — это спрессованный лист из портландцемента, сосновых стружек и стабилизирующих добавок. Производится методом прессования. Самый распространенный размер ЦСП — 3600?1200 мм с толщиной от 10 до 40 мм.
Материал легко режется болгаркой или электролобзиком. Заготовки, нарезанные по размеру, окрашивают масляными или водорастворимыми красками. После просушивания ЦСП крепят на шурупы к стенам, заполняя пространство между балками. Дом, обшитый панелями, становится теплее; повышается звукоизоляция стен.
Для отделки фасада фахверк своими руками также применяются вагонка, ГВЛ, водостойкая фанера и другие плитные материалы. Организация работ примерно та же, что и с ЦСП.
Оштукатуривание стен
Технология достаточно трудоемка. Подходит для кирпичных и блочных зданий с большим процентом износа. Для работы лучше брать водостойкую сухую строительную смесь, толщина конечного слоя которой может достигать 3 см.
Если решено делать фасад под фахверк своими руками, то дом сначала штукатурят. После полного схватывания штукатурку окрашивают в светлые тона, используя водорастворимые акриловые эмульсии. Фальшбрус делают контрастным — коричневым или черным. Сейчас можно приобрести специальные составы, придающие деревянной доске эффект патины.
Все накладные детали сначала красят на два-три раза и просушивают, а затем крепят на стены в соответствии с чертежом проекта. На лакокрасочных материалах лучше не экономить, иначе каждый год дом придется полностью перекрашивать. Если для фальшбалок используют деревянные доски, их необходимо обработать антисептиком и покрасить с двух сторон, включая торцы.
Как выбрать материал для отделки фасада под фахверк
Сразу акцентируем внимание на разнице между строительством дома в фахверковом стиле и лишь внешней отделкой фасада. При строительстве дома по оригинальным технологиям данного направления, каркас будущего здания делают более жестким. Добиваются этого с помощью всевозможных балок и раскосов, которые принимают на себя всю основную нагрузку и вес кровли. Именно они и являются визитной карточкой стиля, создавая на фасадной части здания геометрический рисунок.
Пустоты каркаса заполняют разными материалами с целью повышения теплоизоляционных свойств. Изначально для этого применяли:
- щебень
- камни
- битый кирпич
Но в наш век индустриального прогресса удобнее использование современных прочных и легких материалов, специально созданных для утепления зданий.
Однако фасад дома в стиле фахверк не всегда однозначно говорит о том, что все здание выполнено в данном стиле. Иногда на стены обычных домов из дерева и других стройматериалов для реставрации наносится штукатурка или даже обычный сайдинг, после чего они облицовываются полиуретановыми фальш-балками. Такой «макияж» делает стиль дома очень похожим снаружи на настоящий фахверк. Он быстро покрывается сайдингом и позволяет приобщиться к этому голландскому направлению владельцу практически любого здания.
Как выбрать технологию для отделки фасада под фахверк
Внешней отделке фасадов дома придается большое значение, потому что именно она формирует зрительный образ и создает внешний облик дома. Помимо декоративного назначения, с помощью обшивки улучшается теплозащита стен, они ограждаются от атмосферного воздействия таких факторов, как ветер, дождь, перепады температуры, влажность, солнечное излучение, механические повреждения.

Самым распространенным способом обустройства внешней отделки несущих стен дома является установка вентилируемого фасада. Между стеной и утеплителем делается небольшой зазор, по которому циркулирует воздух, выветривая влажные пары, конденсированную влагу из окружающей атмосферы, скапливающуюся внутри на несущих поверхностях конструктива. Под облицовкой не возникает плесени, грибка. Такой способ монтажа фасадной облицовки мы рекомендуем как наиболее практичный.

Для облицовки вентилируемого фасада мы выбираем современный высокотехнологичный материала Фибро Цементные Панели \ФЦП\. У этого материала идеальная геометрическая форма по всем параметрам: по ширине, длине, толщине. Стыковка одиночных деталей с торцов обеспечивается ответными шипами и пазами. Они надежно соединяют элементы, крепко входят друг в друга, что дает возможность получить ровную поверхность без промежутков и заметных швов.Установку ФЦП сайдинга можно производить при температуре до -20°С

У ФЦП разнообразная фактура, имитирующая традиционные облицовочные материалы: дерево, кирпич, "дикий" камень, штукатурка. Плиты хорошо распиливаются на части, комбинируются с другими вариантами из своего модельного ряда, их не сложно подгонять под текстуру фасада, они легко монтируются на открытые и потайные крепежные элементы. Эти плиты отличаются особой твердостью и надежностью.

