Толщина отмостки из бетона вокруг дома. Как правильно сделать отмостку из бетона?
- Толщина отмостки из бетона вокруг дома. Как правильно сделать отмостку из бетона?
- Минимальная ширина отмостки. Ширина отмостки
- Толщина отмостки по госту. Как правильно выполнить отмостку
- Ширина отмостки частного дома. Что представляет собой данный строительный элемент?
- Уклон отмостки на 1 метр. Общие требования к отмостке по СНиП
- Минимальная толщина бетонной отмостки. Назначение и размеры
- Ширина отмостки вокруг дома. 435
- Толщина отмостки вокруг дома. Требования
Толщина отмостки из бетона вокруг дома. Как правильно сделать отмостку из бетона?

Даже прочнейший фундамент не может долго противостоять влаге и перепадам температуры. Влага быстро приводит к тому, что нагрузка на дренажную систему и гидроизоляцию дома увеличивается. Чтобы этого избежать, устанавливают отмостку из бетона. Сделать это довольно просто и самостоятельно. Именно этому будет посвящена эта статья.


Помимо выполнения основных функций (сохранение конструкции от разрушительного влияния влаги), покрытие становится зоной для пешеходов. К тому же отмостка придает частному дому особую красоту и законченный вид. Однако перед непосредственной заливкой отмостки нужно проанализировать особенности конструкции и рекомендации по её установке.


Устройство
Бетонные отмостки характеризуются конструкционной простотой, и для самостоятельного изготовления будут необходимы нижеописанные материалы.
- Подушка (пирог). Необходимо провести подсыпку перед сливанием раствора в конструкционные пазы. Эту роль часто выполняют песок (крупной и средней зернистости), щебенка, гравий мельчайшего диаметра или смесь гравия и песка. Если в качестве подложки использовать мелкий песок, может произойти большая усадка. Из-за сильной усадки конструкция может пойти трещинами. Самым надежным вариантом является подсыпка из двух слоев: сначала засыпается щебёнка или гравий, которые уплотняют грунт, а потом всыпается песок.
- Укладка арматуры. Арматурная сетка в конструкции обеспечивает дополнительную прочность. Размеры пазов обычно варьируются – или 30 на 30 см или периметр в 50 на 50 см. Диаметр арматуры составляет 6-8 мм, однако, базируется всё на разновидности почвы.
- Опалубка. Конструкция обязательно должна быть дополнена направляющими из прямых досок. Опалубку устанавливают по всей площади покрытия. Ширина направляющих – 20-25 мм. Опалубка позволяет ликвидировать растекание состава.
- Раствор бетона. Создание конструкции требует использования бетона особого состава.
Минимальная ширина отмостки. Ширина отмостки
Это самая важная характеристика конструкции. Максимального размера просто нет, все зависит от эстетики. При этом в СНиП 2.02.01-83 сказано, что любое строение должно иметь отмостку. Защитный слой вокруг дома делают из разнообразных материалов. Конструкция в результате должна быть прочной, обеспечивать гидроизоляцию и утепление.

Минимальная ширина отмостки зависит от вылета карниза крыши и качества грунта. Первое вполне логично. Вода с крыши должна попадать на конструкцию и отводиться с ее помощью. Отмостка всегда минимум на 20 см шире, чем проекция карниза на землю.

Необходимо определить тип почвы. Минимальная отмостка составляет 80 см при условии, что грунт дисперсный несвязанный или представлен средним, крупным песком. Если же почва более слабая, легко насыщается водой и поддается пучению от мороза, то такой ширины будет недостаточно. Оптимальным параметром в такой ситуации считается 90-100 см.
Многие используют стандарт, делая отмостку шириной в 1 метр. В таком случае нет риска ошибиться. Согласно ГОСТу на слабом грунте отмостка должна иметь ширину минимум 80 см, а на устойчивом – 90 см. Максимального значения не существует.

Чем шире, конструкция, тем более надежно она обеспечивает защиту фундамента от влияния влаги. При этом важно ориентироваться на эстетичность. Слишком широкая отмостка вокруг маленькой постройки будет выглядеть весьма нелепо. Однако все зависит от предпочтений владельца здания. Более широкая отмостка позволит обустроить дорожку вокруг частного дома, что довольно удобно. Важно не нарушать нормы.

Толщина отмостки по госту. Как правильно выполнить отмостку
В строительном бизнесе одним из основных факторов выполнения качественных работ является опыт. Чтобы правильно выполнить отмостку, необходимо обязательно соблюдать СНиП из раздела «Благоустройство территорий», которые легко можно найти в интернете.
Там вы узнаете, какая должна быть ширина отмостки согласно нормам СНиП и другие необходимые данные для укладки дорожки вокруг дома.
Для начала вы должны понимать, что отмостка выполняется двумя слоями:
- Подложный;
- Покрывающий.
Подложка является основой для выбранного покрытия. Верхний слой делается из бетона, плитки или асфальта. Каким же должна быть толщина, высота и ширина отмостки жилого дома для лучшей функциональности? Кроме этих официальных стандартов, необходимо знать нюансы строительства, которые мы приведем ниже:
- Данные работы необходимо проводить после окончания облицовки стен;
- Ширина отмостки зависит от грунта, где расположено здание и от карнизных свесов. Размеры отмостки вокруг дома колеблются от полуметра и выше.
- Нижний слой состоит из глины, щебня или песка и не должен превышать высоту в 20 см;
- Покрытие необходимо выбирать водонепроницаемое и устойчивое во время размытия. Этот слой чаще всего равен 10 см;
- Необходимо обязательно сделать уклон;
- Между нижним и верхним слоем для утепления можно положить специальный материал.
Расчеты ширины отмостки частного дома, угла наклона, высоты каждого слоя и планирование немаловажны, поэтому к выбору покрытия необходимо подойти серьезно и основательно.

Ширина отмостки частного дома. Что представляет собой данный строительный элемент?
Многие до сих пор не знают, что такое отмостка здания. Это полоса из бетона, асфальта и тротуарной плитки вокруг дома. Согласно строительным нормам и правилам она обязательно должна устраиваться, так как служит преградой от попадания в структуру фундамента воды, что в свою очередь может нанести большой вред. Выполняется данный элемент из водонепроницаемого материала вокруг всего здания. Ширина его должна быть не меньше 70 см и обязательно должна быть устроена от стены дома на внешнюю сторону. Вообще этот размер зависит от структуры почвы и длины свесов карнизов. Помимо главной функции – беречь фундамент от воды, отмостка может играть роль пешеходной зоны.
Также присутствие данного элемента дает возможность поддерживать в чистоте лицевую часть здания. Вода, стекающая с крыш, ударяется о землю, тем самым разбрызгивая компоненты по стенам. Картина после этого, конечно, неприглядная, а монтаж полоски по периметру из бетона, асфальта и тротуарной плитки не допускает этого.
Намного больше неприятностей приносит то, что, если нет отмостки у здания, построенного на пучинистых грунтах. Зимой почва, пропитанная водой, вспучивается неравномерно, что плохо влияет на фундамент. В таком случае на площадке по периметру выполняют утепление. Также немалую роль играет данная составляющая, если дом построен на мелкозаглубленном фундаменте. Поскольку подошва его размещается близко к поверхности, то здесь еще легче достигается водой глубина заложения основания. Стоит сказать, что возведение отмостки для любых сооружений, с различными фундаментами обязательно.
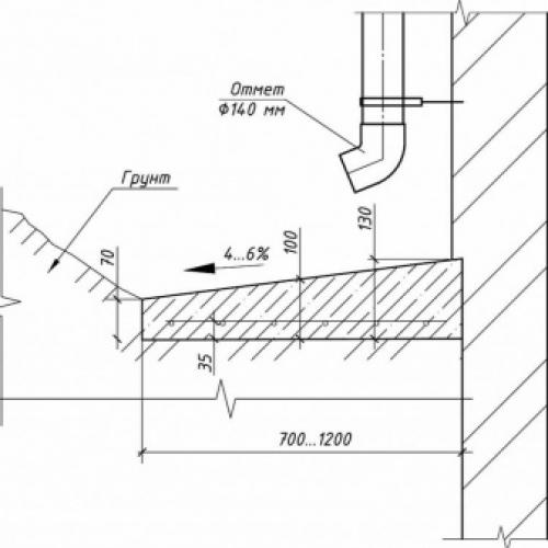
Уклон отмостки на 1 метр. Общие требования к отмостке по СНиП
Перед тем как вводить в поисковую систему «отмостка фото», нужно знать, что существует целый свод норм и стандартов, которым должна соответствовать эта конструкция. Правильное устройство, уклон отмостки и другие важные моменты регулируются целым перечнем нормативных документов.
СНиП – это множество требований по укладке, которые собраны в единый документ. Рассмотрим основные требования и правила, которым должна соответствовать конструкция отмостки:
- Должна плотно примыкать к зданию по периметру.
- Уклон должен быть не более 10%, но не менее 1% и направление его должно быть от стены здания.
- Наружная кромка не должна иметь искривлений.
- Качество бетона должно соответствовать стандартам, предъявленным к дорожному бетону, не допускается наличие трещин, впадин, искривлений.
- Нижним слоем отмостки должен быть уплотненный грунт.
- На стыке стены дома и отмостки должен оставаться компенсационный слой.
Должна соответствовать отмостка СНиП и своей толщиной – не менее 15 см. При использовании отмостки в качестве пешеходной зоны, для стоянки автомобиля она также должна полностью соответствовать нормам СНиП. В этом случае желательно соорудить тротуар.
К тому, как должна укладываться отмостка, СНиП тоже предусмотрены. Слишком крутой уклон может постепенно разрушать внешний край, поэтому его стоит избегать.
Стоимость работ и затраты на приобретения строительных материалов можно рассчитать в смете. Это поможет сэкономить и предотвратить приобретение лишнего материала, который в дальнейшем не понадобится или будет использован лишь частично.
Минимальная толщина бетонной отмостки. Назначение и размеры
В соответствии с нормативами отмостка входит в состав обязательных водозащитных мероприятий для предупреждения замачивания поверхностными водами грунтов основания (в первую очередь чувствительных к изменению влажности). То есть, отмостка защищает от воды не сам фундамент (для этого есть гидроизоляция), а именно грунты, так как многие его виды при превышении определённого уровня влажности теряют свои прочностные свойства.

Помимо этого, отмостка может использоваться как дорожка вокруг дома и служить частью ландшафтного дизайна .

Стоит сразу сказать, что отдельного норматива по устройству отмостки нет. Есть три основных документа, регламентирующих требования по ширине, углу уклона, высоте над планируемым уровнем, подготовке грунта основания и так далее. Их требованиями мы и будем оперировать при рассказе об обустройстве отмостки для ленточного фундамента .
Несколько слов о мифах. Ни в одном нормативном документе нет указания на зависимость ширины отмостки от размера свеса кровли. В большинстве случаев фактическое соотношение размеров выдают за рекомендованное. Хотя, иногда указываемое превышение ширины отмостки над выносом карниза крыши в 20–30 см может не соблюдаться. По норме боковые свесы для одно- или двухэтажных домов при неорганизованном водостоке должны быть более 60 см (п. 3.24 СНиП 31–06–2009), а ширина отмостки зависит от типа грунта, и её минимальный размер может быть равен 70 см.
Схема отмостки. 1. Фундамент и стена. 2. Грунт. 3. Гравийная подготовка. 4. Песчаная подготовка. 5. Гидроизоляция. 6. Бетонная отмостка. 7. Армирующая сетка. 8. Опалубка. 9. Дренажная система вокруг дома. 10. Водосточная труба
В пособии, которым должны руководствоваться застройщики, строительные организации и службы надзора («Схемы операционного контроля…»), есть прямое указание по ширине отмостки для двух типов грунта:
- глинистых — не менее 100 см;
- песчаных — не менее 70 см.
Здесь же указано, что уклон отмостки должен лежать в пределах 1–10%.
Но если грунты просадочные, то «включается» в действие другой нормативный документ — «Пособие по проектированию оснований…» (к СНиП 2.02.01–83). А в нём указано, что ширина отмостки для просадочного грунта I типа должна быть от 1,5 м, а II типа — от 2 м, с возвышением внешней бровки отмостки над спланированной поверхностью участка на 5 см (п. 3.182).

И в обоих случаях отмостка должна перекрывать пазухи котлованов более чем на 0,4 м, а угол уклона должен быть более 3°, или 5,2% (п 4.30).
Минимальная толщина бетонного покрытия отмостки будет у её внешней бровки. Исходя из нормативной толщины защитного бетонного слоя арматуры (минимум 30 мм), она должна быть от 70 мм.
Толщина отмостки у цоколя зависит от ширины отмостки и угла уклона. Высчитать её просто: ширину отмостки умножить на угол уклона (в процентах) и разделить на 100, а результат прибавить к толщине внешней бровки.
Ширина отмостки вокруг дома. 435

- плотной глиняно-песчаной подложки;
- дренирующего слоя;
- современной пленочной гидроизоляции;- теплоизоляционного слоя;
- верхнего бетонного покрытия.
- подушка из песка: 0,1-0,15 м;
- щебеночный слой: 0,06-0,09.м;
- бетонное покрытие: 0,07-0,12 м;
- железобетон: 0,1 м;
- асфальтобетон: 0,05 м.
- для щебня и булыжника наклон равен 5-10% ширины;
- для асфальта и бетона: 3-5%.
Любое строение по своему периметру должно защищаться водонепроницаемым покрытием, примыкающим вплотную к цоколю. Какой должна быть отмостка вокруг дома : высота, ширина и уклон – зависит от множества факторов. Для обеспечения правильного выполнения своих функций, отмостка должна выполняться исключительно профессионалами, владеющими всеми нюансами технологии.

Особенности оборудования бетонной отмостки
Данное сооружение представляет из себя горизонтальную полосу определенной ширины, входящую в состав придомовой дренажной системы и состоящей из:
Благодаря ровной полосе из бетона строение приобретет законченный и аккуратный внешний вид. Для ее качественного и правильного выполнения необходимо строго соблюдать строительные правила и нормы.
До начала основных работ, выполняются расчеты, позволяющие определить ширину, глубину и уклон отмостки. СНиП содержит общее описание оборудования основания вокруг здания и допустимые отклонения его основных параметров.
Требования и правила устройства отмостки
Работы по созданию дорожки для водоотвода производятся на заключительном этапе строительства. Ее параметры прямо связаны с 2-мя факторами: тип грунта и длина свесов кровли.
Ширина
Не подверженный деформациям грунт с хорошей несущей способностью позволяет сэкономить и выполнить отмостку шириной 0,6 м (не меньше). При плохой почве этот показатель достигает 2 м. Также учитывается длина вылета карниза, отступление от его края в сторону грунта должно быть не менее 0,2 м. Так стекающая вода не сможет просочиться под фундамент.
Высота
Для каждого материала существуют свои стандарты толщины слоя:
Высота нижнего слоя не должна превышать 0,2 м. Плодородный пласт перед его укладкой удаляется. Песчаную подушку формируют на хорошо утрамбованной глинистой основе.
Железнение и угол наклона
Верхний край дорожки должен быть у фундамента, тогда вода будет стекать на грунт. По нормам его толщина зависит от материала и ширины отмостки:
Важно! Отмостка вокруг дома не должна быть слишком пологой. При большем наклоне вода лучше отводится от фундамента и цоколя.
Защита бетонной отмостки
Данная конструкция предусматривает плотное прилегание к цоколю дома. Малейшие щели способны нарушить герметичность покрытия и привести к проникновению воды к фундаменту здания. Для исключения разрушения бетонного покрытия при температурных перепадах, выполняются деформационные швы с шагом 0,170-0,20 м и по углам.
Для этих целей применяют ламинированную фанеру либо деревянные рейки, которые перед установкой покрывают отработанным маслом или битумной мастикой.
Внутренняя гидроизоляция производится обмазочными или рулонными материалами, создающими под стяжкой дополнительную прослойку.
Самым эффективным методом упрочнения покрытия из бетона считается железнение, выполняемое 2-мя способами:
- Поверхность свежезалитого бетона покрывают сухим цементом М400 либо М300 и выполняют затирку с полировкой.
- Через 2-3 недели после заливки на бетон наносят жидкий раствор цемента и заглаживают.
Утепление отмостки теплоизоляционным материалом между слоями обеспечивает дополнительную защиту от промерзания грунта. Следует учесть, что ширина отмостки при этом увеличивается.
Отмостка по ТИСЭ
Финальная отделка основания типа ТИСЭ производится следующими способами:
- бетонирование;
- обшивка цокольной части сайдингом или камнем.
Главное в этом деле –правильно выбрать листовой материал, который должен иметь хорошую влагостойкость, обеспечивая в зимнее время скольжение поднимающейся отмостки без разрушения облицовки цоколя.
Оптимальный вариант –плиты ПСП, керамогранит, листовой шифер и другие влагостойкие материалы, которые будут подниматься и скользить вместе с отмосткой по ростверку, закрывая зазор между ним и грунтом. По своему верхнему уровню дорожка может быть на несколько сантиметров выше нижней кромки ростверка и подниматься выше.
Материалы отмостки
Для прицокольных дорожек, помимо бетона, могут использоваться такие материалы:
- асфальт;
- асфальтобетон;
- керамогранит;
- брусчатка;
- керамическая плитка и пр.
Работа с каждым видом покрытия имеет свои нюансы и требует соблюдения определенных норм и правил.
Толщина отмостки вокруг дома. Требования
Специальные требования, прописывающие соотношения размеров отмостки и свеса крыши, не прописаны ни в одном ГОСТе. Нормативные обязательства по ширине выноса отмостки на 0,2–0,3 см по сравнению с выносом карниза можно считать рекомендательными, и во время сооружения конструкции вокруг дома ориентироваться на эти данные не требуется. Обязательными считаются только 2 минимальных показателя ширины с учетом грунта:
- на песчаных почвах — от 0,7 м;
- на глинистых они начинаются от 1 метра.


Эти данные указаны в документе СП для надзорных органов. В тех случаях, когда у двухэтажных домов не имеется водостоков, кровельные свесы должны быть не менее 60 см.
Если строение находится на песчаных почвах, то разница между параметрами отмостки и кровельного свеса может равняться 0,1 см и при этом не вступать в противоречие с нормативными требованиями.
Из этого следует, что указанные параметры в 20-30 см – это всего лишь среднее и наиболее удобное соотношение отмостка-кровельный свес для большинства вариантов.
Что касается просадочных почв, то к ширине отмостки предъявляют несколько иные условия:
- I тип — ширина от 1,5 м;
- II тип — ширина от 2 метров.


Несмотря на указанные рекомендации, отмостка должна превышать величину рва на 40 см, причем угол склона варьируется от 1 до 10º. Когда дом установлен на просадочных почвах, то минимум уклона должен составлять 3º. Внешний край выше почвенного горизонта не менее 5 см.
